
LUO studio recently conceived a distinctive bookstore in the underground space of a shopping mall in Beijing.
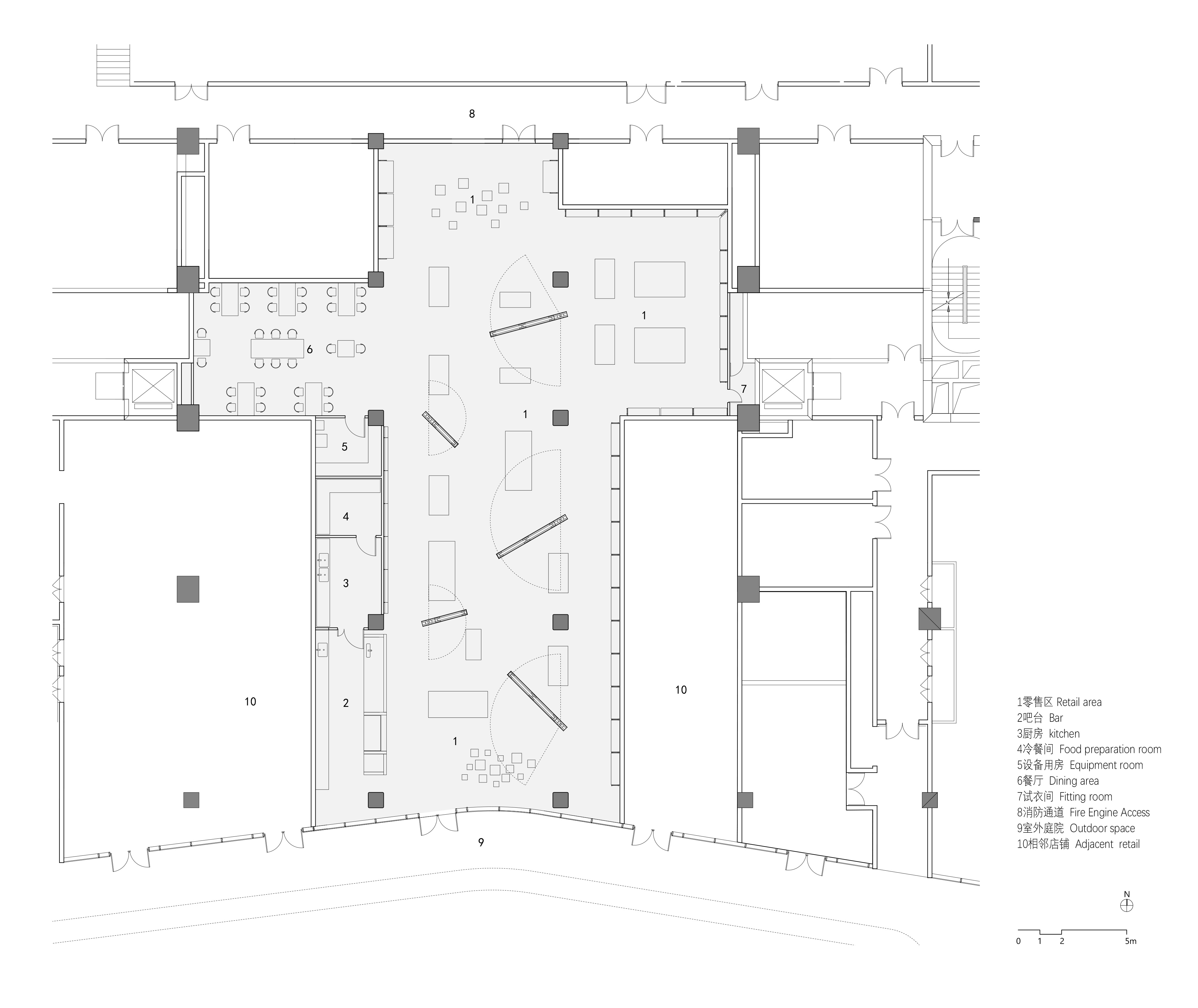
Due to different area requirements of various tenants that could occupy the space in the future, the space of the large commercial building was divided unevenly, and the walls and columns were separated and arranged disorderly. The mall hoped to maximize the potential of the underground space, where equipment rooms were set. The equipment space was dominated by intricately-mounted and dense pipelines, which posed a great challenge to the design.

For spatial renovation, bringing in a conventional suspended ceiling to conceal the pipelines would lead to a more cramped, oppressive space. Therefore, the design started from the idea of presenting the authenticity of the space without adding wrapping elements to original spatial structures.

Reveal the authenticity of the original space
Instead of enveloping the cluttered ceiling pipes or finishing the columns or walls, LUO studio intended to showcase the original state of the space, as they believed that the existing space was an inevitable result of urban space production and the walls and columns were neutral. The team worked to restore the original state of the columns and walls, with a view to unveiling the pure, authentic spatial textures. The white coating of walls and columns was removed, and the irregular edges and corners were fully polished, thereby revealing the aggregate's textures in the concrete columns. The original ceiling structures were retained and endowed with a gray tone, which is slightly darker than the walls and harmonizes with the entire space. Through those approaches, the basic structural components were reshaped, and the authenticity of the space was revealed.

Create “structural installations”
Based on the client's actual demands, shelves needed to be set against the walls and to be capable of adapting to changes. Since the walls were built with non-bearing hollow blocks, the specific width and height of the shelves should be pondered carefully to concentrate the stress of the shelves on the ground, with the walls providing additional support. Based on those considerations, LUO studio decided to bring in and place metal shelves against the walls. The shelves feature a broad and long base, and the walls were endowed with many anchor points to offer more support. The metal shelves are structural furniture, which also functions as partitions that help increase variability and flexibility of the space. Each metal shelf is an embedded "structural installation".

Insert rotating screen walls under the beams
"Mumokuteki Concept Bookstore" is a new idea proposed by the client Juran Bookstore after its years of operation. It conveys a free future lifestyle for urban people, and puts forward the possibility of creating a flexible and varying bookstore space that integrates with other various functions such as exhibition.

Rotating screen walls were inserted under the beams as secondary structural components. As all the rotating walls are set vertical and perpendicular to the entrance interface, the whole space becomes open and transparent. However, when they are parallel to the entrance, the space is divided into multiple continuous yet independent parts, which enrich the sense of layering and depth of the space. Those screen walls can rotate and be fixed freely, thus helping obtain a flexible and changeable space.

The rotating wall's framework is riveted with angle steel profiles, and is enveloped by transparent or translucent materials. Transparent rotating screen walls are deployed at the entrance and the transition area leading to the rear zone for the continuity of the space, while translucent walls are set in other areas to enrich the space.
Holes are carved out on both sides of the screen walls based on module specifications, for allowing wooden sticks to pass through. In addition, different numbers of metal plates are flexibly set on the wooden bars at different heights, so as to meet the needs of hanging and placing books and cultural, creative products.

The overall interior design of the project is not conventional, as all strategies taken are aimed to return the architectural space to its original state. Through the insertion of structural furniture and other various spatial creation methods, the design restored the original appearance and authenticity of the space.

LUO 스튜디오는 최근에 베이징의 한 쇼핑몰의 지하에 특별한 서점을 구상했다. 향후 입주할 다양한 세입자들의 서로 다른 요구에 따라, 거대한 상업 건축물의 공간은 불균등하게 분할되었고, 벽과 기둥들은 불규칙적으로 분리되고 배치되었다. 쇼핑몰은 기계실이 배치된 지하 공간의 잠재성을 극대화하길 희망했다. 기계실 공간은 복잡하게 설치된 빽빽한 파이프 선이 있어 설계에 큰 어려움이 있었다.

공간의 리노베이션의 경우, 비좁고 숨 막히는 공간으로 만들 수 있는 파이프 선들을 가리기 위해 통상적인 달반자를 사용했다. 따라서, 기존의 공간 구조를 가리는 요소들 없이 공간의 고유성을 제시하고자 하는 아이디어로부터 디자인이 시작됐다.

기존 공간의 고유성 드러내기
어수선한 천장 파이프를 감싸거나 기둥 혹은 벽들을 마감하는 대신, 기존의 공간이 도시공간 생성에 따른 불가피한 결과물이며, 벽들과 기둥들이 중립적이라고 믿었기 때문에 공간의 기존 상태를 보여주려 했다. 팀은 순수하고, 고유한 공간적 질감을 보여주기 위해 기둥과 벽들을 기존의 상태로 복원하는 작업을 했다. 벽과 기둥에 칠해진 흰 도료는 제거되었고, 울퉁불퉁한 모서리들과 가장자리들은 완전히 연마하여 콘크리트 기둥 속 골재의 질감을 드러냈다. 기존의 천장 구조는 벽들보다 조금 더 어둡고 전체 공간과 조화를 이루는 회색 톤으로 유지됐다. 이러한 접근 방식을 통해, 기본 구조적 구성요소들은 재구성하고, 공간의 고유성이 드러났다.

“구조적 설치물들” 의 창조
고객의 실제 요구에 따라, 선반들은 벽에 기대어 배치되어야 했으며 변화에 적응할 수 있어야 했다. 벽들이 비내력의 속이 빈 블록들로 건설되었음에 따라, 선반의 특정한 너비와 높이는 추가적인 지지를 해주는 벽들과 함께 지상 위로 선반의 하중을 집중시키기 위해 신중히 고려되어야 했다. 그러한 생각들에 기반하여, LUO 스튜디오는 철재 선반들을 가져와 벽에 기대어 배치시켰다. 선반들은 넓고 긴 하부를 특징으로 하며, 벽들에는 더 많은 내력을 위해 다양한 앵커 지점들이 있다. 철재 선반들은 공간의 가변성과 유연성을 증가시키는 데 도움을 주는 파티션으로써도 기능하는 구조적인 가구다. 각각의 철재 선반은 내재된 “구조적 설치물”이다.

기둥 아래 회전하는 스크린 벽의 삽입
Mumokuteki Concept Bookstore는 오랜 운영 끝에 클라이언트인 주란 서점(Juran Bookstore)이 제안한 새로운 아이디어다. 도시인의 자유로운 미래 라이프스타일을 전달하고 전시 등 다양한 기능과 통합되는 유연하고 다양한 서점 공간을 만들 수 있는 가능성을 제시했다.

회전하는 스크린 벽들은 기둥 아래 보조적인 구조적 구성 요소로써 삽입됐다. 모든 회전 벽들이 입구 인터페이스에 수직 및 직각으로 배치되어있음에 따라, 전체적인 공간은 개방적이고 투명해진다. 하지만, 입구와 평행할 때, 여러 개의 연속적이면서도 독립적인 여러 부분으로 분할되어 층감과 공간의 깊이감을 풍부하게 해 준다. 이러한 스크린 벽들은 자유롭게 회전하고 고정될 수 있으므로 유연하고 가변적인 공간을 만드는데 도움을 준다.



스크린 벽의 골조는 각강 프로파일들로 대갈 못에 의해 고정되었고, 투명 혹은 반투명한 자재들로 둘러싸여 있다. 공간의 연속성을 위해 입구와 후면으로 이어지는 트랜지션 영역에는 투명한 회전 스크린 벽을 설치하고 다른 영역에는 반투명 벽을 설치하여 공간을 풍부하게 만든다. 모듈의 사양에 따라 스크린 벽 양 측에는 구멍이 뚫려있어 나무 막대기가 통과할 수 있다. 또한, 다양한 철판들이 서로 다른 높이로 목재 막대기에 고정되어 있어 책들과 문화적, 창의적 제품들을 걸고 배치하고자 하는 요구를 충족시켰다.

이 프로젝트의 전반적인 인테리어 디자인은 건축 공간을 원래 상태로 되돌리는 것을 목표로 하기 때문에 관습적이지 않다. 구조적 가구와 다양한 공간 창조 방법들을 통해 기존의 외관과 공간의 고유성을 복원시켰다.


Architects LUO studio
Location Haidian District, Beijing, China
Site area 479.1㎡
Completion 2021. 4
Design team Luo Yujie, Wang Beilei, Wang Zhen, Lu Zhuojian, Huang Shangwan
Construction Shinewood Building Technology(Beijing) Co., Ltd.
Client Juran Bookstore
Photographer Jin Weiqi
'Interior Project > Retail' 카테고리의 다른 글
| Toyou bookstore (0) | 2021.07.21 |
|---|---|
| Uvée - Optometry Clinic (0) | 2021.07.15 |
| Lazzarini Optics (0) | 2020.07.09 |
| Self Service Laundry (0) | 2020.07.09 |
| RUBIO (0) | 2020.06.19 |
마실와이드 | 등록번호 : 서울, 아03630 | 등록일자 : 2015년 03월 11일 | 마실와이드 | 발행ㆍ편집인 : 김명규 | 청소년보호책임자 : 최지희 | 발행소 : 서울시 마포구 월드컵로8길 45-8 1층 | 발행일자 : 매일



