
Settled in an alley of a residential complex in Ilsan, there is Persimmon Coffee, where charming persimmon trees can be seen through a large window. Persimmon Coffee’s name was influenced by the persimmon trees on the terrace, and it is a space designed to convey a comfortable feeling within a natural and nature-friendly space. In order to highlight the nature-friendly and comfortable feeling, an earthy-style interior that reflects the colors cream, sand, beige and the colors of earth was set as the design concept.

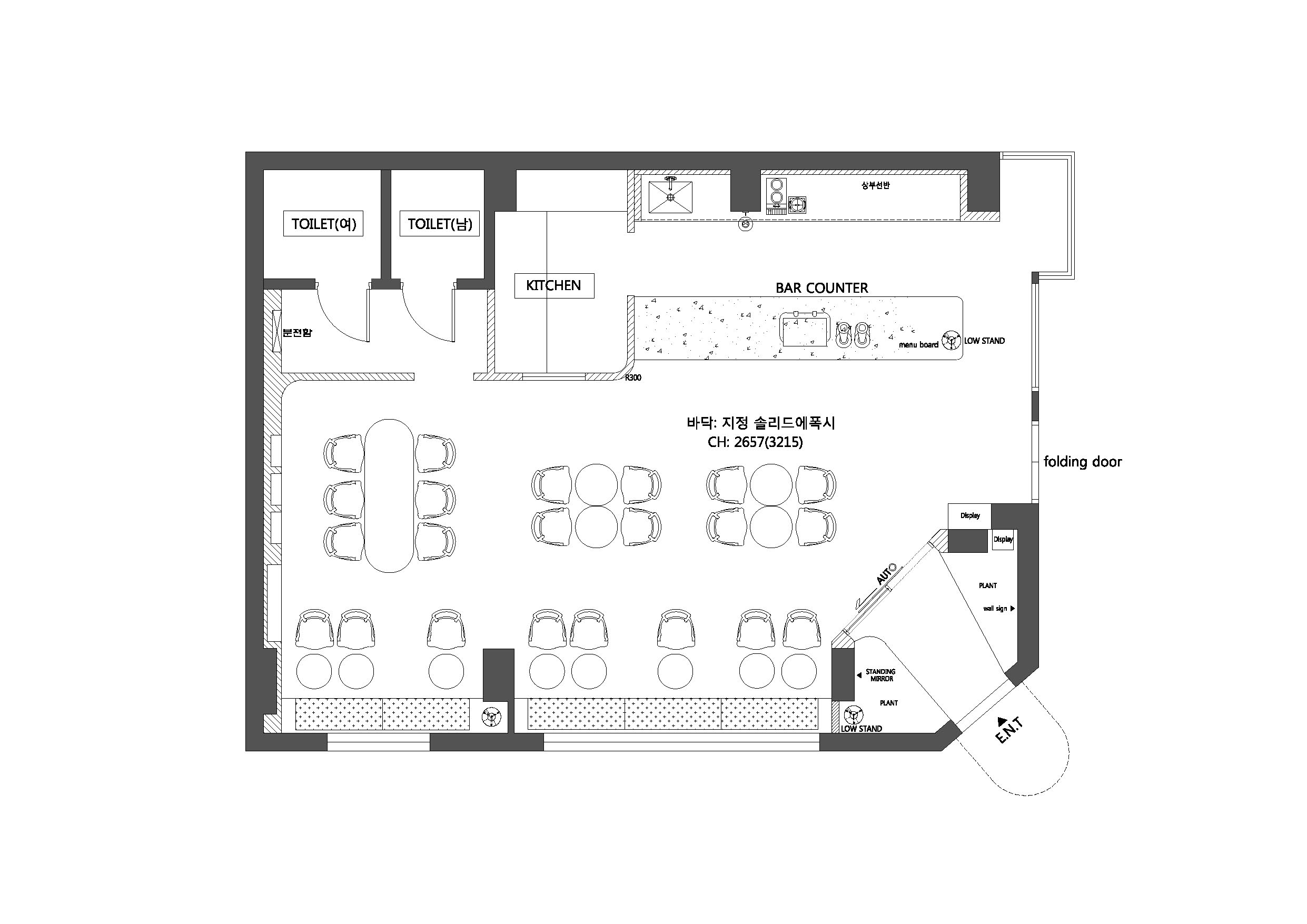
The facade design of Persimmon Coffee uses soft curves and arches rather than straight lines so that those who see it can feel more comfortable and secure. Persimmon Coffee’s exterior facade canopy emphasized the entrance by highlighting the arch design, and the color was also finished with warm gray colors to harmonize the exterior tone of the building. The left and right sides of the exhibition space at the entrance to the cafe were styled with red corallites, highlighting the earthy style concept. In front of the entrance, there is a counter space designed in a round form, and there is a kitchen space designed with pebble-shaped fixed windows. On top of the long tables in the interior, hanging plants accentuated with reeds were placed as a visual fun factor, and the natural textured vintage artworks were installed on the pillars to lightly express a nature-friendly feeling. The interior space is a space that completes the earthy style by placing natural rattan furniture and items that have a natural feeling.

일산의 한 주택단지 골목에 자리잡은 곳, 그곳엔 큰창너머로 보이는 감나무가 매력적인 펄시몬커피가 있다. 펄시몬커피는 테라스의 감나무 영향을 받아서 만들어진 네임이며, 내추럴하면서도 자연친화적인 공간속에 편안한 감성이 묻어나도록 설계한 공간이다. 자연친화적이고 편안한 감성을 살리기위해 크림,샌드,베이지, 지구의 컬러를 반영한 어시스타일의 인테리어로 디자인 컨셉을 잡았다.

펄시몬 커피의 입면설계는 직선보다는 부드러운 곡선과 아치를 이용하여 보는 이로 하여금 좀 더 편안하고 안정감을 느낄 수 있도록 설계하였다. 펄시몬 커피의 외부 파사드 캐노피는 아치형 디자인을 살려 입구에 포인트를 주었고, 컬러 또한 건물 외부 톤과 어울리도록 웜그레이 계열로 마감했다. 카페로 들어가는 출입구 전실 공간 좌우에는 어시스타일 컨셉을 살려 붉은 산호석으로 스타일링했다. 출입구 정면에는 라운드형태로 디자인된 카운터공간이 있으며, 조약돌모양의 픽스창으로 디자인된 주방공간이 자리잡고 있다. 실내안쪽 긴 테이블 위에는 갈대로 포인트를 준 행잉플랜트를 두어 시각적인 재미요소를 주었고, 기둥부에는 자연적인 질감의 빈티지아트를 시공해 자연친화적인 느낌을 소소하게 표현해주었다. 실내공간은 전체적으로 내추럴한 느낌의 천연라탄 가구들과 소품들을 배치에 어시스타일을 완성한 공간이다.









Studio DESIGN2WINSOME
Location Ilsandong-gu, Goyang-si, Gyeonggi-do, Republic of Korea
Program Cafe
Site area 92.56m2
Design period 2020. 6 - 2020. 6. 30
Construction period 2020. 7. 1 - 2020. 7. 25
Completion 2020. 7
Construction DESIGN2WINSOME
Client Persimmon Coffee
Photographer Mireu Photo Gangmin Lee
'Interior Project > Cafe&Restaurant' 카테고리의 다른 글
| WINE & BISTRO OOMPH (0) | 2021.08.17 |
|---|---|
| Chicken Mafia (0) | 2021.08.10 |
| GAGA TOAST (0) | 2021.08.05 |
| Protagonist Bar (0) | 2021.08.04 |
| Loqui, Handcrafted Taqueria (0) | 2021.07.30 |
마실와이드 | 등록번호 : 서울, 아03630 | 등록일자 : 2015년 03월 11일 | 마실와이드 | 발행ㆍ편집인 : 김명규 | 청소년보호책임자 : 최지희 | 발행소 : 서울시 마포구 월드컵로8길 45-8 1층 | 발행일자 : 매일



