
Protagonist is a café-bar located in a historical part of Kharkiv, Ukraine. It is a hangout place for the creative and imaginative people, to share ideas and express themselves. Every guest here is a ‘protagonist’ – a leading character of their storylines, and an advocate of the creative ideas.

It is a loft with concrete pillars that we stripped of old finishes to reveal the beauty of the ceiling's textures and intricate backside prints of previously removed floor tiles. These were the key elements we wanted to preserve, thus emphasizing the original architectural design of the building.

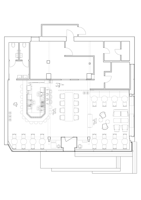
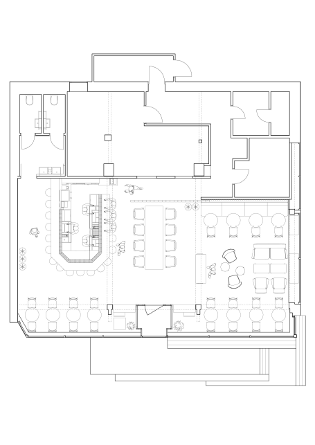
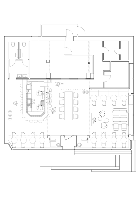
One of our tasks was to divide the space into functional zones and process flows. Thus, we designated the back of the room as a technological zone, while the central part along panoramic windows became the main dining area. A communal table that can accommodate large groups was placed in the middle of the room, and a full-size bar was positioned to the left of the table. We stationed the DJ to the right side of the table, while soft seating – armchairs and sofas, - together with small tables for two were placed behind the DJ, along with panoramic windows. With exception of the communal table, most of the furniture elements were designed and produced by our furniture brand propro.

No bar can exist without music. The owners of the establishment, being true connoisseurs of quality sound, have placed a great emphasis on sonic equipment. They chose Void Acoustics, a leading manufacturer of the audio systems for the installed and live sound markets. Void makes it possible to not only play background music, and also to host parties with invited DJs.

The hip theme of vintage design can be traced throughout the room. It can be seen in authentic wall panels of tempered glass, that we salvaged during the deconstruction of an old building. It is also in the DJ's control panel that we created by modernizing a vintage radiogram. An aged mirror on the back wall creates an effect of the visual infinity, multiplying objects and adding perspectives. The DJ console is a modernized Soviet-era radiogram that we bought on a classifieds website. We cut the radiogram into two and added the missing piece made of modern materials. Electric leads were threaded through the radiogram’s leg, and the music control unit was hidden inside the radiogram.

One of the focal points of the room is a light fixture suspended over the communal table. It is lifted to the ceiling during big parties, while the table is wheeled away to the glass wall. The shape of the light fixture is quite complex by no accident: it contains a special Protagonist phrase – 'this city needs a leading character', represented by a sound wave that was superimposed onto the oval shape by the project team.



Metal frame in the lavatories was designed in the style of an organizer - to orderly hold and conceal all the necessary accessories. In tune with the general theme of the space, the interior of the lavatories features a peeling tile design.

The facade is simple and unpretentious. In tune with the interior, dark foundation is finished with aluminum composite panels. By the main entrance, we created an open terrace that is also a long seating place that attracts street traffic.

Protagonist Bar는 우크라이나 하르키우의 역사적인 지역에 위치한 바이다. 창의적이고 상상력이 풍부한 사람들이 아이디어를 공유하고 자신을 표현할 수 있는 아지트 공간이다. 이곳의 모든 손님들은 스토리라인의 주인공이자 창의적인 아이디어의 옹호자입니다.

천장의 질감과 기존에 떼어낸 바닥 타일의 복잡한 뒷면 프린트의 아름다움을 드러내기 위해 낡은 마감재를 벗겨낸 콘크리트 기둥으로 된 다락방이다. 건축가가 보존하고자 했던 핵심 요소들이 바로 이것들이었고, 따라서 건물의 원래의 건축 디자인을 강조했다.

건축가의 임무 중 하나는 공간을 기능 영역과 프로세스 흐름으로 나누는 것이었다. 그래서 이 방의 뒷부분을 기술 구역으로 정하고, 파노라마 창문을 따라 중앙부를 주요 식사 공간으로 삼았다. 방 중앙에는 단체로 앉을 수 있는 공동 테이블을 배치하고, 테이블의 왼쪽에는 대형 바(bar)를 배치했다. 테이블 우측에 부드러운 좌석인 안락의자와 소파, 그리고 2인용 작은 테이블과 파라노마 창문과 함께 DJ를 배치했다. 공동 테이블을 제외하고, 대부분의 가구는 가구 브랜드 propro가 디자인하고 제작했다.

음악이 없으면 바는 존재할 수 없다. 건축주는 음향 장비에 큰 중점을 두었다. 오디오 시스템의 선두 제조업체인 Void Acoustics를 선택했다. Void Acoustics는 배경음악뿐만 아니라 초대 DJ들과 파티도 진행할 수 있게 해 준다.

빈티지 디자인의 힙한 테마는 방 전체에 걸쳐 찾아볼 수 있다. 오래된 건물을 해체할 때 찾아낸 강화유리 벽면 패널에서 볼 수 있다. 빈티지한 라디오그램을 현대화해서 만든 DJ의 컨트롤 패널에도 있다. 뒷 벽에 있는 오래된 거울은 시각적으로 무한대의 효과를 내어 원근감을 준다. DJ의 콘솔은 현대화된 소련 시대의 방사선 사진입니다. 방사선 사진을 두 개로 자르고 현대적인 재료로 만들어진 조각을 추가했다. 방사선 사진의 다리에는 전기 리드가 꽂혀 있고, 음악 제어 장치는 방사선 사진 안에 숨겨져 있다.

이 방의 중점 중 하나는 공동 테이블 위에 매달린 조명 기구다. 그것은 큰 파티 때는 천장으로 들어올려지고, 테이블은 유리벽 쪽으로 회전한다. 조명 기구의 모양은 우연치 않게 꽤 복잡하다. 여기에는 프로젝트 팀이 타원형 모양에 음파를 겹쳐서 표현한 '이 도시는 주인공이 필요하다'라는 특별한 Protagonist Bar만의 문구가 포함되어 있다.

화장실의 금속 프레임은 모든 필요한 액세서리를 질서 있게 잡고 감추기 위해 오거나이저 스타일로 설계됐다. 일반적인 공간 테마에 맞춰 화장실 내부는 필링 타일 디자인이 특징이다.

외관은 단순하고 소박하다. 내부와 조화를 이루는 어두운 기초는 알루미늄 복합 패널로 마감됐다. 정문 옆에 거리 교통을 유치하는 긴 좌석 공간이기도 한 탁 트인 테라스를 만들었다.






Architects balbek bureau
Location Kharkiv, Ukraine
Building area 165㎡
Completion 2019
Principal architect Slava Balbek, Liza Kormilets, Yevhenii Kuchmin
Furniture WOUD(Lean lounge chair - 100718), HAY(coffee tables - MARBLE), Flos(Tab floor -F6561009), Accent(Dot lamp - 70110.05.05), proprofurniture(BTS Chair 2.0, Protagonist bar stool, SOAP Armchair, SOAP sofa, Hanger 60, Table top - natural wood, Table foot Verona)
Lighting INTALITE(Track lightning- SLV 133300 Phelia S)
Acoustic system Void Acoustics
Photographer Andrey Bezuglov, Yevhenii Avramenko
'Interior Project > Cafe&Restaurant' 카테고리의 다른 글
| Persimmon Coffee (0) | 2021.08.09 |
|---|---|
| GAGA TOAST (0) | 2021.08.05 |
| Loqui, Handcrafted Taqueria (0) | 2021.07.30 |
| 3li Community Cafe (0) | 2021.07.27 |
| Terra Bean to Bar (0) | 2021.07.23 |
마실와이드 | 등록번호 : 서울, 아03630 | 등록일자 : 2015년 03월 11일 | 마실와이드 | 발행ㆍ편집인 : 김명규 | 청소년보호책임자 : 최지희 | 발행소 : 서울시 마포구 월드컵로8길 45-8 1층 | 발행일자 : 매일



