
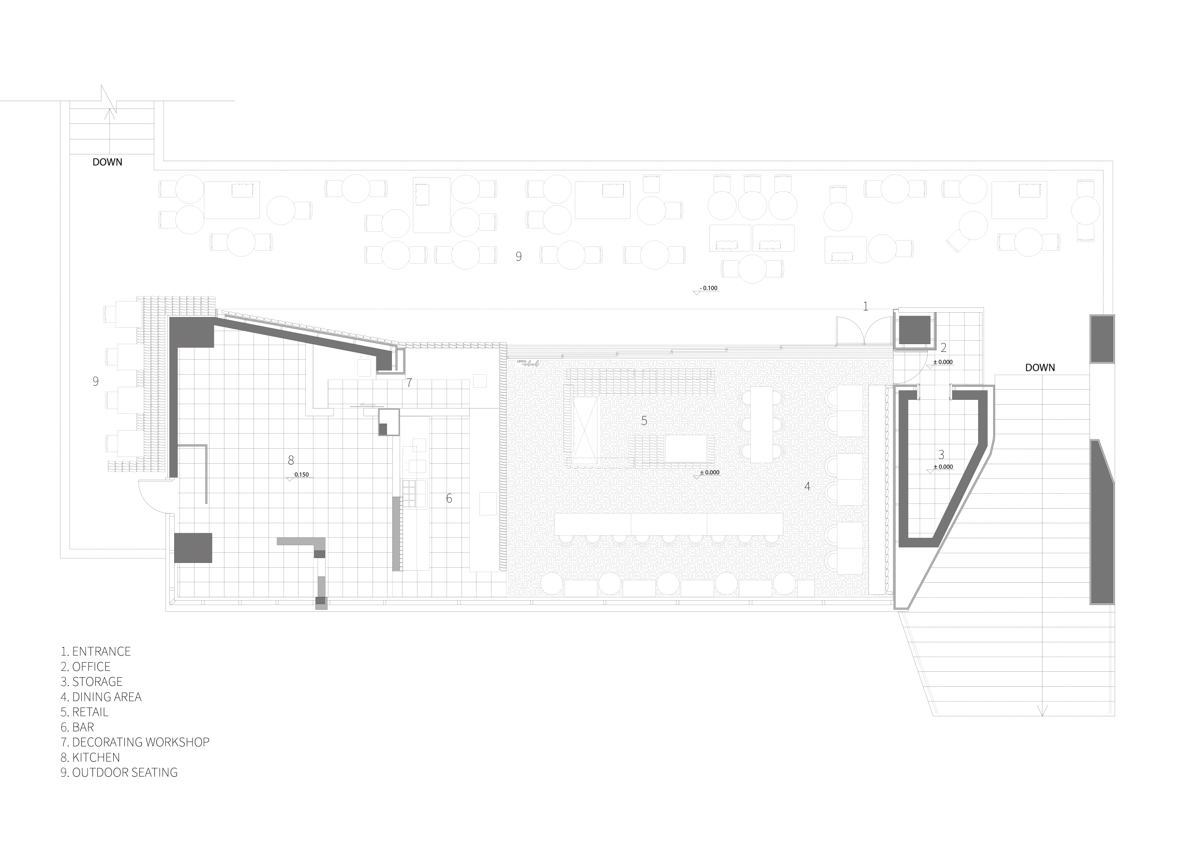
dongqi turned a building in Shenzhen into a new concept bakery and developed its visual identity. The team named the space GAGA TOAST and proposed a ‘More Than Toast’ narrative. GAGA TOAST is not only a bakery that offers delicious toast, but also a gathering space full of toast elements.

Toast elements permeated the space, whose design was centered around a special shaped brick. At the same time, the creative team worked closely with the architects to custom-make the element into the fundamental element of our visual identity as it conveyed the brand’s belief in authentic ingredients.

Both being shaped in a metal mold and produced in a high temperature environment, the process of brick making is intrinsically related to that of toast baking. Also, being a heat insulating material itself, the brick setting implies an atmosphere of bread baking.

Caused by the heat, the brick revealed a texture difference between the edge and the central area when being cut open, which coincided with the appearance of toast crust. Working closely with craftsmen, dongqi created a unique toast texture on the brick surface. The aggregates were elaborately combined with concrete to form a unique surface finishing.

Different combinations were designed for different functions and were applied throughout the entire space----from the wall to the floor, from the counter to the merchandise display, as well as the moveable retail fixtures.
The metal mold, which was used to shape the brick, were reserved too. It was turned into a plate for brand-related materials and merchandise display.

The external facade, which was turned into a full-length sliding door thanks to the pleasant climate in Shenzhen, also contributed to the unique spatial experience. The custom-made door can be slid closed or open at any extent based on the weather, blurring the boundary between indoor and outdoor space.

dongqi's branding approach carries on the ‘More Than Toast’ experience of customers. Under a carefully curated colour scheme, the customized shape was extended into a toast-fitting pattern system, which helped turn the bakery into a space of toast. The brand-owned monograms, patterns and graphics were generated and applied to various touch-points ranging from print materials to digital content, from furniture to promotional materials, from packaging to products - almost everything you can imagine. The visual language is friendly, bold and delicious, encouraging people to gather together for a chat over freshly baked toasts.

This unique design approach closed the gap between the brand experience and the spatial experience, making GAGA TOAST an ideal place for gatherings, inspiration, laughter, and simply, a good life.

dongqi는 중국 선전시의 한 건물을 새로운 개념의 베이커리로 탈바꿈하고 시각적 아이덴티티를 발전시켰다. 이 공간을 GAGA TOAST라고 명명하고 'More Than Toast'라는 서사를 제안했다. GAGA TOAST는 맛있는 토스트를 제공하는 베이커리일 뿐만 아니라 토스트 요소가 가득한 모임 공간입니다.

특별한 모양의 벽돌을 중심으로 디자인된 공간에는 토스트 요소가 스며들었다. 동시에 크리에이티브 팀은 진정한 재료에 대한 브랜드의 믿음을 전달하는 시각적 아이덴티티의 기본 요소로 요소를 맞춤 제작하기 위해 건축가와 긴밀히 협력했다.

금속성형 및 고온 환경에서 생산되는 벽돌 제조 공정은 본질적으로 토스트 베이킹과 관련이 있다. 또한 단열재 자체인 벽돌 세팅은 빵 굽는 분위기를 내포하고 있다.

열에 의해 발생한 벽돌은 잘라낼 때 가장자리와 중심부 사이의 질감 차이를 드러냈는데, 이는 토스트 크러스트의 모양과 일치한다. dongqi는 장인들과 긴밀히 협력하여 벽돌 표면에 독특한 토스트가 연상되는 질감을 만들어냈다. 골재는 콘크리트와 정교하게 결합되어 독특한 표면 마감을 형성한다.

다양한 기능을 위해 다양한 조합이 설계되었으며 벽에서 바닥, 카운터, 상품 진열장, 이동식 진열장까지 전체 공간에 적용되었다. 벽돌을 형성하는 데 사용된 금형도 활용하여 브랜드 관련 상품과 진열대로 사용된다.

선전시의 쾌적한 기후 덕분에 전면의 미닫이문으로 변한 외부 파사드도 독특한 공간 경험에 기여했다. 맞춤형 도어는 날씨에 따라 슬라이딩 방식으로 얼마든지 열고 닫을 수 있어 실내와 실외 공간의 경계가 흐려진다.

dongqi의 브랜딩 접근 방식은 고객의 '토스트보다 더 많은' 경험을 계승한다. 세심하게 선별된 배색 아래 맞춤형 토스트 패턴이 연속되어 베이커리를 토스트 공간으로 만들었다. 브랜드의 모노그램, 패턴, 그래픽이 생성되어 인쇄물에서 디지털 콘텐츠, 가구에서 판촉물, 포장에서 제품에 이르기까지 상상할 수 있는 거의 모든 접점에 적용됐다. 시각적 언어는 친절하고 대담하며 맛있다. 사람들이 모여서 갓 구운 토스트를 먹으며 이야기를 나누도록 한다.

이러한 독특한 디자인 접근 방식은 브랜드 경험과 공간 경험 사이의 격차를 좁혀줌으로써 GAGA TOAST를 모임, 영감, 웃음, 그리고 단순히 좋은 삶을 위한 이상적인 장소로 자리 잡게 만들었다.
Architects dongqi Design
Location Shenzhen, China
Site area 280㎡
Building area 170㎡
Design period 2019. 3 - 2019. 7
Construction period 2019. 7 - 2019. 9
Completion 2019. 9
Principal architect JIANG Nan
Project architect Xie Jinfan
Design team JIANG Nan, Yuan Yuan, Xie Jinfan, Shuang Zhang, Song Jie, Kiko Yuan, Xian Min Chia, Timothy Cheng
Structural engineer dongqi Design
Mechanical engineer dongqi Design
Electrical engineer dongqi Design
Construction Guangzhou Loto Interior Works & TAI Architecture and Decoration
Client GAGA
Photographe Raitt Liu
'Interior Project > Cafe&Restaurant' 카테고리의 다른 글
| Chicken Mafia (0) | 2021.08.10 |
|---|---|
| Persimmon Coffee (0) | 2021.08.09 |
| Protagonist Bar (0) | 2021.08.04 |
| Loqui, Handcrafted Taqueria (0) | 2021.07.30 |
| 3li Community Cafe (0) | 2021.07.27 |
마실와이드 | 등록번호 : 서울, 아03630 | 등록일자 : 2015년 03월 11일 | 마실와이드 | 발행ㆍ편집인 : 김명규 | 청소년보호책임자 : 최지희 | 발행소 : 서울시 마포구 월드컵로8길 45-8 1층 | 발행일자 : 매일



