
This nursery school for 90 students named “TESORO” (meaning treasure box in Italian) is located in a residential neighborhood in the city of Fukushima.

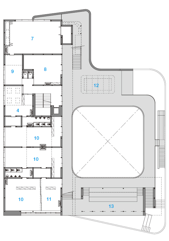
In order to create an environment in which children can play freely, we proposed consolidating their private road into the site. While maintaining the function as an approach for vehicles on the ground, we could put nursery rooms above the road, thereby securing space for a large, open-air play area in the center of low-story building.

This architecture opens east for a great view of the magnificent mountains. With interconnected circulation routes weaving together interior and exterior spaces, the building itself is like a giant play structure incorporating a slide, a climbing wall, and staircases of various sizes. And an undulating concrete wall pierced by numerous holes wraps around the building, enhancing security and privacy. In addition to this sturdy reinforced concrete, materials include wooden wainscotting inside and in high-visibility exterior areas, and easy-to-maintain Galvalume roofing and siding in areas exposed to blowing snow.

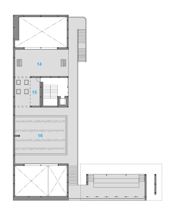
The design also includes as-yet unused exterior spaces that in the future might be sites for rooftop vegetable beds or a futsal court, while the exterior flooring can be converted into wood decks. In this way, we hope that the school as it stands now represents not its peak state but rather a starting point for staff to work toward dreams and goals in a building they love over the next five or ten years.

90명의 지역 아이들을 위한 테소로(TESORO, 이탈리아어로 보물 상자를 의미) 어린이집은 후쿠시마의 주택가에 있다. 건축가는 아이들이 자유롭게 놀 수 있는 환경을 만들기 위해 아이들이 다니는 길을 대지, 공간 안으로 통합할 것을 제안했다. 차량 통행로의 기능은 유지되면서 길 위에 어린이집 교실을 배치하여 저층 건물 중앙에 대형 야외 놀이공간을 확보할 수 있었다.

이 건물은 동향으로 배치되어, 산의 웅장하고 멋진 전망을 내다볼 수 있다. 내부와 외부 공간을 함께 엮은 상호 연결된 순환로로 인해 건물 자체는 미끄럼틀, 인공 클라이밍벽 및 다양한 크기의 계단이 통합된 거대한 놀이기구와 같다. 그리고 수많은 구멍이 뚫린 물결 모양의 콘크리트 벽이 건물 주변을 둘러싸고 있어 보안과 프라이버시를 강화한다. 이 견고한 철근콘크리트 벽 외에도 내부 및 가시성이 높은 외부 영역의 목재 웨인스코팅, 눈이 날리는 지역의 유지 관리가 쉬운 갈바륨 지붕 및 외장 공사 재료로 구성됐다.


또한, 옥상 외부공간은 야채를 심기 위한 화단, 또는 풋살 코트가 될 수도 있으며, 외부 바닥은 목재 데크로 변환할 수 있다. 건축가는 이 유치원이 현재의 어린이집이 정점 상태가 아니라 향후 5년 또는 10년 동안 아이들이 사랑하는 건물에서 꿈과 목표를 향해 나아갈 수 있는 출발점이 되기를 바란다.












Architect AISAKA ARCHITECTS’ ATELIER
Location Fukushima, Japan
Site area 1,252.83m2
Building area 748.60m2
Gross floor area 962.14m2
Completion 2019. 12
Structure Wooden
Structural engineer Kanebako Structural Engineers
Equipment P.T.Morimura & Assosiates, LTD
Lighting design Komorebi Design
Photographer Shigeo Ogawa
해당 프로젝트는 건축문화 2021년 3월호(Vol. 478)에 게재 되었습니다.
The project was published in the March, 2021 issue of the magazine(Vol. 478).
March 2021 : vol. 478
Contents: RECORDS THE EXPERIMENT TO FACE A REALITY IN AN INFINITE GRIDMAESTRO SOFA COMPETITION: NEWS / COMPETITION / BOOKS: SKETCH VILLA MAIREA, FINLAND / ASHWIN SWAMINATHAN : RECENT PROJECT ARIJUJIN / PROF. BEOMKWAN KIM(UNIV. OF ULSAN)
anc.masilwide.com
'Architecture Project > Education' 카테고리의 다른 글
| PUBLIC SOLBIT FOREST KINDERGARTEN (0) | 2021.05.31 |
|---|---|
| IZUMINOMORI KINDERGARTEN (0) | 2021.05.28 |
| HANGZHOU PULE KINDERGARTEN YANGJIADUN BRANCH (0) | 2021.05.26 |
| LINGBAO CHILDREN’S CENTER (0) | 2021.05.25 |
| TSUKUSHI NURSERY FORESTA KARANKORO (0) | 2021.05.24 |
마실와이드 | 등록번호 : 서울, 아03630 | 등록일자 : 2015년 03월 11일 | 마실와이드 | 발행ㆍ편집인 : 김명규 | 청소년보호책임자 : 최지희 | 발행소 : 서울시 마포구 월드컵로8길 45-8 1층 | 발행일자 : 매일



