
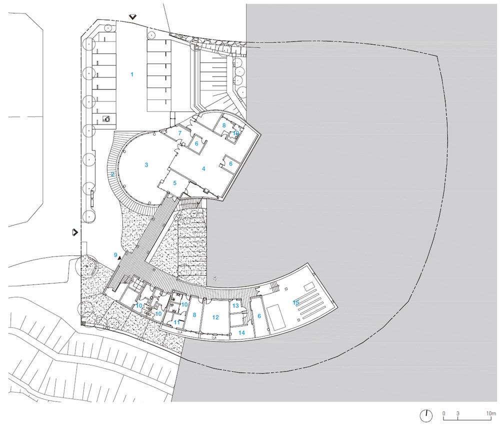
Forest Kindergarten is an ecological educational institution, which believes “every answer exists in nature’ and makes children to run and play freely and to realize by themselves through forest experience escaped from the existing garden-centered childhood education. There are total 9 class rooms, which the scale is pretty big for a single kindergarten, and by arranging kindergarten pupils’ activity space to face the ground as possible the mass became gigantic. To overcome the mass’s length and to adapt the plots’ surrounding hill land shape at the same time, it has designed in a curved shape hugged by mountain terrain by bending classroom wing’s shape. the mass has divided properly to not make a mass which became longer to become a barrier between the volcano on the backside of the building and the city, and by planting tall trees between the divided space we intended to make nature factors of mountain terrains to be absorbed into the building.

The Public Solbit Forest Kindergarten is a building which has planned by changing the way of thinking and focuses on the outdoor activities not indoor activities. A hallway which faces with the classroom is exposed to the air in a form of corridor. The classroom and the outdoor space became closer by installing an individual entrance to each classroom. This individual entrance borrows the concept of living room in Han-ok and was intended to switch indoor education and outdoor education anytime by classes. There is a front yard where children can play with soil in front of the Toenmaru concept’s corridor. At the backside of the classroom, an individual courtyard of the backyard concept has arranged and small group activities of classes are available there.

To make a classroom to be felt like a mountain cabin inside the forest, a big window has installed to the ground surface, and designed to make four seasons and changing weather could be felt from the view of the children. A multi-sensory building experience has intended not by collecting roof water to the eaves gutter but by planning water from the long edge of the roof, which borrows the eaves of Han-ok, to be fell on the pebble, and making mountain birds sound closer by opening the building’s window near the mountain. Through this a classroom could communicate with outdoor space more. A hillside playground has made by utilizing the slope sides of an inclined space of the plot, and by designing solar panel as a roof material drawing low arc identifying with the building’s curved form and intended not to ruin the building and forest’s aesthetic view.

Unfortunately, the present Public Solbit Forest Kindergarten didn’t install forest playground facilities yet, which has planned firstly for the front yard space. Of course, it was because of the budget. We’ll expect the Public Solbit Forest Kindergarten which is being perfect one by one every year.

숲유치원(Forest Kindergarten)은 정원(Garden) 중심의 기존 유아교육에서 벗어나 ‘모든 답은 자연에 있다’고 믿고 숲에서 아이들을 자유로이 뛰놀게 하며 숲체험을 통해 스스로 깨우치게 하는 생태교육기관이다. 단설 유치원으로는 제법 큰 9개 학급 규모이며, 원아 활동공간을 최대한 지면에 접하도록 배치하게 되면서 매스가 장대해지게 됐는데, 매스 길이를 극복함과 동시에 위요된 구릉지 형태인 대지의 형상에 순응하기 위해 교실동의 형태를 구부려서 산세에 안긴 곡선형태로 계획했다. 이때 길어진 매스가 건물 후면의 괴화산과 도시 사이에 장벽이 되지 않도록 매스를 적절히 분절하였으며, 분절된 사이 공간에 키 큰 나무를 심어 산세의 자연요소가 건축에 스며들 수 있도록 의도했다.

솔빛 숲유치원은 실내생활 위주의 건축물이 아닌 실외생활에 초점을 맞춘 건축물로 발상을 뒤집어서 계획된 건축물이다. 교실과 접한 복도는 회랑형태로 외기에 노출되어 있으며, 각 교실마다 개별 현관을 설치하여 교실과 외부공간을 최대한 가깝게 만들었다. 이 개별 현관은 한옥의 대청마루 개념을 차용한 것으로 학급별로 언제든 실내교육과 실외교육이 자유롭게 전환될 수 있도록 의도했다. 툇마루 개념의 회랑복도 바로 앞에는 아이들이 흙을 만질 수 있는 앞마당이 있다. 교실 후면에는 후정 개념의 학급별 개별마당 공간이 배치되어 있으며, 이곳에서 반별 소그룹 활동을 할 수 있다.

교실이 숲 속 산장처럼 느껴질 수 있도록 최대한 커다란 유리창을 바닥면까지 내려 설치하고, 유아의 눈높이에서 사계절과 날씨의 변화를 느낄 수 있도록 계획했다. 처마 홈통으로 지붕물을 모으지 않고 한옥 처마를 차용하여 길게 내어진 지붕 끝에서 떨어지는 낙숫물이 자갈 위에 떨어지도록 계획하고 산과 가까이 위치한 건물의 창문을 열면 산새소리가 들려오는 공감각적 체험을 의도했는데, 이를 통해 교실은 더 외부공간과 소통하게 된다. 부지 내 경사지를 활용하여 경사를 이용한 다양한 언덕놀이터로 활용하도록 했고, 태양광패널을 건축물 곡면 형태와 일치되도록 낮게 호를 그리는 지붕재처럼 디자인하여 건축물과 숲의 미관을 해치지 않도록 의도했다.

아쉽게도 현재 솔빛 숲유치원은 앞마당 공간에 최초 계획했던 숲놀이시설을 미처 다 설치하지 못했다. 물론 예산 때문인데, 매년 하나하나 완성되어 가는 솔빛 숲유치원을 기대해본다.











Architect SUP ARCHITECTURE
Location Bangok 3-gil, Sejong-si, Republic of Korea
Site area 4,806.00m2
Building area 1,450.67m2
Gross floor area 2,697.74m2
Building scope 3F
Building to land ratio 30.18%
Floor area ratio 56.13%
Design period 2017. 10 - 2018. 2
Construction period 2018. 7 - 2019. 2
Completion 2019. 2
Principal architect Sanghee Sun, Seonhwan Lee
Project architect Seonhwan Lee Structural engineer Jongwon Lee
Mechanical engineer Hyeonuk Kim
Electrical engineer Hopyo Kim
Construction Insung Construction Co.,Ltd
Client Sejong City Office of Education
Photographer Jongoh Kim, SUP Architecture
해당 프로젝트는 건축문화 2021년 3월호(Vol. 478)에 게재 되었습니다.
The project was published in the March, 2021 issue of the magazine(Vol. 478).
March 2021 : vol. 478
Contents: RECORDS THE EXPERIMENT TO FACE A REALITY IN AN INFINITE GRIDMAESTRO SOFA COMPETITION: NEWS / COMPETITION / BOOKS: SKETCH VILLA MAIREA, FINLAND / ASHWIN SWAMINATHAN : RECENT PROJECT ARIJUJIN / PROF. BEOMKWAN KIM(UNIV. OF ULSAN)
anc.masilwide.com
'Architecture Project > Education' 카테고리의 다른 글
| DUNCHON LIBRARY (0) | 2021.06.14 |
|---|---|
| FANTAILS ESTATE, DAIRY FLAT (0) | 2021.06.01 |
| IZUMINOMORI KINDERGARTEN (0) | 2021.05.28 |
| TESORO NURSERY SCHOOL (0) | 2021.05.27 |
| HANGZHOU PULE KINDERGARTEN YANGJIADUN BRANCH (0) | 2021.05.26 |
마실와이드 | 등록번호 : 서울, 아03630 | 등록일자 : 2015년 03월 11일 | 마실와이드 | 발행ㆍ편집인 : 김명규 | 청소년보호책임자 : 최지희 | 발행소 : 서울시 마포구 월드컵로8길 45-8 1층 | 발행일자 : 매일



