
Hangzhou Pule Kindergarten Yangjiadun Branch, covering a total construction area of approximately 7,800m, is located in Binjiang District of Hangzhou, a region packed with high-tech industries including Alibaba and rising in rankings among districts in Hangzhou. In recent years, the district has set higher demands for educational facilities. In this case, the architects managed to build an “attractive” children’s facility with a modular thinking and a rapid construction method under the limited construction period and costs.

The application of “hexagon” motif in Dongguan Kindergarten has turned the unfavorable conditions of site restrictions into design highlights. Surrounded by high-rise buildings, the sunlight conditions on the site are not that optimistic. There is an angle of 60° between the diamond land and the south direction. Given the fact that it is impossible for daylighting orientation, sunshine duration and land efficiency to reach their ideal state at the same time by adopting a traditional orthogonal grid layout, the “hexagon” motif thus becomes a problem-solving idea as hexagon is the most common form in nature and boasts the dual advantages of “complete filling” and “most efficient”. The combination of hexagonal beehives conforms to the slope angle of the site to introduce maximum daylight, while taking into account many requirements such as good orientation, sunshine duration and the fit rate of the site.

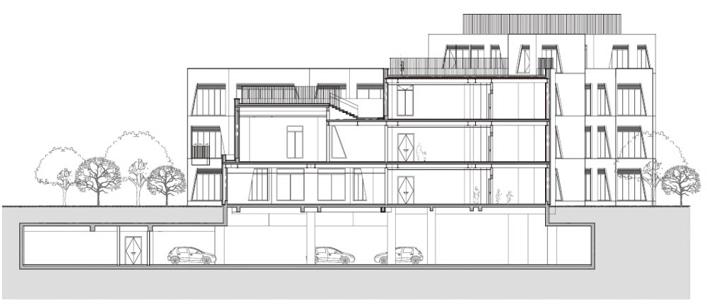
The “hexagon” motif creates lots of non-right-angled spaces, which are in line with the nature of children to explore and play. In order to further break the monotonous corridor pattern, a zigzag “active space” was marked out as skeleton to connect each space unit. On the other hand, to ensure children’s outdoor activities in the cramped field, the architects managed to extend the space in three dimensions. The building retreats along the city road layer by layer, forming a cascade of roof terraces with different elevations, which is open to students as an extension of the activity space on the ground.

The project selects materials based on innovation with limited costs. The exterior finish layer uses white corrugated color steel plate based on traditional masonry window and wall system, and the entrance canopy uses bamboo and steel material to create a fresh and cosy architectural atmosphere. The main structure on the ground adopts a multi-layer steel frame system to meet the requirement of assembly rate, and the pre-processing method in the factory reduces the wet construction work greatly. Finally, through ingenious space and construction strategies, the architects managed to create a children’s building with affinity and attractiveness under severe conditions.

항저우 풀레 유치원 양자둔점은 알리바바를 비롯한 첨단 산업이 밀집한 지역이며 항저우 지역 중 부동산 가치가 상승하고 있는 항저우 빈장 지구에 위치하고 있다. 최근 몇 년 동안 이 지구는 교육 시설에 대해 더 높은 기준을 설정하고 있다. 이 프로젝트에서 건축가들은 제한된 시공 기간과 비용 하에 모듈식 사고와 신속한 시공 방법을 통해 어린이 시설을 지을 수 있었다.

이 유치원의 육각형 디자인은 부지의 제한으로 인한 불리한 조건을 반전시키는 요소다. 고층 건물로 둘러싸인 현장의 일조량 조건은 불리했으나, 건축가는 다이아몬드 형태의 땅과 남쪽 방향 사이, 60도의 각도를 활용하여 일광 방향, 일조 지속 시간 및 토지 효율을 위한 전통적인 직교 격자 육각형 구조체로 해결했다. 효율성 높고 완전하게 꽉 채울 수 있는 육각형이라는 공간은 부지의 경사각을 준수하여 최대 일광을 도입하는 동시에 좋은 방향, 일조 시간 및 부지의 적합률과 같은 많은 요구 사항을 만족시킨다.

육각형 공간은 직각이 아닌 많은 공간을 만들어, 어린이들의 탐구와 놀이의 본질에 부합한다. 단조로운 복도 패턴을 확실히 깨뜨리기 위해 지그재그의 “활성 공간”이 각 공간 단위를 연결하는 골격으로 표시됐다. 반면에 비좁은 운동장에서 아이들의 야외 활동을 보장하기 위해 건축가는 공간을 3차원으로 확장한다.


건물은 층별로 이 도시의 도로를 따라 후퇴하여 학생들에게 지상 활동 공간의 확장으로 개방된 다양한 높이의 계단식 옥상 테라스를 형성한다.

이 프로젝트는 제한된 비용으로 혁신을 기반으로 한 재료를 선택했다. 외부 마감은 전통적인 벽돌 창과 벽 시스템을 기반으로 한 흰색 칼라 골강판을 사용하고, 입구 캐노피는 대나무와 강철 소재를 사용하여 신선하고 아늑한 건축적 분위기를 조성한다. 지상의 주요 구조물은 조립률 요건을 충족시키기 위해 다층 철골 시스템을 채택하였고, 공장의 전처리 방법을 사용하여 습식 공사 작업을 크게 줄였다. 마지막으로 건축가들은 독창적인 공간과 시공 전략을 통해 가혹한 조건에서 친화력과 매력을 지닌 유치원 건물을 만들 수 있었다.








Architect goa
Location Hangzhou, Zhejiang, China
Gross floor area 7,800m2
Design Period 2017
Completion 2019
Client Hangzhou Binjiang District Education Bureau
Photographer goa
해당 프로젝트는 건축문화 2021년 3월호(Vol. 478)에 게재 되었습니다.
The project was published in the March, 2021 issue of the magazine(Vol. 478).
March 2021 : vol. 478
Contents: RECORDS THE EXPERIMENT TO FACE A REALITY IN AN INFINITE GRIDMAESTRO SOFA COMPETITION: NEWS / COMPETITION / BOOKS: SKETCH VILLA MAIREA, FINLAND / ASHWIN SWAMINATHAN : RECENT PROJECT ARIJUJIN / PROF. BEOMKWAN KIM(UNIV. OF ULSAN)
anc.masilwide.com
'Architecture Project > Education' 카테고리의 다른 글
| IZUMINOMORI KINDERGARTEN (0) | 2021.05.28 |
|---|---|
| TESORO NURSERY SCHOOL (0) | 2021.05.27 |
| LINGBAO CHILDREN’S CENTER (0) | 2021.05.25 |
| TSUKUSHI NURSERY FORESTA KARANKORO (0) | 2021.05.24 |
| CAPSULE HOTEL AND BOOKSTOREIN VILLAGE QINGLONGWU (0) | 2021.05.21 |
마실와이드 | 등록번호 : 서울, 아03630 | 등록일자 : 2015년 03월 11일 | 마실와이드 | 발행ㆍ편집인 : 김명규 | 청소년보호책임자 : 최지희 | 발행소 : 서울시 마포구 월드컵로8길 45-8 1층 | 발행일자 : 매일



