
This was a building renovation project located in a community in the north of Lingbao. Later, it became a child growth and development center of the area. Before transformation, the original building was of low quality, with cramped space, and an unfinished office building was on the opposite to its south side. And the construction period for the project was tight. What’s more, this was the first time for a well known Chinese preschool education institution to develop the county level city market, so the conservative expectations of the local market led the start up capital relatively limited.

Under such conditions and circumstances, we still hoped to build a small white world different from the whole community, a clean and real space where children can concentrate on playing and cognition, exploring and thinking, so as to obtain true feelings and happiness.

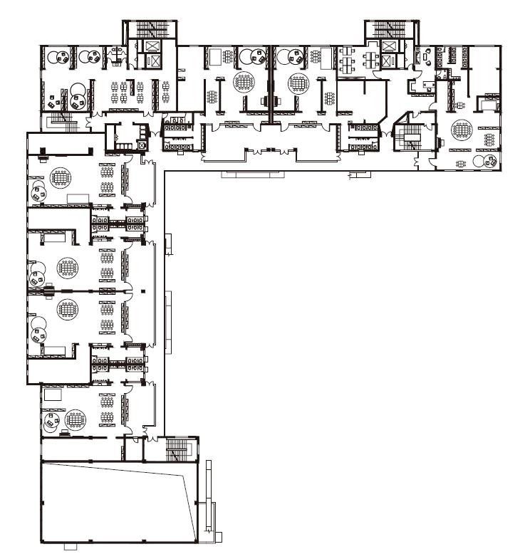
Removing the decorations and all the extra vertical lines on the L-shaped corridor, getting rid of the original shape, we cleaned the external facade of the original building as much as possible to make the building concise and stretching. At the same time, with five sets of slides leaning out of the facade, the outdoor space of each floor are connected, and children’s activity paths became undulating and has a happy flow. Pitching in from the outside to the inside, walls with high saturation color were used locally, which not only leapingly while continuously established the stereoscopic sense of the deep white space, but also guided the transformation order of the functional space. The feeling of purity was intended by us to be spread to the outdoor playground, eliminating the boundary between the internal building and the external space, which two parts ultimately extended and integrated with each other.

At this point, even though the entire site and community had been clearly defined, but the site was separated from the community, like floating above the skin of the later one. This was not yet what we’ve expected. Our vision is an urban space where children and the community learn from each other.

Accordingly, we gave up many large and small plots around the site and returned it to the community as its public space; and this made the walls thick to form a middle zone between the growth and development center and the outer city. In the spaces outside provided by the roundabout fence walls, the community will furnish with rest seats and sports equipment, and plant trees. Hence people can get closer to the internal playground and be surrounded and infected by the activities of the children. They can talk to the children and feel the purity in the eyes of children. At the same time, children can curiously watching the elderly in the outside playing chess and learn the skills, get used to normal greetings and exchanges with strangers, and even observe the small crafts and business practices of vendors who occasionally set up stalls outside.

The curved fence walls also influenced the developing of the interior activity spaces. In this way, layer by layer, from the outer city, the middle zone, the tortuous boundary, various types of internal venues, the outdoor platforms between the building and the playground, the outer porch, the front hall of each outdoor activity venue to the various indoor activities and functional spaces, a multi-dimensional experience is set for the children to perceive when crossing through the spaces and grow up in exchanges. Correspondingly, this child growth and development center is like a new form of park, organically embedded into the community, injecting new vitality into the community.

After opening to the public, the child growth and development center has been gradually referred to as “paradise without walls” by local people. Residents of the community are attracted to bring their children to play here. This park embedded in the community is gradually affecting and improving the whole community.

링바오 북쪽 지역에 있던 건물의 리노베이션을 통해 지어진 링바오 어린이센터는 지역의 아동 성장과 발달을 위한 어린이센터다. 기존 건물은 비좁은 공간으로 열악한 환경을 가지고 있었고, 남쪽과는 반대 방향을 향하고 있었다. 또한, 중국의 유명한 유아 교육기관에서 군(County) 단위의 시장 개발을 위해 처음 진행된 리노베이션 프로젝트로, 현지 시장의 보수적인 기대로 인해 자본의 제한도 있었다. 건축가는 이러한 상황과 환경 속에서도 아이들이 놀이와 인지, 탐구, 사고에 집중하여 진실된 감정과 행복을 얻을 수 있는 깨끗하고 실제적인 공간, 지역사회 전체와는 다른 작고 안전한 세상을 만들고자 했다.

L자형 복도에 있는 장식과 기둥, 기존의 프레임은 제거됐고, 간결하고 개방되어 보이도록 기존 건물의 형태가 다듬어졌다. 다섯 세트의 슬라이드가 파사드에 기대어 각 층의 야외 공간이 연결되고 아이들의 활동 경로에 높낮이가 생긴다. 외부에서 내부로 도드라진 채도가 높은 색상의 벽을 일부에 적용하여 깊숙한 여백의 입체감을 지속적으로 확립하면서도 기능적 공간의 변형을 이끌어낸다. 궁극적으로 내부와 외부가 서로 이어지며 통합된 건물은 공간 사이의 경계가 흐려지고 야외 놀이터로 확장된다.

이 관점에서 전체 대지와 커뮤니티가 명확하게 정의됐음에도 불구하고 대지는 지역 커뮤니티의 표면 위에 떠있는 것처럼 분리됐다. 링바오 어린이센터는 어린이와 지역사회가 서로 배우는 도시 공간이다. 어린이센터의 곳곳은 공공 공간으로 사용될 수 있도록 지역 커뮤니티에 반환됐고, 어린이센터와 도시 사이의 중간 영역을 형성한다. 울타리 벽에 의해 만들어진 외부 공간은 지역민들에게 휴식을 취할 수 있는 좌석, 스포츠 장비를 제공한다. 사람들은 내부 놀이터에 더 가까워지고 아이들의 활동에 둘러싸여 영향을 받는다. 동시에 아이들은 밖에서 체스를 두는 노인들을 호기심으로 보면서 기술을 배우고, 일상적인 인사와 낯선 사람과의 교류에 익숙해지며, 가끔씩 밖에 노점을 설치하는 상인의 작은 공예품과 상행위를 관찰할 수도 있다. 곡선형 울타리는 내부 공간에서도 드러나는데, 켜켜이 도시, 중간 구역, 구불구불한 경계, 다양한 유형의 내부 장소, 건물과 놀이터 사이의 야외 플랫폼, 외부 현관, 각 야외 활동 장소의 전면 홀에서 다양한 실내 활동과 기능적 공간을 통해 아이들이 공간을 가로 지르고 교류하며 성장할 때 아이들이 인지할 수 있는 다차원적 경험을 하도록 돕는다. 링바오 어린이센터는 새로운 형태의 공원이자, 공동체에 유기적으로 결합되어 지역사회에 새로운 활력을 불어넣는다.

대중에게 공개된 후, 지역 주민들은 어린이센터를 “벽 없는 낙원”으로 불렀다. 지역 사회 주민들은 아이들을 이곳에서 놀게 할 수 있다는 점에서 마음을 열었으며, 지역 커뮤니티에 포함된 이곳은 점차 전체 커뮤니티에 영향을 미치고 발전하고 있다.


Architect UNARCHITECTE
Location Lingbao, Henan, China
Gross floor Area 11,235.06m2
Completion 2020
Principal architect Zhang Hetian
Design team Zhang Hetian, Fan Yonggang, XuXuan, Wang Jinhua, Liu Qi, Zhang Jinxian, Meng Xiangtao, Zhang Yulong, Li Bin, Wang Shuang, Sun Jihua, Liu Jing
Collaborator Superstructure
Construction Jiangsu Xuanheng Construction Intelligentized Engineering Co., Ltd etc.
Client Yangguangyulu Group
Photographer Commune One
해당 프로젝트는 건축문화 2021년 3월호(Vol. 478)에 게재 되었습니다.
The project was published in the March, 2021 issue of the magazine(Vol. 478).
March 2021 : vol. 478
Contents: RECORDS THE EXPERIMENT TO FACE A REALITY IN AN INFINITE GRIDMAESTRO SOFA COMPETITION: NEWS / COMPETITION / BOOKS: SKETCH VILLA MAIREA, FINLAND / ASHWIN SWAMINATHAN : RECENT PROJECT ARIJUJIN / PROF. BEOMKWAN KIM(UNIV. OF ULSAN)
anc.masilwide.com
'Architecture Project > Education' 카테고리의 다른 글
| TESORO NURSERY SCHOOL (0) | 2021.05.27 |
|---|---|
| HANGZHOU PULE KINDERGARTEN YANGJIADUN BRANCH (0) | 2021.05.26 |
| TSUKUSHI NURSERY FORESTA KARANKORO (0) | 2021.05.24 |
| CAPSULE HOTEL AND BOOKSTOREIN VILLAGE QINGLONGWU (0) | 2021.05.21 |
| CAMERINO ACADEMY OF MUSIC (0) | 2021.04.07 |
마실와이드 | 등록번호 : 서울, 아03630 | 등록일자 : 2015년 03월 11일 | 마실와이드 | 발행ㆍ편집인 : 김명규 | 청소년보호책임자 : 최지희 | 발행소 : 서울시 마포구 월드컵로8길 45-8 1층 | 발행일자 : 매일



