
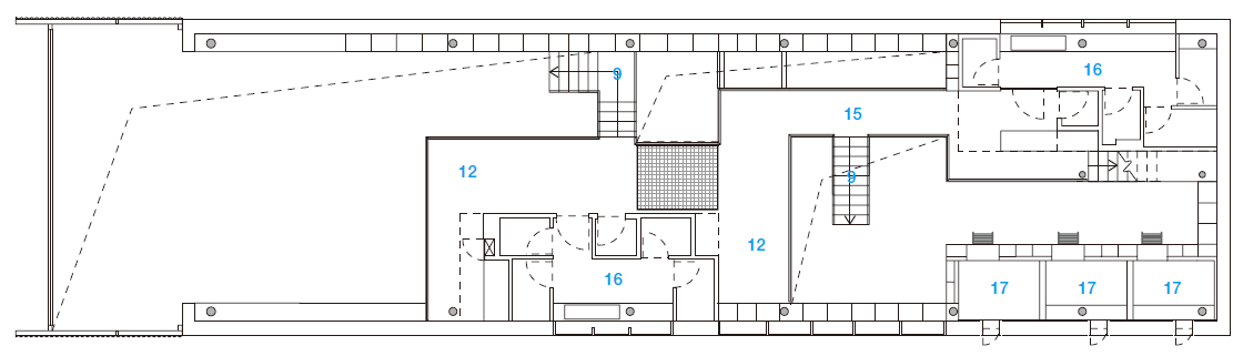
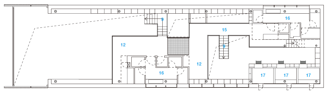
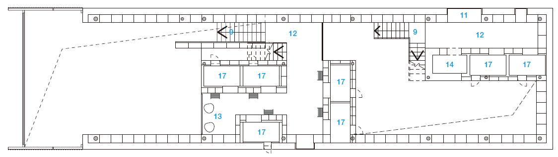
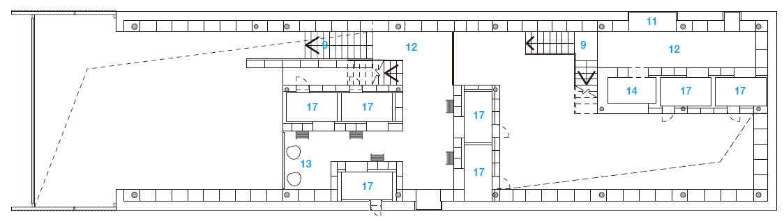
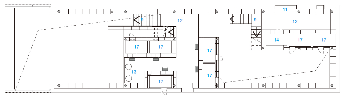
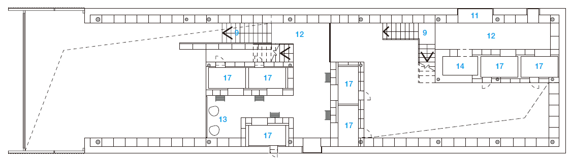
Hidden in the deep forests of Tonglu in Zhejiang province, Qinglongwu is an ancient village named after a stream passing through. The architect redesigned and regenerated this old building by inserting a capsule hotel that can accommodate 20 people, a community bookstore and library into the 7.2m2 high two-stories space. The biggest challenge to the architects, and the key to the design, is to ensure the privacy of the accommodation area while giving openness and continuity to the public areas within such a compact space.

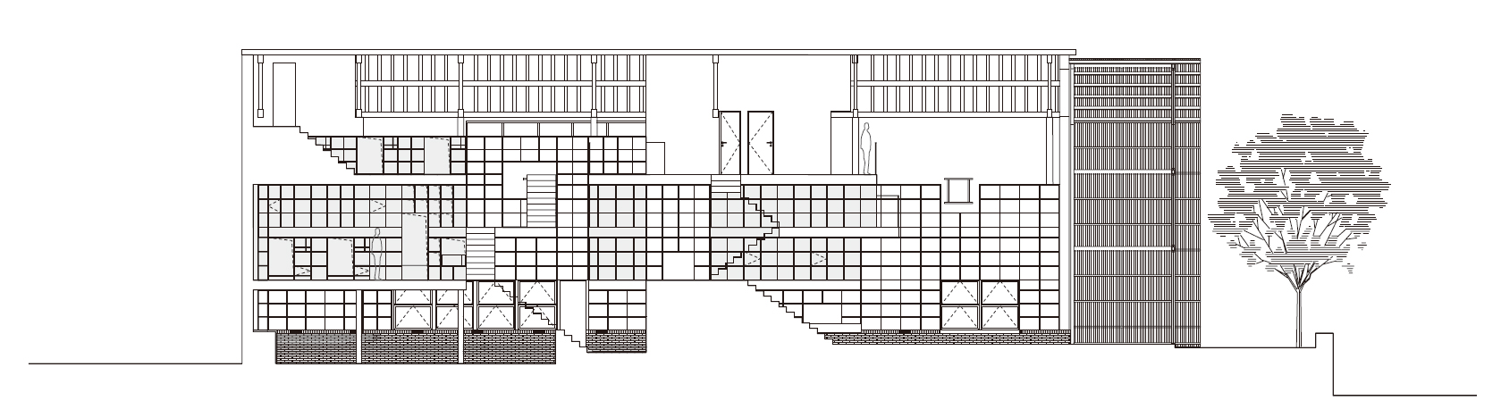
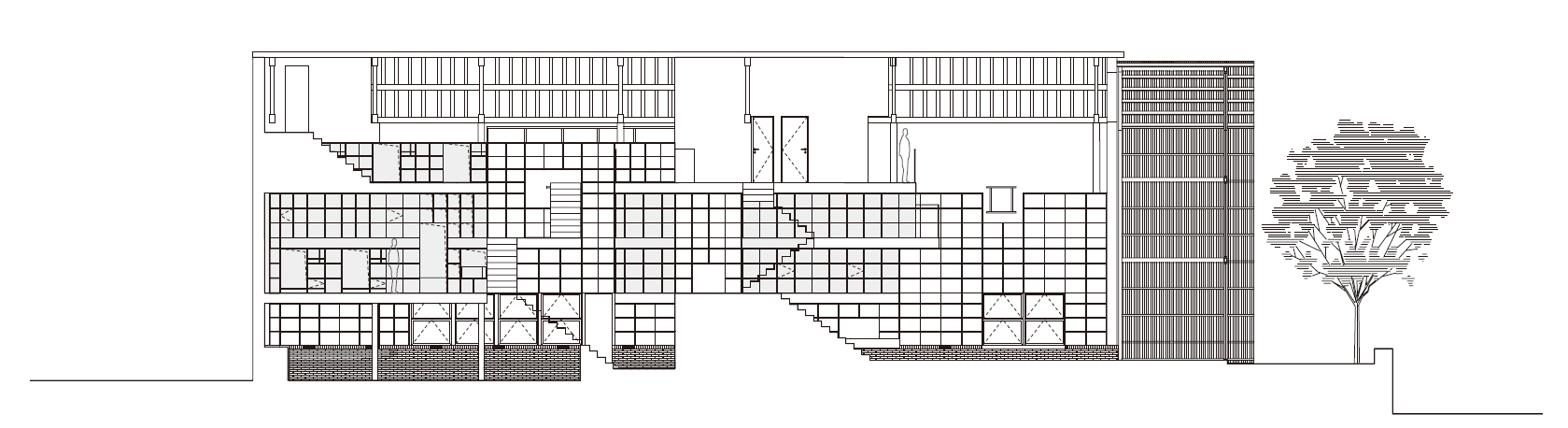
After removing the original floors and partition walls, the architect opened the ground floor for library and open spaces, placed two independent “floating” structure above the open spaces, which will be used separately for male and female guests. Instead of a regular floor height, the architect divided the floating mass by 1.35m, a height that can only allow people to sit or to lie low, then split and staggered the floor slabs to create an unconventional three-floor space with interesting perspectives.

At the same time, the staggering floor slabs formed a few “double-height” spaces in the accommodation areas, so the hotel guests can still find a place to stand and to walk through, it is also where people’s point of sight is above the floor height. The staggering platforms are intertwined with multiple layers of visual connections, sounds and eye contacts through the two masses, creating a space of floating senses.

The stairs, with only 9 steps for each section, formed a zigzagging route with quick turns, it is in fact quite similar to the paths in the mountains where moments of people’s meandering, ascending, stopping, reading, snooping and resting in the capsules are revealed from time to time. One cannot see the whole space when you are inside the space, but you will be able to capture unexpected views wherever you stop or turn back, to explore the fun of lost and found in this indoor “garden”.

Each of the male and female “buildings” is equipped with ten capsule rooms and one bathroom. The modular capsule rooms of uniformed size are hidden and enclosed by bookshelves, giving more privacy to the accommodation area. The planks of the bookshelf are made from local bamboo, people can still smell the freshness of the bamboo when they are inside. The window of each capsule room was designed to correspond exactly to a compartment of the bookshelf.

The exterior renovation is an extension as well as a reflection on the reorganization of the interior spaces. Based on the vertical programming of the capsule rooms, the architects made restrained openings on the exterior wall to maintain the original simplicity of the building. Given the amazing natural landscape at the east end of the building, the architect cut the whole gable wall on this side and embedded a transparent structure of wooden frames and corrugated polycarbonate panels, introducing the green of the mountains and forests into the interior. The openings in the ceiling also brings rich natural lights into the interior spaces. At twilight, the whole building is illuminated by the light from the indoor, and the building itself becomes a lighthouse, offering a slice of warmth to the calmness of the night.

저장성 지방의 깊은 숲 속에 있는 칭룽우(Qinglongwu) 마을은 개울의 이름을 딴 마을로, 오래 전부터 있던 곳이다. 칭롱우 마을의 캡슐 호텔과 작은 도서관은 2층 규모의 20명을 수용할 수 있는 공간으로, 오래된 건물의 리모델링으로 지어졌다. 이 리모델링 프로젝트는 협소한 공간 안에서 개방된 공용공간의 특성을 가지면서도, 오래 전부터 이 공간에 대한 기억이 지속되고 있음을 느끼게 한다.

도서관의 열린 공간을 위해 기존에 있던 바닥과 칸막이 벽은 제거됐고, 1층은 개방된 공간에 두 개의 독립적인 “플로팅” 방이 생겨났다. 이곳은 남녀 투숙객을 위해 별도로 사용된다. 이 떠있는 방은 일반적인 바닥 높이 대신에 사람들이 앉거나 누울 수 있는 높이인 1.35m로 계획됐으며 매스가 엇갈려 배치됨으로써 독특하고 흥미로운 관점의 공간을 만들어낸다. 엇갈린 바닥은 다양한 “두 배 높이” 공간도 만들어 투숙객들이 서 있거나 걷기도 하면서, 높은 곳에서 내려다볼 수 있도록 만든다. 다양한 높이의 작은 공간들은 공간마다 시각적인 연결을 돕고, 누군가의 소리를 듣고, 눈을 마주칠 수 있는 감각적인 공간이다. 각 섹션에 있는 아홉 개의 계단과 급회전하는 지그재그 경로는 사람들이 구불구불한 길을 오르고 멈추며, 읽고 기웃거리며 쉬는 순간이 있다는 점에서 때때로 산을 오르는 것 같이 보이기도 한다. 공간 안에 있을 때는 전체 공간을 볼 수 없지만 멈추거나 되돌아갈 때마다 예상치 못한 풍경을 보게 되고 실내 “정원”에서 잃어버린 것을 찾는 즐거움을 탐험할 수 있다.

남녀 숙소에는 각각 10개의 캡슐 룸과 1개의 공동욕실이 있다. 균일한 크기의 모듈형 캡슐 룸은 책장으로 둘러싸여 숨겨져 있어, 프라이버시를 보호한다. 책장의 넓은 판은 현지의 대나무로 만들어졌는데, 사람들은 실내에서 대나무 고유의 느낌을 고스란히 느낄 수 있다. 각 캡슐 룸의 창은 책장의 구획과 일치하게 설계됐다.

외부 리노베이션은 내부 공간 재구성의 연장선이다. 캡슐 룸은 외부 벽에 제한적인 창으로 건물의 단순함을 유지한다. 박공지붕 공간의 일부는 주름진 폴리카보네이트 패널의 투명한 구조가 설치됐는데, 이는 건물 동쪽 끝의 자연 경관을 감상할 수 있도록 배려한 건축가의 섬세한 손길이 담겨 있다.

산과 숲이 주는 녹색을 내부로 끌어들이며, 천창을 통해 내부 공간에 스미는 풍부한 자연광은 이 공간에서만 가질 수 있는 특별한 경험을 남기도록 만든다. 해질 무렵에는 실내에서 새어 나는 빛으로 건물 자체가 곧 등대가 되어 밤의 고요함과 따뜻함을 전달한다.













Architect Atelier tao+c
Location Tonglu, Hangzhou, Zhejiang, China
Gross floor area 232m2
Completion 2019. 6
Design team Tao Liu, Chunyan Cai, Guoxiong Liu, Lihui Han
Structure, MEP consultant Shanghai Fengyuzhu Culture Technology Co., Ltd.
Client Fang Yu Kong Cultural & Creative Resort Complex
Photographer Su Sheng Liang
해당 프로젝트는 건축문화 2021년 3월호(Vol. 478)에 게재 되었습니다.
The project was published in the March, 2021 issue of the magazine(Vol. 478).
March 2021 : vol. 478
Contents: RECORDS THE EXPERIMENT TO FACE A REALITY IN AN INFINITE GRIDMAESTRO SOFA COMPETITION: NEWS / COMPETITION / BOOKS: SKETCH VILLA MAIREA, FINLAND / ASHWIN SWAMINATHAN : RECENT PROJECT ARIJUJIN / PROF. BEOMKWAN KIM(UNIV. OF ULSAN)
anc.masilwide.com
'Architecture Project > Education' 카테고리의 다른 글
| LINGBAO CHILDREN’S CENTER (0) | 2021.05.25 |
|---|---|
| TSUKUSHI NURSERY FORESTA KARANKORO (0) | 2021.05.24 |
| CAMERINO ACADEMY OF MUSIC (0) | 2021.04.07 |
| HELSINKI CENTRALLIBRARY OODI (0) | 2021.03.26 |
| DEICHMAN LIBRARYIN IN OSLO (0) | 2021.03.25 |
마실와이드 | 등록번호 : 서울, 아03630 | 등록일자 : 2015년 03월 11일 | 마실와이드 | 발행ㆍ편집인 : 김명규 | 청소년보호책임자 : 최지희 | 발행소 : 서울시 마포구 월드컵로8길 45-8 1층 | 발행일자 : 매일



