
Since 1978, in harmony with the surrounding environment and neighborhood history, Tsukushi Nursery School has undergone constant remodeling and expansion.

The nursery is located in a peaceful landscape, surrounded by old country roads, water channels, farmlands, and some houses near the foot of a mountain. On the nursery premises there are several buildings - the main nursery, a multipurpose space, a shoes storage, and so on - that are all located next to each other without much consideration for how they interact and harmonize with one another, yet, paradoxically, seem to have a good balance. The combination of older and newer buildings - which is uncommon at other schools that are usually “scrap and build” - can create a comforting environment. For this project, instead of designing something similar to the remaining buildings on the premises, I was inspired to design a gradual unfolding master plan.

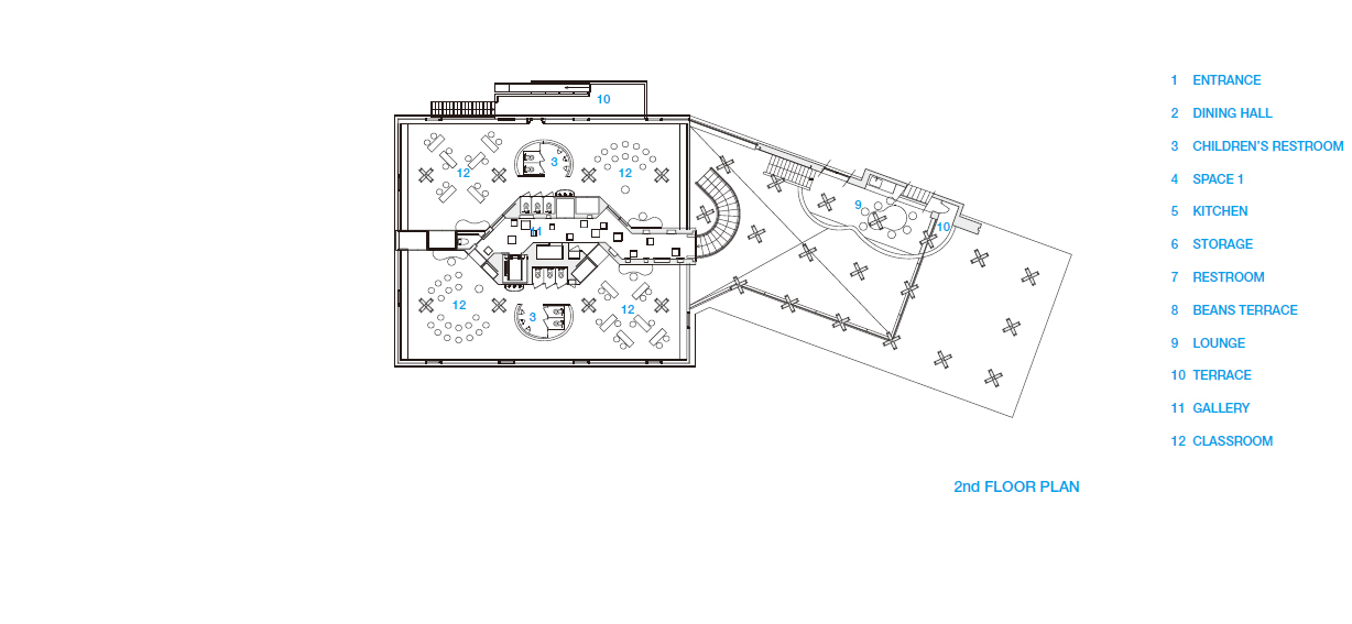
Within the village-esque nursery that has been built over the years, stories have continued to be woven, and will create a more dynamic and interactive relationship with the neighborhood and its surroundings. This project was initiated after an increase in the number of toddlers at the nursery and the need to replace the aging equipment in the old dining hall. Not only did it require me to design a dining hall, but also challenged me to recapture the essential features of an eating space. Therefore, instead of designing an ordinary cafeteria where people gather simply to eat, I aimed to create “an interactive environment” where parents and neighbors get together for lunch, birthday parties and other events. The building consists of three spaces: a dining hall for 40 toddlers, parents and staff; two classrooms for 4 and 5years old; and a lounge for the staff to relax after work.

For the dining hall, I deliberately avoided designing an open empty space that could be used in multiple ways. Rather, I added structure and order through the use of columns and beams, which add architectural strength. The details of the design include the arrangement of cross-shaped beams and columns that widen towards the ceiling. They are arranged in a grid layout at 3.5m intervals and rotated 45 degrees.

Through the use of horizontal and vertical visual anchors a gradual sense of depth is created, which generates a perception of physical distance. Through the use of furniture and landscape design, I created a seamless and gradual transition of the interior spaces and outside, which engenders a flowing forest-esque environment where one can enjoy wandering around.

In addition, since a toddler versus an adult perceive space differently, there is a distinct way each understands and interacts with the space. Within this structured, yet spontaneous and dynamic environment, I aimed to create a unique space where toddlers can cultivate their imagination and curiosity in a special way.

츠쿠시 어린이집은 1978년부터 주변 환경과 동네 역사가 조화를 이루며 수차례 리모델링과 증축됐다. 이 어린이집은 오래된 시골길, 수로, 농경지, 그리고 산기슭 근처의 몇몇 집들로 둘러싸인 평화로운 풍경 속에 위치해 있다. 어린이집 시설에는 보육원, 다목적 공간, 신발 보관소 등 여러 동의 건물이 있는데, 이 건물들은 서로 어떻게 상호작용하고 조화를 이루는지 고려하지 않은 채 서로 옆에 위치해 있다. 이 프로젝트는 보통 “허물어지고 지어지는” 여타 보육시설과 달리 오래된 건물과 새로운 건물의 조합은 편안한 환경을 조성한다.

이 프로젝트는 부지에 남아 있는 건물들과 비슷하게 디자인하는 대신에,점진적으로 확장되는 마스터플랜에서 영감을 받았다. 수년간 조성된 마을과 같은 어린이집은 그 안에서 스토리가 짜임새 있게 이어졌으며, 동네, 주변과 더욱 역동적이고 상호 교류적인 관계를 만들어갈 예정이다.


이 사업은 보육원 영유아 수가 증가하고 낡은 식당의 노후화된 장비 교체필요성이 제기되면서 시작됐다. 식당 설계뿐만 아니라 식사 공간의 본질적인 특징을 되찾는 것도 과제였다. 따라서 단순히 식사하기 위해 모이는 평범한 카페테리아를 설계하는 대신 부모와 이웃이 함께 모여 점심, 생일파티 등을 하는 ‘상호적인 환경’을 조성하는 것을 목표로 했다. 이 건물은 유아, 부모, 직원 40명을 위한 식당, 4세와 5세를 위한 2개의 교실, 퇴근 후 직원들이 쉴 수 있는 휴게실 등 3개의 공간으로 구성되어 있다.

건축가는 식당을 위해 여러 가지 방법으로 사용할 수 있는 열린 빈 공간을 디자인하는 것을 의도적으로 피했다. 오히려 건축 강도를 더하는 기둥과 보를 이용해 구조와 질서를 더했다. 이렇게 식당은 천장을 향해 넓어지는 십자형 보와 기둥이 배치됐다. 그것들은 3.5m 간격으로 격자 배치로 배열되어 있고 45도 회전한다. 수평 및 수직 앵커의 사용을 통해 점진적인 깊이감이 생성되며 물리적 거리에 대한 인식을 생성한다. 가구와 조경디자인의 활용을 통해 내부 공간과 외부로의 원활하고 점진적인 전환을 만들어, 자유롭게 돌아다닐 수 있는 숲 속 같은 환경을 조성한다.

게다가 유아와 성인은 공간을 다르게 인식하기 때문에, 각각이 공간을 이해하고 상호작용하는 뚜렷한 방법이 있다. 이러한 구조적이고 역동적인 환경 속에서 아이들이 특별한 방법으로 상상력과 호기심을 기를 수 있는 독특한 공간을 만드는 것을 목표로 했다. 내부는 페인트 칠한 석고보드로 벽과 천장을 마감하고 오텍스(Autex) 패널은 교실과 직원 사무실 전체를 편안한 분위기로 만든다. 사물함은 전체적인 건축 디자인 및 건물의 형태와 어울리도록 디자인되어 있다. 교실들은 각 연령 그룹마다 필요한 조건들을 충족하면서 친밀한 학습환경을 아이들에게 제공한다.







Architect UID
Location Fukuyama, Hiroshima, Japan
Program Nursery school(Dining hall)
Site area 923.57m2
Building area 545.61m2
Gross floor area 782.05m2
Building scope 2F
Building to land ratio 59.08%
Floor area ratio 83.30%
Design period 2017. 9 - 2019. 8
Construction period 2019. 9 - 2020. 3
Completion 2020. 3
Principal architect Keisuke Maeda
Design team (Toshiya Ogino Landscape Design)Toshiya Ogino, landscape
Structural engineer (Konishi Structural Engineers)Yasutaka Konishi
Construction DAIWA CONSTRUCTION CO., LTD.
Client SOCIAL WELFARE CORPORATION TSUKUSHI NURSERY
Photographer Koji Fujii / TOREAL
해당 프로젝트는 건축문화 2021년 3월호(Vol. 478)에 게재 되었습니다.
The project was published in the March, 2021 issue of the magazine(Vol. 478).
March 2021 : vol. 478
Contents: RECORDS THE EXPERIMENT TO FACE A REALITY IN AN INFINITE GRIDMAESTRO SOFA COMPETITION: NEWS / COMPETITION / BOOKS: SKETCH VILLA MAIREA, FINLAND / ASHWIN SWAMINATHAN : RECENT PROJECT ARIJUJIN / PROF. BEOMKWAN KIM(UNIV. OF ULSAN)
anc.masilwide.com
'Architecture Project > Education' 카테고리의 다른 글
| HANGZHOU PULE KINDERGARTEN YANGJIADUN BRANCH (0) | 2021.05.26 |
|---|---|
| LINGBAO CHILDREN’S CENTER (0) | 2021.05.25 |
| CAPSULE HOTEL AND BOOKSTOREIN VILLAGE QINGLONGWU (0) | 2021.05.21 |
| CAMERINO ACADEMY OF MUSIC (0) | 2021.04.07 |
| HELSINKI CENTRALLIBRARY OODI (0) | 2021.03.26 |
마실와이드 | 등록번호 : 서울, 아03630 | 등록일자 : 2015년 03월 11일 | 마실와이드 | 발행ㆍ편집인 : 김명규 | 청소년보호책임자 : 최지희 | 발행소 : 서울시 마포구 월드컵로8길 45-8 1층 | 발행일자 : 매일



