
Located on a narrow lot in the Villeray district of Montreal, the new home signed ISSADESIGN offers 2 units of 1845 square feet. Designed to blend into the urban landscape, the house is spread over four floors on the neighborhood scale, with a combination of rich and contrasting materials that predominate on the building's façade.

As soon as we enter, we are greeted by the staircase. This vertical element acts as the centerpiece of the house and as a landmark while connecting the various floors. "The idea behind this architectural element was to make a slight nod to the tree in the forest. Inspired by the tree trunk, the staircase is framed with slats and this on the full height. At the very top, the end of the promenade, a skylight illuminates the space and offers interesting plays of light and shadow."

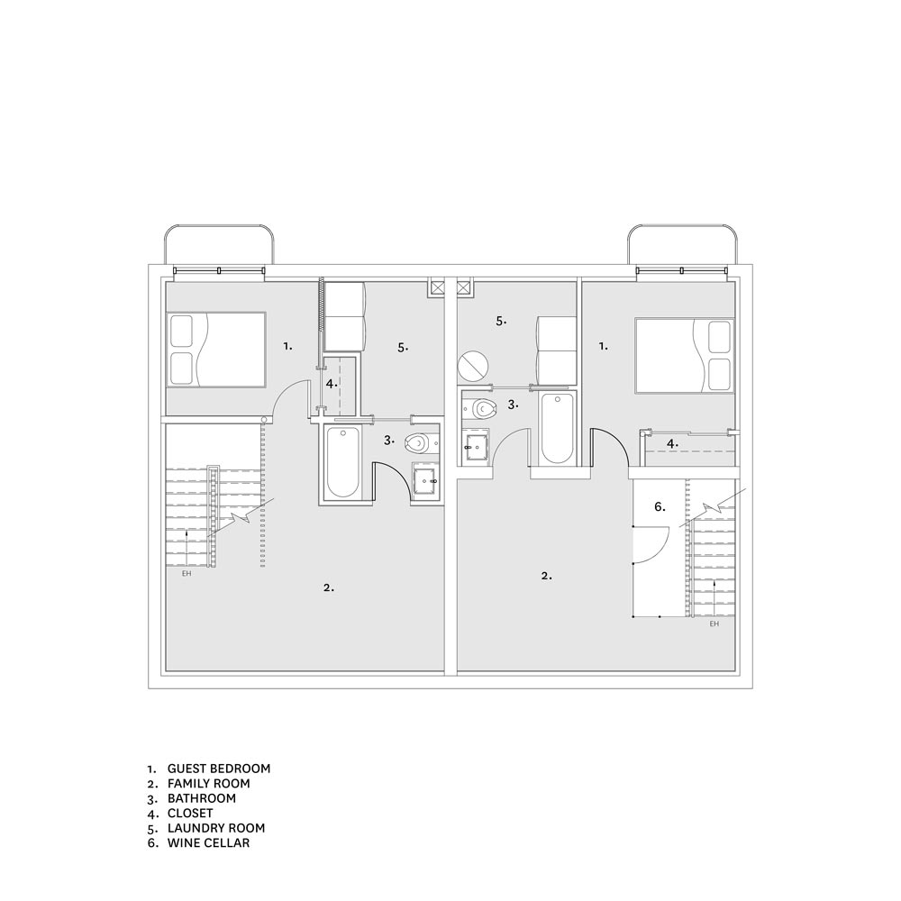
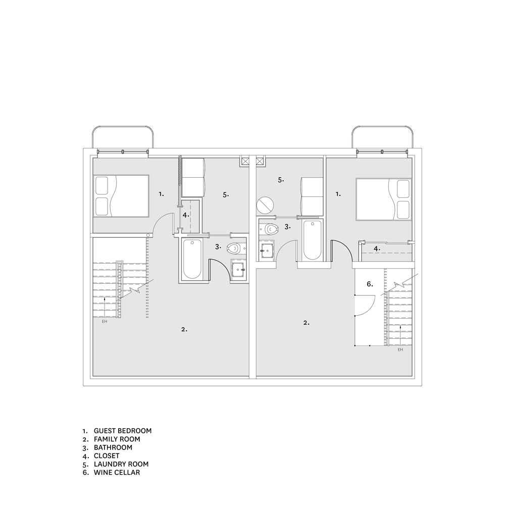
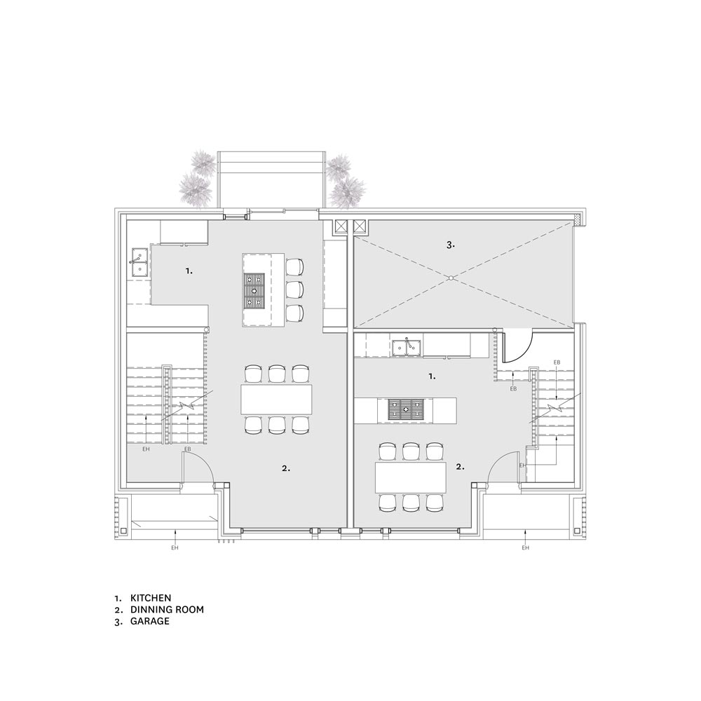
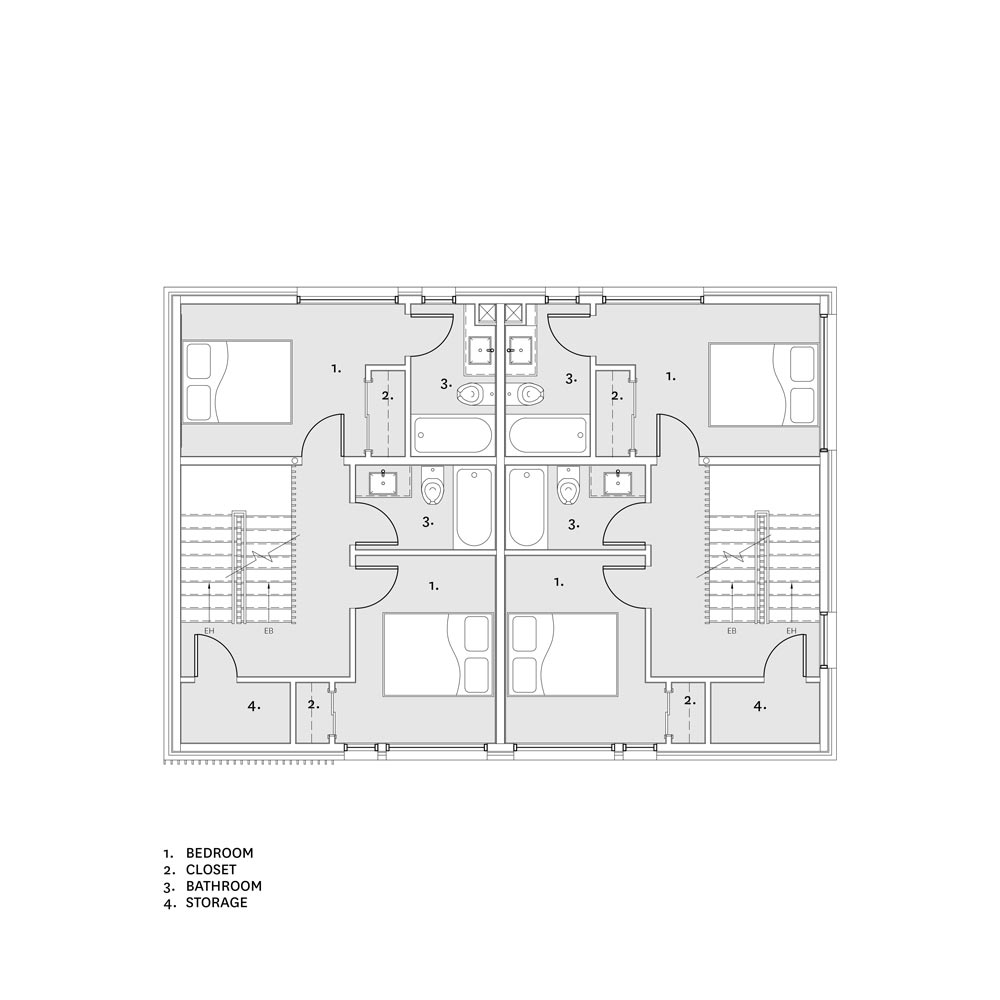
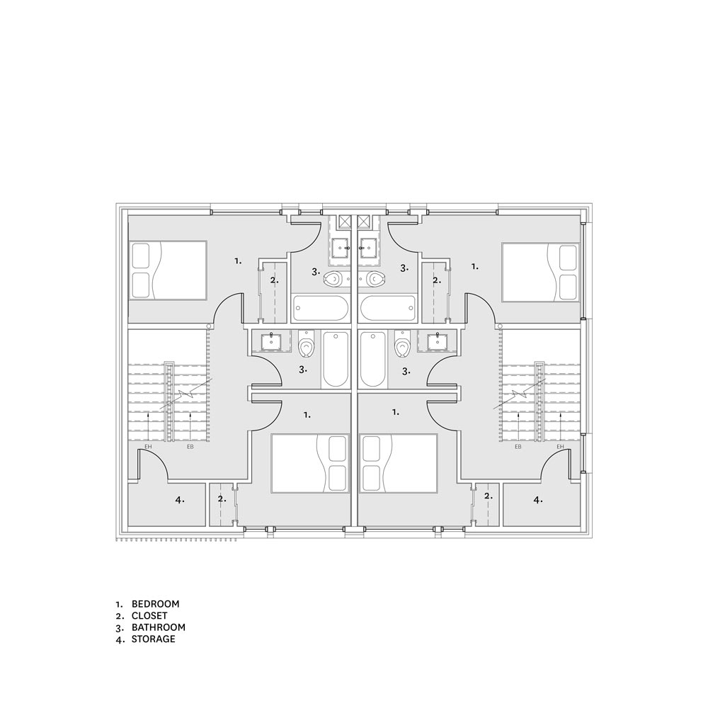
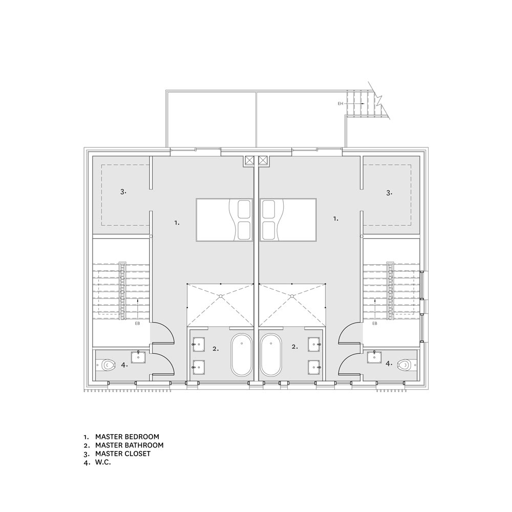
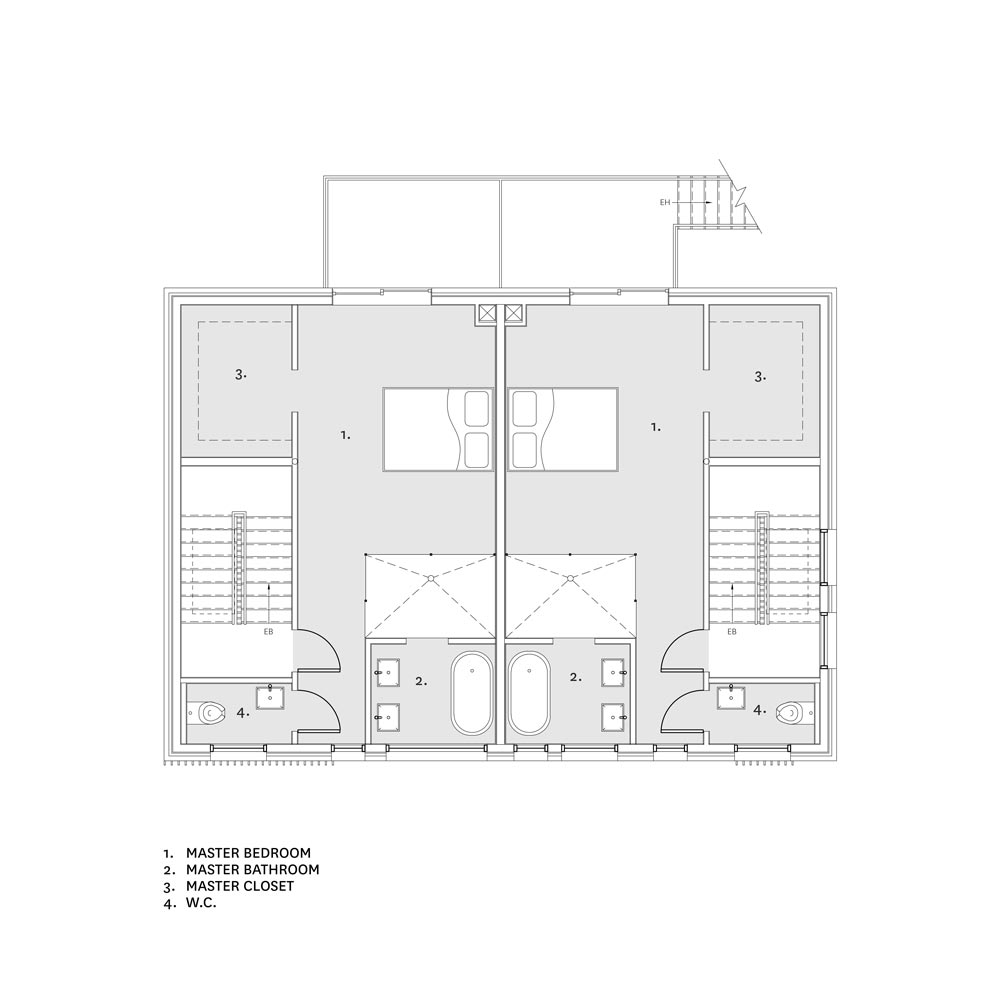
Family living areas occupy the first floor. For its part, the basement offers a living area as well as an additional bedroom and a functional laundry room. The children's wing is located on the 2nd level while the upper level is dedicated to the master suite where one has access to a roof terrace, ensuring private outdoor relaxation. A glassed-in bathroom integrated into the bedroom is also a focal point.

The materiality proposed for this co-ownership is intended to be contrasting and elegant. The objective was to play with black and white knowing that these shades are timeless and give character to any place when combined. The herringbone wood flooring adds a dose of warmth and elegance to this house that is just waiting to receive its future inhabitants.

이 주택은 몬트리올 빌레이 지구의 좁은 부지에 위치하며, 1,845 평방 피트의 2개 유닛으로 구성되어 있다. 도시 경관과 어우러지도록 설계한 이 집은 파사드를 구성하는 풍성하고 대조적인 재료들이 어우러지며 주변 4층에 걸쳐 펼쳐져 있다.

건물에 들어서면 계단을 먼저 마주한다. 이 수직적 요소는 주택의 중심축이자 다양한 층을 연결하는 랜드마크 역할을 한다. 이 건축 요소의 이면에 위치한 아이디어는 숲의 나무에 동조하는 것에 있다. 나무줄기에서 영감을 얻은 계단은 슬랫이 전체를 구성하며, 끝에는 하늘의 빛이 공간을 비추고 빛과 그림자의 재미있는 놀이를 제공한다.

가족생활 공간은 1층에 있다. 지하실과 거실 공간, 추가적인 침실 및 세탁실이 있다. 어린이용 침실은 2층에 있고 그 위에는 옥상 테라스를 이용할 수 있는 안방이 있어 개인을 위한 야외 휴식을 제공한다. 침실에 포함된 유리로 된 욕실도 주요한 부분이다.

이 공동 소유의 공간을 위해 제안된 디자인 유형의 목적은 대조적이면서 우아하다. 디자인의 목적은 시대를 초월한 흑백의 대조와 결합이 어떤 장소에도 특징을 부여할 수 있기 때문이다. 헤링본 나무 바닥은 향후 주인이 될 사람들에게 따뜻함과 우아함을 더해준다.







Architects ISSADESIGN, URAStudio
Location Villeray district, Montréal, Qc, Canada
Program double family house
Building area 343m²
Completion 2021
Design team ISSADESIGN, design de l'environnement intégré
Materials Italian marble, oiled white oak, quartz, metal.
Photographer David Boyer
'Architecture Project > Multifamily' 카테고리의 다른 글
| Housing I Park (0) | 2021.06.28 |
|---|---|
| The Brother's Residence (0) | 2021.04.30 |
| PHILOS 503 (0) | 2021.03.03 |
| N781 (0) | 2021.03.02 |
| MIXED USE IN MAGOK (0) | 2021.02.01 |
마실와이드 | 등록번호 : 서울, 아03630 | 등록일자 : 2015년 03월 11일 | 마실와이드 | 발행ㆍ편집인 : 김명규 | 청소년보호책임자 : 최지희 | 발행소 : 서울시 마포구 월드컵로8길 45-8 1층 | 발행일자 : 매일



