
Philos 503, the project name made by combining philos, a word meaning friend, and 503, the site’s address number, means a home for people with different thoughts and attitudes. It’s a profitable development project which seeks a maximum return like most rental housing projects, however it started with an attempt to find a way to promote diversity and harmony by getting away from a stereotyped scenery characterized by modular floor plans and functionalistic windows.

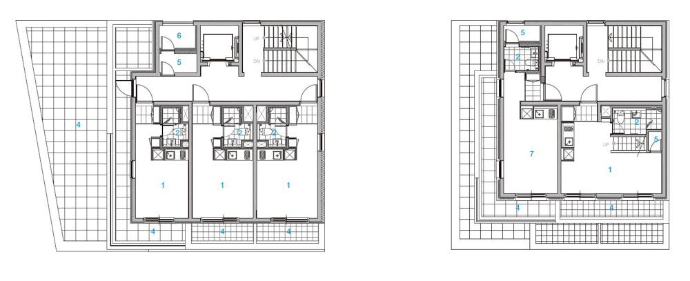
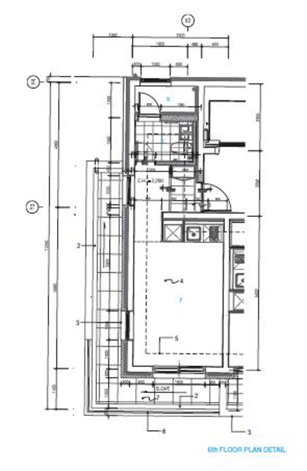
From among different options studied through various simulations to develop a maximum profit model within the boundaries of the law, a one-room type urban housing model is selected as a program for the project. The site is located at a sloped three-way intersection, having a triangular shaped park in front. Under given circumstances and conditions defined by the park view on the west side, daylight boundary lines on the north, slopes on the east and the issue of profitability, the architect tried to lead the life of residents to a better environment and bring changes in the building-packed street scene.

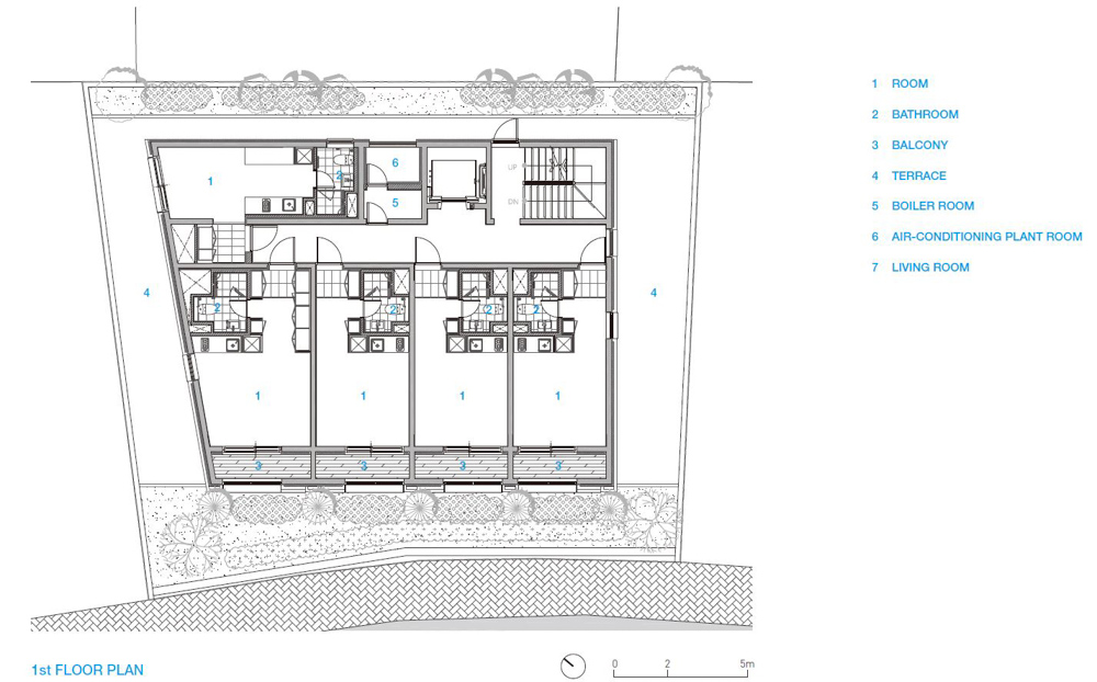
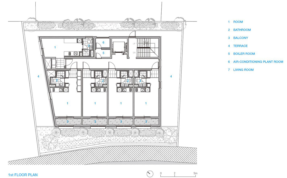
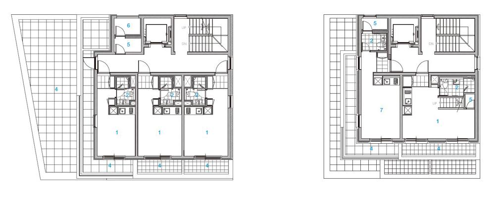
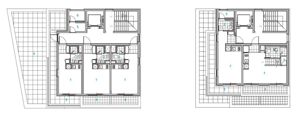
As for the facade which clearly shows itself through the park’s open space, the surface of pilotis below makes a continuous flow along the site perimeter to emphasize the volume of the site and shape the silhouette of the streets. As for the open space of the lower floor balconies, the changes and repetitions of its orientation and its depth turn into a void that gives a rhythmical face to the facade. Optimized for natural lighting, various types of terraces use different materials for each section of horizontally fragmented masses so add value in terms of formative aesthetics.

The look of each facade directly affects the design of living space. windows with different orientations and sizes and slightly different views in spaces of the same size will represent the differences and uniqueness of residents with different lifestyles each and every moment.

리드미컬한 매스의 변화로 다양한 삶을 제공하는 도시형 생활주택, 필로스 503
‘필로스 503’은 친구라는 의미의 Philos에 대지의 주소지인 503을 합성한 이름으로, 각기 다른 생각과 온도를 지닌 사람들을 위한 집이다. 대다수의 임대주택과 마찬가지로 최대 수익률을 고려해야 하는 수익형 건축 프로젝트지만, 모듈화된 공간과 기능적인 창호들이 주는 일률적인 풍경에서 벗어나 다양성이 존중되고 공존하는 방식을 찾기 위한 시도가 이번 프로젝트의 출발점이었다. 합법적인 틀 안에서 최대 수익 구조를 찾기 위한 다양한 시뮬레이션을 통해 검토된 대안들 중 원룸들이 배치된 도시형 생활주택이다.

대지는 삼각형 형태의 공원을 앞에 두고 삼거리 경사지에 위치한다. 서쪽의 공원 조망권, 북쪽의 일조사선, 동쪽의 경사지, 그리고 수익성이라는 주어진 상황과 조건 안에서 거주자들의 삶을 개선된 방향으로 제시하고 건물로 밀집된 가로풍경에 변화를 준다. 오픈된 공원을 통해서 입면이 그대로 보이는 파사드는 대지의 형태를 따라 하부 필로티의 벽면이 연속적으로 이어져 대지의 양감을 표출하고 거리의 실루엣을 정리해준다.

저층부 발코니의 오픈 공간은 열리는 방향의 변화와 반복, 그리고 깊이로 인한 음각이 더해져 리드미컬한 입면의 표정을 만든다. 일조와 채광에 의해 형성된 다양한 테라스는 수평 분절된 매스마다 재료를 분리해 조형적인 요소를 더한다. 입면의 표정은 거주 공간에 그대로 반영된다. 동일한 크기의 공간 안에 동일하지 않은 창호의 방향과 크기, 조금씩 다른 뷰가 거주자들의 다양한 삶과 개성을 대변할 것이다.






Architects WIZSCALE ARCHITECTS
Location Gangnamchodeung-gil, Dongjak-gu, Seoul, Republic of Korea
Site area 402.30m2
Building area 183.99m2
Gross floor area 1,132.00m2
Building scope B1, 6F
Building to land ratio 45.74%
Floor area ratio 199.36%
Design period 2017. 6 - 12
Construction period 2018. 7 - 2019. 8
Completion 2019. 8
Principal architect Sunkwang Kim, Younguk Jeon
Project architect Seongmin Joo
Photographer Distinto
해당 프로젝트는 건축문화 2021년 1월호(Vol. 476)에 게재 되었습니다.
The project was published in the January, 2021 issue of the magazine(Vol. 476).
January 2021 : vol. 476
Contents : RECORDS MMCA OPENS THE EXHIBITION: UNITY POINT OUT THE INTERACTION FOLLOWING A VISUALIZATION OF REALISTIC SPACE : NEWS / COMPETITION / BOOKS : SKETCH DOUGLAS HOUSE / ASHWIN SWAMINATHAN :..
anc.masilwide.com
'Architecture Project > Multifamily' 카테고리의 다른 글
| The Brother's Residence (0) | 2021.04.30 |
|---|---|
| Gounod Residence (0) | 2021.04.22 |
| N781 (0) | 2021.03.02 |
| MIXED USE IN MAGOK (0) | 2021.02.01 |
| LE CSCR (0) | 2021.01.06 |
마실와이드 | 등록번호 : 서울, 아03630 | 등록일자 : 2015년 03월 11일 | 마실와이드 | 발행ㆍ편집인 : 김명규 | 청소년보호책임자 : 최지희 | 발행소 : 서울시 마포구 월드컵로8길 45-8 1층 | 발행일자 : 매일


