
The recent flow, the flagship stores of large companies begin to be built arount Dosan Park, has followed Apgujeong and Nonhyeon-dong. Most of the demand to visit Nonhyeon-dong to get an office is for studios, advertisements and fashion, which are small with full of identity. Those business want to join the flow with unusual space. The building owner, who had a good understanding of the trend, talked about the only requirements during the first meeting. "Create the space for creative ideas."

What is the space for creative ideas? Creative ideas often encounter unexpected situations. Sometimes they come out of a chatter with their colleagues, or they come out during tea time, contemplating alone. It appears in a non-office space, not in an office space for work. Non-office space in a typical comfiguration is usually outer space, namely the rooftop of a building or the lobby on the first floor. However, the rooftop has long been the exclusive property of smokers, and the outside of the lobby is somewhat cluttered to go out for a short stroll. The building with small different companies coming in each floors are even more difficult to see as an non-office space for creative ideas.

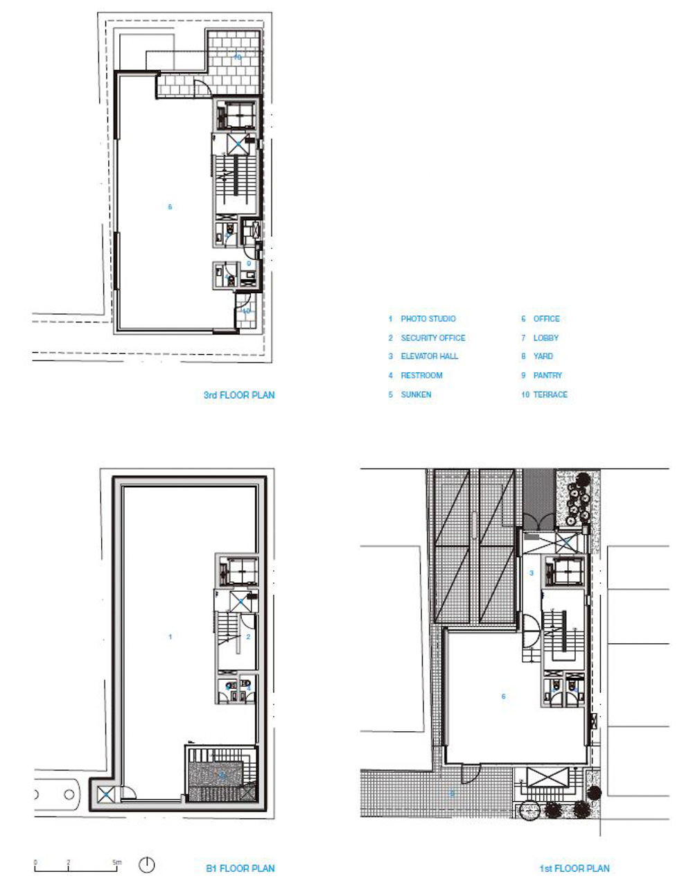
We planed the non-office space as an external space rather than an internal space of a building, which has size limitations. However, unlike the general composition, the design focus was th plan terraces for all floors in various sizes and configurations. By the surrounding cultureal contents, those who visit N781 will find a space that conforms to their own identity or a space that can express their individuality. To accommodate diverse individuality, we set up different spatial plans for all floors.

Considering the long land shape in the north and south, the two layers of heavy and long mass were divided into two layers, all of which were applied differently. The terrace, which naturally forms at the cross section of the mass, forms a warking environment that blends with the interior space in various ways depending on the height, width, length, and plant box composition. The horizontal windows are applied in various ways depending on the conditions of each floor th ensure sufficient lighting at the soma time as protecting privacy. The north lobby, the main entrance of the building, makes a vertical sense of openness to the ceiling of the second floor th form the maximum sense of space with the minimim area. And the terrace of the second and third floors forms a spatial entry space.

Aiming for studio demand, the basement floor draws natural light through into deep place by the south sunken with outer stairs, and various scenes are created by cores, large spaces with high ceilings. Rooftop terrace forms a visually open space in high-density urban centers, and can be used with variety through floor patterns and landscaping plans.

창의적인 아이디어를 떠오르게 만드는 엇갈려 쌓인 공간, N781
도산공원 주변은 대형 기업들의 플래그십 스토어와 다양한 문화 콘텐츠들이 유입되는 곳이다. 최근 사무실을 얻기 위해 강남구 논형동을 찾는 수요는 대부분 스튜디오, 광고, 패션 등 개성 넘치는 소규모 사업가들로, 그들이 원하는 공간은 일반적이지 않다. 그런 시대흐름과 분위기를 잘 이해하고 있던 건축주의 유일한 요구사항은 창의적인 아이디어가 떠오를 수 있는 공간을 설계해달라는 것이었다.

건축가는 동료들과 가볍게 나누는 수다 속에서 나오는, 티타임을 갖으며 홀로 사색하며 얻을 수 있는 창의적 아이디어를 위한 공간을 설계했다. 단순히 작업을 위한 사무공간이 아닌 사무 외적인 공간에서 나타나도록 만든 것이다. 일반적인 구성의 사무실에서 사무 외적인 공간은 보통 외부공간, 즉 건물 옥상 또는 1층 로비 밖인데 옥상은 흡연자들의 전유물이 된지 오래고 1층 로비 외부는 잠시 바람 쐬러 나가기에는 어수선한 환경이다. 따라서 층별로 다른 회사들이 들어올 소규모 사업장들을 고려하여, 창의적인 아이디어를 위한 사무 외적인 공간을 조성했다.

N781의 사무 외적인 공간은 규모의 제한을 받는 건물 내부 공간보다는 외부 공간으로 계획되어 있는데, 일반적인 구성과 달리 모든 층에 각각 다양한 크기와 구성으로 외부 테라스가 계획되어 있다. 그와 더불어 주변 문화 콘텐츠를 고려하여 N781을 찾는 이들을 위해 그들만의 톡톡 튀는 개성(Identity)에 부합하는 공간과 그 개성을 표현할 수 있는 공간도 마련되어 있어 다양한 개성을 수용하며, 모든 층의 공간계획이 조금씩 다르다는 것도 특징 중 하나다.

남북으로 긴 대지 형상은 묵직하고 긴 매스들을 남북으로 1,2개 층씩 엇갈려 쌓는 구성으로 엇갈리는 방식을 모두 다르게 적용했다. 매스가 엇갈리는 부분에서 자연스럽게 형성되는 테라스는 각각의 높이, 넓이, 길이, 플랜트박스 구성 등에 따라 다양하게 내부공간과 어우러지는 업무환경을 형성하며, 사무실 내부의 가로로 긴 창은 각 층별 여건에 따라 다양하게 적용하여 사생활 보호와 동시에 충분한 채광을 확보하고 넓은 공간감을 제공한다.

건물의 주 출입구인 북측 로비는 최소한의 면적으로 최대한의 공간감을 형성하기 위해 2층 천장까지 수직적인 개방감을 형성하고 2,3층 테라스 공간과 함께 입체적인 진입공간을 형성한다. 스튜디오 수요를 노린 지하 1층은 외부계단이 있는 남쪽 선큰 공간의 창을 통해 자연채광을 깊숙하게 유입하며 코어와 선큰 공간, 그리고 높은 천장고를 활용하여 다양한 장면이 연출된다. 옥상 테라스는 고밀도 도심 속에서 시각적으로 트인 외부공간을 형성하고, 바닥 패턴과 조경계획을 통해 옥탑공간을 다양하게 활용할 수 있다.

Architect Johsungwook Architects
LocationNonhyeon-ro, Gangnam-gu, Seoul, Republic of Korea
Program Commercial Facilites
Site area 293.3㎡
Building area 164.04㎡
Gross floor area 748.17㎡
Building scope B1, 5F
Building to land ratio 55.929%
Floor area ratio 199.48%
Design period 2018. 5 - 2019. 1
Construction period 2019. 2 - 2020. 2
Completion 2020. 2
Principal architect Sungwook Joh
Project architect Sungwooh Joh
Design team Wanggeon Kim
Structural engineer Teo Structure
Mechanical engineer DAEKWANG ENGINEERING
Electrical engineer SUNGWOO EME
Construction YEJIIN Construction
Photographer Youngchae Park
해당 프로젝트는 건축문화 2021년 1월호(Vol. 476)에 게재 되었습니다.
The project was published in the January, 2021 issue of the magazine(Vol. 476).
'Architecture Project > Multifamily' 카테고리의 다른 글
| Gounod Residence (0) | 2021.04.22 |
|---|---|
| PHILOS 503 (0) | 2021.03.03 |
| MIXED USE IN MAGOK (0) | 2021.02.01 |
| LE CSCR (0) | 2021.01.06 |
| GRAY POT HOUSE (0) | 2020.12.02 |
마실와이드 | 등록번호 : 서울, 아03630 | 등록일자 : 2015년 03월 11일 | 마실와이드 | 발행ㆍ편집인 : 김명규 | 청소년보호책임자 : 최지희 | 발행소 : 서울시 마포구 월드컵로8길 45-8 1층 | 발행일자 : 매일



