
The Maison Berri project is located near Jean-Talon market in Villeray, at the heart of the hustle and bustle of a sought-after neighborhood of Montreal. The house that Sophie and Shawn had found, which was devoid of any architectural language after successive modifications, had to be completely redone to accommodate their family. The decision to demolish the existing home was a quick one due to the deteriorated state of the property as well as the sunken structure. Not to mention that the exceptionally small Montreal lot offered little to no space for a front- or backyard.

The challenge was to optimize the maximum capacity of the land to welcome a new contemporary building that would respectfully settle into its surroundings. The project also had to meet the clients’ hopes to find more intimacy within a dense neighborhood and introduce the outdoor space within the heart of the home itself.

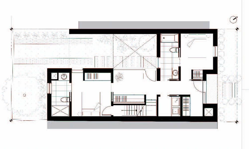
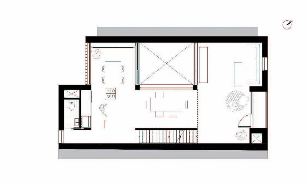
The project consists of a new 245 square meter (2640sq. ft.) building, with two above ground levels as well as a mezzanine and a partially lived-in basement. In response to these challenges, two concepts were developed: a review of the ‘classic’ composition of the living spaces to situate them on the upper level, and the creation of an interior courtyard around which the house was designed.

Moving the living room, kitchen and dining room upstairs offered, in part, more natural light to these living spaces all while offering some distance between the street level and the occupied rooms during daytime hours. This also allowed the integration of large windows without giving the impression of being exposed or imposing a life lived behind closed curtains. Inverting the typology to set the living spaces upstairs further reinforced the enjoyment of the mezzanine, with closer proximity with the rooftop terrace facilitating its use.

On the lane side, the L-shaped building aligns with the immediate neighboring buildings, ensuring the continuity of both the exterior spaces and the existing built profile. More precisely, the setbacks of the facades make it possible to minimize the presence of the volume on the landscape of the lane and to optimize the sunshine all around.

The property’s courtyard now runs from the inside of the building towards the alleyway (and vice versa). The inclusion of a porch, which doubles as a parking lot or covered terrace, ties the exterior to central access to the home. Partially covered by the upstairs kitchen, it also remains partially free and open, creating a skylight of sorts at the center of the home - a glazed connection from the upstairs level all the way through the ground floor.

The composition of the facades fully assumes a contemporary language, yet is reminiscent of the more traditional aspects of Montreal’s patrimonial architecture. The horizontal bands of stone that both break and unite the facade, the stone lintel above the windows, and the rows of vertical brick at the top all enrich the building’s composition. A monochrome application of lighter shades of beige and grey offers a softer touch.

베리 주택은 몬트리올의 중심, 진-탈론 시장 근처에 있다. 소피와 숀이 찾은 집은 여러 차례의 개조 후 건축적 어휘를 상실한 상태에서 그들의 가족을 수용해야 했기에 완전히 재건축해야 했다. 기존 주택을 철거하기로 한 결정은 건물의 상태와 침강 중인 기초로 인해 빠르게 결정되었다. 유난히 작은 몬트리올의 땅은 앞이나 뒤에 정원 공간을 마련하기 어려웠다.

건축 목표는 토지의 주변 환경에 정착할 새로운 주택을 위해 대지의 수용력을 최대로 끌어올리는 것이었다. 게다가 이번 프로젝트는 건축주의 희망 대로, 밀집된 동네에서 이웃과 소통할 수 있는 야외 공간을 마련해야 했다.

이 주택은 2개의 지상층과 중층, 부분적으로 거주하는 지하실이 있는 245㎡ 규모로 구성되었다. 이를 구체화하기 위해 주거 생활공간을 상층부에 배치하기 위한 '고전적'인 구성 방법과 중정을 마련하는 방법 두 가지가 계획되었다.

거실, 주방 및 식당을 상부로 옮기면 부분적으로 생활 공간에 더 많은 자연채광을 이용함과 동시에 낮 시간 동안 외부 거리와 계획된 방들 사이에 거리를 두었다. 이것은 닫힌 커튼 뒤의 삶이 아닌 큰 창을 이용하면서도 개인적 공간의 사유를 보장하는 방법이다. 위층에 거주 공간을 배치하기 위해 주택의 유형을 뒤집는 것은 옥상 테라스와 가깝게 하여 사용성을 증대하면서도 이 주택에서 생활하는 것의 즐거움을 강화하는 방법이다.

도로 쪽에서는 L자형 건물이 인접한 다른 건물과 같이 정렬되어 있어, 외부 공간과 기존 건축물의 맥락을 보장한다. 다시 말해, 파사드를 도로 쪽에서 후퇴하는 것으로 주택 볼륨의 존재를 최소화하고 자연광을 최대로 이용할 수 있다.

주택의 안뜰은 주차장이나 가려진 테라스 공간 보다 2배나 큰 포치를 통해 주택의 중앙과 외부공간이 연결된다. 부분적으로 위층에 위치한 주방에 의해 가려져있으며, 부분적으로 개방되어 있어 집 중앙에 일종의 채광창 역할을 한다.

주택의 파사드는 완전히 현대적인 건축적 어휘로 계획되었지만 몬트리올의 세습적인 건축, 전통적인 측면 또한 연상시킨다. 파사드에서 돌출되어 서로 결합하는 수평의 석재 띠, 창문 위의 석재 인방, 주택 상부의 수직 벽돌 선은 모두 건물의 파사드 구성을 풍요롭게 한다. 밝은 색조의 베이지색과 회색을 단색으로 적용해 부드러운 촉감을 주기도 한다.



Architects Microclimat
Location Montréal, Canada
Program Single-family house
Completion 2020
Photographer James Brittain
'Architecture Project > Single Family' 카테고리의 다른 글
| High Park Residence (0) | 2021.04.26 |
|---|---|
| Blanche Chapel House (0) | 2021.04.23 |
| CASA MI, ZURICH LAKE (0) | 2021.03.08 |
| THE GARDEN HOUSE IN THE CITY (0) | 2021.03.05 |
| HOUSE - B382 (0) | 2021.03.04 |
마실와이드 | 등록번호 : 서울, 아03630 | 등록일자 : 2015년 03월 11일 | 마실와이드 | 발행ㆍ편집인 : 김명규 | 청소년보호책임자 : 최지희 | 발행소 : 서울시 마포구 월드컵로8길 45-8 1층 | 발행일자 : 매일



