
Built for an Italian couple, the design pays homage both to the clients' Italian heritage and that of the Toronto residential building fabric, while ensuring a sensitivity towards wellbeing, mobility, and convenience.

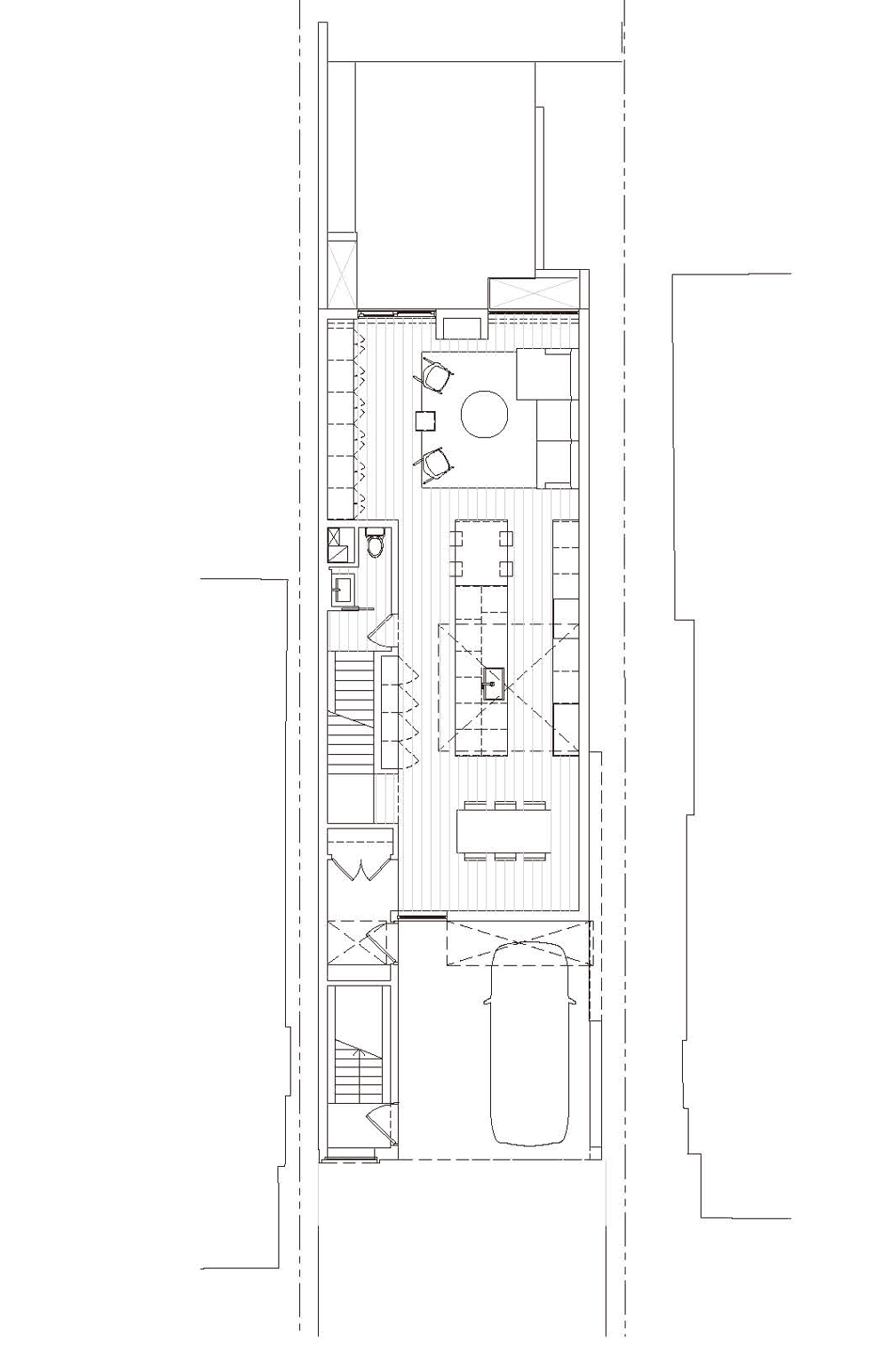
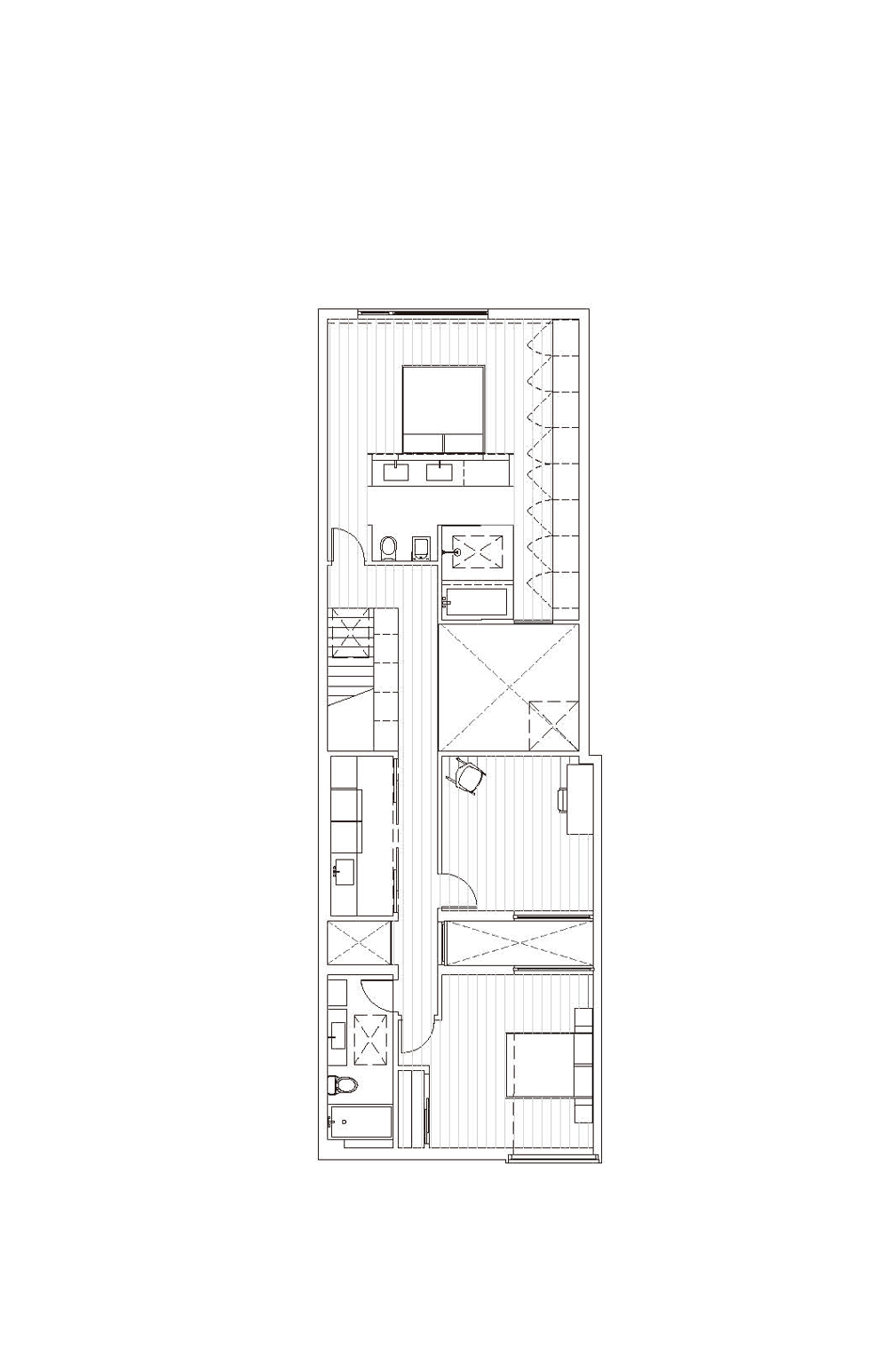
The design of the Pacific project is born from the homeowners’ values and traditions where the comforts of their past are now viscerally felt within their present-day lives. The vault, in its many permutations, is one of the most common archetypes of ancient Roman architecture, characterized by its powerful modulation of light and its sense of lightness.

In adopting this typology into a domestic space, the architects evolved the vault from its primary form, puncturing, cutting, and peeling it into new geometries that help to distribute light and air into key locations, respond to program organization, demarcating each with a different atmosphere, and create a sectional continuity throughout the house.

From the exterior, the brick vault is a subtraction from the otherwise monolithic brick frontage. This monolithic façade is created through a focus on the rich materiality of the brick coursing, and the isolated dormer which mirrors the proportions of the neighboring house. The brickwork that covers the façade and wraps the ceiling and walls of the carport plays into Toronto’s history of masonry detailing.

The front of the home is reduced to a monolithic façade – where single repetitive material ornamentation, an adaptation of the Flemish-bond, becomes an even but textured brickfield placing emphasis on the vaulted profile. This field of patterning emphasizes a play of light and shadow and picks up on seasonal changes. In the summer, the protrusions texture the façade with stark shadows, and in the winter the texture transforms through bricks creating shelves for the snow to fall on.

이탈리안인 커플을 위해 계획된 이번 프로젝트는 이탈리아의 유산과 토론토의 주택 건축이 가진 맥락에 대응하면서 웰빙에 대한 민감함, 이동성, 그리고 편리성을 보장한다.

퍼시픽 프로젝트의 디자인은 건축주의 가치와 전통에서 탄생했다. 과거의 안락함이 현재의 삶에서 본능적으로 느껴진다. 많은 대안들 중에서 볼트는 강력한 빛의 조절과 가벼움이 특징인 고대 로마 건축의 가장 일반적인 양식 중 하나다.

이러한 양식을 이번 프로젝트에 채택하면서 건축가는 볼트를 기본 형태에서 발전시켜 빛과 공기를 주택의 주요 위치로 분배하고, 프로그램의 구성에 대응하며 각 환경을 다른 분위기로 조직하고 전체 공간에 단면의 연속성을 만든다.

외부의 벽돌 볼트는 단조로운 벽돌의 단일체에서 빼낸 것이다. 이 일률적인 단일식 파사드는 벽돌로 이루어진 풍부한 질감과 이웃한 주택의 비율을 반영한 지붕창에 초점을 맞춰 디자인됐다. 파사드를 구성하고 간이 차고의 천장과 벽을 감싸는 벽돌은 토론토의 주택 역사를 반영하는 것이다.

주택의 전면부는 일률적인 단일체 파사드로 축소되었다. 벽돌의 불식쌓기 방법을 개조한 단일 반복 재료장식은 볼트의 아치형태를 강조하는 균일한 질감이 된다. 이러한 패천은 빛과 그림자를 통해 계절의 변화를 포착한다. 여름에는 돌출부가 짙은 그림자를 만들어 파사드에 질감을 입히고 겨울에는 벽돌의 질감이 변형되어 눈이 쌓이는 선반이 된다.






Architects Batay-Csorba Architects
Location Toronto Ontario, Canada
Program Single-family house
Building area 325m²
Completion 2020
Principal architects Emir Uras
Photographer Doublespace Photography
'Architecture Project > Single Family' 카테고리의 다른 글
| Pearl House (0) | 2021.05.03 |
|---|---|
| DeNormanville (0) | 2021.04.27 |
| Blanche Chapel House (0) | 2021.04.23 |
| Berri House (0) | 2021.04.21 |
| CASA MI, ZURICH LAKE (0) | 2021.03.08 |
마실와이드 | 등록번호 : 서울, 아03630 | 등록일자 : 2015년 03월 11일 | 마실와이드 | 발행ㆍ편집인 : 김명규 | 청소년보호책임자 : 최지희 | 발행소 : 서울시 마포구 월드컵로8길 45-8 1층 | 발행일자 : 매일


