
The residential building on the right side of Zurich Lake stands out particularly due to its exposed location and its special spatial concept. The villa rises above the steeply sloping edge of the terrain with two bodies that have been shifted to each other, and at the same time merged together. The house contrasts the idyllic surroundings with straight lines and forms. While from the lakeside the panorama windows of the southwest facade stand out, towards the street, the house is rather introverted with its closed shell of lightly pigmented concrete.

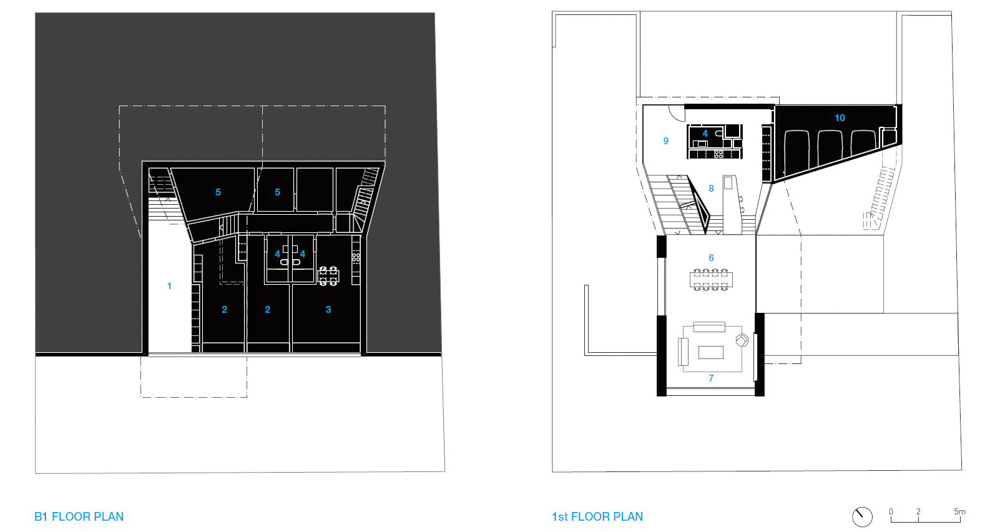
In the interior of Casa MI generously proportioned staircases connect wide open spaces. That is how the distant picturesque Alpine landscape can be observed from almost every angle. Each area of the house reveals a new perspective towards the Zürich lake while allowing maximum privacy. The open design of the interiors allows to integrate the surrounding nature. Due to its location on the edge of the property, the outdoor pool seems to be an extension of the lake. The interior was designed in such a way that the rooms flow dynamically into each other and make the total depth of 23m tangible. Although the levels differ clearly in their functions, the areas merge with each other.

The garden on the southeastern side of the villa is meant for moments in company. The displacement of the two buildings creates a roofed outdoor space next to a seating area recessed in the ground. The pool is docked to the house and placed parallel to the ridge. The garden plot on the opposite side of the house is dedicated to retreat. Casa MI is a composition of compact volumes with a split-level in order to minimize the height, so the lake Zurich is still visible from properties behind it. That makes the house also beneficial for the surrounding neighbours. One might think a spaceship has landed on the shore of Zurich Lake.

취리히 호수 풍경이 파노라마로 펼쳐지는 미니멀리즘 주거공간, 카사 미
취리히 호수의 우측 편에 위치한 카사 미는 노출된 위치적 특성과 독특한 공간 콘셉트에 의해 눈에 띄는 집이다. 두 개의 볼륨이 서로를 향해 움직이고, 합쳐진 이 집은 대지의 가파른 경사 모서리 위로 올라 서있으며, 기하학적인 형태로 목가적인 주위 환경과 대조되는 집이다.

호수 변에서 대지의 남서쪽 거리를 향한 파노라마 창문이 돋보이는 반면, 집은 색감이 입혀진 콘크리트로 만들어진 폐쇄적인 외관으로 인해 내향적이다. 카사 미의 내부는 균형 잡힌 계단을 통해 넓은 개방 공간들로 연결시켰다. 이는 멀리 떨어져 있는 그림 같은 알파인 전경이 거의 모든 각도에서 관찰될 수 있는 이유다.


집의 각 영역들은 최대한의 프라이버시를 보장하며 취리히 호수를 향한 새로운 시야들을 드러내준다. 내부의 개방된 디자인은 주위의 자연을 통합시키게 해준다. 대지의 가장자리에 위치함으로써 외부 수영장은 호수의 연장선으로 보인다. 내부는 실들이 서로 역동적으로 연결될 수 있는 방식으로 설계됐고, 총 23m 폭으로 만들어졌다.

층별로 기능에 따라 명백하게 나뉘어짐에도 불구하고 각 영역들은 서로 병합된다. 건물 남동쪽의 정원은 사람들이 함께 있는 순간들을 위해 만들어졌다. 두 건물의 이동은 대지의 움푹 들어간 영역 옆에 지붕이 있는 외부 공간을 창조한다. 수영장은 집과 연결되어 있으며, 산등성이를 끼고 있다.

집 반대편의 정원은 피정을 위해 할애됐다. 카사 미는 취리히 호수가 대지의 뒤쪽에서도 보일 수 있도록 높이를 최소화하기 위해 층이 분할된 집약적인 볼륨들로 구성됐다.




Architect DALUZ GONZALEZ ARCHITEKTEN
Location Zurich, Switzerland
Program Residential
Site area 950㎡
Building area 680㎡
Total floor area 352㎡
Landscape area 415㎡
Building scope B1, 2F
Principal architect Rubén Daluz, Juan González
Project architect Rubén Daluz, Juan González
Design team Rubén Daluz, Juan González, Carlos Sabater, Julian Calvo. Collaborator Hager Bauingenieur. Poliform
Construction Ponato AG, Hombrechtikon
Client Mieschke AG
Photographer Valentin Jeck
해당 프로젝트는 건축문화 2021년 1월호(Vol. 476)에 게재 되었습니다.
The project was published in the January, 2021 issue of the magazine(Vol. 476).
'Architecture Project > Single Family' 카테고리의 다른 글
| Blanche Chapel House (0) | 2021.04.23 |
|---|---|
| Berri House (0) | 2021.04.21 |
| THE GARDEN HOUSE IN THE CITY (0) | 2021.03.05 |
| HOUSE - B382 (0) | 2021.03.04 |
| PATIO HOUSE (0) | 2021.02.05 |
마실와이드 | 등록번호 : 서울, 아03630 | 등록일자 : 2015년 03월 11일 | 마실와이드 | 발행ㆍ편집인 : 김명규 | 청소년보호책임자 : 최지희 | 발행소 : 서울시 마포구 월드컵로8길 45-8 1층 | 발행일자 : 매일



