
프롤로그(Prologue & Concept)
양근강변길을 달리다 보면 남한강을 배경삼아 자리잡은 사업대상지가 보인다. 소로임에도 제법 있는 속도감과 작은 수목들로 인해 눈에 잘 띄지 않아 극적인 건축적 효과로 시선을 끌기는 어렵다. 그럼에도 주변과 조화를 이루어야 함은 당연하며 어디선가 맥락없이 튀어나온 건물이 아닌 그 주변에 자연스럽게 녹아드는 것이어야 하기에 몇가지 개념을 제안하고자 한다.
첫째, 자연적 풍경과 어우러지는 경사지붕을 적용하되 새로운 건물로서의 모던함이 묻어나도록 하였다.
둘째, 재료는 주변건물과 조화를 이루며 벽돌,석재등 자연소재를 활용해 친근한 경관을 이루고자 하였다.
셋째, 긴 사업대상지의 연속적 건물들로 인한 지루함을 물리적 후퇴로 비워진 외부공간(데크)을 만들고 수변가로변에서 바라본 학생들의 웃음과 장난끼있는 행위를 담는 유쾌한 이곳의 모습이 도시 곳곳에 이어지길 기대해 본다.
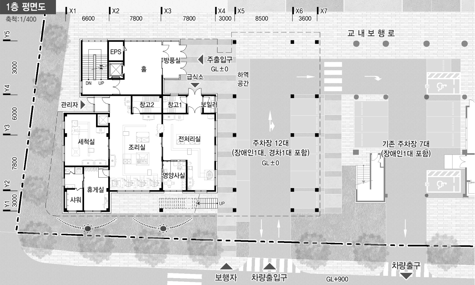
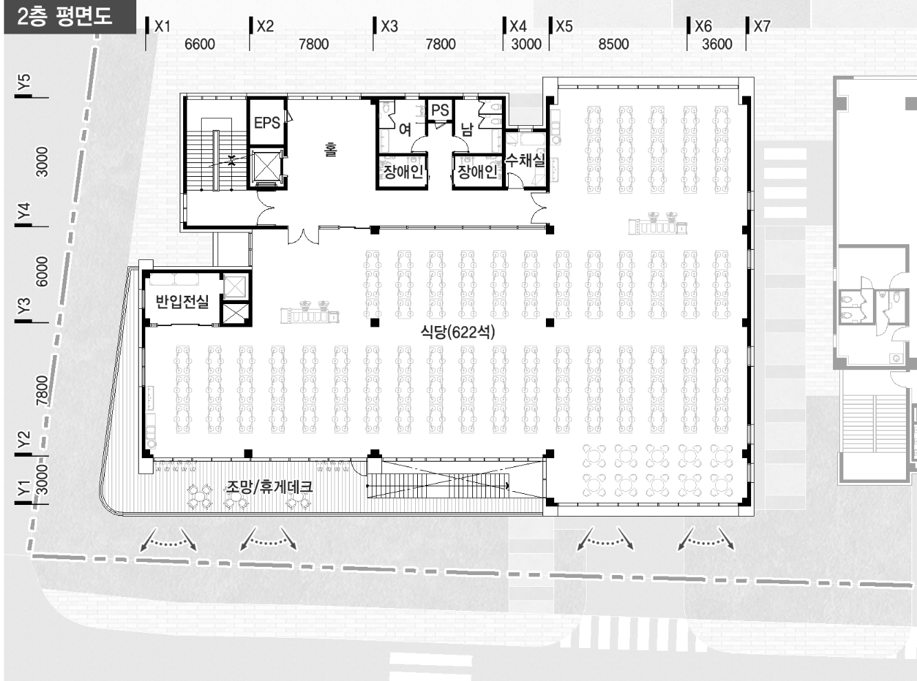
평면계획
기존 소규모 주차장과 연계한 통합주차장 계획으로 사용자 편의 및 효율성을 높였이고자 하였고 공공보행로 신설을 통한 완벽한 보차분리는 학생의 안전과 지역주민의 편의성을 높일뿐만 아니라 증축예정 교사동과 이어지는 합리적인 마스터플랜이 되도록 하였다. 조리공간은 최대한 집약 배치해 작업동선의 효율성을 높였으며 3면이 외기에 면하도록 해외창 면적을 최대한 확보하여 급식소 현대화 사업의 중요 목표인 조리 종사자의 건강과 작업 능률을 최우선으로 고려하였다. 효율적인 위생관리를 고려해 영양사실은 전처리실과 조리실로 직출입을 확보하고 직원 휴게실과 영양사실은 남향에 배치하여 HACCP 시스템 및 사용자 요구에 부합하는 조닝 계획을 수립하였다.
입면계획
남한강 수변데크 산책길에서 바라본 증축동의 모습은 학교 급식소의 정해진 용도와 행위만을 담는 무미건조한 매스이기 보다는 주변 경관과 어우러지는 경사지붕을 배경삼은 휴게데크에서 학생들의 휴식과 커뮤니티 등 장난끼 가득한 유쾌한 모습이 도시에 이어지길 바랬다. BIPV 시스템과 공사비를 고려한 경사지붕은 기존 교내경관과 어우러지며 벽돌 및 석재패널등 주변 환경과 통일성 있는 재료 계획과 더불어 과장된 건축적 어휘를 최소화해 간결한 이미지가 되도록 계획하였다.






서하건축사사무소
당선작_서하건축사사무소
대표건축가 염창선
대지면적 19,194.00㎡
연면적 15,446.00㎡ = 14,136.04㎡ (기존) + 1,309.96㎡ (증축동)
건축면적 1,249.76㎡(증축동)
층수 지상2층
구조 철근콘크리트구조 + 철골구조
주차대수 12대 (증축동)
대표건축가 염창선
발주처 경기도 양평교육지원청
'Plans' 카테고리의 다른 글
| 김화농공단지 청년문화센터 건립사업_ 3등작 / 시안건축사사무소 (0) | 2026.04.29 |
|---|---|
| 대명2동 행정복지센터 신축공사 건축설계공모_ 3등작 / 보스케건축사사무소 (0) | 2026.04.29 |
| 용인서부소방서 신축 설계공모_ 당선작 / 플로건축사사무소+범도시건축종합건축사사무소 (0) | 2026.04.29 |
| 용인서부소방서 신축 설계공모_ 3등작 / (주)탈건축사사무소 (0) | 2026.04.27 |
| 수입천 오지마을 시끌벅적 활성화사업_ 3등작 / 아틀리에무이 종합건축사사무소 + 휴앤 건축사사무소 (0) | 2026.04.27 |
마실와이드 | 등록번호 : 서울, 아03630 | 등록일자 : 2015년 03월 11일 | 마실와이드 | 발행ㆍ편집인 : 김명규 | 청소년보호책임자 : 최지희 | 발행소 : 서울시 마포구 월드컵로8길 45-8 1층 | 발행일자 : 매일



