
FIRE / STATION : 두 개의 풍경을 가진 소방서
Yongin West Fire Station
“소방서는 하나의 건물이지만 두 개의 풍경을 가진다. 도시는 출동을 요구하고, 자연은 회복을 돕는다. 용인서부소방서는 긴급대응과 회복의 Front를 하나의 건축에 통합한다”
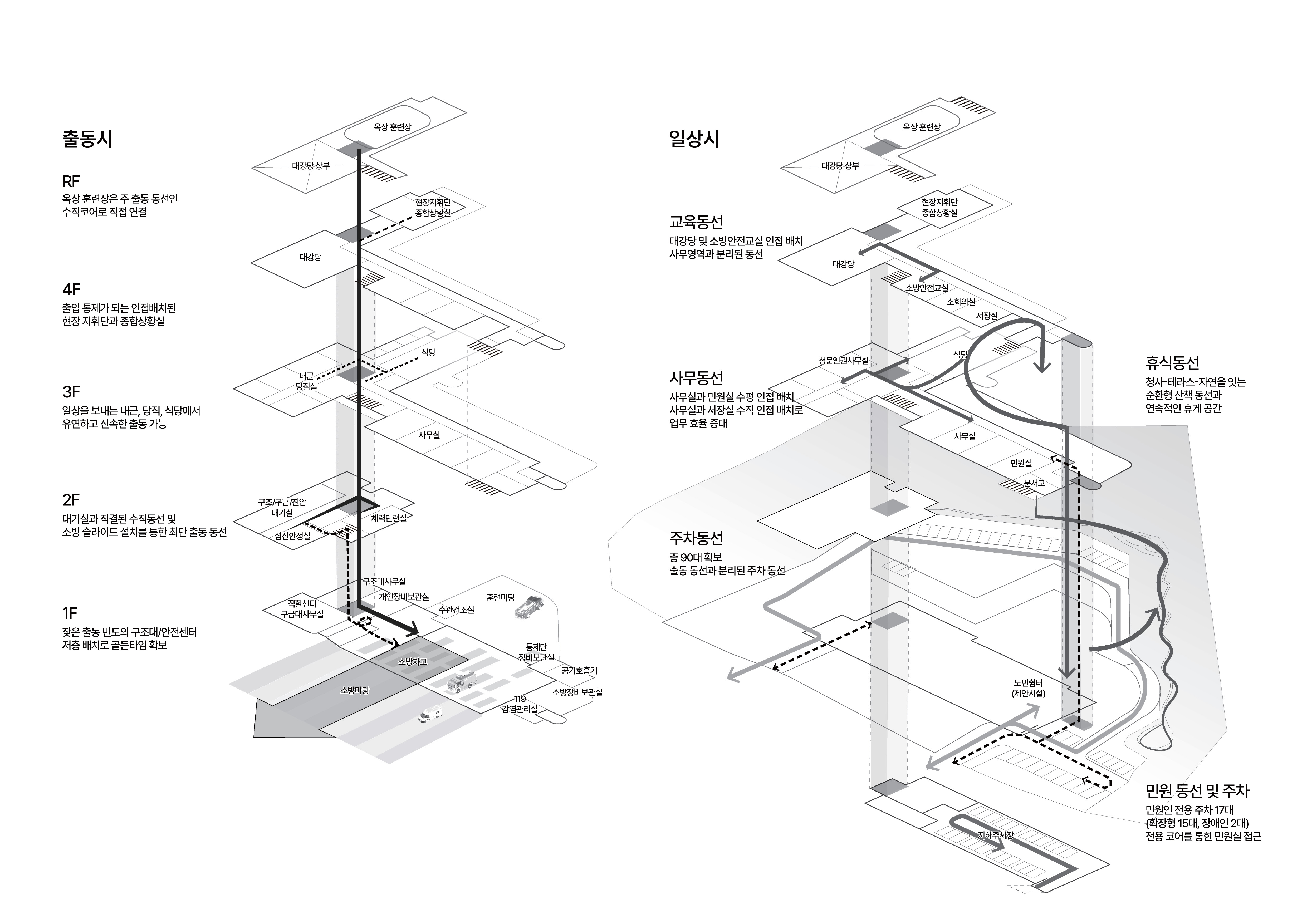
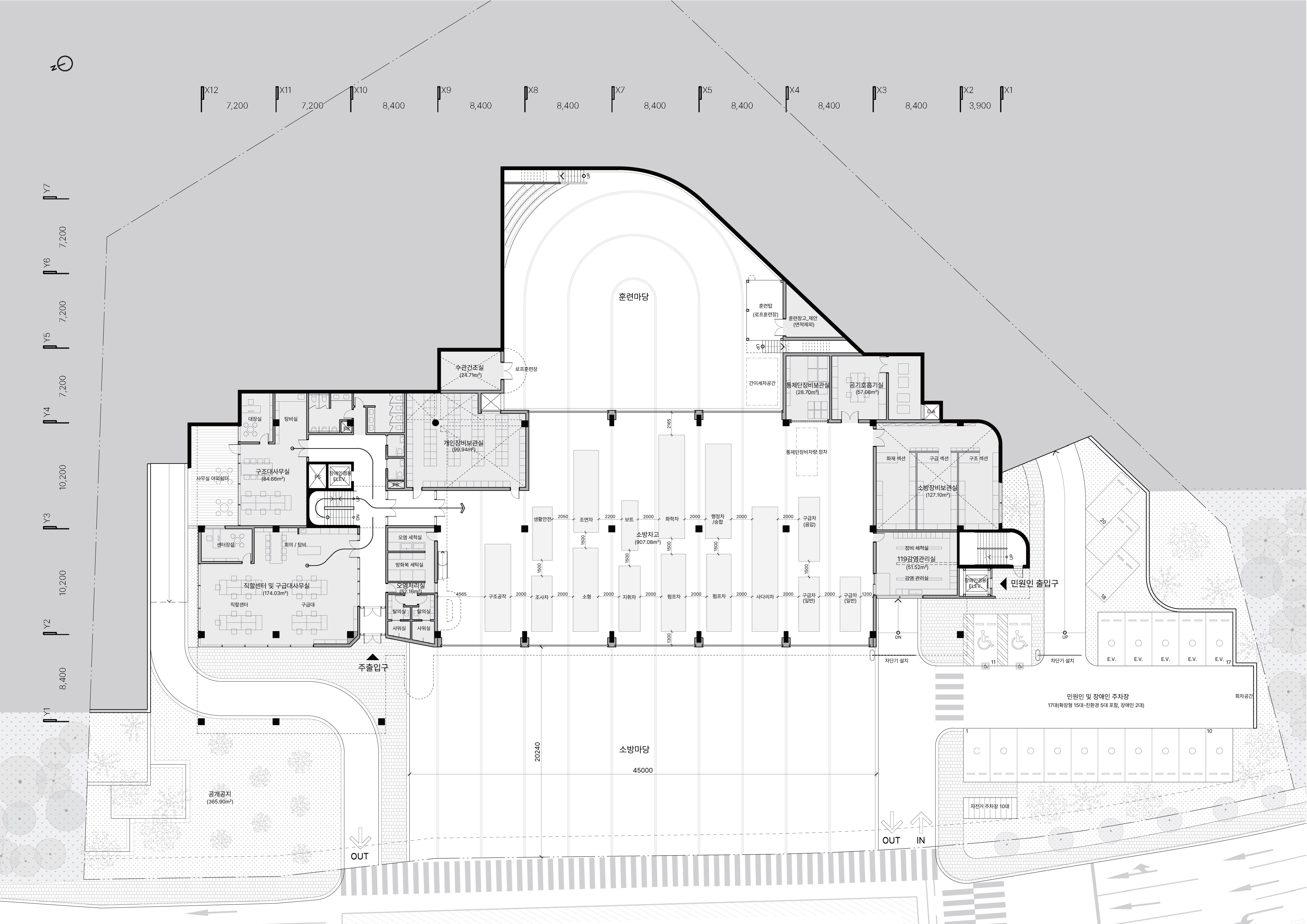
대상지는 도시의 도로와 후면의 자연녹지가 맞닿는 경계에 위치한다. 이러한 입지적 특성을 적극적으로 활용하여 도로를 향한 출동의 전면과 자연을 향한 훈련과 생활의 후면을 명확히 조직하는 배치를 구상하였다. 건물은 출동도로에 면하여 소방차 차고와 출동마당을 배치함으로써 긴급 상황에서의 신속하고 직관적인 출동 체계를 확보하고, 도시를 향해 공공청사로서의 위상에 걸맞는 명확한 전면을 형성한다. 동시에 후면에는 산지와 녹지 환경을 활용한 훈련마당과 휴식 공간을 배치하여 소방관들이 일상 속에서 훈련과 회복을 병행할 수 있는 생활 환경을 조성하였다. 이처럼 도시를 향한 대응의 영역과 자연을 향한 회복의 영역은 하나의 건물을 중심으로 유기적으로 연결되며, 용인서부소방서는 긴급 대응과 일상의 준비가 통합된 두 개의 풍경을 갖는 소방서로 계획되었다.
청사이자 집 : 소방서는 공공청사이면서 동시에 소방관들의 집이다.
이곳에서는 대기와 출동, 사투와 완진, 그리고 귀소와 정비, 회복의 시간이 반복된다. 폭풍 전의 고요처럼 언제든 뛰어나가기 위해 힘을 응축한 소방관들이 훈련하고 휴식하며 긴 시간을 보내는 장소이기도 하다.
이질의 공존, 두 개의 풍경 : 소방서에는 서로 다른 시간과 환경이 동시에 존재한다.
1분과 하루, 출동과 복귀, 부상과 회복, 훈련과 휴식, 내근과 외근, 그리고 도시와 자연. 우리가 제안하는 소방서는 이러한 이질적인 시간과 환경을 분리하기보다 하나의 건축 안에서 조화롭게 공존하도록 조직한 공간이다. 이 건물은 하나의 소방서이지만 두 개의 풍경을 가진다. 재난 현장으로 달려나가는 ‘급박한 출동의 풍경’, 그리고 자연과 함께하는 ‘신속한 회복의 풍경’이다.
도시건축 / 자연조경 : 대상지는 출동의 대상인 도시와 산으로 둘러싸인 자연 사이에 위치한다.
건물의 전면은 출동과 대응의 질서를 조직하는 도시의 얼굴이다. 금속과 유리를 주요 재료로 사용하여 명확하고 현대적인 도시적 입면을 형성하였다. 반면 자연을 향한 후면은 훈련과 휴식이 이루어지는 생활의 풍경으로 계획하였다. 자연 재료와 조경, 수목이 어우러진 계단식 테라스를 통해 편안한 휴식과 회복의 공간을 만든다.


















(주)탈건축사사무소
3등작_(주)탈건축사사무소(https://www.taal-architects.com/)
대표건축가 조항만(SNU / TAALab), 서지영
대지면적 7,310㎡
연면적 5,144.04㎡
건축면적 2,485.48㎡
최고높이 24m
층수 지하1층, 지상4층
구조 철근콘크리트구조, 일부 철골조
주차대수 90대
발주처 경기도소방재난본부
대표건축가 조항만(SNU / TAALab), 서지영
디자인팀 정연중, 이동주, 홍수민, 문주현, 윤훈락, 김영훈, 민경제
발주처 경기도소방재난본부
'Plans' 카테고리의 다른 글
| 국공립 성산어린이집 대체신축 건립 설계공모_ 당선작 / 소와요건축사사무소 (0) | 2026.04.27 |
|---|---|
| 쌍문3동 주민센터 신축 설계용역 설계공모_ 당선작 / (주)건축사사무소 유피이엠 (0) | 2026.04.23 |
| 보령 빛돌숲 공원 지명설계공모_ 당선작 / (주)더시스템랩건축사사무소 (0) | 2026.04.22 |
| 캠프 그리브스 가족형 숙박시설 조성사업 건축설계용역 제안공모_ 5등작 / 류와 건축사사무소 + 즐거운건축사사무소 (0) | 2026.04.22 |
| 정선 테니스장 전천후 환경개선사업 간이공모_ 당선작 / 일공공 건축사사무소 (0) | 2026.04.22 |
마실와이드 | 등록번호 : 서울, 아03630 | 등록일자 : 2015년 03월 11일 | 마실와이드 | 발행ㆍ편집인 : 김명규 | 청소년보호책임자 : 최지희 | 발행소 : 서울시 마포구 월드컵로8길 45-8 1층 | 발행일자 : 매일



