
본 계획은 소방서를 단순한 공공청사가 아닌, 대원들이 24시간 생활하며 출동과 복귀를 반복하는 일터이자 생활공간으로 인식하는 것에서 출발하였다. 이에 따라 출동 효율성과 휴식 환경, 도시적 상징성을 동시에 고려한 공간으로 계획하였다.
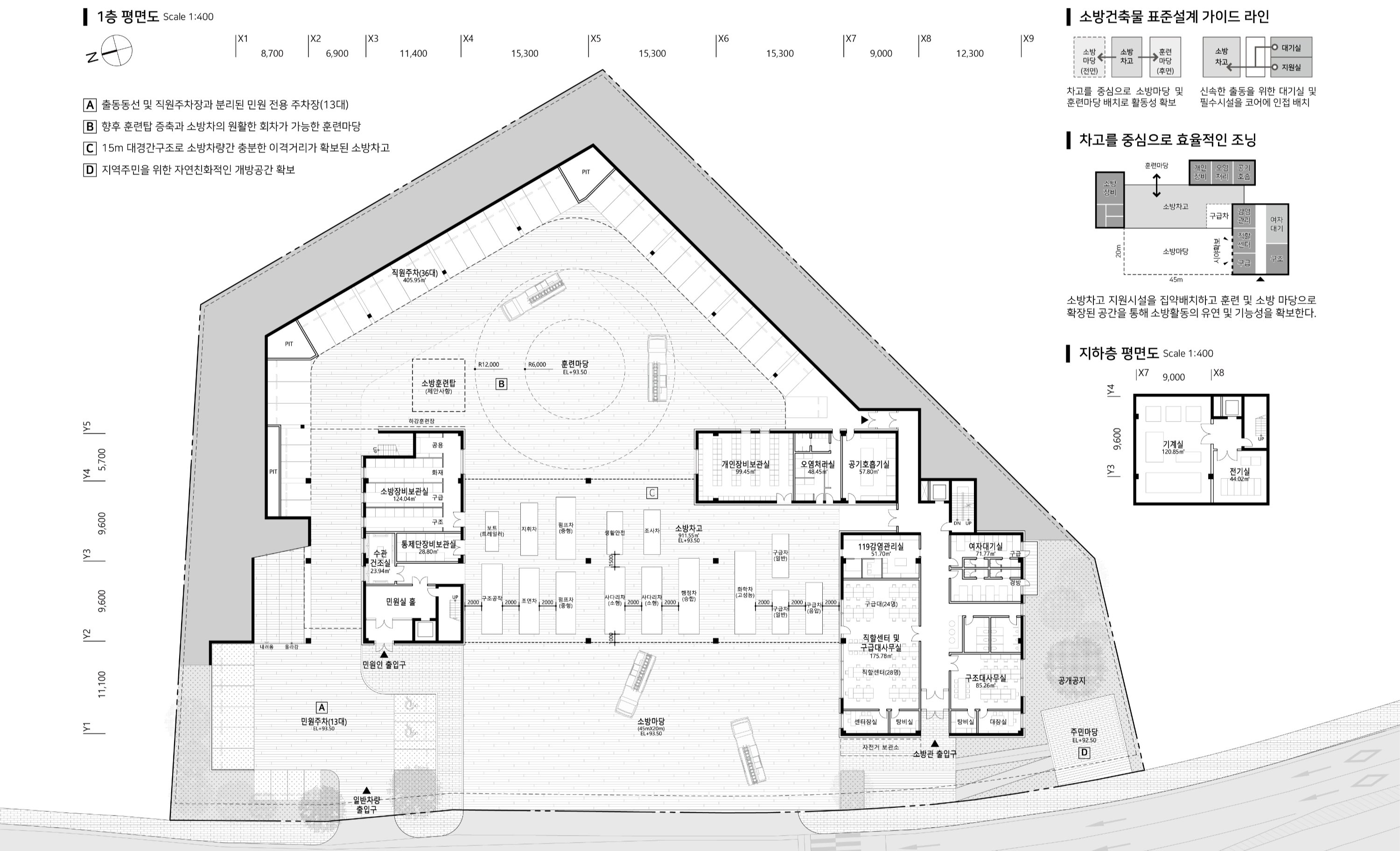
이형의 제한된 대지 조건을 해결하기 위해 소방마당, 차고, 훈련마당을 하나의 흐름으로 연결된 연속된 운영 공간으로 계획하였다.
전면은 신속한 출동과 복귀를 위한 공간으로, 후면은 차량 및 전술 훈련이 가능한 다목적 훈련마당으로 구성하여 기능 간 간섭을 최소화하였다.
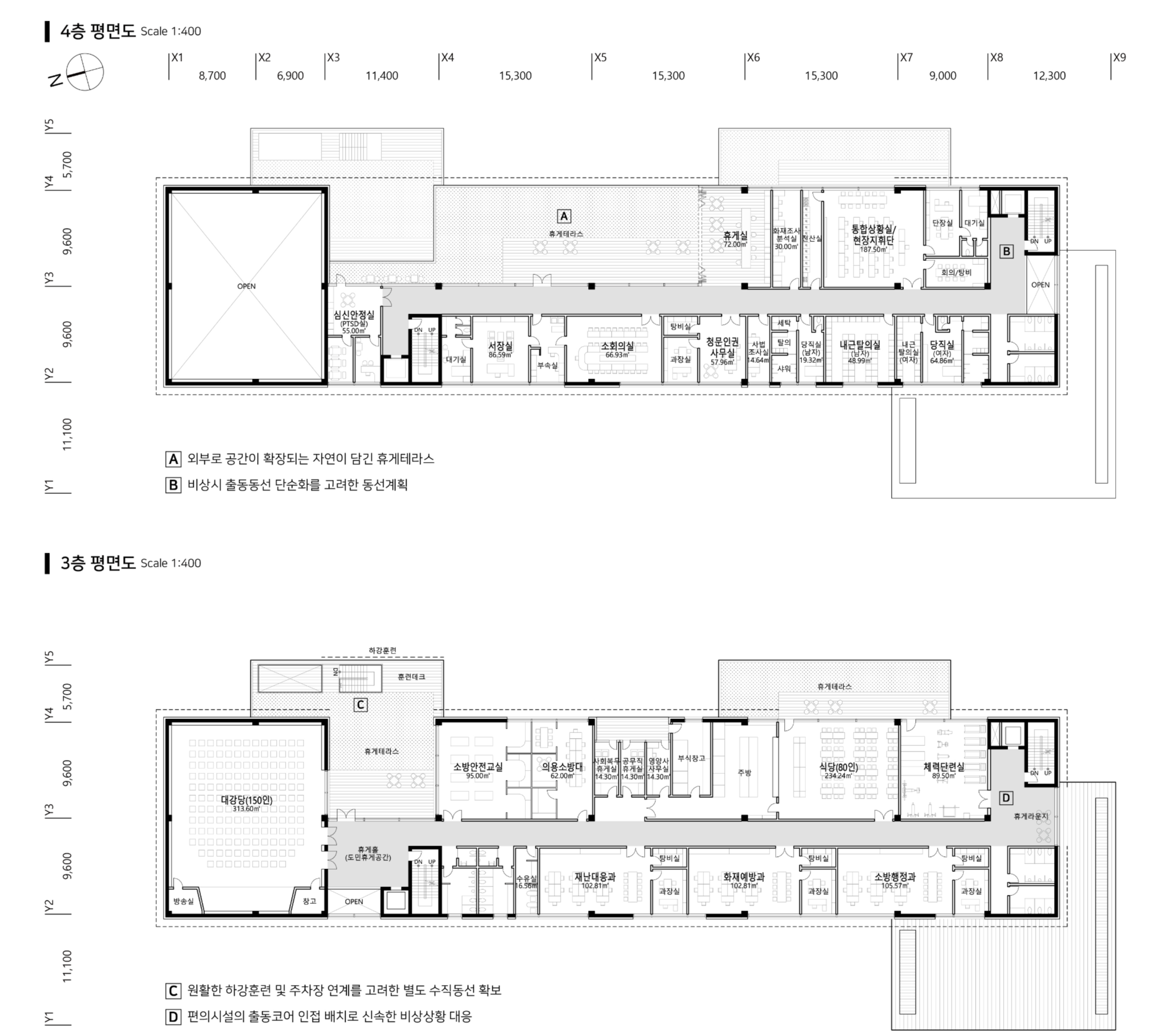
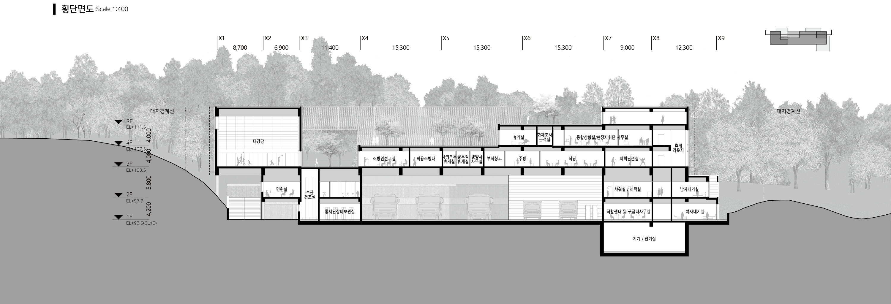
건축은 기능에 따라 명확히 구분하였다. 하부는(RED ZONE) 차고와 출동 지원시설이 집중된 출동 중심 영역으로, 상부는(GREEN ZONE) 업무와 생활공간이 결합된 생활 영역으로 구성하였다. 상부 매스는 단순하고 명확한 형태로 정리하여 도시 속에서 소방서의 상징성이 자연스럽게 드러나도록 하였다.
또한 대지의 레벨차를 적극 활용하여 별도의 지하 개발 없이 주차와 훈련공간을 동시에 확보하였으며, 차량과 보행, 출동과 민원 동선을 분리하여 운영의 효율성과 안전성을 높였다.
생활공간은 테라스와 입체적 녹지를 통해 자연과 직접 연결되도록 계획하였다. 이는 반복되는 긴장 속에서 대원들의 심리적 회복을 유도하는 외부 휴식 환경으로 작동하도록 하였다. 외피는 빛을 유입하고 시선을 조절하는 투과성 재료를 적용하여, 때로는 순수한 매스로 때로는 자연이 스며든 풍경으로 드러나는 입면을 형성하였다.
결과적으로 본 계획은 출동 기능에 최적화된 구조와 자연과 연결된 휴식 환경을 하나로 통합하여, 대원에게는 효율적인 근무 환경을 제공하고 시민에게는 신뢰받는 안전의 거점으로 기능하도록 하였다.
















플로건축사사무소 + 범도시건축종합건축사사무소
당선작_플로건축사사무소(https://floarchitects.kr/) + 범도시건축종합건축사사무소(http://baum-ua.com/)
대표건축가 최재원, 권미리(플로건축사사무소), 정승권(범도시건축종합건축사사무소)
대지면적 7,310.00㎡
연면적 6089.54㎡
건축면적 2781.11㎡
건폐율 38.05%
용적률 80.58%
최고높이 22.20m
층수 지하 1층, 지상 4층
구조 철근콘크리트 구조
대표건축가 최재원, 권미리(플로건축사사무소), 정승권(범도시건축종합건축사사무소)
디자인팀 공민웅, 김진영, 변희윤, 박종준, 임주휘(플로건축사사무소), 이영준, 이정원, 김혁진, 김주영(범도시건축종합건축사사무소)
조경면적 1,380.13㎡
주차대수 90대
발주처 경기도소방재난본부
'Plans' 카테고리의 다른 글
| 양평초 급식실 증축 설계공모_ 당선작 / 서하건축사사무소 (0) | 2026.04.29 |
|---|---|
| 대명2동 행정복지센터 신축공사 건축설계공모_ 3등작 / 보스케건축사사무소 (0) | 2026.04.29 |
| 용인서부소방서 신축 설계공모_ 3등작 / (주)탈건축사사무소 (0) | 2026.04.27 |
| 수입천 오지마을 시끌벅적 활성화사업_ 3등작 / 아틀리에무이 종합건축사사무소 + 휴앤 건축사사무소 (0) | 2026.04.27 |
| 국공립 성산어린이집 대체신축 건립 설계공모_ 당선작 / 소와요건축사사무소 (0) | 2026.04.27 |
