
Wuzhou Elementary School
선전의 우저우 초등학교는 ‘학교는 교실과 복도로 구성된다’는 익숙한 전제를 깬 프로젝트다.
도시가 산업 중심의 성장 단계에서 혁신의 시대로 이동하는 시점에, 이 학교는 창의·놀이·탐구를 우선하는 새로운 학습 방식에 공간이 도시에 어떤 영향을 줄 수 있는지의 실험이다.
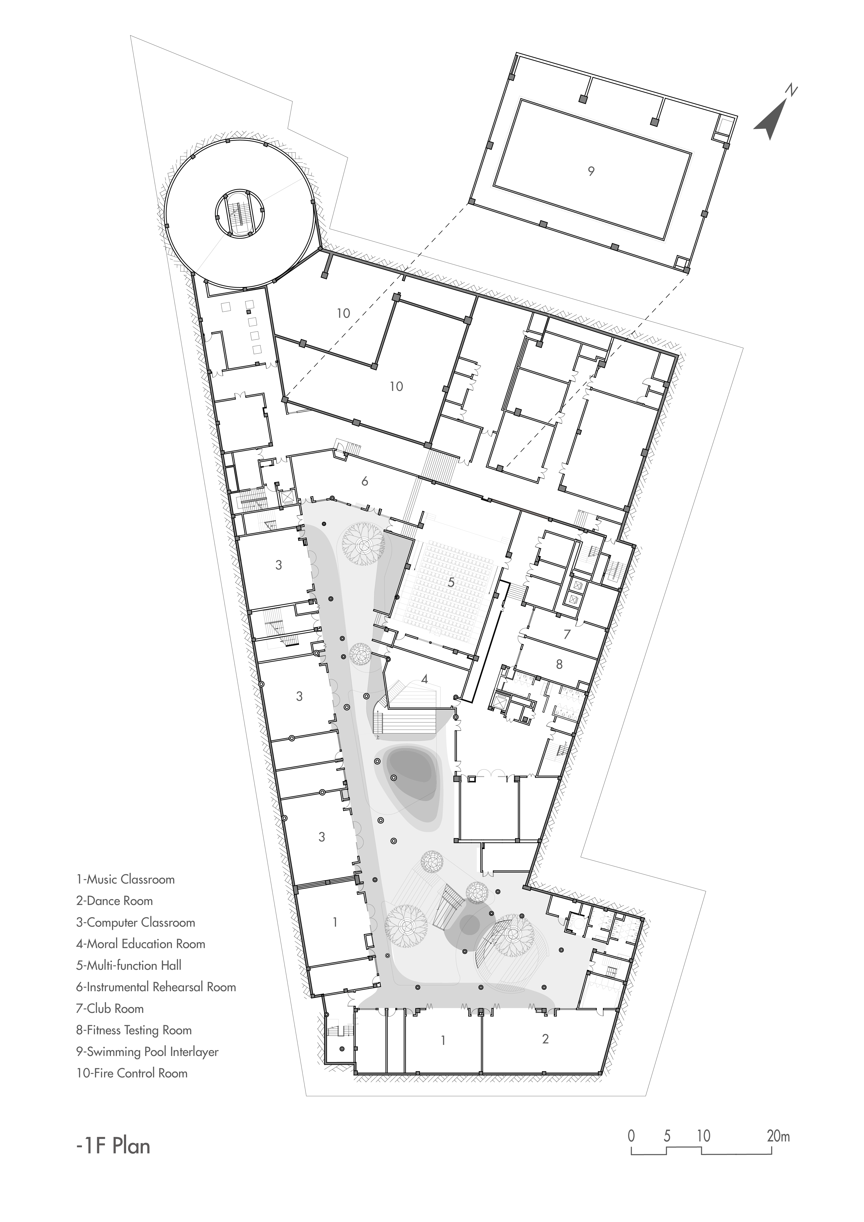
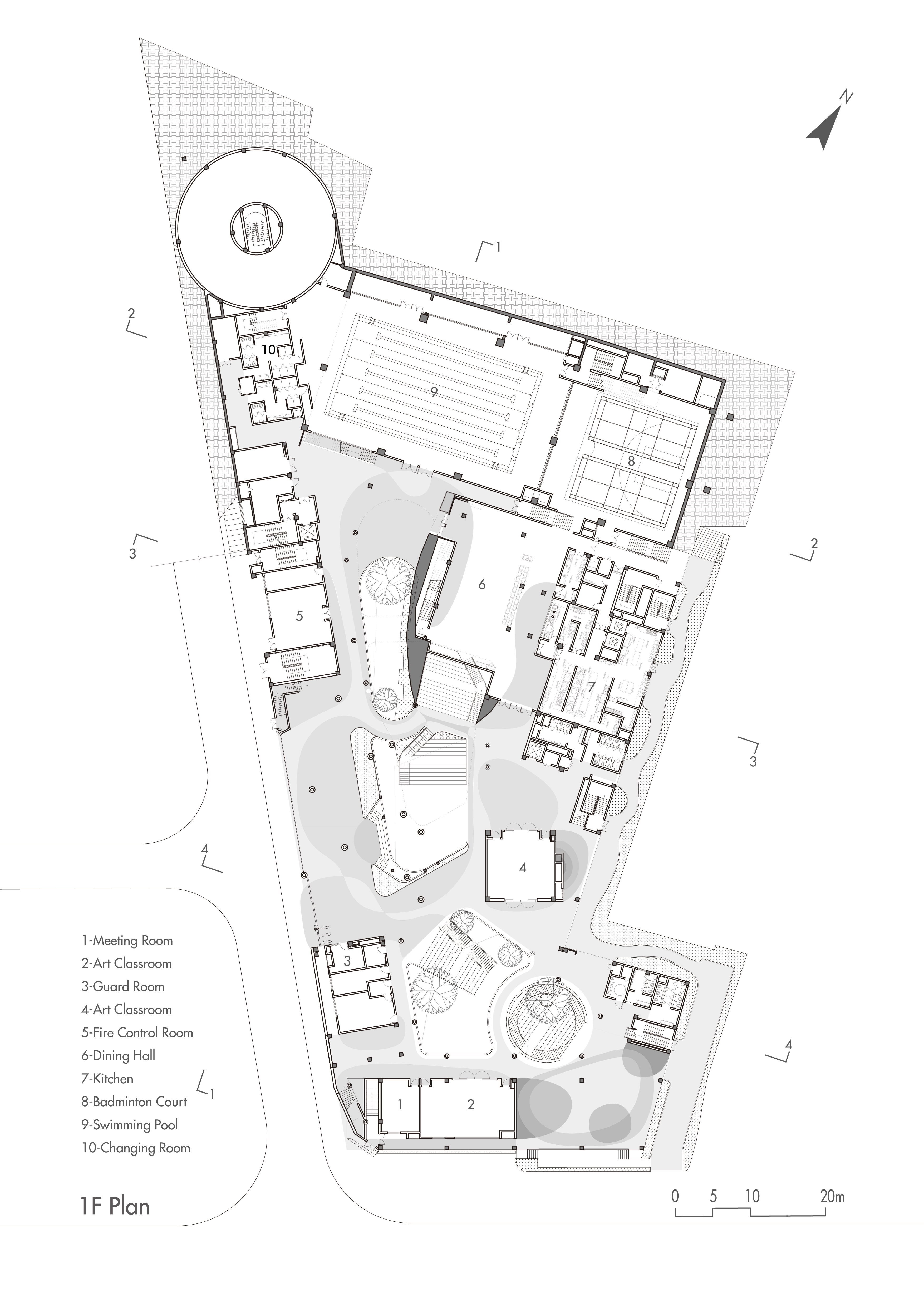
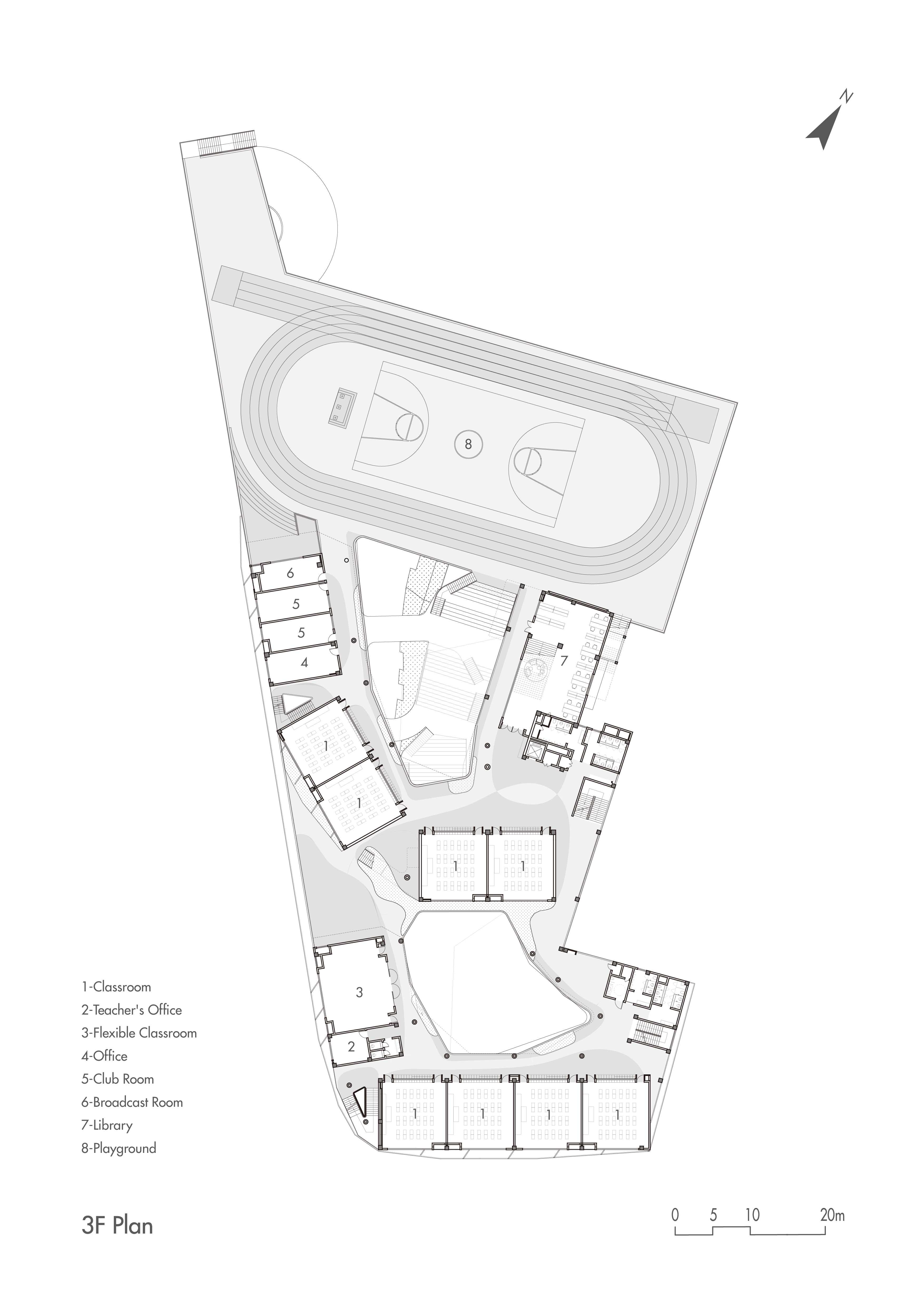
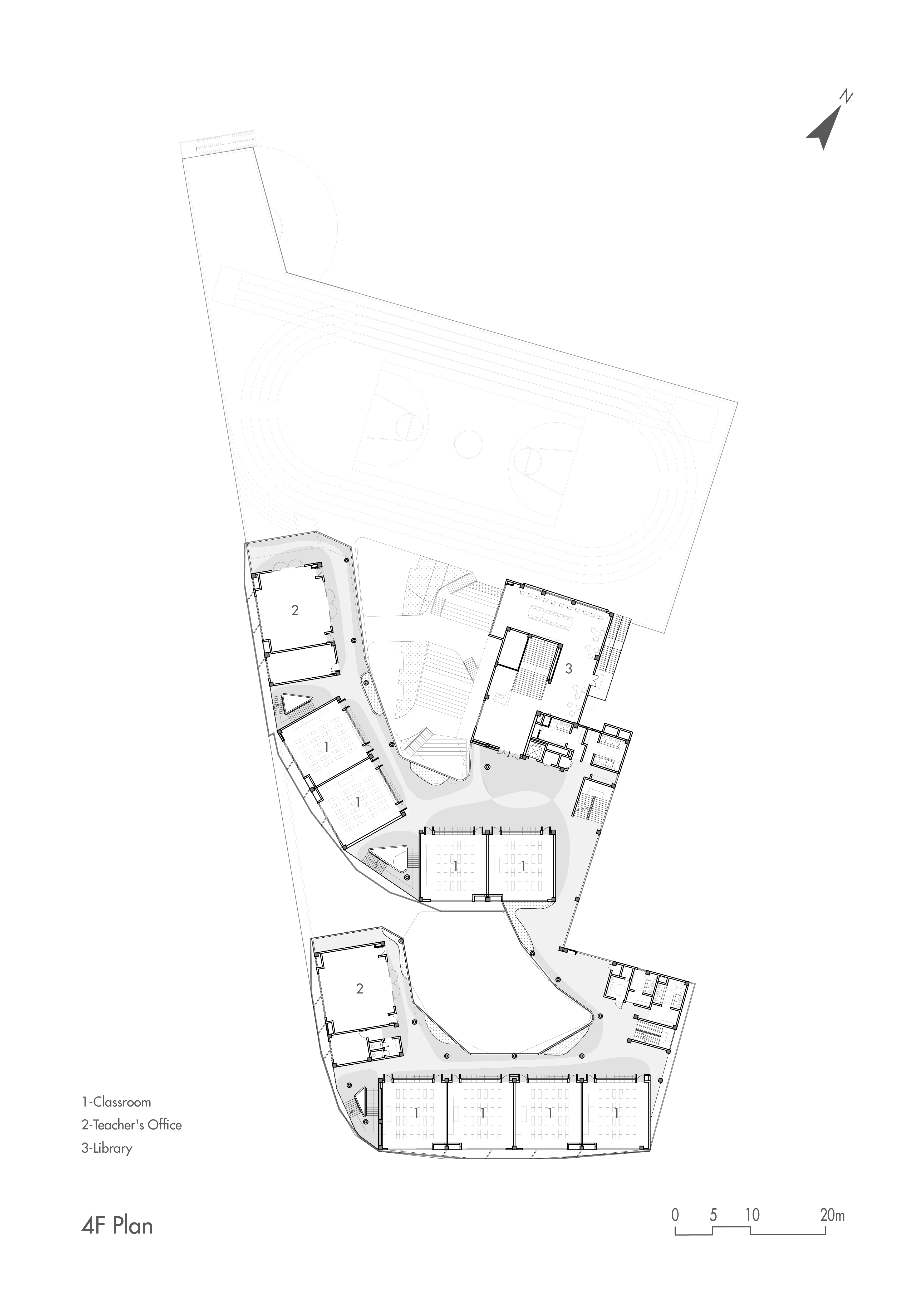
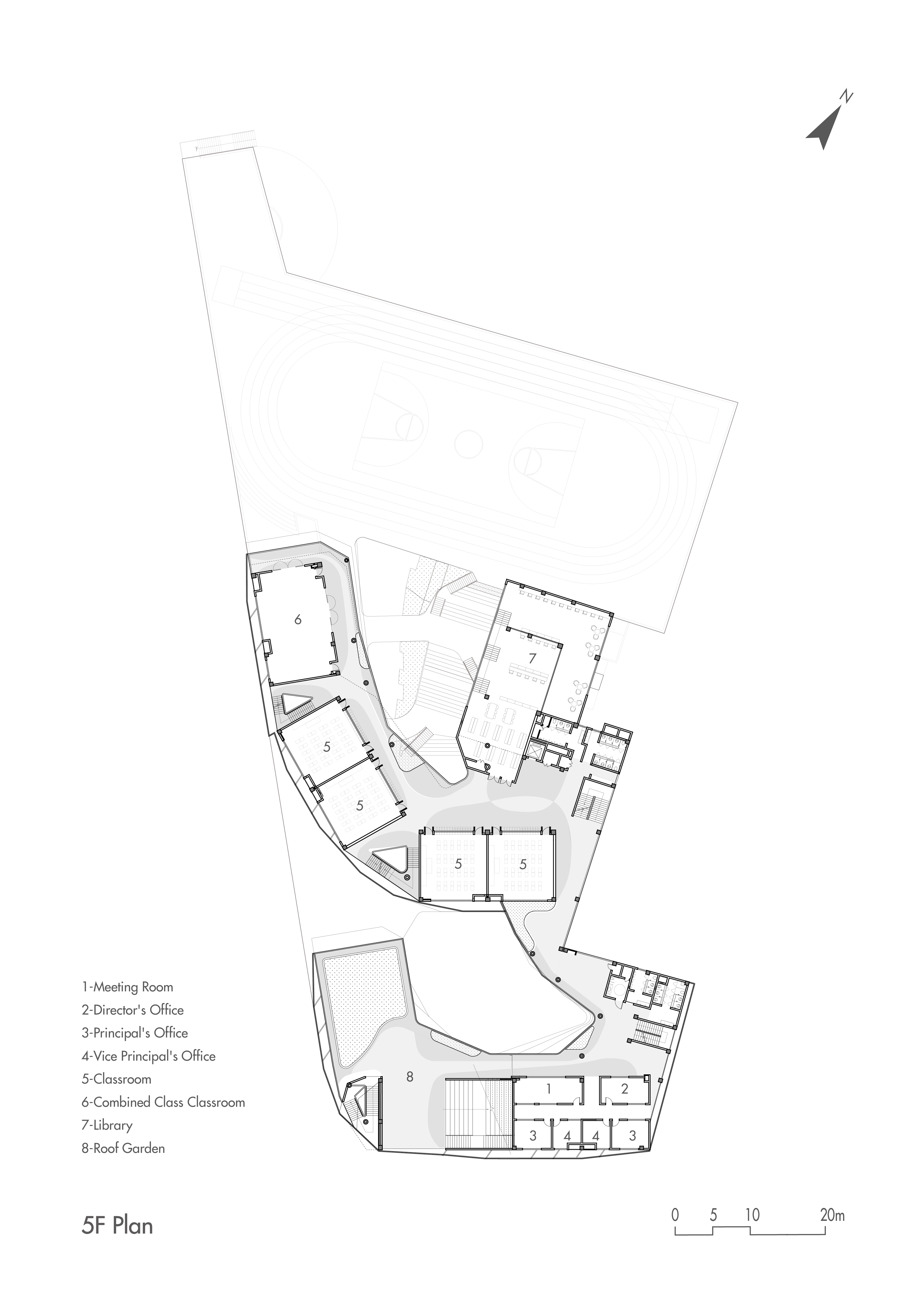
건축가는 ‘3차원 러닝 랜드스케이프(Learning Landscape)’를 제안했다. 학교는 복도에 줄 세우듯 이동하는 공간이 아니라, 서로 다른 조건의 장(場)을 연속적으로 통과하는 흐름의 공간으로 구성됐다. 그래서 이 프로젝트는 다양한 크기와 밝기 그리고 높낮이와 시야를 가진 ‘공간의 그라데이션’을 만든다. 동시에 이 시스템은 교육 방식이 변해도 시간이 지나며 재조정될 수 있도록 유연한 공간으로 설계됐다.
중요한 것은, 학교의 외부공간도 학습공간으로 계획되었다는 점이다. 지붕이 있는 외부 공간, 사람이 앉고 머물 수 있도록 설계된 건축적 요소 그리고 외부로 열리는 교실들이 실내외 경계를 흐린다. 밖에서 이루어지는 수업은 책상이라는 한계에서 벗어나, 실험과 관찰, 자연과의 소통을 가능하게 만든다.
이 프로젝트는 산, 계곡, 해변 세 가지 풍경 요소로 구체화됐다.
산은 중정에 놓여 극장과 식당을 품는다. 계단식 입면은 수직 동선이자 관람석으로 사용할 수 있고, 하부의 융기된 지형은 공연과 이벤트를 위한 무대가 된다.
계곡은 저학년들이 사용하는 공간으로, 양쪽 계단이 중앙의 둔덕으로 내려가며 테라스형 좌석을 만든다.
해변은 물결치는 언덕 형태의 지형으로 구성되어, 어린 학생의 신체 발달을 돕고 정답이 정해지지 않은 놀이를 유도하는 공간이다.
학교 곳곳의 넓은 중간 공간은 수업, 그룹 모임, 우연한 만남이 이뤄지는 장소다. 도서관, 체육 시설 등 층을 넘나드는 테라스 공간은 시각적·물리적 연속성을 강화하는 요소로 쓰인다.
또한 학교 곳곳에 심겨진 식재는 선전의 열대성 기후에 대응해 그늘을 만들고, 깨끗한 공기를 만들며, 도로의 소음을 흡수하는 역할도 한다. 동시에 학생들은 식물을 관찰하고 돌보며, 이를 배움의 재료로 삼는다.
도시적으로 이 학교는 북측의 큰 공원을 연장하는 장치로도 사용된다. 녹지는 학교 내부의 일상을 풍성하게 만들 뿐 아니라, 상업 개발 때문에 생기는 도시의 열섬 현상을 완화하는 공공적 효과까지 만들어낸다.























건축가 피플스 아키텍처 오피스 (People's Architecture Office)
위치 중국, 선전
용도 초등학교
연면적 20,535 m²
설계기간 2020 – 2025
준공 2025
대표건축가 He Zhe, James Shen, Zang Feng
디자인팀 Li Zhenghua, Kim Dahyun, Xu Jialing, Yang Qian, Wang Dawei, Wang He, Li Qiuwan, Zhang Yichen, Wang Chengchen, Yuan Yingying, Luo Qinming, Jiang Ying, Hu Zhi'an, Lin Mingkai, Wang Guyixin, Guo Mingran, Xu Huihang
인테리어 The ZEN Design, Shenzhen Shengjing Design Consultants
구조엔지니어 Beijing Shouang Architectural Design
시공 Shenzhen Pan-China Engineering Group
발주자 Shenzhen Futian District Public Works Department / Futong Real Estate / Shenzhen Mingde Wuzhou Primary School
사진작가 Zhu Yumeng, People’s Architecture Office
'Architecture Project > Education' 카테고리의 다른 글
| 캠퍼스의 일상을 하나로 묶다, 블룸버그 스튜던트 센터 / 비아이지 (0) | 2026.02.04 |
|---|---|
| 내부보다 넓은 외부를 품다, 아파르타멘투 카베델루 / 리카르두 아제베두 아르키텍토 (0) | 2026.01.28 |
| 작지만 입체적인 유치원 건축 / 체르스텐 (0) | 2026.01.09 |
| 중정과 정원 사이를 오가는 유치원 / 엑스토픽스 아르키텍티 (0) | 2026.01.05 |
| 머무는 캠퍼스를 만드는 중심 거점, 한양대 유니센터 / 지오아키텍처 (0) | 2025.12.22 |
마실와이드 | 등록번호 : 서울, 아03630 | 등록일자 : 2015년 03월 11일 | 마실와이드 | 발행ㆍ편집인 : 김명규 | 청소년보호책임자 : 최지희 | 발행소 : 서울시 마포구 월드컵로8길 45-8 1층 | 발행일자 : 매일















