
Apartamento Cabedelo
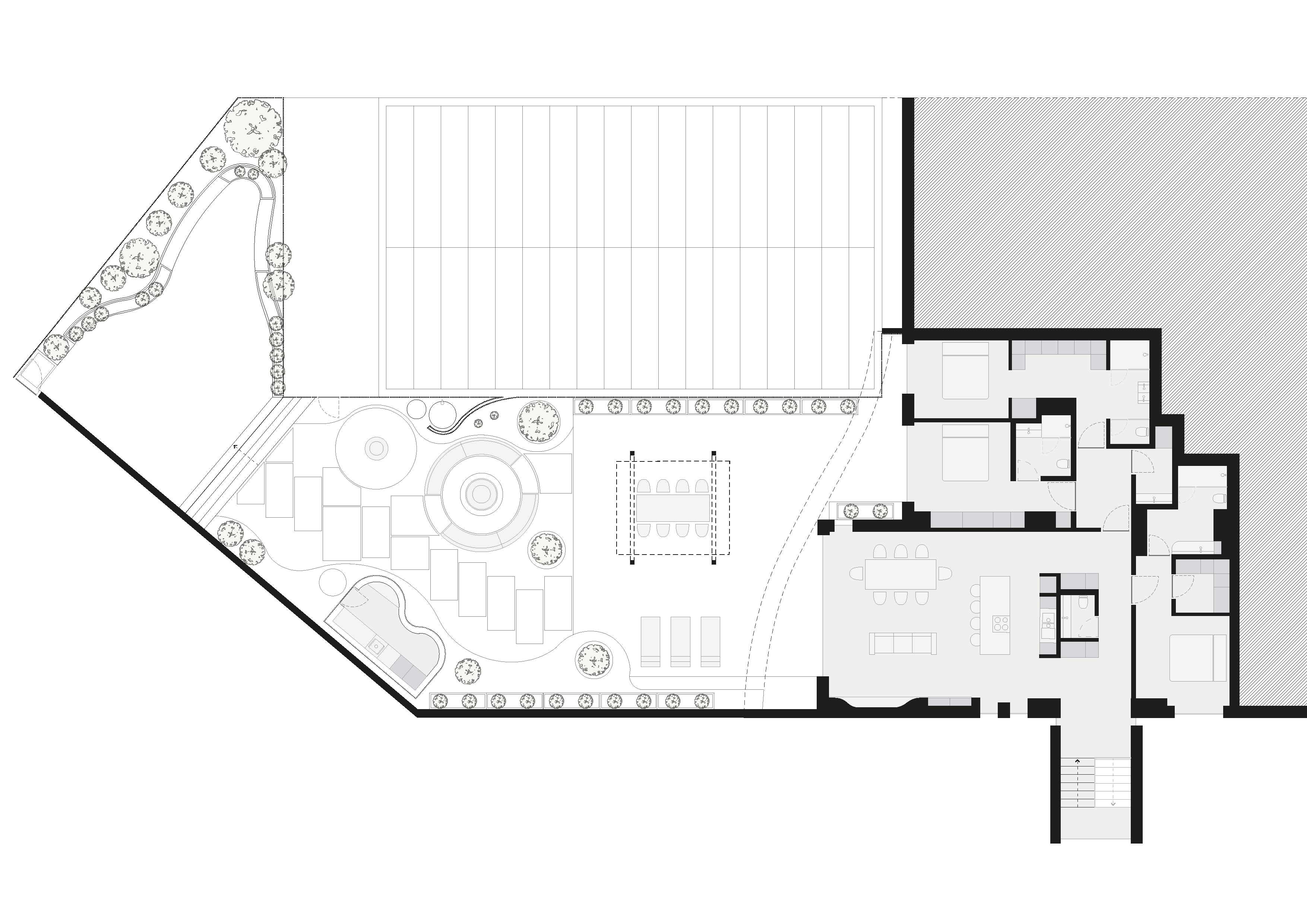
포르투갈 북부 비아나 두 카스텔루 카베델루에 위치한 Apartamento Cabedelo는 ‘아파트’라는 주거 유형이 지닌 관습적 한계를 다시 묻는 프로젝트이다. 바다 인근에 자리한 이 건물은 주변에서 흔히 볼 수 있는 익명적인 공동주택 중 하나였으며, 기존 상태에서는 공간적·경험적 가치가 충분히 발현되지 못하고 있었다. 그러나 이 주거의 가장 큰 특징은 실내 면적보다 더 넓은 외부 공간이었고, 설계는 바로 이 잠재력에서 출발했다.
설계를 맡은 리카르두 아제베두 아르키텍토(Ricardo Azevedo Arquitecto)는 주거 전반을 다시 조직하는 것을 핵심 과제로 설정했다. 기능을 합리적으로 재배치하고, 동선을 단순화하며, 면적을 효율적으로 활용하는 동시에 실내와 실외의 관계를 적극적으로 확장하는 데 초점을 맞췄다. 특히 생활의 중심이 되는 ‘사회적 영역’을 실내와 실외로 분절하면서도 하나의 연속된 공간으로 인식되도록 구성해, 거주자와 방문자 모두가 자연스럽게 이 공간을 공유하도록 했다.
계획의 중심에는 거실, 다이닝, 주방이 결합된 오픈 공간이 놓인다. 이 공간은 주거의 중심이자, 외부 공간으로 확장되는 출발점이다. 실내의 생활 영역은 긴 외부 공간과 직접적으로 연결되며, 외부 역시 ‘머무르고, 먹고, 요리하는’ 동일한 프로그램을 수용한다. 경계는 명확히 나뉘기보다 점진적으로 흐려지고, 사용 방식에 따라 공간의 성격이 유연하게 변화한다. 이는 특히 여름철의 생활 리듬과 맞닿아 있으며, 휴가와 일상이 겹쳐지는 순간을 자연스럽게 포착한다.
재료 선택은 이러한 공간적 의도를 뒷받침한다. 실내에는 대리석과 포세린 타일, 미장 마감과 석고보드, 마루 바닥과 일부 카펫이 조합되어 사용되었다. 각각의 재료는 과장되지 않게, 그러나 명확한 역할을 갖고 배치되어 전체적인 분위기를 조율한다. 실외 공간에는 목재 데크를 중심으로 휴식과 목욕, 사교를 위한 다양한 장면이 마련되었고, 외부는 단순한 부속 공간이 아닌 또 하나의 거실로 기능한다.
전체 개입 면적은 약 160㎡의 실내 공간, 100㎡의 반외부 공간, 200㎡의 개방된 외부 공간으로 구성된다. 세 개의 침실을 포함한 주거 공간은 다양한 스케일의 ‘머무름’을 허용하며, 생활·이동·휴식·여가의 장면이 서로 중첩된다. 이 주택은 단순히 평면을 개선하는 데 그치지 않고, 거주자의 삶의 방식에 맞춰 공간의 위계를 다시 설정한다.
Apartamento Cabedelo는 과도한 형식이나 제스처를 앞세우지 않는다. 대신, 주어진 조건을 세심하게 해석하고, 내부보다 넓은 외부라는 특수한 상황을 주거의 핵심 자산으로 전환한다. 이 프로젝트는 주거가 단순한 ‘면적의 합’이 아니라, 어떻게 사용되고 경험되는가에 따라 완전히 다른 공간이 될 수 있음을 보여준다. 이 과정에서 건축은 배경이 아니라, 삶의 만족을 이끄는 주된 역할로 자리한다.



























건축가 리카르두 아제베두 아르키텍토(Ricardo Azevedo Arquitecto)
위치 포르투갈, 비아나 두 카스텔루, 카베델루
용도 주거
연면적 460㎡
준공 2025
대표건축가 Ricardo Silva Azevedo
프로젝트건축가 Rute Castro, Ana Machado
조명디자인 Ricardo Azevedo Arquitecto
인테리어 AAR Déco
사진작가 Ivo Tavares Studio
'Architecture Project > Education' 카테고리의 다른 글
| 자연의 지형을 닮은 새로운 배움의 공간 / 피플스 아키텍처 오피스 (0) | 2026.04.16 |
|---|---|
| 캠퍼스의 일상을 하나로 묶다, 블룸버그 스튜던트 센터 / 비아이지 (0) | 2026.02.04 |
| 작지만 입체적인 유치원 건축 / 체르스텐 (0) | 2026.01.09 |
| 중정과 정원 사이를 오가는 유치원 / 엑스토픽스 아르키텍티 (0) | 2026.01.05 |
| 머무는 캠퍼스를 만드는 중심 거점, 한양대 유니센터 / 지오아키텍처 (0) | 2025.12.22 |
마실와이드 | 등록번호 : 서울, 아03630 | 등록일자 : 2015년 03월 11일 | 마실와이드 | 발행ㆍ편집인 : 김명규 | 청소년보호책임자 : 최지희 | 발행소 : 서울시 마포구 월드컵로8길 45-8 1층 | 발행일자 : 매일



