
CORRIDOR HOUSE 2.0
트리수르(Thrissur)의 활기찬 고속도로 변, 차량의 소음과 먼지가 끊이지 않는 경사진 대지에서 ‘코리도 하우스(Corridor House)’는 먼저 방어의 태도로 시작한다. 건축주가 원한 것은 가족만의 평온한 은신처였다. 그래서 건축가는 집을 드러내기보다, 외부의 움직임을 한 번 걸러내는 장치부터 계획했다.
대지 전면을 따라 길게 세운 두꺼운 벽은 방패이자 조형물이다. 이 벽은 소음과 시선, 먼지를 막아내며, 경계를 넘는 순간 리듬을 바꾼다. 다만 완전한 차단은 공간을 무겁게 만들기 때문에, 벽에 작은 보이드를 반복적으로 디자인했다. 작은 보이드들은 빛과 바람을 여과해 들이며, 단단한 경계를 ‘살아 있는 표면’으로 바꾼다. 이 빈틈의 모티프는 외부 파사드, 문 패턴, 실내 디테일까지 이어져 빛과 그림자로 집 전체의 리듬을 만들어낸다.
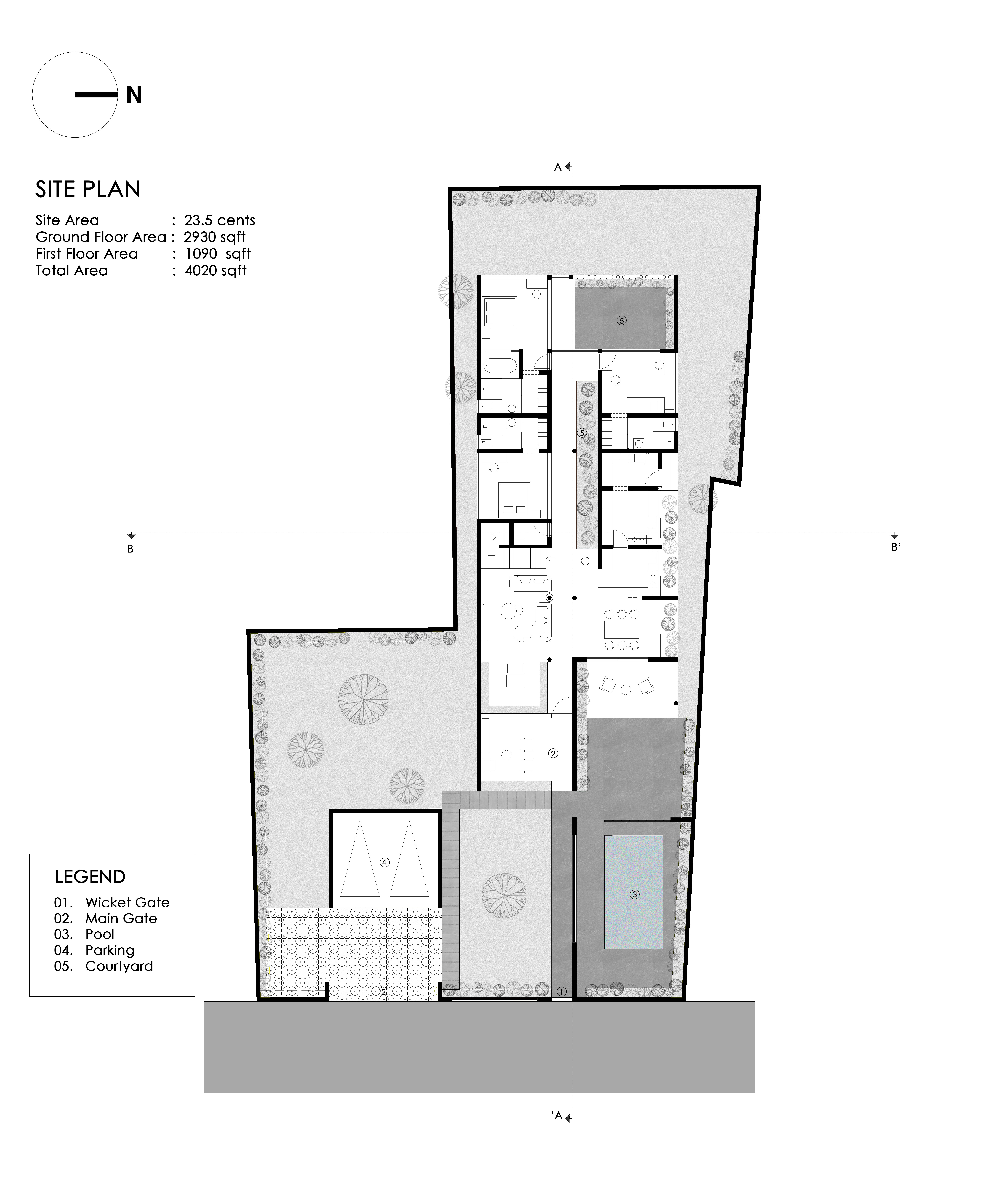
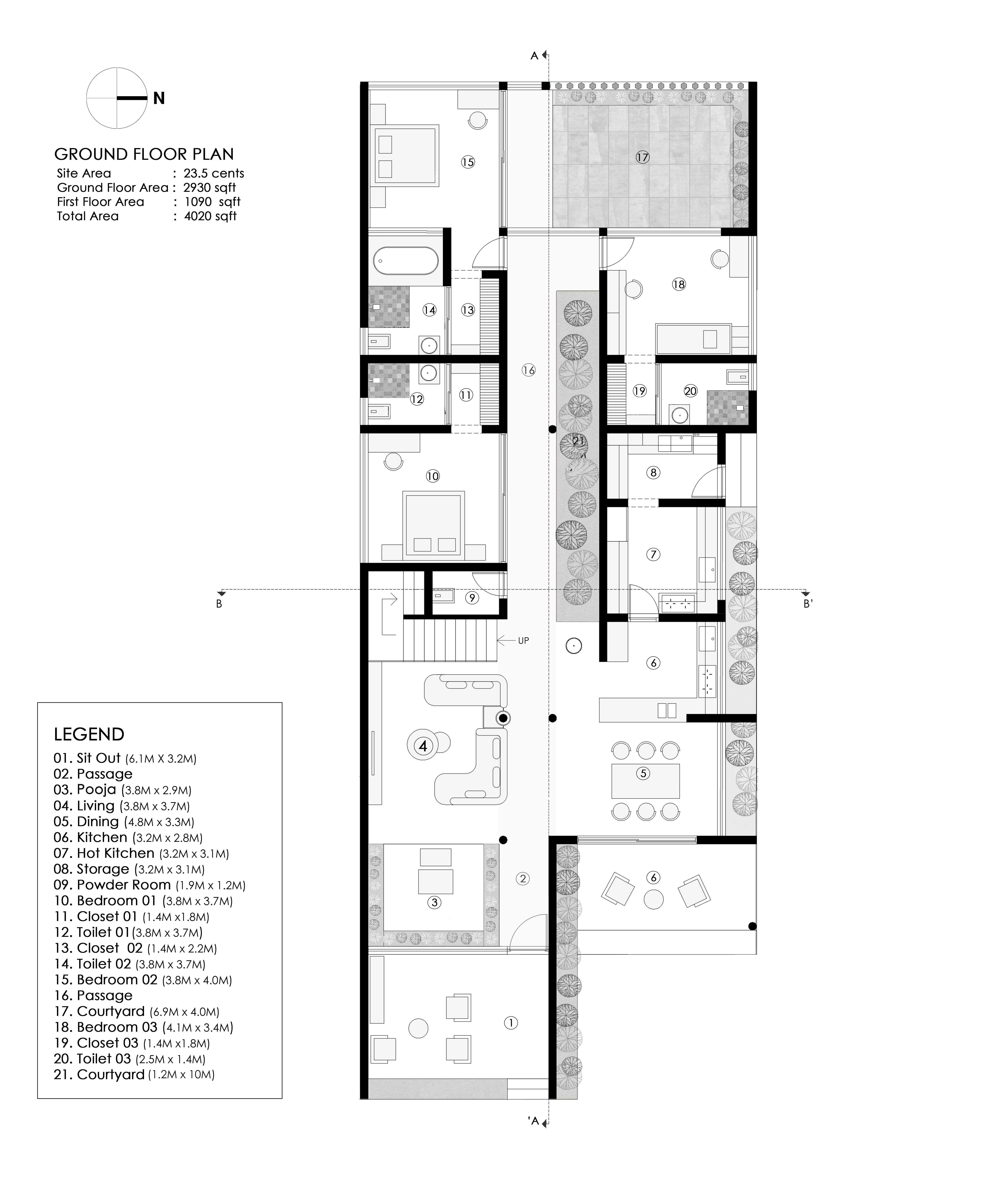
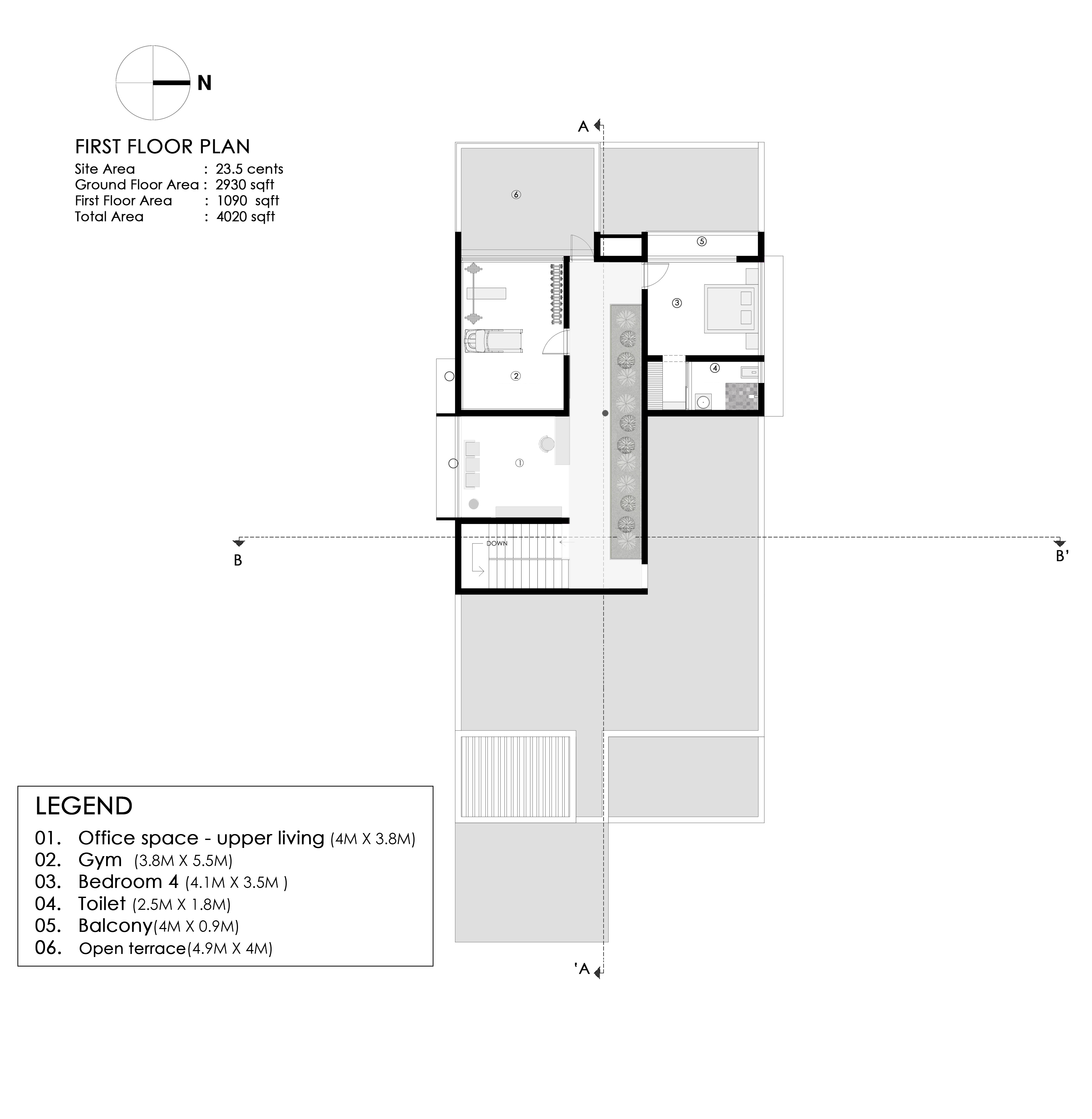
이 집의 두 번째 핵심은 이름 그대로 ‘복도’다. 집의 중심을 관통하는 긴 복도는 단순한 통로가 아니라, 공간을 조직하는 핵심이자 경험의 시나리오다. 현관에서 가장 깊은 곳까지 이어지는 선형의 여정 위에 거실과 침실 그리고 여가 공간이 부드럽게 배치되고, 복도 주변에는 중정과 작은 녹지 포켓들이 함께 계획되어 모든 방이 숨을 쉬는 듯한 느낌이 들게 한다. 복도를 걷는 동안 시선은 반복적으로 열리고 닫히며, 빛·질감·풍경의 변화가 공간을 ‘이동’이 아닌 ‘체험’으로 바꾸어내는 듯하다.
한쪽에는 아침 빛이 스며드는 푸자(pooja) 중정이 있고, 이어지는 거실은 마치 공간의 틈마다 녹지가 놓여있는 듯한 느낌을 준다. 거실의 반대편에는 다이닝, 주방, 보조 주방, 창고가 한 데 모아져있어 기능적으로 유리하도록 계획되었다. 복도 중간의 계단은 중정으로부터 자연광을 받으며 위층으로 이어진다. 파사드 근처의 수영장은 황토색 벽과 대조되어 시각적인 부분 뿐만 아니라 온도도 완충할 수 있는 장치다.
재료와 분위기는 ‘따뜻한 단색(오커 계열)’을 주로 사용했다. 무광의 회벽 질감, 원형 타공, 목재 패널, 회색 석재 바닥이 따뜻함과 대비를 이루고, 밤에는 조명이 벽의 보이드 부분의 반복되는 리듬을 강조해 고속도로 변에서 존재감을 만든다.
코리도 하우스가 보여주는 것은 ‘닫음’ 그 자체가 아니라, 외부가 집 안으로 들어오는 방식을 정교하게 설계하는 태도다. 벽은 차단이 아니라 조율이 되고, 복도는 이동이 아니라 거주 경험의 중심이 된다.











건축가 아이2에이 아키텍츠 스튜디오(i2a Architects Studio)
위치 인도, 트리수르
용도 단독주택
대지면적 10,235ft²
연면적 4,020ft²
준공 2025
대표건축가 Manuraj C R
프로젝트건축가 Sanjukta Chakraborty
사진작가 Vishnu V Nath
'Architecture Project > Single Family' 카테고리의 다른 글
| 열과 바람을 다루는 집 / 에이치.에이 (0) | 2026.04.07 |
|---|---|
| 물성으로 만든 부유하는 집 / 에스투디오 아마탐 (0) | 2026.03.31 |
| 땅과 바다의 부드러움을 담은 집 / 알렉시스 도르니에 (0) | 2026.03.27 |
| 떠 있는 석재 매스, 예술을 위한 주거 공간 / 알터스튜디오 아키텍처 (0) | 2026.03.25 |
| 교차하는 두 입방체, 가족의 시간을 담은 공간 / (주)엘케이에스에이 건축사사무소 (0) | 2026.03.20 |
마실와이드 | 등록번호 : 서울, 아03630 | 등록일자 : 2015년 03월 11일 | 마실와이드 | 발행ㆍ편집인 : 김명규 | 청소년보호책임자 : 최지희 | 발행소 : 서울시 마포구 월드컵로8길 45-8 1층 | 발행일자 : 매일













