
Conversion of a parking lot into social housing
파리 17구, 놀레 거리 29번지의 프로젝트는 ‘낡은 주차장을 사회주택으로 바꾼다’는 한 문장보다 훨씬 더 구체적인 질문에서 시작한다. 사방이 인접 건물로 둘러싸여 시각적 여유가 거의 없는 필지에서, 새로 짓는 방식은 결국 이격 규정 때문에 북향 위주의 주거를 양산하고, 이웃과의 프라이버시를 확보하지 못하는 문제를 키우기 쉽다. 게다가 기존 건축물의 전면 철거는 폐기물·분진·소음 때문에 공사 비용이 많이 든다는 단점이 있다. 건축가는 이 조건을 불리한 제약이 아니라, 기존 구조가 가진 가능성으로 재해석했다.
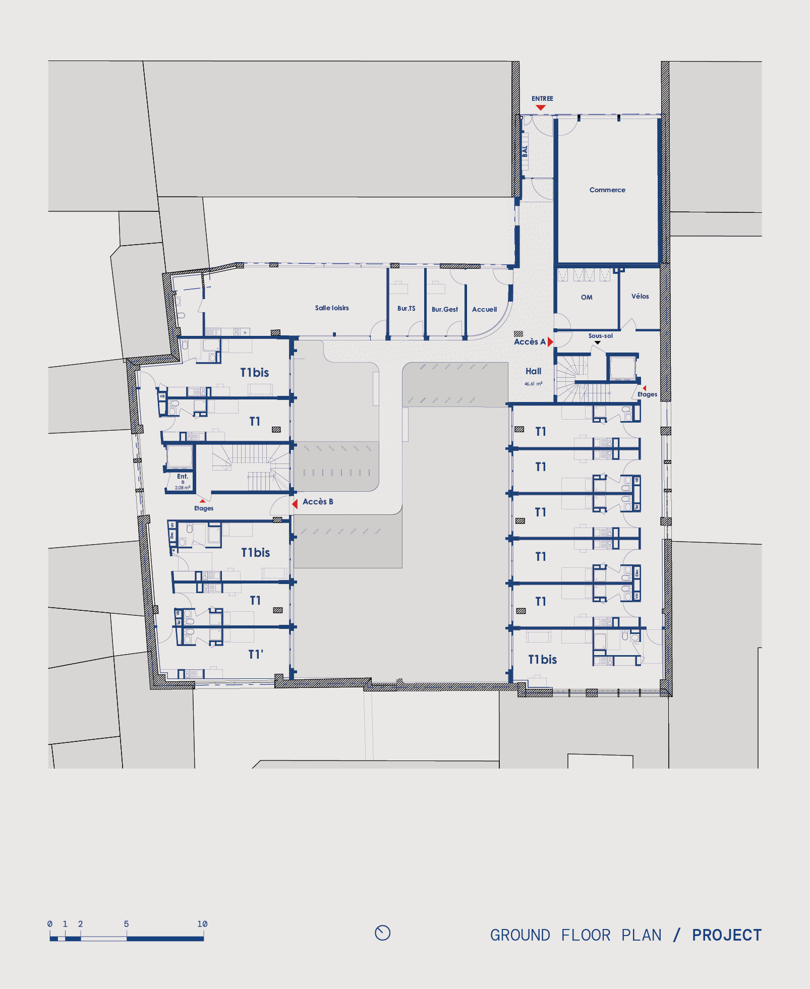
1930년대에 만들어진 주차장은 하부 3개 층의 콘크리트 구조가 비교적 양호했고, 상부는 철골 구조와 넉넉한 층고를 갖고 있었다. 즉, ‘기억할 만한 물성’과 ‘재사용 가능한 뼈대’가 동시에 남아 있었다. 설계의 핵심 제스처는 남북 방향으로 하나의 베이를 통째로 덜어내는 결정이다. 이 비움은 두 개의 건물로 프로그램을 분리하는 동시에, 블록 내부 깊숙한 곳까지 직사광을 끌어들여 ‘진짜 지상 정원’이 가능한 중정을 만들어낸다.
새로 조성된 중정은 공동 생활의 인프라다. 레저룸, 자전거 보관, 세탁실, 공용 주방 같은 공유공간과 직원(운영) 공간이 중정을 바라보며 배치됐다. 복도가 아니라 마당을 감싸는 길로 경험을 바꾸는 방식이다. 이 덕분에 제한된 필지에서도 실내는 더 이상 폐쇄적인 공간이 아니라, 빛과 시선이 오가는 집합적 구조로 읽힌다.
주거는 스튜디오형이 83실로 구성되었으며, 동서 방향으로 단순하고 명료하게 조직됐다. 중요한 점은 북쪽을 향하는 유닛을 만들지 않았다는 것이다.
두 개의 동은 14m 이상 이격되어 중정을 향해 시야가 열려있고, 기존의 볼륨을 유지했다. 역설적으로, 내부를 비움으로써 주변 이웃에게도 더 깊고 열린 시각 통로가 생겼다.
이 프로젝트에서 또한 주목해야 할 점은 ‘가벼움’과 ‘건식공법'이다. 기존 주차장 구조를 사용하기 위해 목구조와 바이오 기반(목섬유) 단열을 프리패브 패널로 사용했고, 파사드는 아노다이징 알루미늄 카세트 패널로 계획했다. 목재 창호와 외부 차양이 계절에 따른 일사 조절을 맡는다. 결국 이 프로젝트는 ‘새로 짓지 않음’이 곧 소극적 선택이 아니라, 도시 안에서의 책임 있는 기술적·사회적 선택이 될 수 있음을 보여준다.
29 rue Nollet의 사회주택은 변환을 하나의 창조 행위로해석했다. 남겨야 할 것을 남기고, 비워야 할 곳을 비워 중정을 만들며, 그 중정을 중심으로 주거와 공동체의 일상을 다시 배열한다. 주차장의 기억을 지우지 않으면서도, 그 기억이 다른 삶의 기반으로 전환되는 방식이 이 작업의 가장 설득력 있는 지점이다.














건축가 엔지아이 아르시텍트 (NZI Architectes)
위치 프랑스, 파리
용도 사회주택
연면적 2,450.1m²
설계기간 2019 – 2025
준공 2025. 12
대표건축가 Sandra de Giorgio, Gianluca Gaudenzi
구조엔지니어 I+A
기계엔지니어 B52
전기엔지니어 B52
시공 Genere
발주자 RIVP / HÉNÉO
사진작가 Fréderic Delangle, Nzi Architectes, Juan Sepulveda Grazioli
'Architecture Project > Multifamily' 카테고리의 다른 글
| 변하는 도시를 포용하는 주거공간 / 그루포 우노 엔 우노 (0) | 2026.04.17 |
|---|---|
| 바다와 직접 맞닿은 레지던스 / 아폴로 아키텍츠 앤 어소시에이츠 (0) | 2026.03.19 |
| 체커보드로 재구성한 도시 외곽, 티라나 ‘망갈렘 21’ / 오엠에이 (0) | 2026.03.05 |
| 브루탈리즘 위에 세운 100미터의 응답, 벙커 타워 / 파워하우스 컴퍼니 (0) | 2026.03.04 |
| 곡선형 스크린으로 기후에 대응하다, 나그푸르의 주거 타워 / 산제이 푸리 아키텍츠 (0) | 2026.02.27 |
마실와이드 | 등록번호 : 서울, 아03630 | 등록일자 : 2015년 03월 11일 | 마실와이드 | 발행ㆍ편집인 : 김명규 | 청소년보호책임자 : 최지희 | 발행소 : 서울시 마포구 월드컵로8길 45-8 1층 | 발행일자 : 매일











