
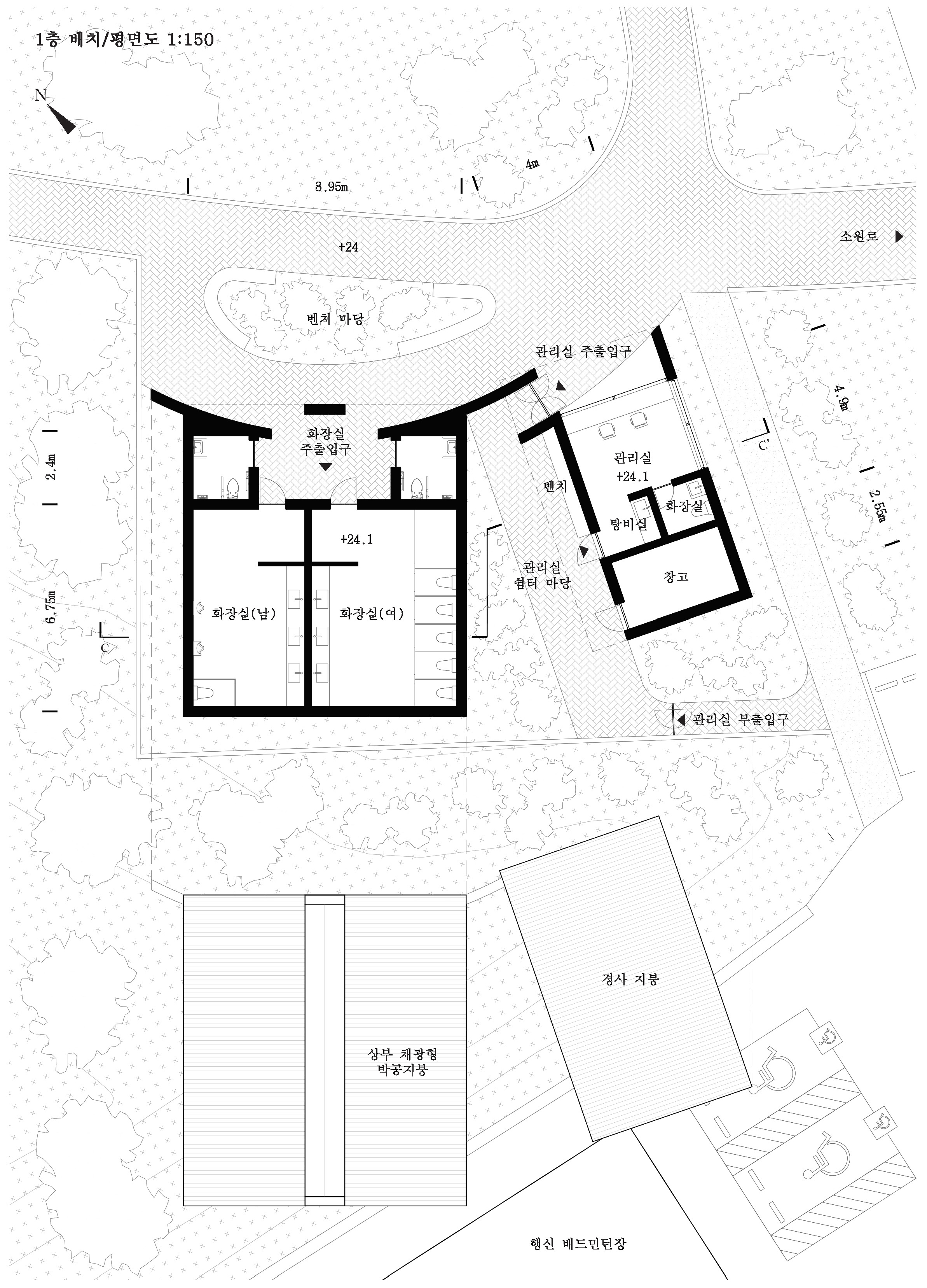
머무는 숲속 이정표 : 3색 오두막머무는 오두막
숲속의 작은 오두막은 길을 걷는 사람에게 방향을 제시하고, 잠시 머물고 쉴 수 있는... 이정표의 공간이다. 우리는 이 공원 속에 잠시 쉬어 갈 수 있는 3가지의 작은 오두막을 제안하려 한다. 단순히 걷다 스치는 공간이 아닌, 마치 숲속의 오두막처럼 머물며, 교류할 수 있는 장소가 되었으면 한다.블랙/올리브/레드로 구성된 세 오두막은 서로 다른 기능을 담고 있지만, 오두막의 원형을 공유한다. 익숙한 박공/경사 지붕과 서로 다른 3가지의 색을 통해 넓은 공원 속에서 각자의 위치를 알려주는 이정표로 작용하며, 또 그 지붕 아래에는 잠시 쉬어 갈 수 있는... 작지만 사람들의 기억 속에 오랫동안 남는 토당공원만의 특별한 장소가 되었으면 한다.













pH7 Architects+바운더리스 건축사사무소
2등작_ pH7 Architects(https://www.ph7architects.com) +바운더리스 건축사사무소
대표건축가 홍성범(pH7 Architects)+김윤수(바운더리스 건축사사무소)
대지면적 105,917㎡
연면적 342㎡
건축면적 331.9㎡
건폐율 2.25%
용적률 00.28%
최고높이 4.65m
층수 지하 1층, 지상 1층
구조 철근콘크리트, 중목, 철골 구조
대표건축가 홍성범(pH7 Architects)+김윤수(바운더리스 건축사사무소)
발주처 고양시
'Plans' 카테고리의 다른 글
| (가칭)서울강율초등학교 신설사업 설계공모 용역_ 5등작/ (주)호가건축사사무소 (0) | 2026.03.27 |
|---|---|
| 수석농공단지 청년문화센터 건립사업 설계공모_ 당선작/ (주)내일건축사사무소 (0) | 2026.03.27 |
| 「안동시 정신건강복지센터 건립」 건축 설계공모 공고_ 당선작/ 와이원건축사사무소 (0) | 2026.03.25 |
| 문의면 기초생활거점조성사업 기본 및 실시설계용역_ 당선작/ 일월건축사사무소 (0) | 2026.03.23 |
| 옥포대첩정 궁도장 건립_ 4등작 / 수조건축사사무소(주) (0) | 2026.03.23 |
마실와이드 | 등록번호 : 서울, 아03630 | 등록일자 : 2015년 03월 11일 | 마실와이드 | 발행ㆍ편집인 : 김명규 | 청소년보호책임자 : 최지희 | 발행소 : 서울시 마포구 월드컵로8길 45-8 1층 | 발행일자 : 매일



