
따뜻한 포옹을 전하는 정신건강복지센터
치매안심센터와 다목적체육관 사이로 펼쳐진 나지막한 대지에 앉은 정신건강복지센터는 치유가 필요한 사람에게는 마음을 감싸는 따뜻한 공간이 되고, 시민을 위해 일하는 사람에게는 일상을 연결하는 공공 치유 플랫폼이 된다. 기존의 환경과 대지의 질서를 존중하면서도 정신건강복지센터만의 ‘따뜻한 포옹’을 전하는 정체성을 구현해 낼 수 있도록 고민하였다.
주변환경을 껴안다
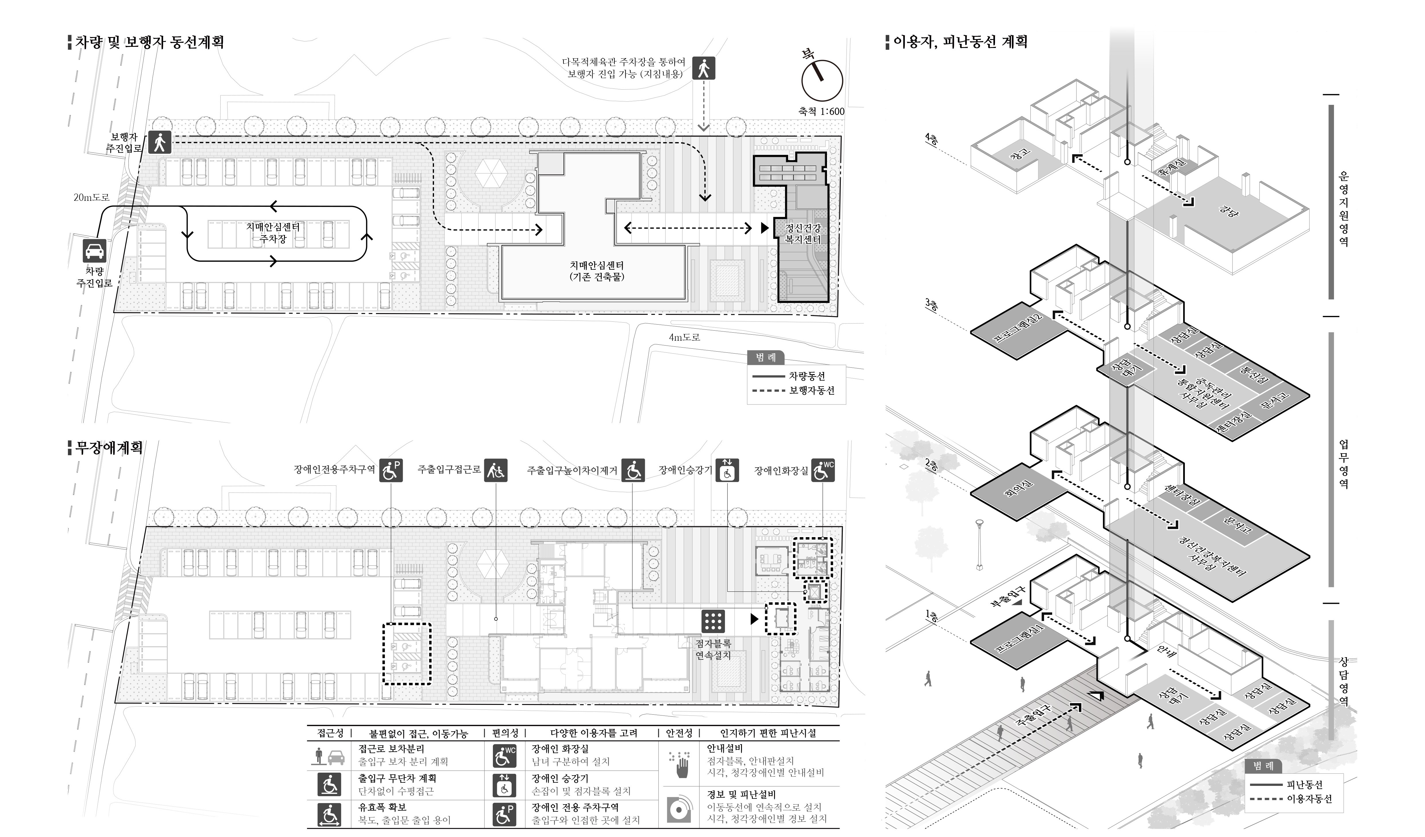
부지 내 치매안심센터와 부지 주변의 다목적체육관 모두 공공이 이용하는 시설이다. 공공시설과 정신건강복지센터는 비워진 외부공간을 통해 연결된 공간을 공유한다. 이러한 ‘비움’의 공간을 존중하고 안아줄 수 있는 배치를 통해 주변환경과 공존한다.
질서를 품다
부지 내 기존 치매안심센터의 진입동선체계를 유지하는 동시에 확장하여 금회 정신건강복지센터까지 자연스럽게 스며들도록 하였다. 기존 질서를 품어 확장된 질서가 되도록 계획하였다.
공간을 감싸다
감싸안은 형태를 형상화한 입면은 ‘따뜻한 포옹’을 시각화 하였으며, 제안된 남향의 수공간은 공간을 감도는 고요함 속에서 쉼을 제공한다.
평면계획
상담영역은 저층부에, 업무영역은 중층부에 배치하여 이용자별 편의성을 고려하였고, 홀을 중심으로 운영지원영역과 업무영역의 기능적 독립성을 부여하였다. 명료한 코어 계획을 통해 제한된 건폐율 내 공공업무시설로서 공간 활용도를 극대화하였다.











와이원건축사사무소
당선작_ 와이원건축사사무소 (http://www.yone-archi.com)
대표건축가 양승무
대지면적 3,940.00㎡
연면적 924.72㎡
건축면적 233.66㎡
건폐율 19.96%
용적률 48.83%
최고높이 19.80m
층수 지상 4층
구조 철근콘크리트구조
대표건축가 양승무
디자인팀 송정진, 최진주, 조미경, 이수민, 윤여상, 오치호, 김주현, 이승호
조경면적 409㎡
주차대수 52대
발주처 안동시보건소 마음건강과
'Plans' 카테고리의 다른 글
| 토당제1근린공원 편익시설 건축 설계공모(간이공모)_ 2등작/ pH7 Architects (0) | 2026.03.25 |
|---|---|
| 문의면 기초생활거점조성사업 기본 및 실시설계용역_ 당선작/ 일월건축사사무소 (0) | 2026.03.23 |
| 옥포대첩정 궁도장 건립_ 4등작 / 수조건축사사무소(주) (0) | 2026.03.23 |
| 경남 남해경찰수련원 신설 신축사업 설계 용역(제안공모)_ 당선작/ (주)길종합건축사사무소 (0) | 2026.03.19 |
| 고양소방서 관산119안전센터 신축 설계공모_ 4등작/ 이오 건축사사무소 (0) | 2026.03.19 |
마실와이드 | 등록번호 : 서울, 아03630 | 등록일자 : 2015년 03월 11일 | 마실와이드 | 발행ㆍ편집인 : 김명규 | 청소년보호책임자 : 최지희 | 발행소 : 서울시 마포구 월드컵로8길 45-8 1층 | 발행일자 : 매일



