
Adega Vinhos Borges
포르투갈 사브로자, 도루 와인 산지의 중심에 자리한 Adega Vinhos Borges는 와인의 본질을 건축으로 번역한 프로젝트이다. 이 와이너리는 단순한 생산 시설을 넘어, 포도와 토양, 시간의 축적이 공간으로 구현되는 장소로 계획되었다. 설계를 맡은 엠 파랄렐루(Em Paralelo)는 산업 건축의 기능성과 도루 지역 특유의 지형적·문화적 맥락을 동시에 읽어내며, 하나의 통합된 건축 이미지를 제안했다.
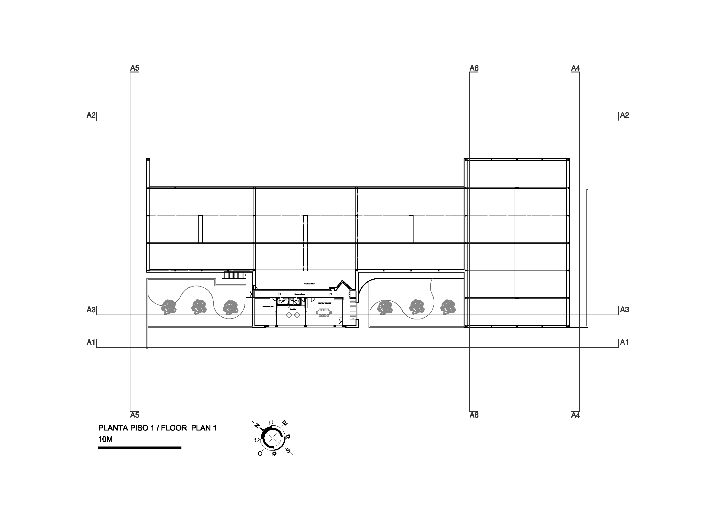
프로젝트는 두 개의 대지를 통합하고 재구성하는 데서 출발했다. 총 4,000㎡ 규모의 지상 공간과 1,000㎡의 지하층, 328㎡의 메자닌을 포함하는 이 건물은 브랜드의 전 생산 공정을 수용하도록 계획되었다. 단순한 면적 확장이 아니라, 지형의 흐름 속에 조화롭게 자리 잡는 새로운 집합적 이미지를 만드는 것이 설계의 핵심이었다.
대지는 북쪽에서 남쪽으로 완만하게 경사진 지형을 지닌다. 건축은 이 자연 경사를 따라 배치되며, 부지 중앙에 축을 형성해 건물을 지면과 수평선 사이에 균형 있게 놓는다. 북측에서는 건물이 부분적으로 지면에 묻혀 보다 안정적으로 보이고, 남측에서는 약간 상승하며 자연 환기와 가벼운 매스 인식을 가능하게 한다. 이러한 배치는 기능적 요구와 풍경적 맥락을 동시에 만족시킨다.
재료는 이 프로젝트의 첫 번째 건축적 제스처이다. 지역에서 채취한 편암은 건물 일부를 감싸며 도루의 계단식 포도밭을 연상시키고, 금속 패널은 와인의 깊은 색조를 닮은 톤으로 마감되어 풍경의 빛을 반사한다. 대형 유리면은 건물을 외부로 개방하며, 내부 생산 공간과 계곡의 풍경이 시각적으로 교차하도록 한다. 건물은 닫힌 산업 시설이 아니라, 풍경과 대화하는 존재로 작동한다.
내부는 생산 공정의 흐름에 따라 구성된다. 중앙에는 대형 스테인리스 스틸 발효 탱크가 배치되어 와이너리의 핵심 공간을 형성한다. 이를 둘러싼 유지관리용 보행 데크는 기술적 정밀성과 동시에 조형적 스케일을 드러낸다. 양측과 메자닌에는 행정 및 사회 공간이 자리하며, 산업적 기능과 사용자 경험이 균형을 이룬다.
균일한 높이의 지붕은 전체 매스의 절제된 인상을 유지하지만, 내부에서는 단차를 통해 7미터가 넘는 층고를 확보해 발효 공정에 필요한 규모를 충족한다. 외부에서는 매스 사이에 녹지를 삽입해 파사드를 분절하고, 건물이 지형 속에서 자연스럽게 호흡하도록 했다.
Adega Vinhos Borges는 산업 건축이 장소의 정체성을 어떻게 계승할 수 있는지를 보여주는 사례이다. 편암과 금속, 빛과 그림자, 인간의 기술과 자연의 리듬 사이에서 건축은 포도밭의 연장선이 된다. 이 와이너리는 생산 시설이면서 동시에, 시간과 토양을 담아내는 하나의 건축적 풍경이다.




































건축가 엠 파랄렐루(Em Paralelo)
위치 포르투갈, 사브로자
용도 와이너리, 산업시설
연면적 4,000 ㎡
준공 2025
대표건축가 Cristina Vaz Santos, Paulo Rodrigues
구조엔지니어 Civitec Eng.Lda., Sousa Marques Engenharia Unipessoal Lda., Niluft Engenharia Lda
기계엔지니어 Civitec Eng.Lda
전기엔지니어 Sousa Marques Engenharia Unipessoal Lda
시공 A.Pimenta Construções, Lda
발주자 Sociedade de Vinhos Borges, S.A
사진작가 Ivo Tavares Studio
'Architecture Project > Other' 카테고리의 다른 글
| 작은 공간에서 완성하는 자율적인 주거 / 아크-쉘터, 아르헥타 (0) | 2026.03.13 |
|---|---|
| 민난 전통을 현대적으로 번역하다, 더블 해피니스 아일랜드의 너브 랩 / 스튜디오 10 (0) | 2026.03.05 |
| 기존 질서에 스며드는 스포츠 센터 / 엠에이치에이피 아르키텍츠 (0) | 2026.01.28 |
| 땅과 식탁 사이의 관계를 다시 그리는, 자오허 생태 농장 / 폰 스튜디오 (0) | 2026.01.26 |
| 역사적 흔적을 바닥에 새긴 열린 광장, 타라클리 타운 스퀘어 / 케이오오피 아키텍츠 (0) | 2026.01.08 |
마실와이드 | 등록번호 : 서울, 아03630 | 등록일자 : 2015년 03월 11일 | 마실와이드 | 발행ㆍ편집인 : 김명규 | 청소년보호책임자 : 최지희 | 발행소 : 서울시 마포구 월드컵로8길 45-8 1층 | 발행일자 : 매일



