
Cabin Devín
슬로바키아 데빈에 위치한 Cabin Devín은 20㎡라는 극도로 제한된 면적 안에서 완전한 자율 거주를 구현한 오프그리드 캐빈이다. 설계는 아크-쉘터(Ark-Shelter)와 아르헥타(Archekta)가 공동으로 수행했다. 이 프로젝트는 단순한 소형 주택이 아니라, 에너지 독립성과 공간 확장의 실험이 응축된 건축적 제안이다.
캐빈은 데빈 성 위쪽, 즐라티 로(Zlatý Roh) 포도밭 가장자리에 자리한다. 오스트리아 알프스로 이어지는 석양의 풍경이 시야에 펼쳐지는 장소이다. 설계는 이 강한 장소성을 배경으로, 사계절 내내 안정감을 유지하면서도 자연과의 직접적 연결을 유지하는 피난처를 목표로 했다.
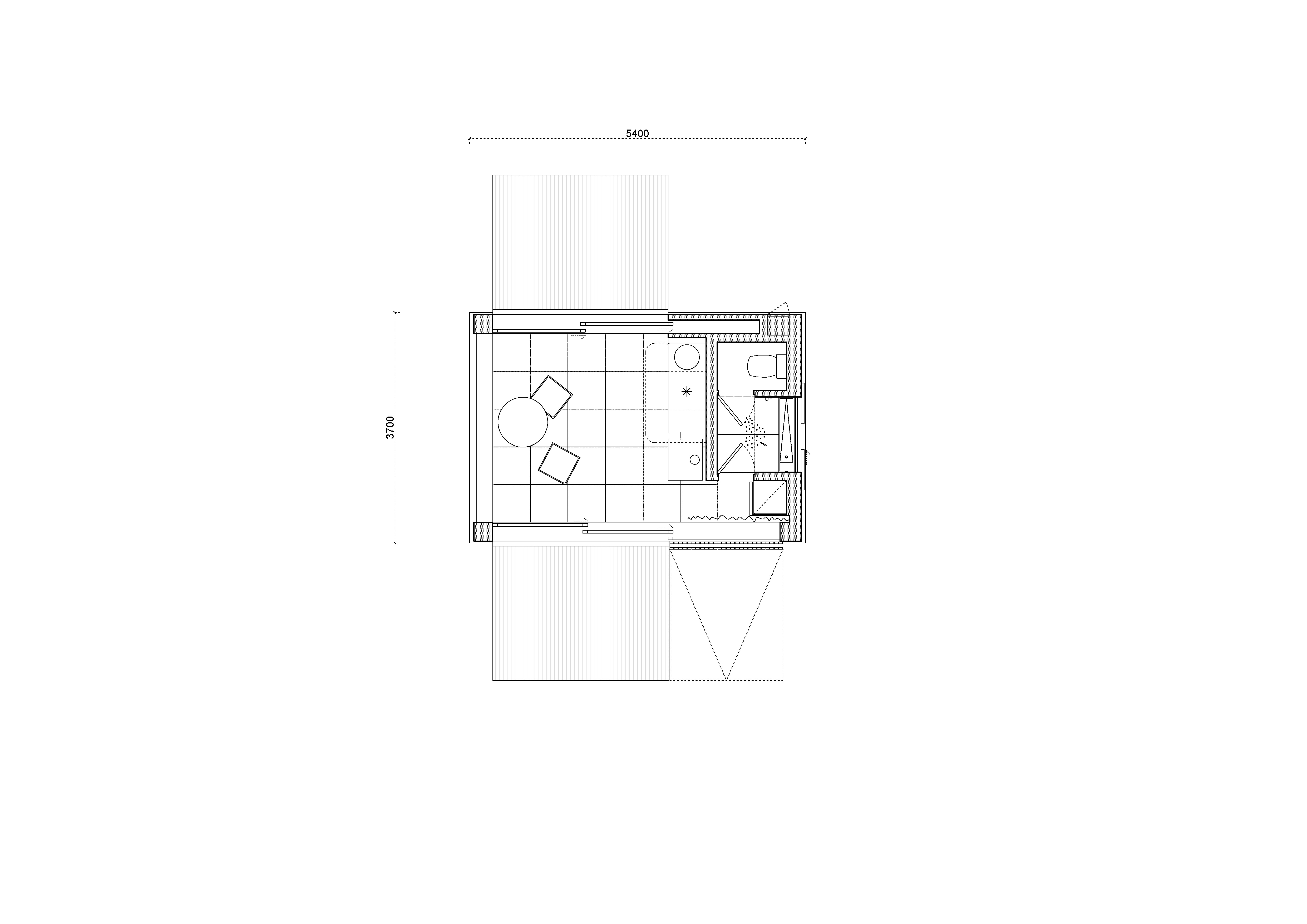
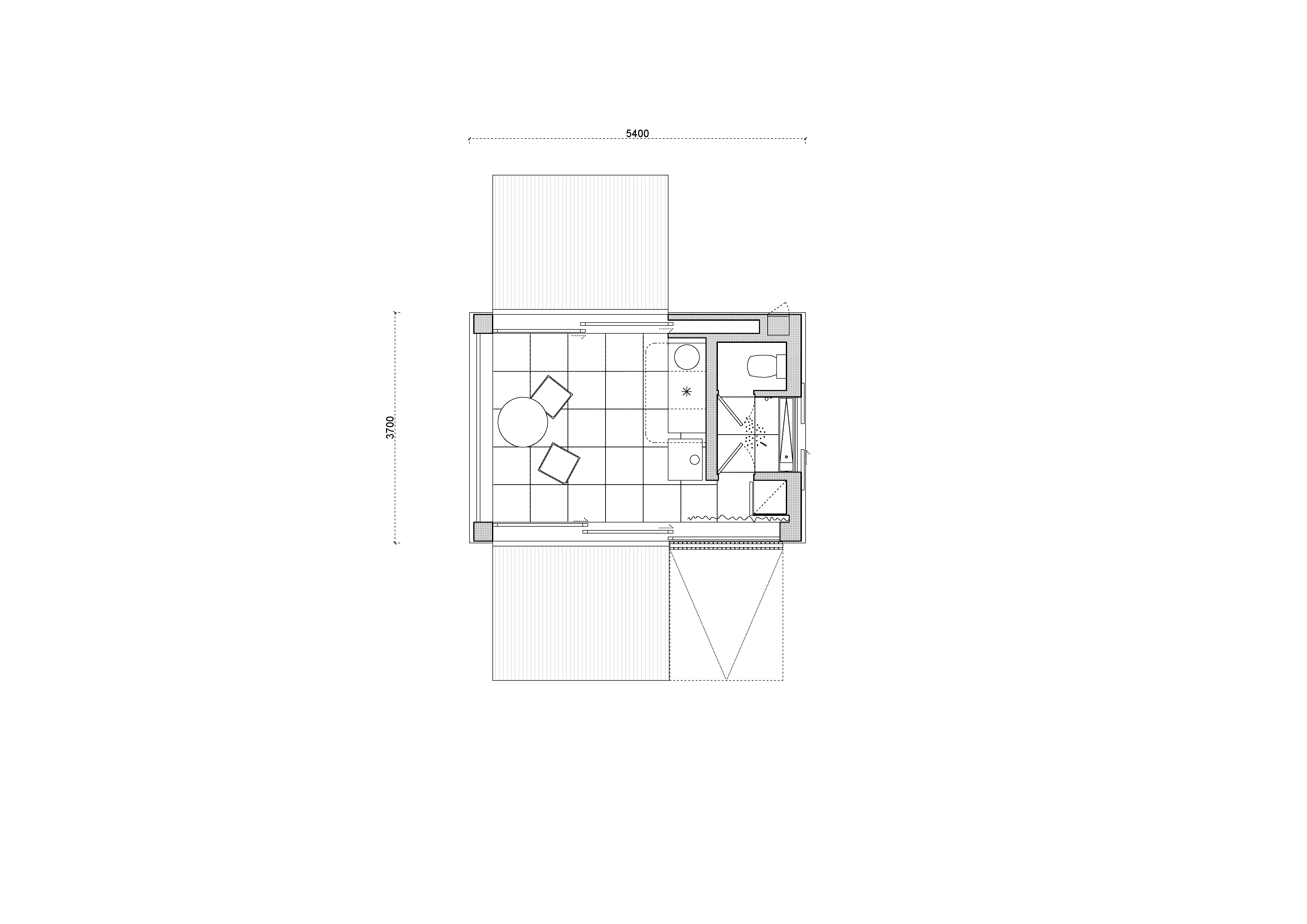
구조는 풍경을 향해 급진적으로 열려 있다. 건물의 두 면은 접이식 테라스로 펼쳐지며, 이를 내리면 슬라이딩 유리 벽이 드러난다. 전면 파사드의 전고 유리는 통합된 차양 시스템으로 조절된다. 일상의 대부분은 이 경계에서 이루어진다. 확장된 순간, 내부는 테라스로 자연스럽게 이어지며 사용 면적은 시각적으로 배가된다. 실내와 실외는 분리된 영역이 아니라 하나의 연속된 장면이 된다.
주 생활 공간 뒤편에는 콤팩트한 키친과 샤워실이 이어진다. 맞춤 제작된 콘크리트 세면대는 창틀 안에 직접 배치되어 숲을 향한 시선을 유도한다. 일상의 동작이 자연과 다시 연결되도록 의도한 장치이다. 저녁이 되면 공간은 또 다른 표정을 드러낸다. 로프트에서 내려오는 펜던트 조명을 당기면 숨겨져 있던 침실이 모습을 드러낸다. 고정 계단을 두지 않고, 필요할 때만 꺼내는 접이식 사다리를 수납장 안에 통합했다. 상부는 유리 대신 단단한 지붕 외피로 감싸여 보다 밀도 높은 내밀함을 형성하고, 천창은 별빛을 받아들인다.
이 캐빈은 감성적으로뿐 아니라 기술적으로도 독립된 주거이다. 사계절 운용이 가능한 완전한 오프그리드 시스템을 갖추었다. 에너지 개념은 태양광 패널과 배터리 저장 시스템, 그리고 가스 백업 시스템의 조합으로 구성된다. 배터리 잔량이 일정 수준 이하로 떨어지면 고출력 장치는 자동으로 가스로 전환된다. 조명과 소형 기기는 전기를 우선 사용하고, 난방·냉방 등 고에너지 장치는 자원 상황에 따라 유연하게 작동한다.
생활용수는 바닥 아래 숨겨진 저장 탱크에 보관되며, 별도의 오수 탱크가 마련되었다. 과열 방지를 위해 지능형 차양과 제어 환기 시스템을 도입했다. 여름에는 북측 바닥 아래에서 차가운 공기를 끌어들여 천창 아래 열회수 장치를 통해 배출한다. 겨울에는 양방향 작동 방식으로 전환되며, CO₂ 및 습도 센서가 실내 환경을 자동으로 조절한다.
Cabin Devín은 최소한의 부피 안에 최대한의 경험을 압축한 건축이다. 작지만 확장 가능하고, 닫혀 있으면서도 열려 있다. 물리적 규모는 작지만, 공간적 강도와 기술적 자율성은 극대화되어 있다. 이 프로젝트는 모듈러 시스템이 장소성과 감각적 경험을 존중하는 방식으로 진화할 수 있음을 보여준다.















건축가 아크-쉘터(Ark-Shelter), 아르헥타(Archekta)
위치 슬로바키아, 브라티슬라바, 데빈
건축면적 20㎡
연면적 14.7㎡
설계 2023
준공 2024
대표건축가 Martin Mikovčák, Viktor Mikovčák
디자인팀 Barbora Šimášková, Ondrej Vavro, Radovan Hnidka
구조엔지니어 Radovan Hnidka
시공 Ark-Shelter
발주자 Cabin Devín
사진작가 BoysPlayNice
'Architecture Project > Other' 카테고리의 다른 글
| 민난 전통을 현대적으로 번역하다, 더블 해피니스 아일랜드의 너브 랩 / 스튜디오 10 (0) | 2026.03.05 |
|---|---|
| 시간과 토양을 담는 건축, 보르제스 와이너리 / 엠 파랄렐루 (0) | 2026.02.24 |
| 기존 질서에 스며드는 스포츠 센터 / 엠에이치에이피 아르키텍츠 (0) | 2026.01.28 |
| 땅과 식탁 사이의 관계를 다시 그리는, 자오허 생태 농장 / 폰 스튜디오 (0) | 2026.01.26 |
| 역사적 흔적을 바닥에 새긴 열린 광장, 타라클리 타운 스퀘어 / 케이오오피 아키텍츠 (0) | 2026.01.08 |
마실와이드 | 등록번호 : 서울, 아03630 | 등록일자 : 2015년 03월 11일 | 마실와이드 | 발행ㆍ편집인 : 김명규 | 청소년보호책임자 : 최지희 | 발행소 : 서울시 마포구 월드컵로8길 45-8 1층 | 발행일자 : 매일



