
판(Board)을 형성하다
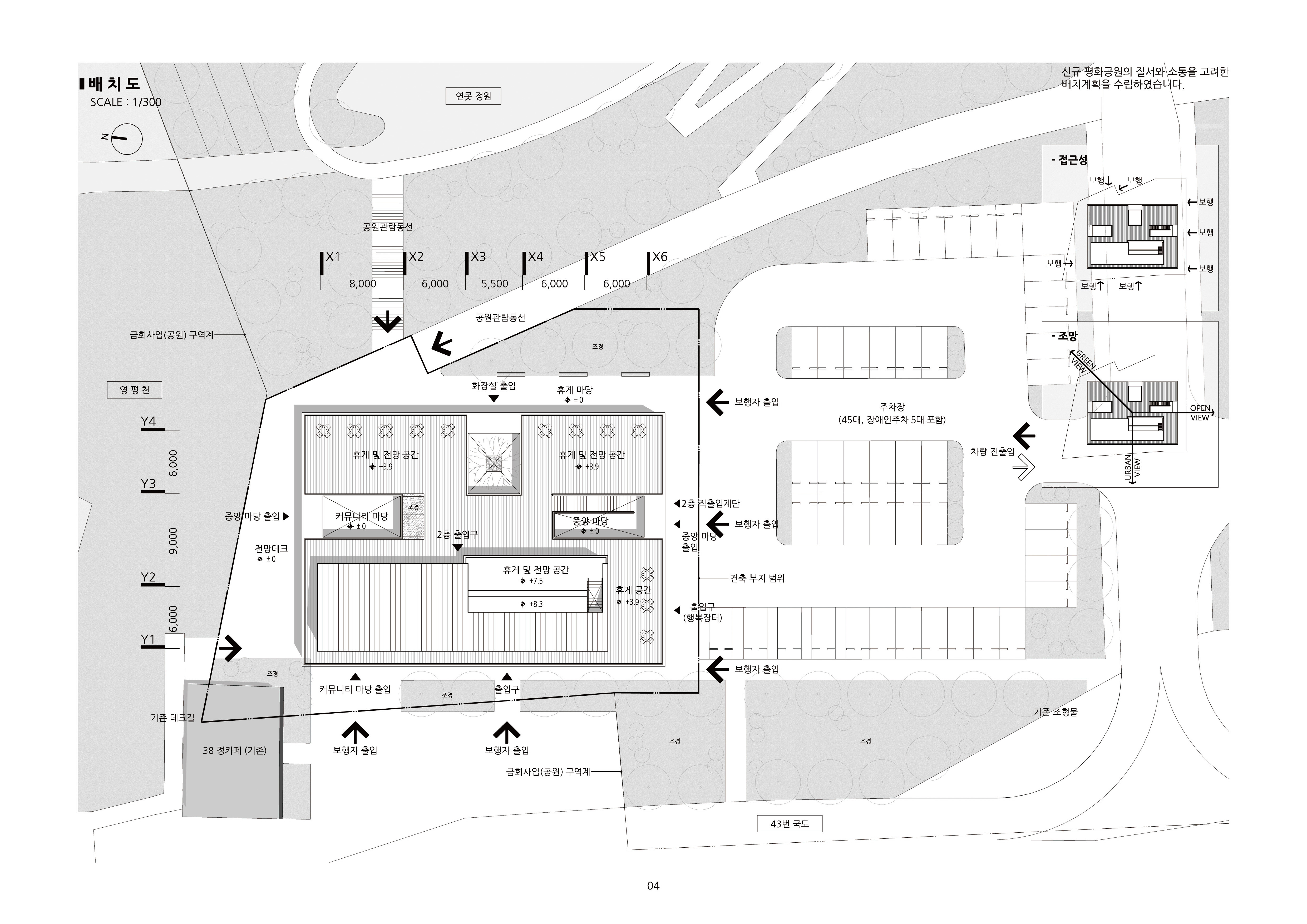
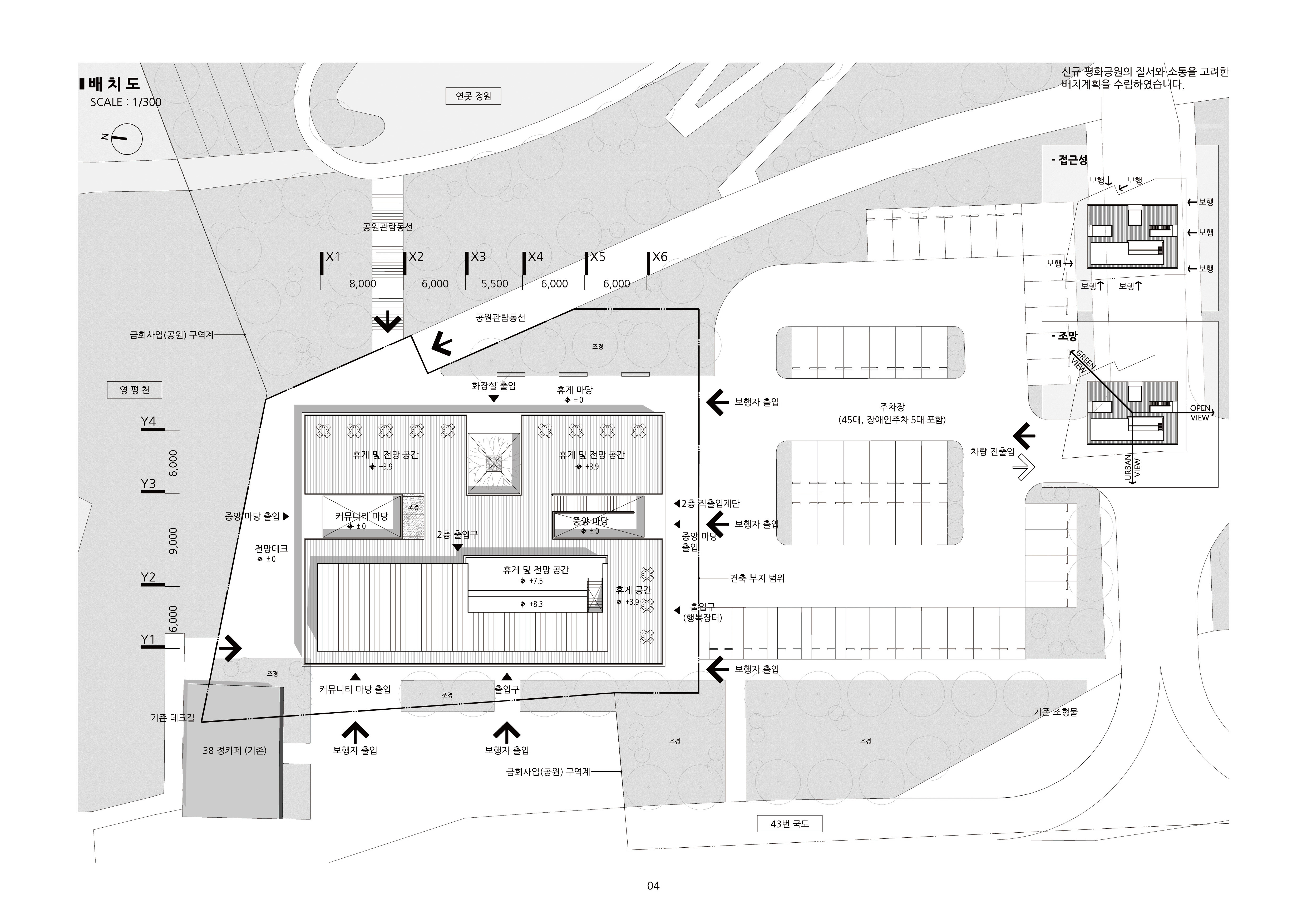
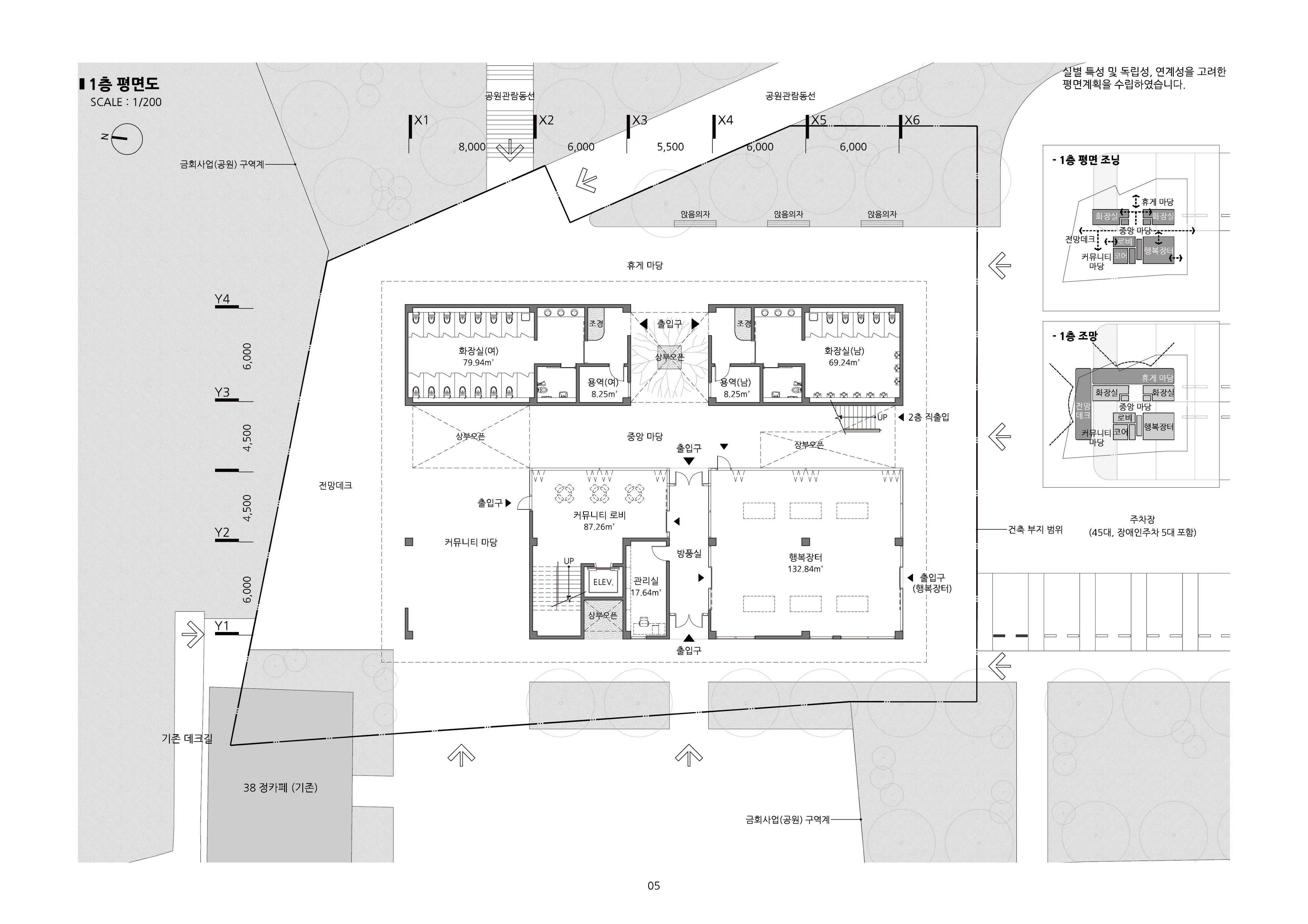
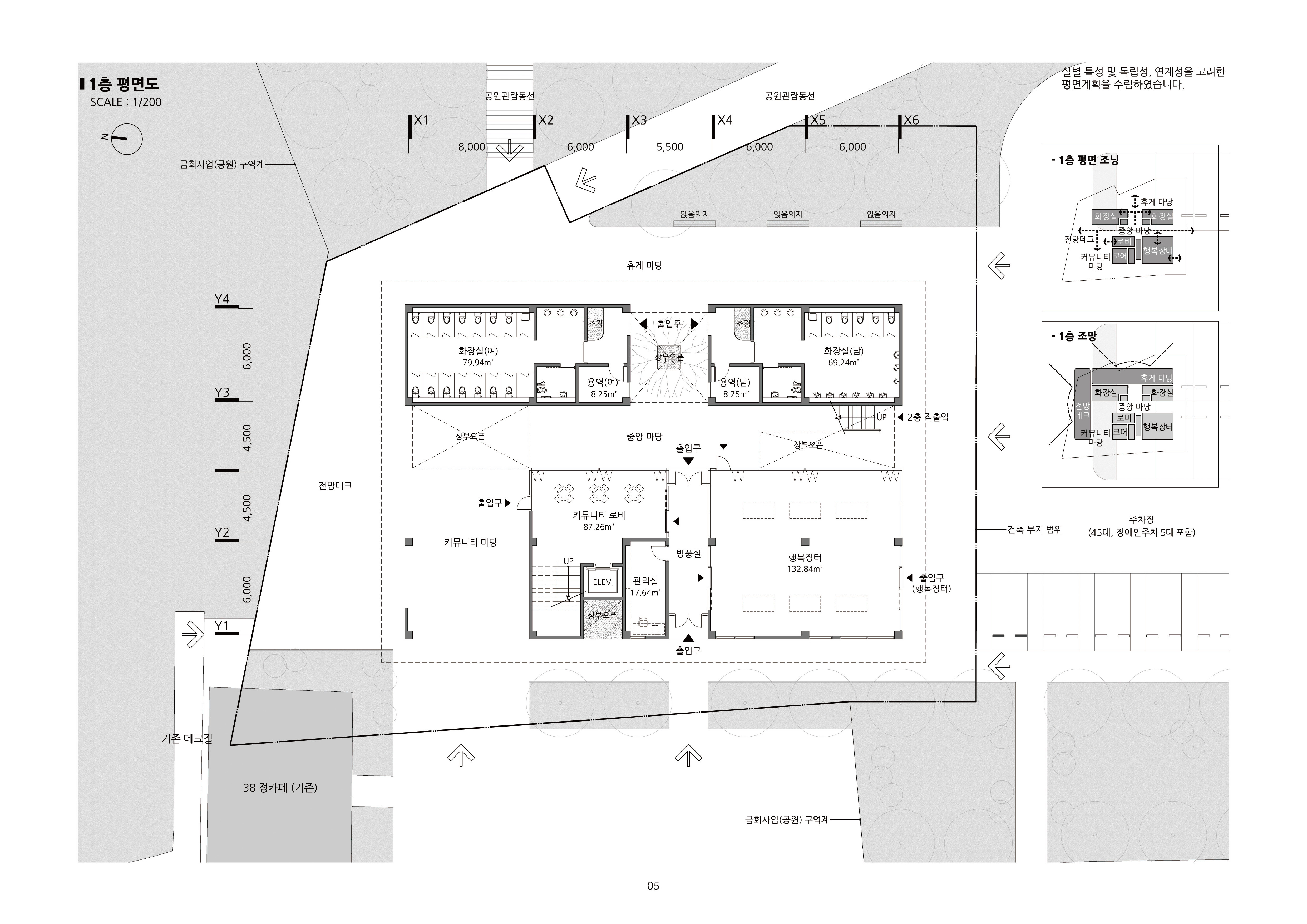
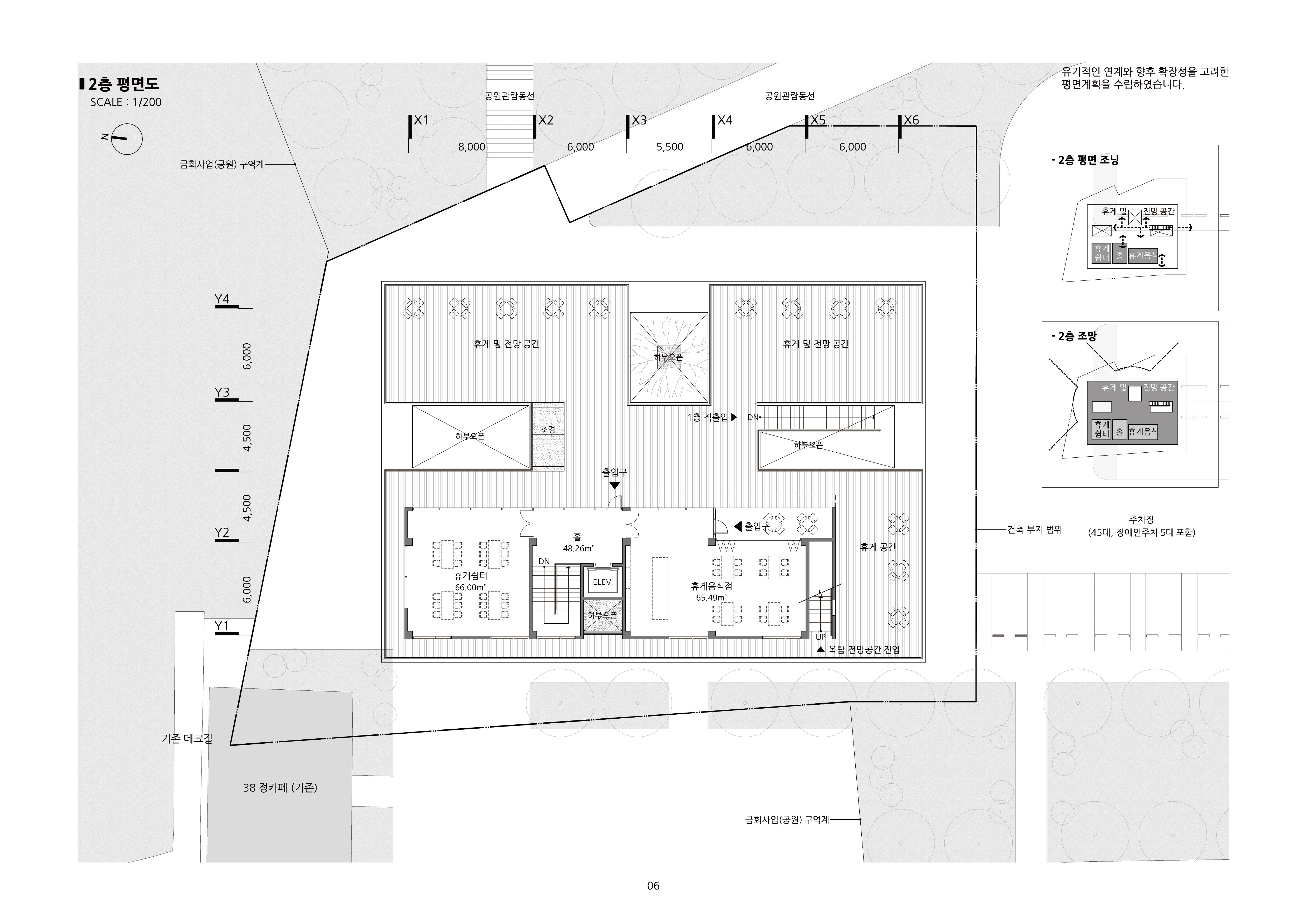
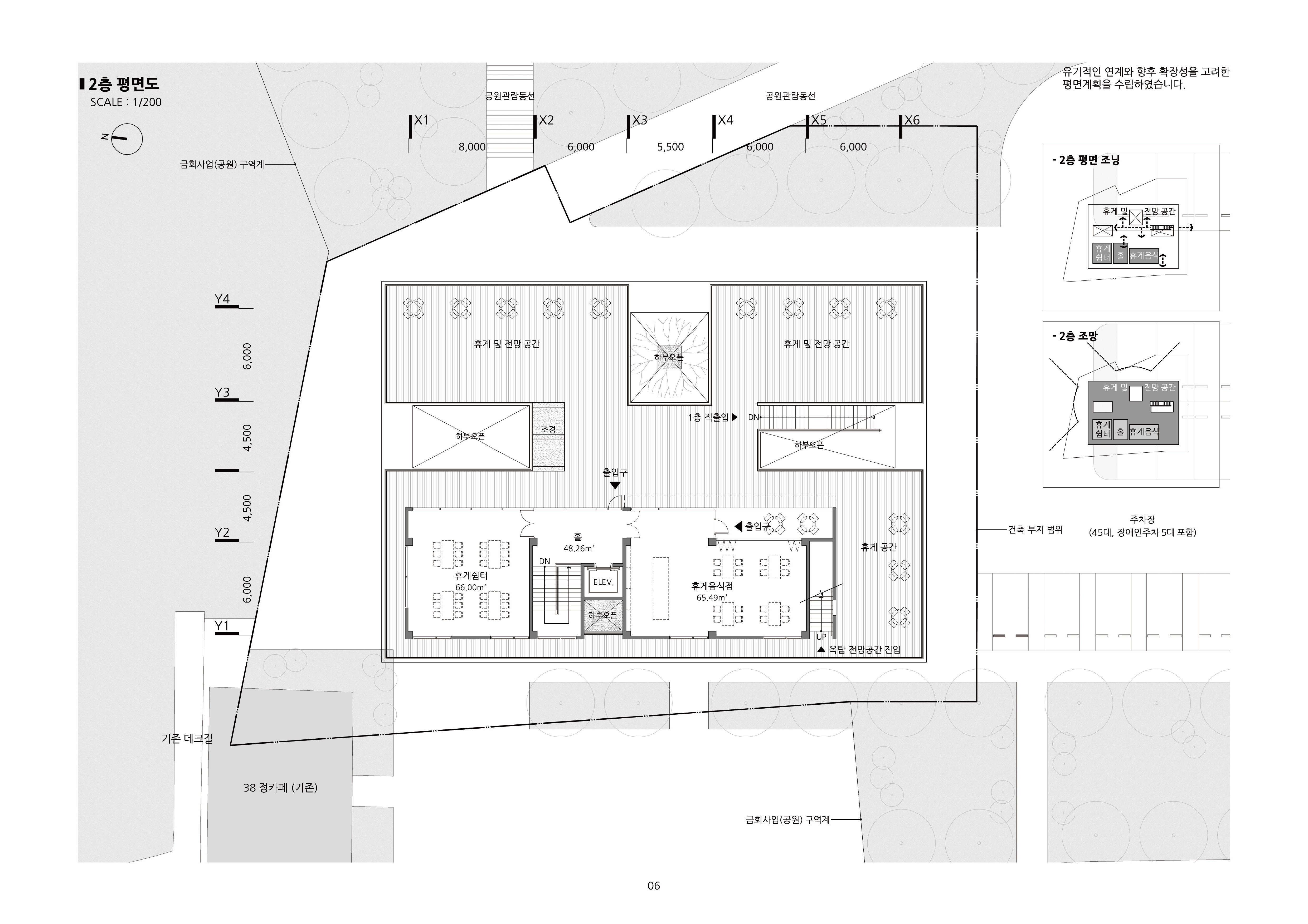
도시 맥락에 따라 내, 외부 각각의 장소가 지역만의 일상에 스며들 수 있도록 한다.
이는 문화의 접점이 될 것이며 누구나 어울릴 수 있는 마당이 되고 이용자가 만들어 가는 다양한 행위를 담는 공간이 될 것이다.





소이재건축사사무소
5등작_ 소이재건축사사무소(https://blog.naver.com/soije)
대표건축가 김병진
대지면적 24,736.00㎡
연면적 583.17㎡
건축면적 710.03㎡
건폐율 2.87%
최고높이 9.90m
층수 지상 2층
구조 철근콘크리트조
대표건축가 김병진
디자인팀 김병진, 한은희
조경면적 별도발주(공원 內)
주차대수 별도발주(공원 內)
발주처 포천시청
반응형
'Plans' 카테고리의 다른 글
| 남부권 관광개발사업 달관광스테이 현상공모_ 2등작 / 건축사사무소 FOM (0) | 2026.01.22 |
|---|---|
| 경주시 복합문화도서관(가칭) 건립 국제설계공모_ 5등작 / 클로픈건축사사무소 (0) | 2026.01.22 |
| 건강증징형 장안보건지소 건립사업 설계공모_ 당선작 / 마린종합건축사사무소 (0) | 2026.01.21 |
| 경주시 복합문화도서관(가칭) 건립 국제설계공모_ 3등작 / (주)제제합건축사사무소+(주)포스코에이앤씨건축사사무소 (0) | 2026.01.21 |
| 창원지방법원 통영지원 별관 증축 설계용역_ 당선작 / (주)보성종합건축사사무소 (0) | 2026.01.20 |
마실와이드 | 등록번호 : 서울, 아03630 | 등록일자 : 2015년 03월 11일 | 마실와이드 | 발행ㆍ편집인 : 김명규 | 청소년보호책임자 : 최지희 | 발행소 : 서울시 마포구 월드컵로8길 45-8 1층 | 발행일자 : 매일



