
현대와 전통이 어울어지는 조화와 분화
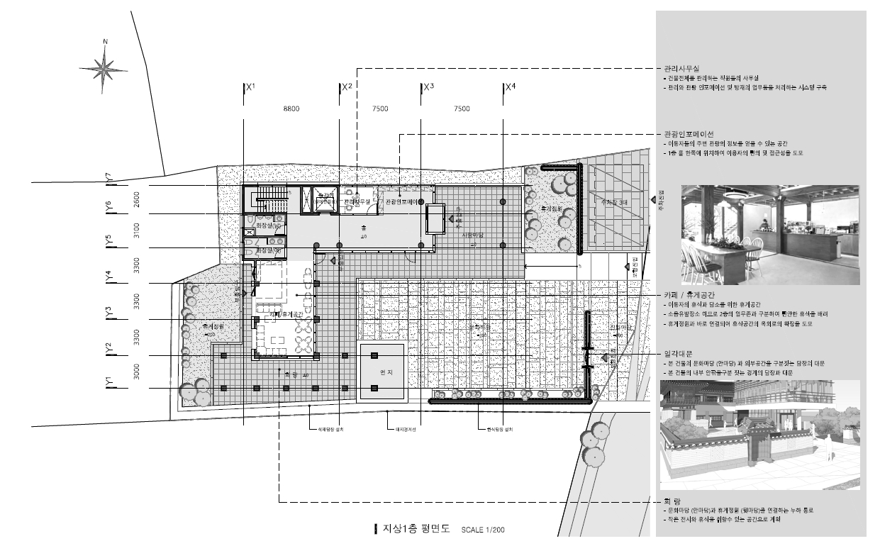
프로젝트를 시작하면서 가장 중요한 점은 한옥의 구조방식과 규모였습니다. 본 프로젝트는 연면적이 500m2 정도의 소규모 건축물이었기 때문에 도시화된 지역이나 좀더 규모가 큰 건축물에 어울리는 콘크리트 한옥보다는 지역적 특성과 어울리면서도 단아하고 기품있는 전통한옥구조가 더 맞다고 생각했습니다. 또한 한옥을 3층까지 올리는 것은 이 장소와 어울리지 않고 한옥의 미적 가치도 훼손할 수 있다는 강한 믿음이 있었습니다. 또한 일과 쉼 이라는 서로다른 테마를 구분하면서도 서로 조화롭게 배치하는 것이 주 핵심과제 였으므로 서로 다른 기능을 서로 다른 건축양식에 나누어 담도록 하여 1층에 마당과 연계한 모두의 휴게공간을, 2~3층의 현대식 건축부분에 주 업무공간을 배치하고 2층의 한옥의 사랑방과 누마루는 좀더 프라이빗한 업무와 사색을 위한 휴식공간으로 계획하여 조화로우면서도 분화되는 기능을 담아내도록 하였습니다.
또한 한옥건축의 경우 전통적 비례미를 갖도록 하기위해 무리하게 규모를 키우거나 2층,3층으로 올리지 않기로 하고, 대신 현대건축부분에 비해 왜소해 보이지 않게하기 위해 높은 단위에 올린 단층규모로 배치하여 단아하고 수려한 자태를 갖도록 계획하는 것을 대 전제로 삼아 계획하였습니다.
쉼과 재충전의 시간 - 강진군의 FUSO 프로그램과 웰니스를 만족시키는 워케이션센터 설계
본 워케이션 센터는 현대인의 '쉼과 재충전'이라는 본질적 가치를 건축적으로 구현하며 종국적으로 웰니스를 지향합니다. 그리하여 강진군의 독자적인 '푸소(FUSO: Feeling-Up, Stress-Off)' 정신을 기반으로 인접한 한옥마을인 달빛한옥마을과 연계 하여 자연속의 전통한옥과의 자연스러운 교류를 통해 '정신적 만족감(Feeling-Up)'을 유도하며, 탁 트인 커튼월, 높은 층고에서 오는 개방감, 월출산의 조망과 외부 환경과의 유기적인 연결을 통해 '일상의 스트레스 해소(Stress-Off)'를 위한 공간을 만들고 이를통해 기능적인 업무 공간과 더불어, 심신의 회복을 돕고 새로운 영감을 얻는 지속 가능한 웰니스 라이프 공간이 되도록 고려하였습니다.










건축사사무소 FOM
2등작_ 건축사사무소 FOM(https://blog.naver.com/pola-archi)
대표건축가 김민호
대지면적 935㎡
연면적 508.54㎡
건축면적 263.40㎡
건폐율 28.17%
용적률 54.39%
최고높이 11.7m
층수 지상 3층
구조 철근콘크리트조, 한옥목구조
대표건축가 김민호
조경면적 90.15㎡
주차대수 3대
발주처 강진군
'Plans' 카테고리의 다른 글
| 노은3동 마을커뮤니티센터 건립_ 당선작 / (주)종합건축사사무소 시담 (0) | 2026.01.26 |
|---|---|
| 업사이클센터 설치사업 설계공모_ 3등작 / 제이엠에이건축사사무소 (0) | 2026.01.26 |
| 경주시 복합문화도서관(가칭) 건립 국제설계공모_ 5등작 / 클로픈건축사사무소 (0) | 2026.01.22 |
| 38평화공원 내 다목적쉼터 조성사업 설계공모_ 5등작 / 소이재건축사사무소 (0) | 2026.01.21 |
| 건강증징형 장안보건지소 건립사업 설계공모_ 당선작 / 마린종합건축사사무소 (0) | 2026.01.21 |
마실와이드 | 등록번호 : 서울, 아03630 | 등록일자 : 2015년 03월 11일 | 마실와이드 | 발행ㆍ편집인 : 김명규 | 청소년보호책임자 : 최지희 | 발행소 : 서울시 마포구 월드컵로8길 45-8 1층 | 발행일자 : 매일



