
GLOWNY Dosan Flagship Store
한국 기반 패션 브랜드 글로니(GLOWNY)의 신규 플래그십 스토어 하우스 오브 글로니 도산(House of Glowny Dosan)은 ‘집’이라는 공간을 매개로 브랜드가 제안하는 감각적 라이프스타일을 구현한 프로젝트이다. 젠틀몬스터를 비롯한 글로벌 브랜드가 밀집한 도산공원 일대에서, 오랫동안 자리를 지켜온 강서면옥 건물을 리모델링해 ‘빈티지 아메리칸 하우스’라는 콘셉트를 완성했다.
건물 외벽의 베이지 석재 타일은 유지해 오래된 상점이 가진 정취를 남겼고, 화이트 프레임의 창, 어닝, 포치 구조, 테라스의 화이트 브릭 담장, 그리고 볼드한 목재 프레임의 유리 파사드를 통해 글로니 하우스 특유의 클래식한 감성을 강조했다. 새롭게 조성한 우드 데크 테라스는 브랜드의 자유로운 무드를 시각적으로 표현함과 동시에 방문객이 편하게 머무를 수 있는 외부 공간으로 기능한다. 파사드의 조경(한 그루의 나무와 수국)은 외관과 자연스럽게 어우러지고, 측면 솔리드 벽면에는 슬로건 “You Glow Differently”를 포토 스폿으로 구성해 브랜드 메시지를 명확히 드러냈다.
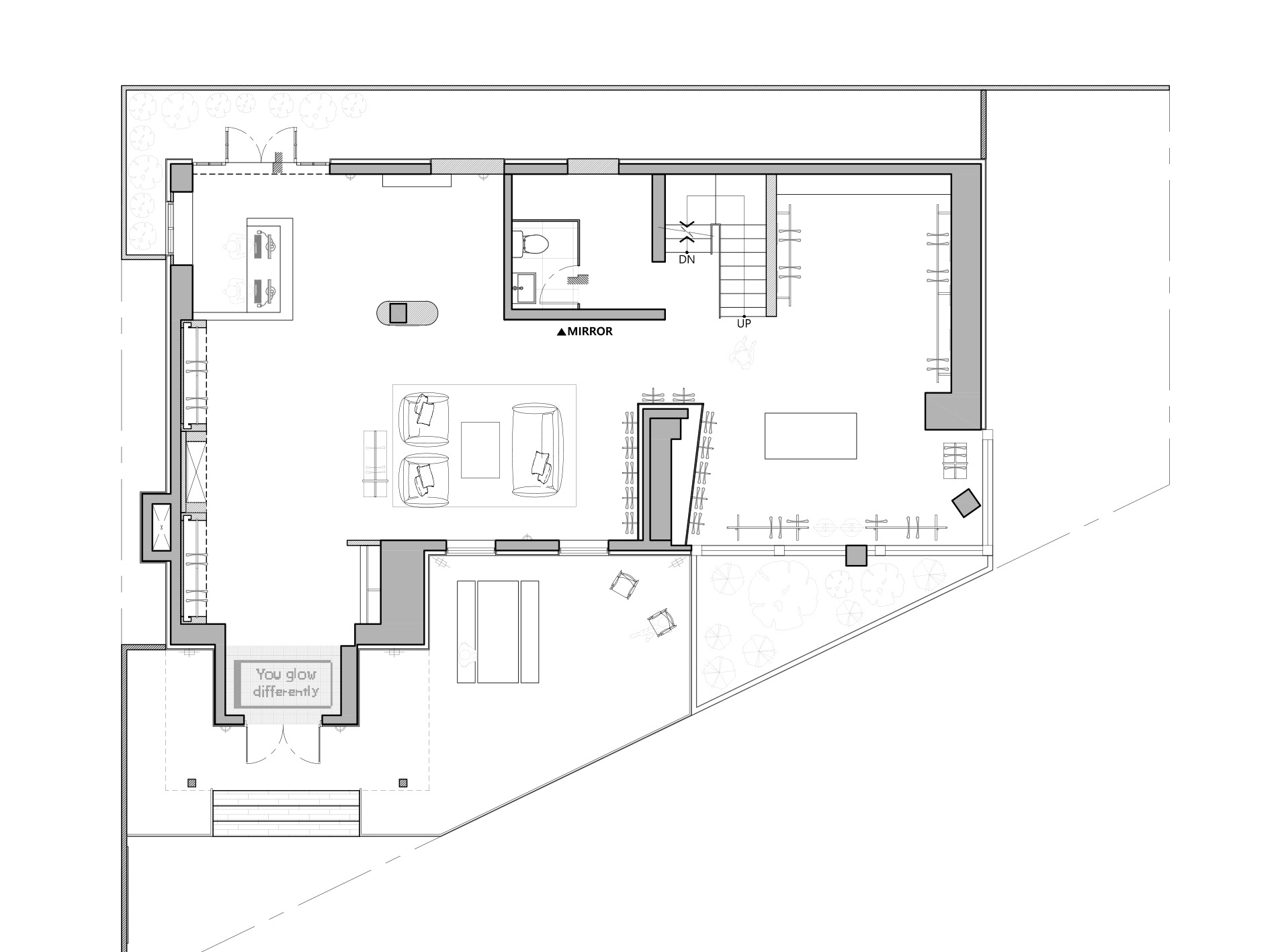
1층은 서양식 주택의 입구 공간인 포이어(Foyer)를 모티프로 삼아 ‘집에 초대되는 경험’을 설계의 중심에 두었다. 동선의 시작점에는 글로니의 슬로건을 모자이크 타일로 새겨 시각적 장면을 만들었고, 전체 공간은 리빙룸의 분위기를 바탕으로 구성했다. 특히 오브제 역할을 하는 페치카와 소파가 배치된 영역은 바닥 재료를 원목 마루에서 트래버틴 타일로 전환해 공간감을 분리했다. 트래버틴 카운터, 블루엔젤 식재, 클래식한 테라스 도어는 이국적이면서도 감각적인 분위기를 형성했다. 중앙 구조물과 선반장에 적용한 ‘버터 컬러’는 도산 플래그십을 대표하는 새로운 키컬러로, 글로니의 시그니처 무드를 한층 강화했다. 한지 팬던트 조명, 미니멀한 우드 행거, 수국 조경 등이 더해진 테라스 구역은 따뜻하고 여유로운 공간으로 완성되었다.
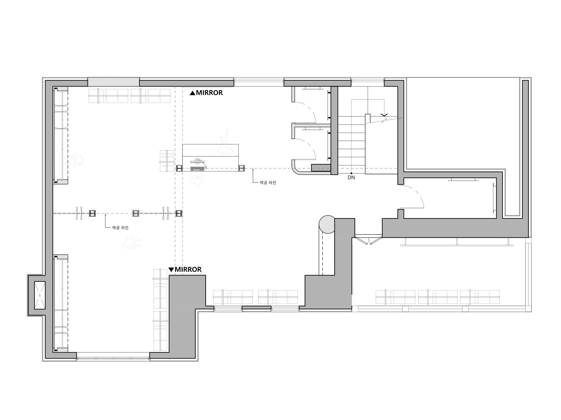
2층은 기존 건물이 지닌 박공 천장 구조를 적극적으로 활용했다. 노출된 목재 서까래는 직선과 사선이 만드는 구조적 리듬을 강조하며, 아늑한 주택의 분위기를 자연스럽게 이끌어냈다. 이곳의 선반 가구와 벤치 겸용 카운터 또한 1층과 동일한 버터 컬러로 제작해 전체적인 통일감을 형성했다. 코너에 R값을 적용한 피팅룸은 그린 모자이크 타일을 사용해 포인트를 주었고, 기존 화장실을 재구성한 VIP 전용 피팅룸과 DP존은 라틴 텍스처의 지사 벽지와 우드 소재가 어우러져 빈티지하면서도 목가적인 무드를 배가했다.
이 프로젝트는 기존 상가 건물을 ‘하우스’라는 이미지로 재해석해 브랜드 정체성을 공간에 녹여낸 사례이며, 글로니가 추구하는 라이프스타일을 시각·촉각·동선 경험 전반에서 설득력 있게 구현했다.

























건축가 디자인스튜디오 모노(Design Studio Mono)
위치 대한민국 서울시 강남구 언주로 164길 19
건축면적 353㎡
규모 지상 2층
준공 2025.9.
디자인팀 오수현, 강예은, 정보민
사진작가 박세은
'Interior Project > Retail' 카테고리의 다른 글
| 디스플레이에서 런웨이까지, 프로그램을 따라 움직이는 패션 스테이지 / 베리어스 어소시에이츠 (0) | 2025.12.03 |
|---|---|
| 매트 텍스처와 빛으로 완성한 모던 헤어살롱 인테리어 / 듀얼스페이스 스튜디오 (0) | 2025.12.01 |
| AI 생명체를 위한 숲, FUZOZO 콘셉트 스토어 / 텐스 아틀리에 (0) | 2025.10.28 |
| 빛이 머무는 공간, 릿 에스테틱 / 디자인 스튜디오 모노 (0) | 2025.10.14 |
| 흙과 빛으로 재해석한 미용실 / 코요리 (0) | 2025.09.17 |
마실와이드 | 등록번호 : 서울, 아03630 | 등록일자 : 2015년 03월 11일 | 마실와이드 | 발행ㆍ편집인 : 김명규 | 청소년보호책임자 : 최지희 | 발행소 : 서울시 마포구 월드컵로8길 45-8 1층 | 발행일자 : 매일



