
[ 목림헌 : 나무가 우거진 숲속의 집 ]
원주 목재문화체험장은 단순히 목재를 다루는 공간을 넘어, 자연과 인간이 교감하는 복합문화공간으로 기능하고자 한다. 도시와 자연을 잇는 중앙공원과의 연계를 통해, 남녀노소 모두가 목재의 온기를 직접 체감하고 학습할 수 있는 장을 마련하며, 삼림과 수목의 귀중함을 고취시킨다. 또한, 창의적인 놀이문화와 새로운 여가생활을 경험하는 공간이 되도록 기획되었다. 목림헌은 이러한 목재를 활용한 다채로운 프로그램과 공원 연계 활동들이 방문객의 삶에 자연의 가치를 증진하고 지역 사회에 새로운 활력을 불어 넣을 수 있는 공간을 제안한다.
[ 열린 원주 목재문화체험장 ]
원주 목재문화체험장은 공원과 유기적으로 연결된 개방적인 공간을 조성하여 자연환경을 적극적으로 수용하였다. 방문객의 편리한 접근을 위한 동선 계획을 수립하여 공공성을 확보하였으며, 각 프로그램에 부합하는 이용자 중심의 실내외 공간 연계를 통해 기능적인 목재문화 체험 환경을 구현하였다. 더불어, 기존 대지의 특성을 살린 배치 및 입면 계획을 통해 원주의 상징적인 문화체험 공간으로 자리매김할 수 있도록 설계되었다.
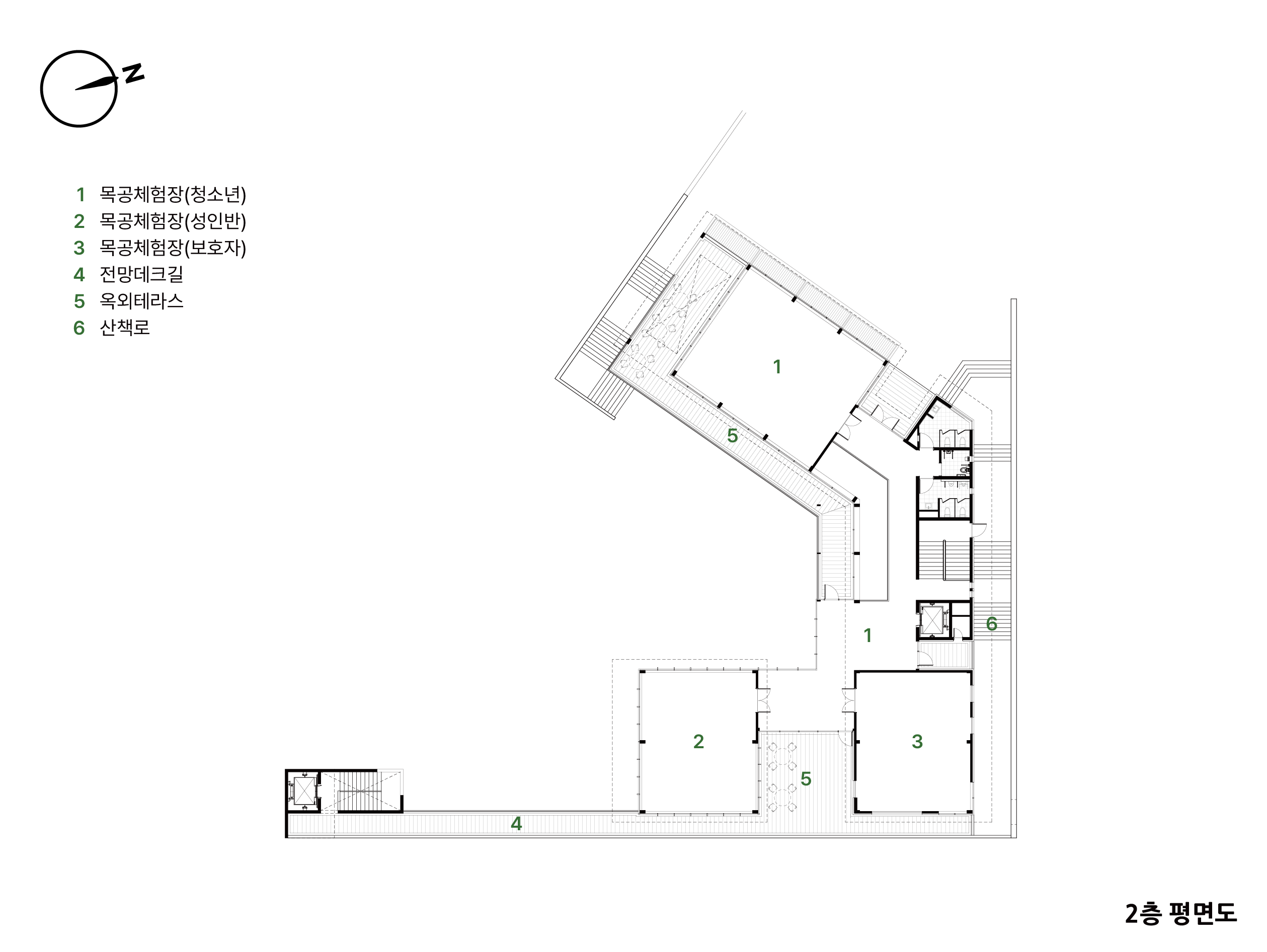
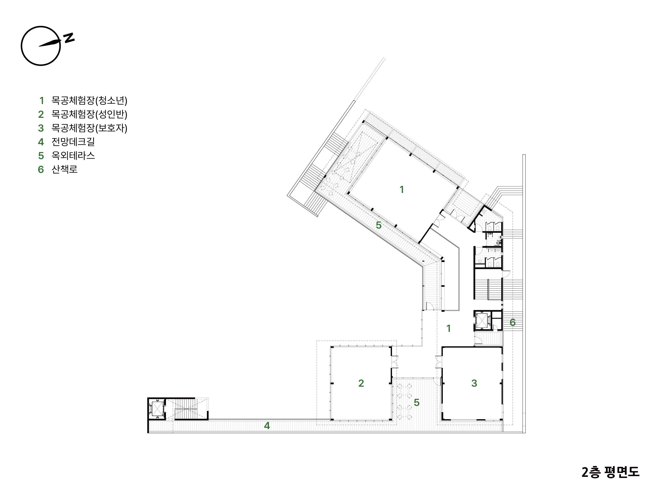
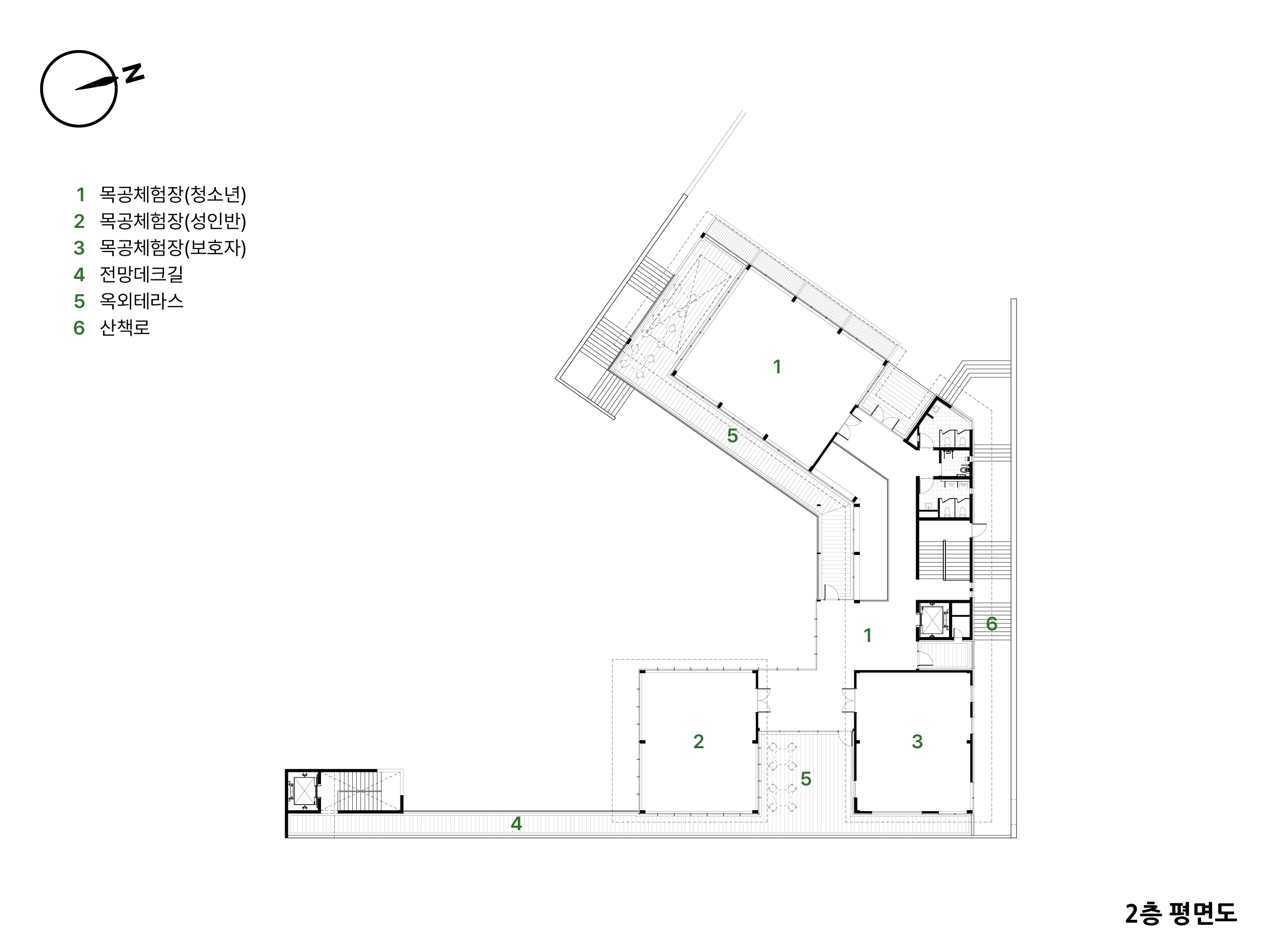
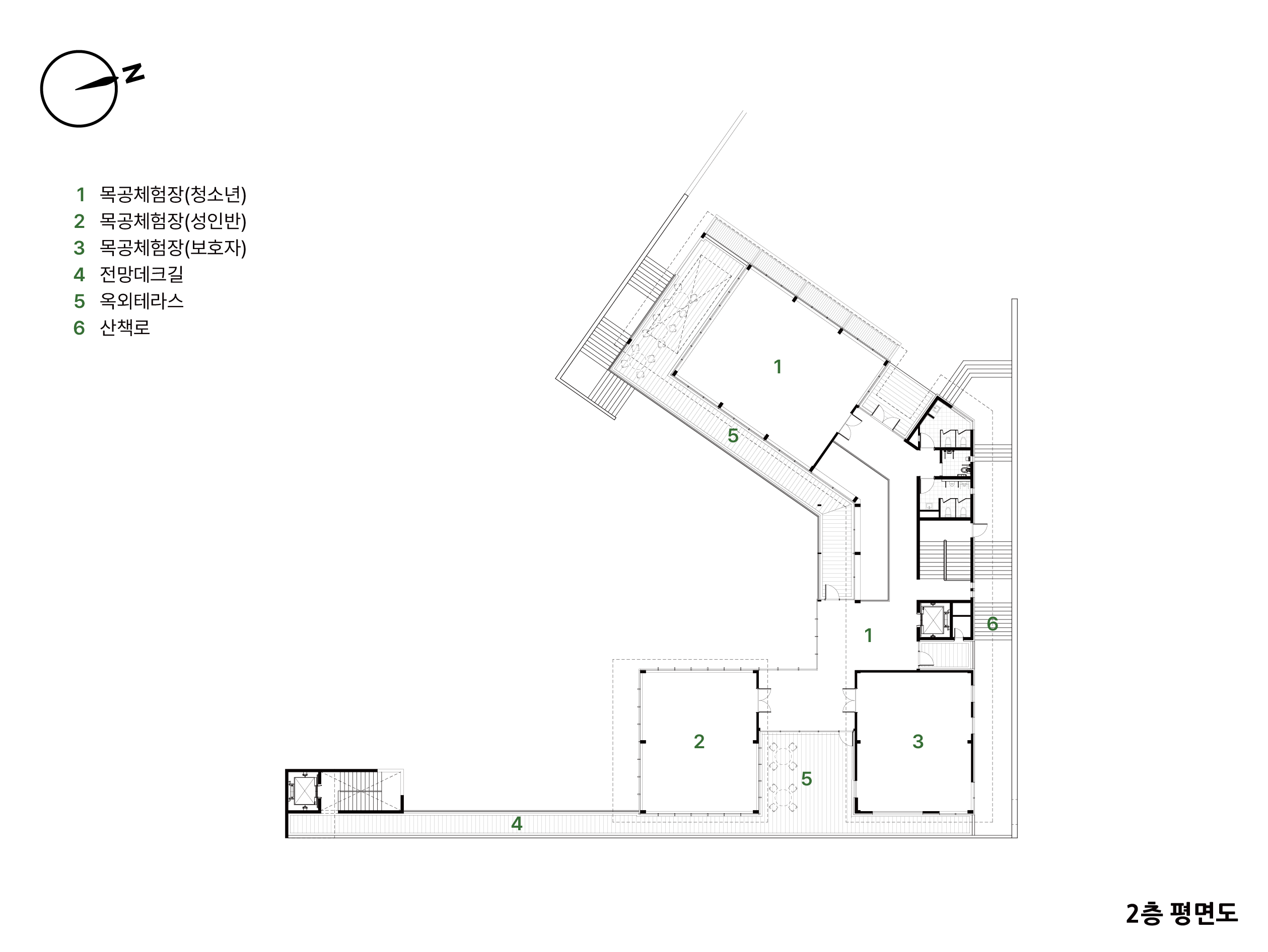
[ 대지 내를 순환하는 동선 체계 ]
한옥의 배치를 모티브로 삼은 배치계획을 통해 각 기능별 외부 영역을 설정하고 주요 시설과의 유기적인 연계를 계획하였다. 이는 각 공간의 동선이 상호 교차하고 분산되는 하나의 동선 체계를 구축하여, 대지 전체가 살아 움직이는 순환 동선을 계획하고자 하였다.









서우 건축사사무소+건축사사무소 아인
2등작_서우 건축사사무소(https://blog.naver.com/seowo20)+건축사사무소 아인(https://naver.me/G4G41zf7)
대표건축가 최재명(서우 건축사사무소), 조인상(건축사사무소 아인)
대지면적 12,261.81㎡
연면적 994.47㎡
건축면적 717.82㎡
건폐율 5.85%
용적률 8.11%
최고높이 11.2m
층수 지상 2층
구조 철근콘크리트구조 및 목구조
대표건축가 최재명, 조인상
ⓐ 대표사 : 서우 건축사사무소 / 최재명
ⓑ 공모사 : 건축사사무소 아인 / 조인상
디자인팀 최재명, 조인상, 김진영, 신대규
주차대수 23대
발주처 원주시
'Plans' 카테고리의 다른 글
| 서상 주민모아센터 구축사업 설계공모_ 3등작 / (주)건축사사무소 미가온 (0) | 2025.10.17 |
|---|---|
| 봉화노인복지센터 기능보강사업 설계공모_ 5등작 / 건축사사무소품사 (0) | 2025.10.16 |
| 내수면 창업지원 비즈니스센터 건립사업 건축설계공모_ 2등작 / 플랫건축사사무소 (0) | 2025.10.15 |
| 불당제2공영주차장 주차타워 조성사업 기본 및 실시설계용역 설계공모(제안공모)_ 2등작 / (주)건축사사무소터틀 (0) | 2025.10.13 |
| 한강경찰대 여의도본대 이전·신축 제안설계공모_ 3등작 / 소나건축사사무소 (0) | 2025.10.13 |
마실와이드 | 등록번호 : 서울, 아03630 | 등록일자 : 2015년 03월 11일 | 마실와이드 | 발행ㆍ편집인 : 김명규 | 청소년보호책임자 : 최지희 | 발행소 : 서울시 마포구 월드컵로8길 45-8 1층 | 발행일자 : 매일



