
플랫폼 & 오브제
한강경찰대는 신속한 대응과 장비 관리에 최적화된 효율적 업무공간이자, 한강변 풍경 속 활력을 불어넣는 도시적 요소로 계획되었다. 저층부는 출동과 작업이 이루어지는 ‘업무 플랫폼’으로, 상층부는 그 위에 부유하는 ‘오브제’로 구성되어 한강의 새로운 아이콘이 된다.
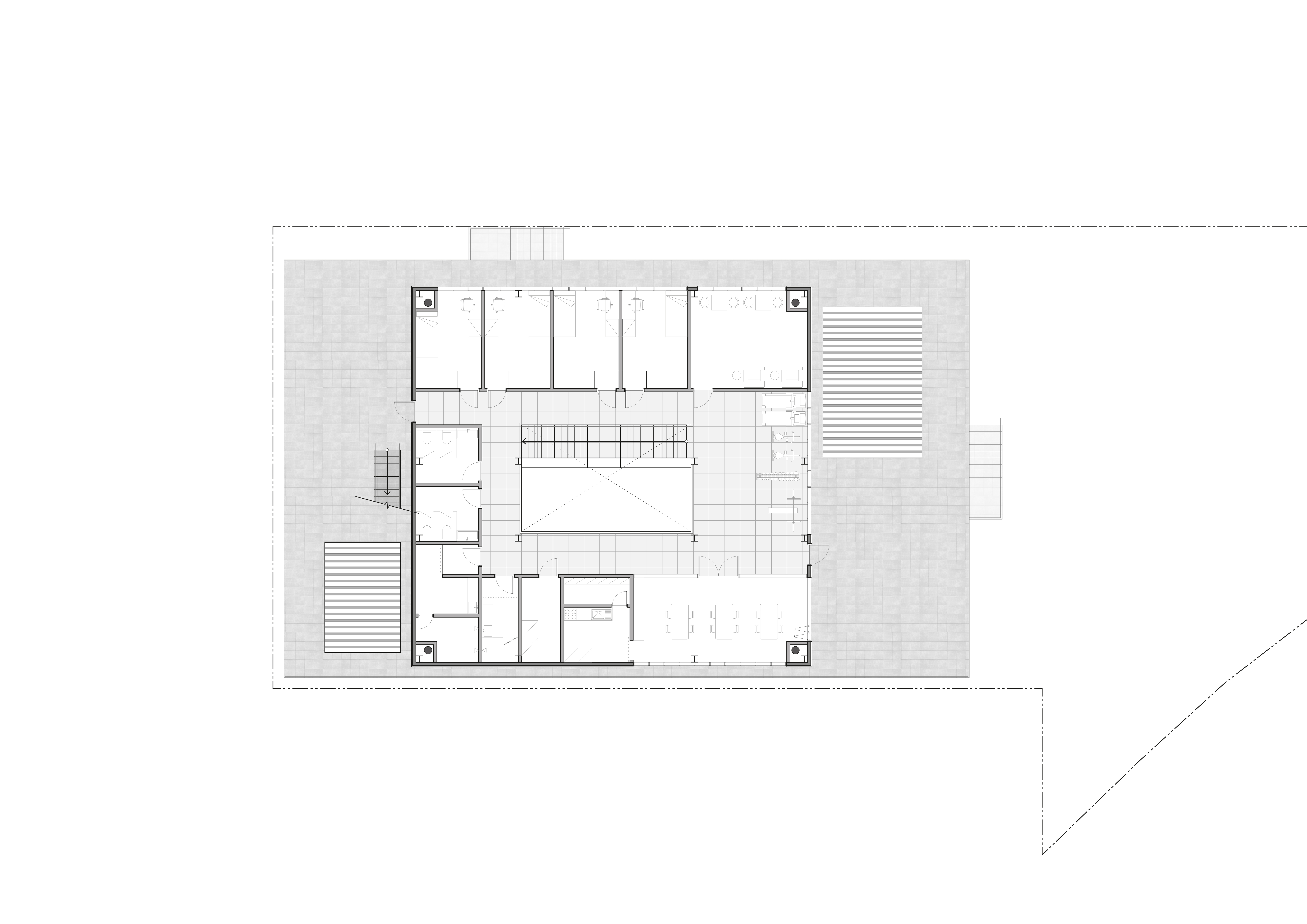
업무 플랫폼
플랫폼 아래의 저층부는 전면의 ‘업무영역’과 후면의 ‘구조업무 보조영역’으로 명확히 구분되며, 그 사이에 ‘다목적 라운지’가 배치되어 다양한 활동을 수용한다. 두 영역은 어긋나게 배치되어 자연스럽게 동측의 ‘장비마당’과 서측의 ‘건조마당’을 형성한다. 1층 전역은 지붕으로 덮여 있어 그늘 속에서 한강 조망이 가능하며, 여름철에도 직사광선을 피해 외부활동을 지속할 수 있다.
1. 다목적 라운지
업무영역과 보조영역 사이 폭 3.5m의 넓은 복도 공간은 실내 장비 건조와 점검, 대원들의 교육·훈련, 단합 활동을 위한 다목적 라운지로 활용된다. 상부 보이드와 시선이 연결되어 2층 체력단련실과도 입체적으로 연계된다. 바닥은 내수성이 강한 타일 마감으로 계획해 실용성을 높였다.
2. 건조마당 및 장비마당
건조마당은 복귀 후 드라이 슈트와 장비를 건조하는 곳으로 주변 지형과 우거진 나무들로 자연스럽게 차폐가 되는 외부공간이다. 장비마당은 트레일러 주자창과 인접하여 장비를 점검하거나 배를 손볼 수 있는 곳이다. 한강 쪽으로 트여있어 작업 중에도 한강을 주시할 수 있다.
3. 효과적인 출동 및 복귀 동선
사무실과 2층 대원지원공간에서 최단거리로 출동할 수 있게 실내계단, 주출입구, 계류장 경사로를 직선상 최단거리에 위치하였으며, 계류장에는 개인장비를 준비해둘 창고와 지붕 덮인 마당을 두었다. 복귀동선은 젖은 슈트 및 장비가 실내를 거치지 않도록 외부 복귀로를 통해 건조마당 및 샤워실로 접근이 가능하도록 하였다.
부유하는 오브제
상층부는 한강뷰 측에 대기실과 심신안정실을 동측 데크와 인접한 곳에 체력단련실과 휴게실을 배치한 대원 지원 공간이다. 주방 및 식당을 겸비한 휴게실은 외부 공간과 연계해 사용이 가능하며, 남녀 샤워실 및 화장실이 대기실과 가까운 곳에 위치한다. 2층 창문라인 위로 부유한 박스는 본 경찰대의 아이콘이 되며, 햇빛에 반사되어 빛나는 스테인리스스틸 와이어 메시로 감싸 한강수면과 함께 어우러지는 윤슬 효과를 가진다. 메시에는 LED 소자가 박혀 전광판과 같이 간단한 문구나 안내를 전달하는 효과를 가져 한강변 시민과 소통하는 경찰대가 된다.
안정적인 부유식 시설로서의 구조
부유 시설로 적합한 구조를 위해 부유 포스트는 평면상에 직사각형에 위치하며, 전체 구조는 균형에 유리하도록 대칭에 크게 벗어나지 않도록 구조계획을 하였다. 장비 및 기계실 등 하중을 요하는 공간을 좌우에 고르게 배치하여 안정성을 유지하였다.















소나건축사사무소
3등작_ 소나건축사사무소(https://www.son-a.com/)
대표건축가 손주휘(한양대학교), 소나건축사사무소(권순주)
선박이동램프 면적 119.80㎡
계류장 면적 198.65㎡
연면적 659.50㎡
건축면적 375.78㎡
최고높이 10.3m
층수 지상 2층
구조 철골조
대표건축가 손주휘(한양대학교), 소나건축사사무소(권순주)
디자인팀 이현우, 이예진
발주처 서울특별시 자치경찰위원회
'Plans' 카테고리의 다른 글
| 내수면 창업지원 비즈니스센터 건립사업 건축설계공모_ 2등작 / 플랫건축사사무소 (0) | 2025.10.15 |
|---|---|
| 불당제2공영주차장 주차타워 조성사업 기본 및 실시설계용역 설계공모(제안공모)_ 2등작 / (주)건축사사무소터틀 (0) | 2025.10.13 |
| 섬호 체험관광센터 조성사업_ 3등작 / 지평건축사사무소 (0) | 2025.10.02 |
| 목재문화체험장 조성사업 설계공모_ 당선작 / (주)건축사사무소 서강종합+그레도건축사사무소 (0) | 2025.10.02 |
| 부자의령 상생협약프로젝트 실시설계 용역 설계공모_ 4등작 / (주)창조건축사사무소 (0) | 2025.09.29 |
마실와이드 | 등록번호 : 서울, 아03630 | 등록일자 : 2015년 03월 11일 | 마실와이드 | 발행ㆍ편집인 : 김명규 | 청소년보호책임자 : 최지희 | 발행소 : 서울시 마포구 월드컵로8길 45-8 1층 | 발행일자 : 매일



