
내수면 양식업은 노동집약적 구조로 인해 청년층의 유입이 저조하며, 산업 지속성에 한계를 보이고 있다. 이를 해결하기 위해 수요자 맞춤형 기술 교육, 임대형 스마트 양식장, 고부가가치 창업 아이템 개발이 요구된다. 우리는 청년이 기술을 배우고 창업할 수 있는 커뮤니티 중심의 비즈니스센터를 조성함으로써, 내수면 양식업을 미래 성장산업으로 전환하고 지역에 활력을 불어넣는 공간 혁신을 실현하고자 한다.
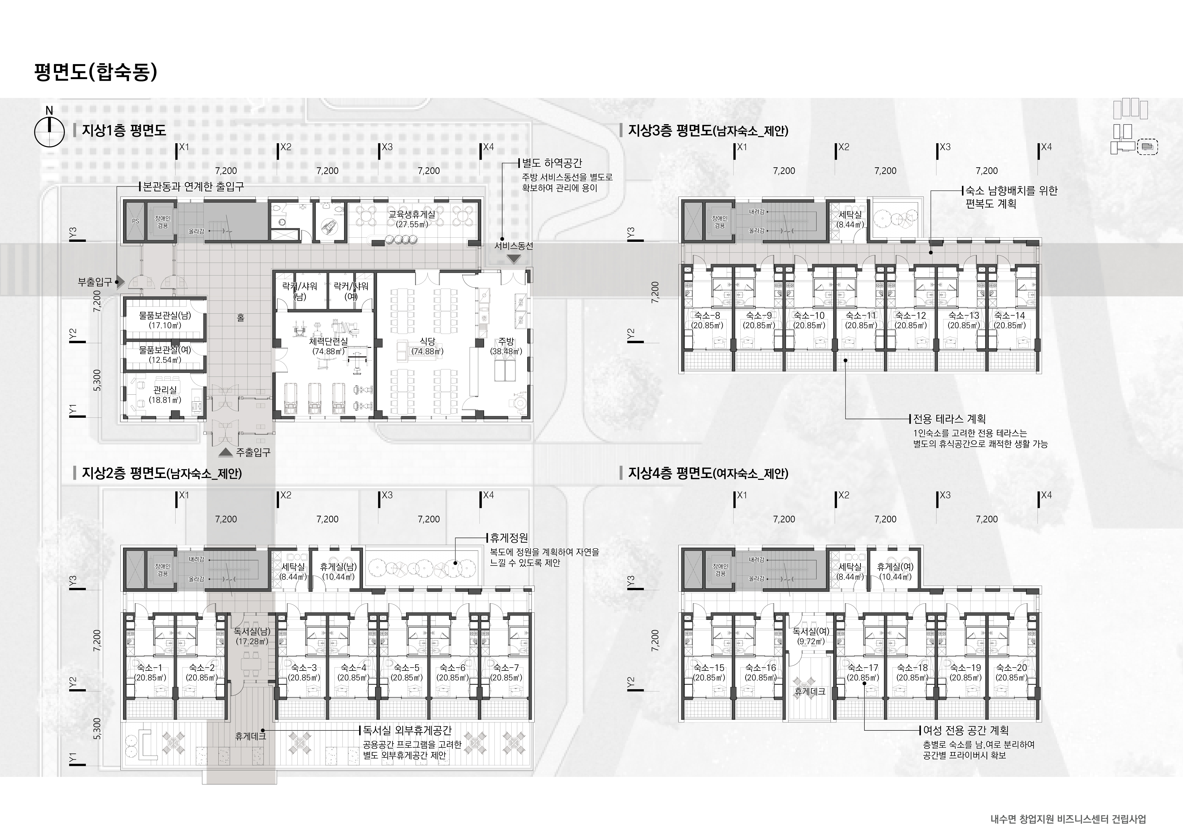
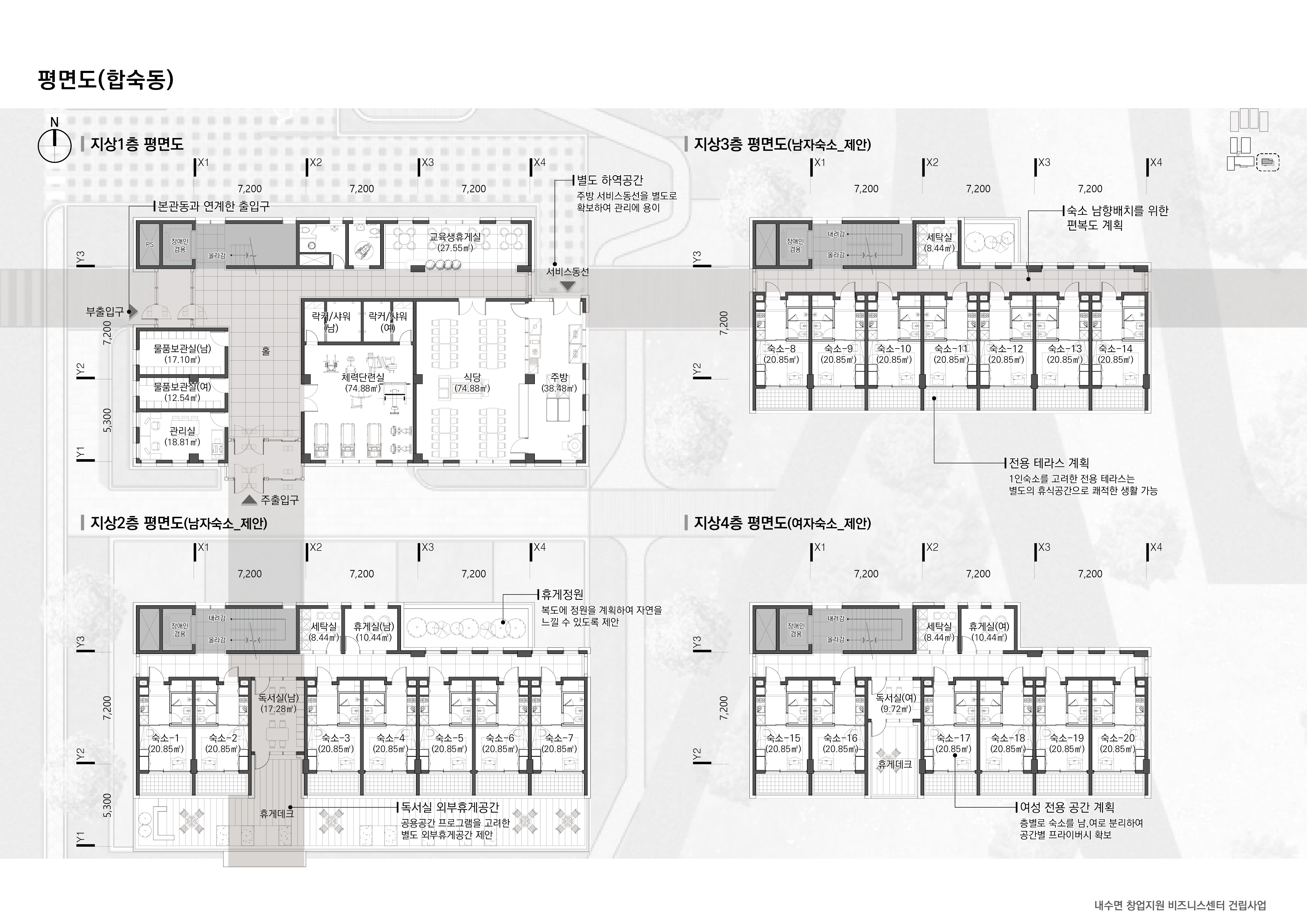
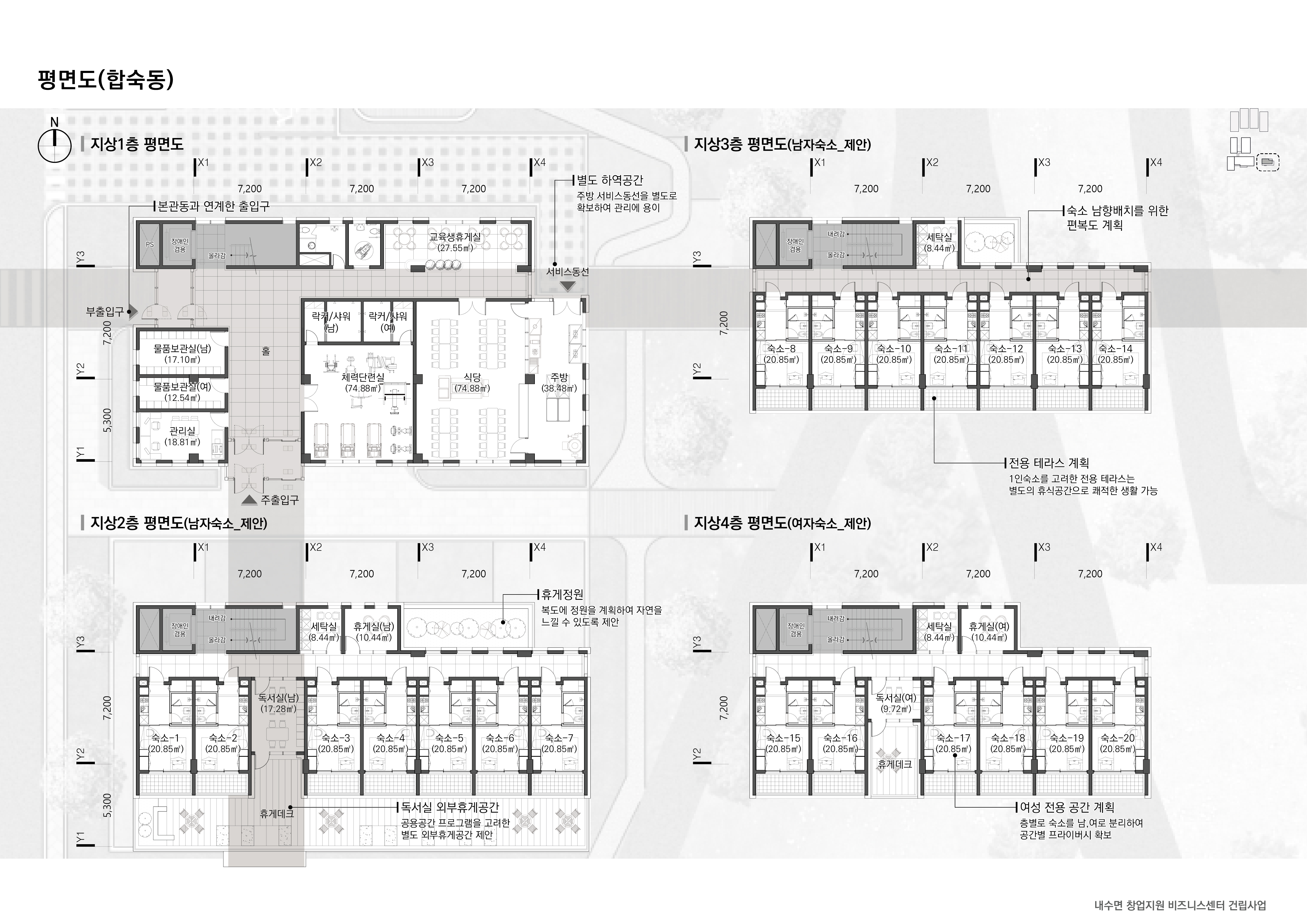
[편의성을 고려한 배치]
지형을 활용한 친환경적 배치계획은, 이용자 중심의 주요시설 전면 배치를 통해 편의성 확보와 공간의 유기적 확장성을 실현한다.
[유기적 네트워크 평면]
전체 시설은 크게 3가지 영역으로 구분되고, 각 영역은 프로그램 별 연계성을 고려한 조닝 및 기능별 사이공간을 통해 유기적 네트워크가 완성된다.
[지역성을 담은 상징적 파사드]
기능적 요구에 부합하는 입면 구성과 지역적 맥락에 조화를 이루는 자연친화적 재료를 적용하며, 리듬감 있는 디자인 요소를 통해 유기적 통일성을 확보한 창업지원 비즈니스센터를 구현한다.












플랫건축사사무소
2등작_ 플랫건축사사무소(https://www.flat-architects.com/)
대표건축가 홍선희
대지면적 25,148.00㎡
연면적 9,675.34㎡
건축면적 7,417.98㎡
건폐율 29.50%
용적률 36.75%
최고높이 13m
층수 지하 1층, 지상 4층
구조 철근콘트리트구조, 경량철골조
대표건축가 홍선희
디자인팀 권기준, 윤진영, 김해성, 문세은
조경면적 6,065.70㎡
주차대수 56대
발주처 전북특별자치도
'Plans' 카테고리의 다른 글
| 봉화노인복지센터 기능보강사업 설계공모_ 5등작 / 건축사사무소품사 (0) | 2025.10.16 |
|---|---|
| 목재문화체험장 조성사업 설계공모_ 4등작 / 서우 건축사사무소+건축사사무소 아인 (0) | 2025.10.15 |
| 불당제2공영주차장 주차타워 조성사업 기본 및 실시설계용역 설계공모(제안공모)_ 2등작 / (주)건축사사무소터틀 (0) | 2025.10.13 |
| 한강경찰대 여의도본대 이전·신축 제안설계공모_ 3등작 / 소나건축사사무소 (0) | 2025.10.13 |
| 섬호 체험관광센터 조성사업_ 3등작 / 지평건축사사무소 (0) | 2025.10.02 |
마실와이드 | 등록번호 : 서울, 아03630 | 등록일자 : 2015년 03월 11일 | 마실와이드 | 발행ㆍ편집인 : 김명규 | 청소년보호책임자 : 최지희 | 발행소 : 서울시 마포구 월드컵로8길 45-8 1층 | 발행일자 : 매일



