
[의령을 닮은 공간]
상생의령 그린팜 커뮤니티 파크는 의령의 산세와 마을 풍경을 닮아, 지역의 삶과 조화를 이루는 농업지원 물류시설로 계획되었다. 단순한 시설을 넘어, 자연과 사람을 담아내는 새로운 장소가 되고자 하였다.
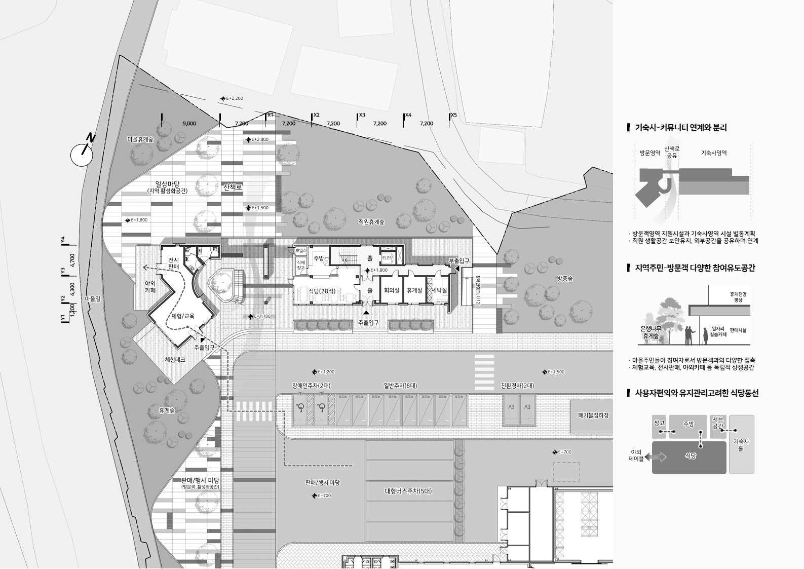
[효율과 안전을 갖춘 물류시설]
작업자, 운영자, 방문자로 동선을 명확히 구분하고, 보행과 차량의 흐름을 분리하여 안전성과 효율성을 확보하였다. 창고동은 식품 안전과 물류 흐름을 최적화하는 계획을 바탕으로, 합리적인 운영과 고효율의 관리가 가능하도록 구성되었다.
[마을과 함께하는 공유공간]
대상지가 지닌 과거 학교 부지의 기억을 이어받아 주민들이 모이고 교류할 수 있는 열린 공유공간을 마련하였다. 차량과 분리된 보행동선을 따라 체육시설, 행사 및 판매마당, 쉼터, 산책로를 두어 단절된 마을의 관계를 회복하고 일상 속 활기를 불어넣는 중심 커뮤니티 공간으로 계획하였다.
[직원과 지역의 상생]
기숙사는 단순한 생활공간이 아니라, 함께 일하는 사람들의 안정을 보장하는 또 하나의 공동체로 계획되었다. 주민의 공유공간과 직원의 기숙사가 마을로 통하는 길 좌우로 놓이며, 서로 다른 일상이 같은 풍경 속에서 어우러지도록 하였다.
[의령에 담은 작은 시도]
이 프로젝트는 효율적인 농업지원 기능과 따뜻한 공동체성을 함께 품은 복합시설이다. 의령의 자연과 마을, 그리고 사람을 잇는 건축을 모색한 작은 발걸음으로, 지역 일상 속에 스며드는 따뜻한 가능성을 꿈꾸었다. 작은 공간의 변화가 모여 마을의 풍경을 바꾸듯, 이 시도가 의령에 새로운 숨결을 더해주기를 바란다.












(주)창조건축사사무소
4등작_ (주)창조건축사사무소
대표건축가 김도희
대지면적 12,262.00㎡
연면적 2,411.94㎡
건축면적 1,985.99㎡
건폐율 16.20%
용적률 19.67 %
최고높이 창고동 12m 기숙사 및 지원동17.4m
층수 창고동 지상 1층, 기숙사 지상4층, 지원동 지상1층
구조 창고동 철골구조, 기숙사 및 지원동 RC구조
대표건축가 김도희
디자인팀 김도희, 조희영
조경면적 3,653.22㎡
주차대수 39대
발주처 의령군청
'Plans' 카테고리의 다른 글
| 섬호 체험관광센터 조성사업_ 3등작 / 지평건축사사무소 (0) | 2025.10.02 |
|---|---|
| 목재문화체험장 조성사업 설계공모_ 당선작 / (주)건축사사무소 서강종합+그레도건축사사무소 (0) | 2025.10.02 |
| 청도군의회청사건립공사_ 2등작 / (주)건축사사무소 신정건축 (0) | 2025.09.26 |
| 메이드 인 삼덕센터 건립 설계공모_ 4등작 / 리트에이앤디 건축사사무소 (0) | 2025.09.26 |
| 기장군도시관리공단 본부 신축사업 설계공모_ 3등작 / 주식회사 라움건축사사무소 (0) | 2025.09.25 |
마실와이드 | 등록번호 : 서울, 아03630 | 등록일자 : 2015년 03월 11일 | 마실와이드 | 발행ㆍ편집인 : 김명규 | 청소년보호책임자 : 최지희 | 발행소 : 서울시 마포구 월드컵로8길 45-8 1층 | 발행일자 : 매일



