
구미시 원평동에 위치한 구미 가족센터는 기존 센터의 기능과 공간을 확장하기 위해 3 · 4층 증축을 계획하였다.
증축 과정에서 가장 중요하게 생각한 점은 ‘새로운 건물이 아니라, 이미 자리한 건물과 자연스럽게 이어지는 건물’이어야 한다는 것이였다. 그래서 입면은 기존 재료를 일부 유지한 채 주변과 조화를 이루도록 했고, 따뜻한 색감을 더해 이용자들에게 친근한 분위기를 전하였다. 또한 주변 지형의 스카이라인을 반영해 자연스럽게 형성된 매스를 드러내며, 도로변과 인근 시설에서 보았을 때 낯설지 않으면서도 랜드마크성을 띄는 건물로 계획하였다.
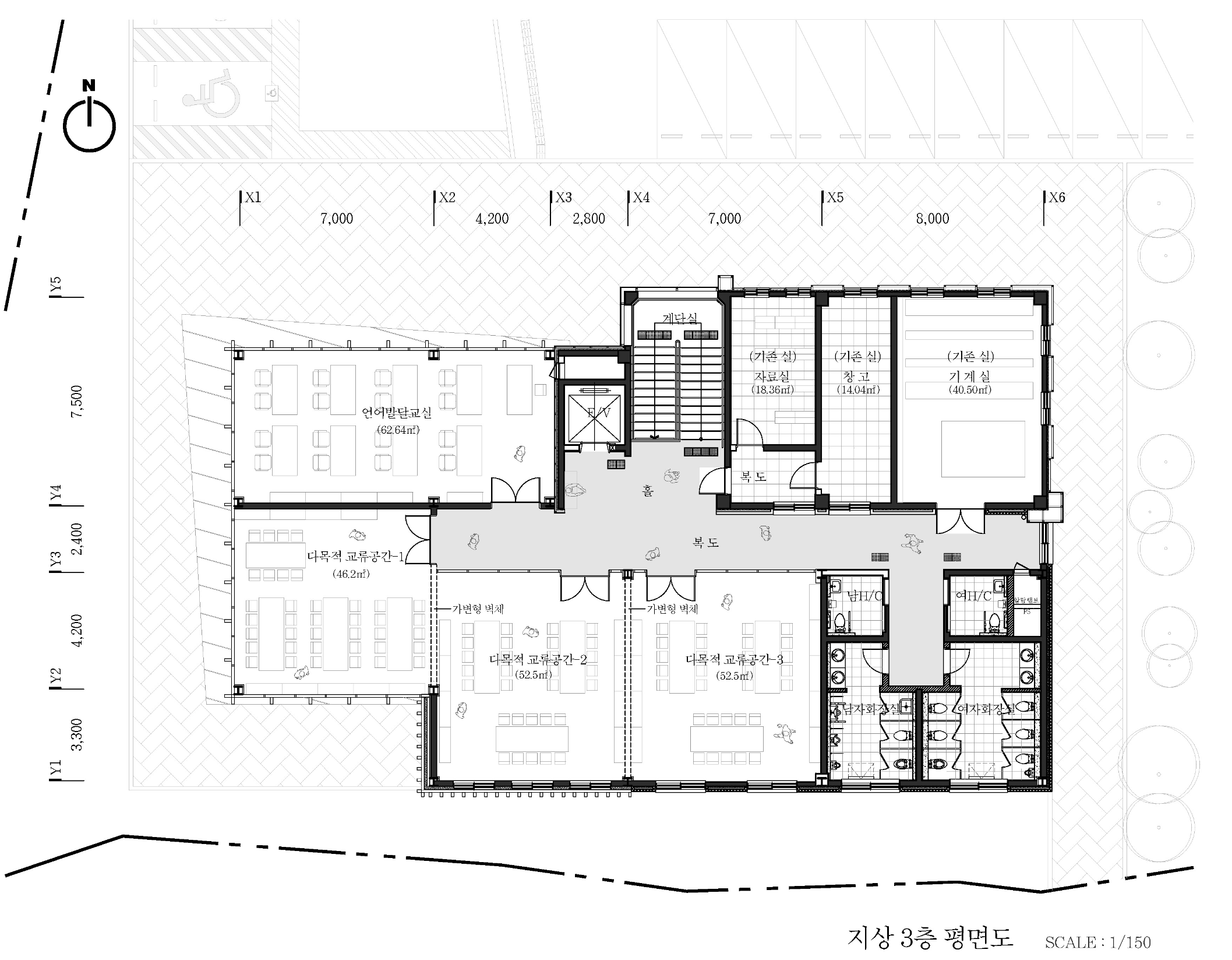
내부 공간은 이용자들의 생활과 활동을 고려해 구성하였다.
3층에는 교육과 교류 기능이 어우러진 공간을 배치하여 다양한 프로그램이 이루어질 수 있도록 하였고, 4층은 큰 규모의 교육 공간과 두 개의 휴게정원을 두어 학습과 휴식이 균형을 이루도록 계획하였다. 복도와 테라스 같은 공용공간은 단순한 이동 통로를 넘어 서로의 활동을 연결해주는 매개 공간으로 작동하며, 외부와의 시각적·물리적 소통을 넓혀주는 역할을 한다.
구미 가족센터는 기존 건축과 조화를 이루면서도, 지역 주민들이 배우고, 만나고, 소통하는 장소가 되고, 구미에서의 생활문화와 가족 복지를 품어내는 열린 장소로 자리잡기를 기대한다.







케이아키텍건축사사무소
당선작_ 케이아키텍건축사사무소(https://blog.naver.com/kakitech)
대표건축가 고경환
대지면적 18,482㎡
연면적 653.95㎡
건축면적 402.25㎡
건폐율 16.45%
용적률 42.14%
최고높이 17.5m
층수 지상 4층
구조 기존RC조+증축:일반철골조구조
대표건축가 고경환
디자인팀 고동연
발주처 구미시
'Plans' 카테고리의 다른 글
| 동강 영월 더 웰타운 커뮤니티 및 스포츠센터_ 5등작 / (주)에이라우드 건축사사무소 (0) | 2025.09.15 |
|---|---|
| 신정초등학교 증축공사 설계공모_ 2등작 / 건축사사무소 단 (0) | 2025.09.15 |
| 예산군 광시면 기초생활거점조성사업 광시 어울림센터 설계공모_ 2등작 / OURSTUDIO + 종합건축사사무소 시담 (0) | 2025.09.12 |
| 예산군 광시면 기초생활거점조성사업 광시 어울림센터 설계공모_ 5등작 / 은초아키텍텐 건축사사무소 (0) | 2025.09.12 |
| 해양공학연구동 위험유해환경 개선사업 설계 용역_ 당선작 / 콤마건축사사무소 (0) | 2025.09.11 |
마실와이드 | 등록번호 : 서울, 아03630 | 등록일자 : 2015년 03월 11일 | 마실와이드 | 발행ㆍ편집인 : 김명규 | 청소년보호책임자 : 최지희 | 발행소 : 서울시 마포구 월드컵로8길 45-8 1층 | 발행일자 : 매일



