
작은 조각들이 모여 큰 이야기를 만드는 건축.
그 안에서 사람과 사람, 세대와 세대가 어울립니다.
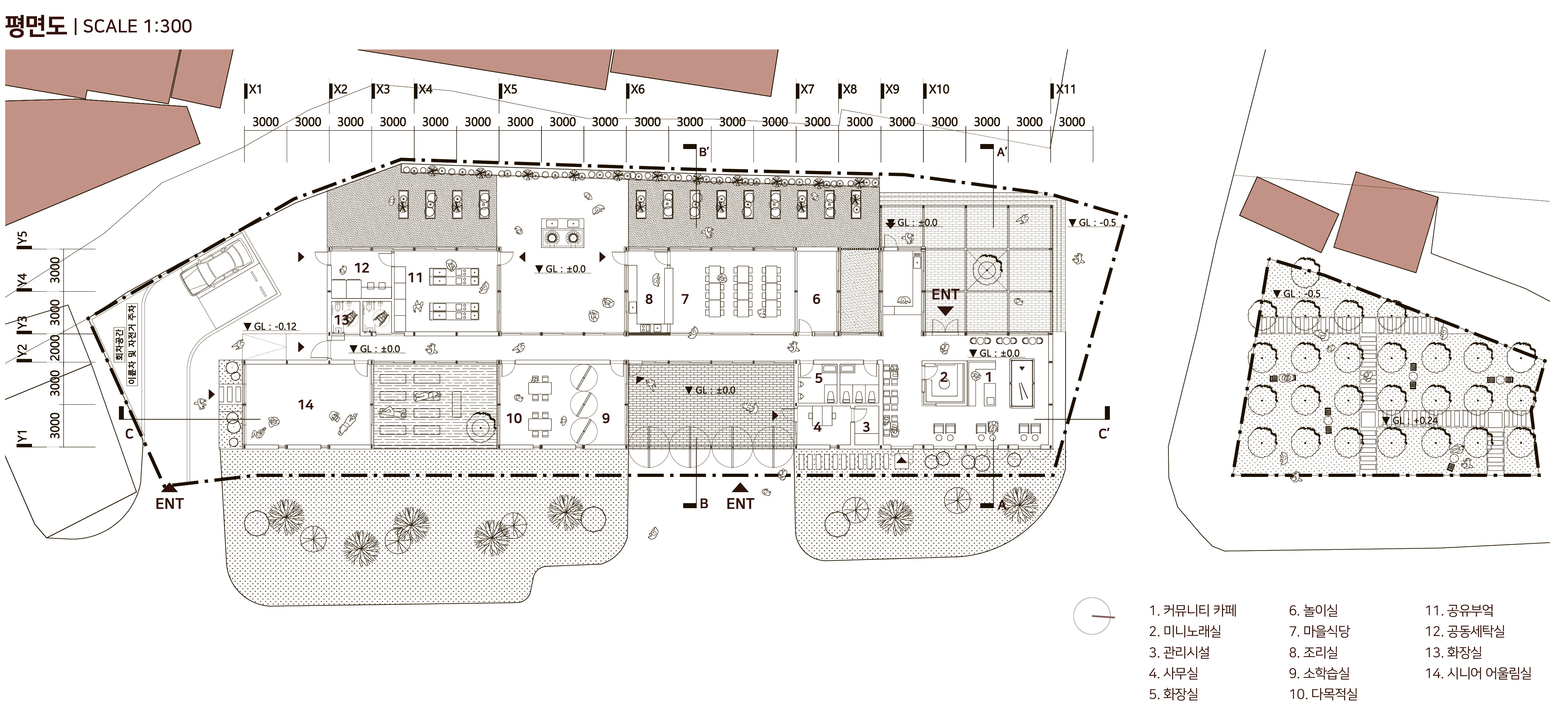
광시 어울림센터는 ‘나무 블록’ 에서 영감을 받은 건축입니다.
아이디어는 유년기의 원초적 경험, 나무 블록을 쌓고 허물며 배우던 관계와 균형에서 출발했습니다. 손끝에서 느껴지는 따뜻한 촉감, 단순한 놀이 속에 숨겨진 커뮤니티와 마을의 원형을 오늘의 건축으로 확장합니다.
어울림센터는 다양한 크기와 형태의 볼륨으로 이루어진 블록들이 여러 프로그램을 품고 간결한 실내 이동 동선 위에 어깨를 맞대어 서 있습니다. 그 사이에 삽입된 틈과 마당은 세대를 잇는 열린 장(場)이 되어, 아이들의 웃음과 어르신의 대화가 자연스럽게 스며듭니다.이곳에서 블록은 놀이의 소재를 넘어 공동체의 은유가 됩니다. 작은 블록들이 모여 큰 구조를 이루듯, 개별 공간이 모여 하나의 커뮤니티를 완성하는 상징적 이미지를 건축 언어로 구현합니다. 그리고 그 중심에는 목재가 있습니다. 목재는 따뜻한 감성과 지속 가능성을 품은 재료로서, 사람과 자연, 세대와 세대를 연결하는 매개가 됩니다.














OURSTUDIO + 종합건축사사무소 시담
2등작_ OURSTUDIO(https://ours-tudio.com/) + 종합건축사사무소 시담
대표건축가 김수란 + 김시원
대지면적 1,368 ㎡(금회사업부지) / 241㎡(외부공간제안부지)
연면적 499.30 ㎡
규모 지상 1층
건폐율 27.40%
용적률 27.40%
구조 목구조
대표건축가 김수란 + 김시원
디자인팀 김수란, 홍서진, 이채린, 허승주, 김한울, 김수진
발주처 충남 예산군
'Plans' 카테고리의 다른 글
| 신정초등학교 증축공사 설계공모_ 2등작 / 건축사사무소 단 (0) | 2025.09.15 |
|---|---|
| 구미시 가족센터 증축공사 간이공모_ 당선작 / 케이아키텍건축사사무소 (0) | 2025.09.15 |
| 예산군 광시면 기초생활거점조성사업 광시 어울림센터 설계공모_ 5등작 / 은초아키텍텐 건축사사무소 (0) | 2025.09.12 |
| 해양공학연구동 위험유해환경 개선사업 설계 용역_ 당선작 / 콤마건축사사무소 (0) | 2025.09.11 |
| 한국폴리텍대학 화성캠퍼스 기숙사 리모델링공사 설계공모_ 2등작 / (주)에스지파트너스 건축사사무소 (0) | 2025.09.11 |
마실와이드 | 등록번호 : 서울, 아03630 | 등록일자 : 2015년 03월 11일 | 마실와이드 | 발행ㆍ편집인 : 김명규 | 청소년보호책임자 : 최지희 | 발행소 : 서울시 마포구 월드컵로8길 45-8 1층 | 발행일자 : 매일



