
"신정초등학교"의 증축은 단순한 교실 확장의 의미를 넘어, 울산 지역 아동의 성장을 품는 새로운 교육 환경을 제시 하고자 합니다.
우리의 설계안은 기존 교정과 조화를 이루면서도 미래형 학습 공간으로 나아가는 방향을 지향합니다.
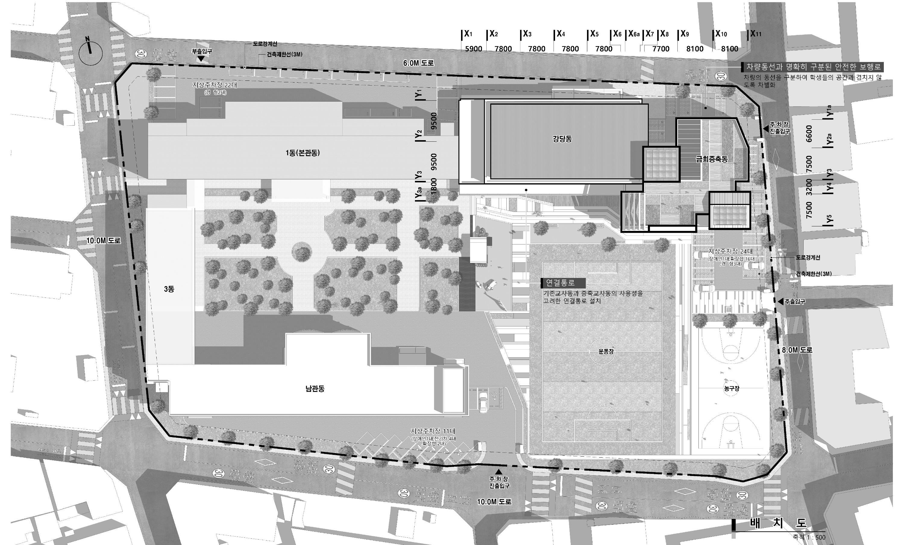
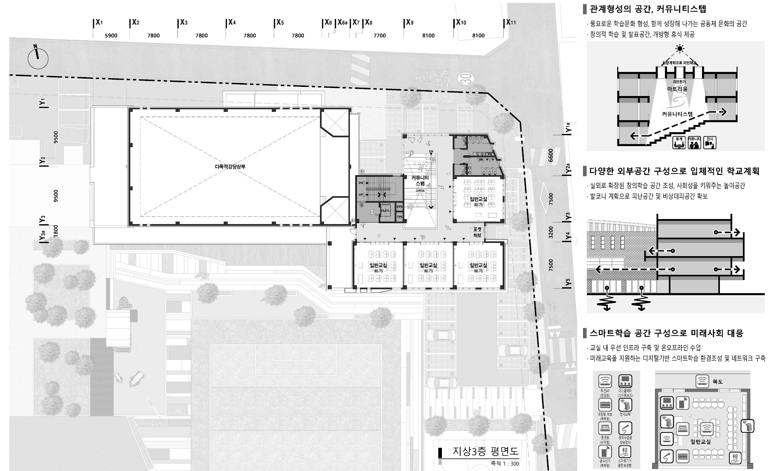
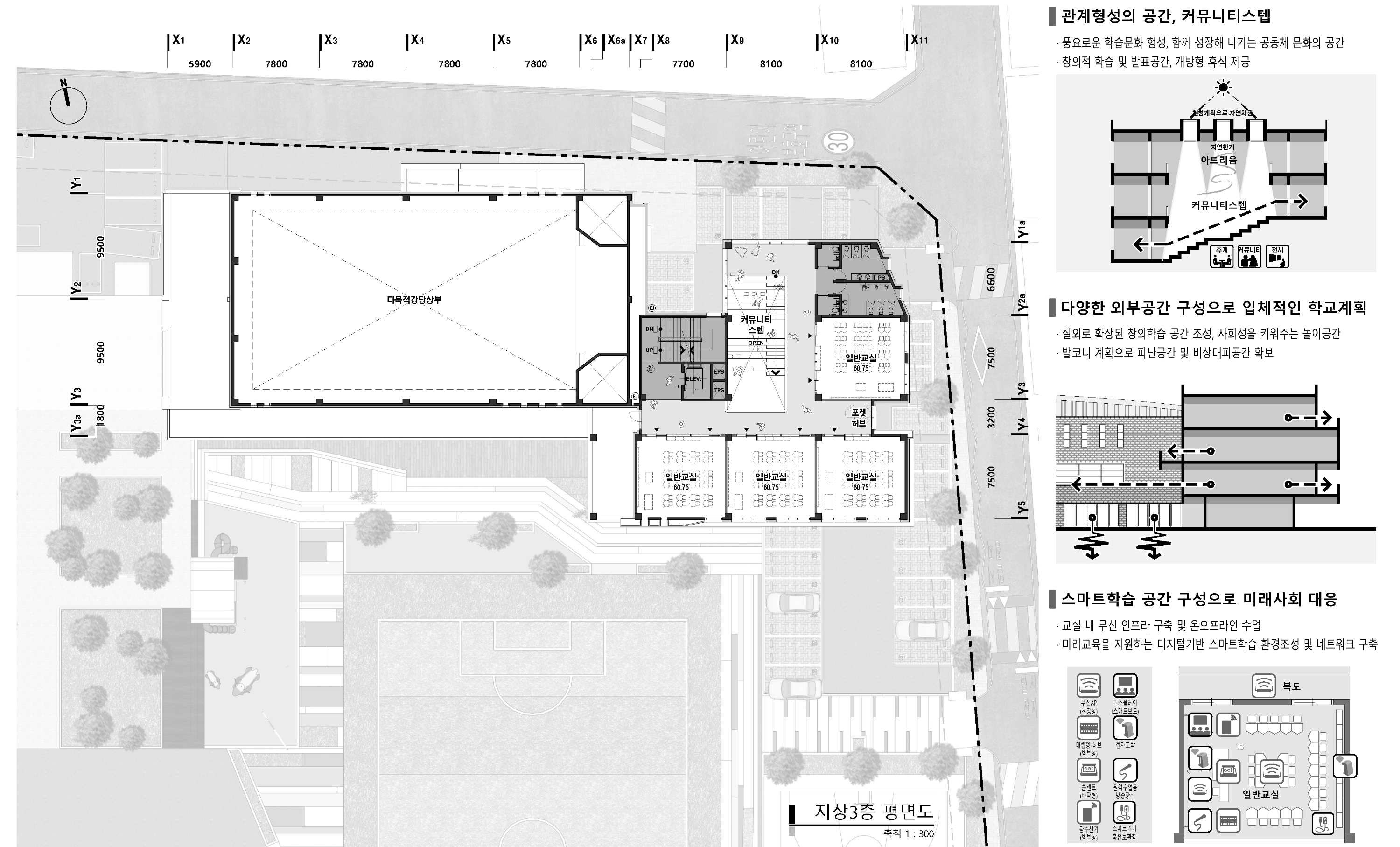
1. 연결과 조화
증축은 기존 건축과 단절되지 않고 자연스럽게 이어져야 합니다.
학교의 기억과 정체성을 존중하면서도, 새로운 동선과 공간은 학생들의 자유로운 움직임을 돕습니다.
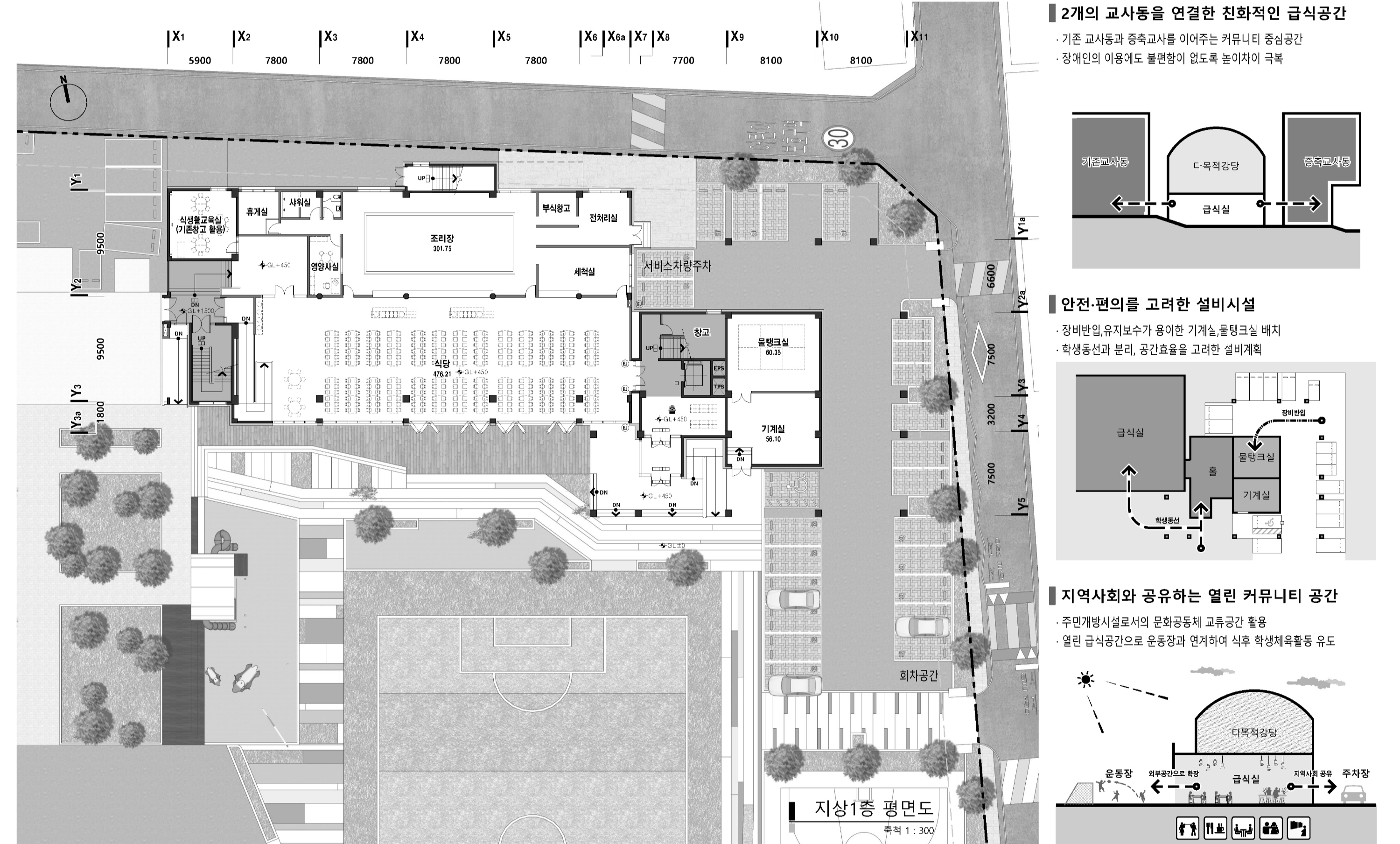
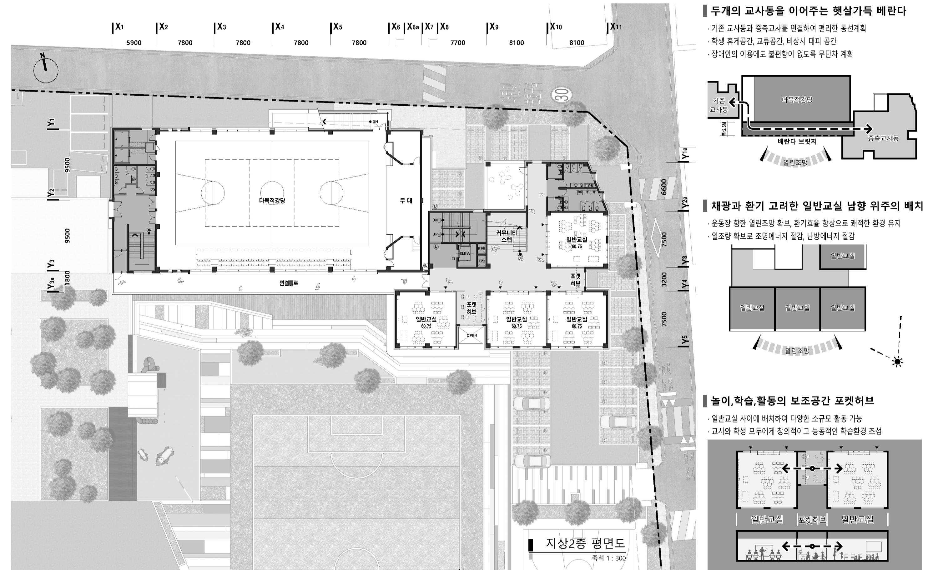
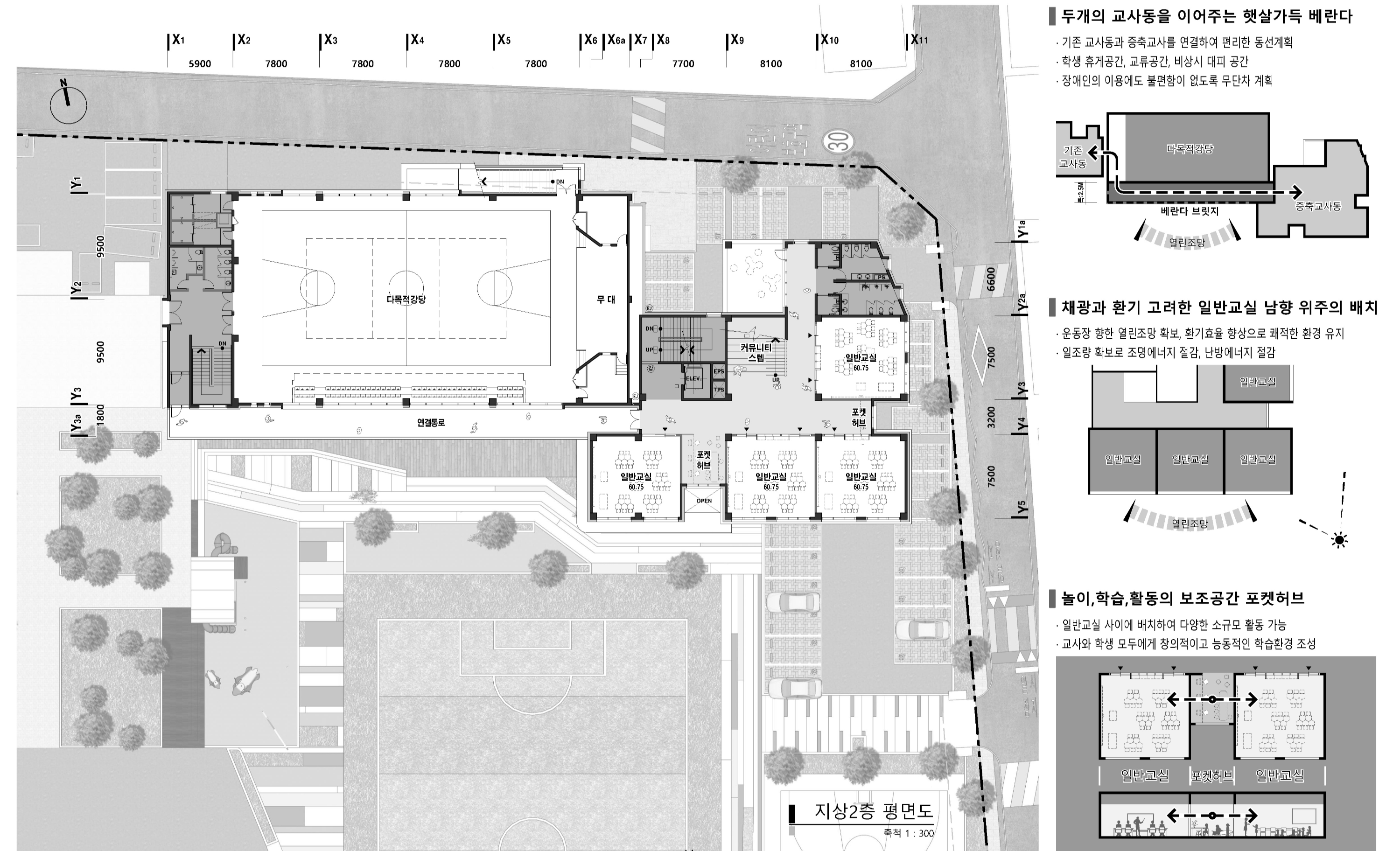
2. 열린 학습 환경
교실은 벽으로 닫힌 공간이 아니라, 서로 연결되고 확장되는 열린 배움의 장이 되어야 합니다.
다양한 학습방식 (협력, 탐구, 체험)을 담아낼 수 있도록 유연하고 가변적인 공간을 제안합니다.
3. 지속가능성과 안전
친환경 설계와 에너지 절약을 고려한 친화적 건축은 미래 세대에게 중요한 가치입니다.
동시에 아이들의 안전과 건강을 최우선으로 두어, 안심할 수 있는 배움터를 구현하고자 합니다.
우리가 제안하는 신정초등학교 증축은 아이들의 미래와 지역사회의 가치를 함께 키워내는 따뜻한 건축적 해법이 될 것입니다.













건축사사무소 단
2등작_ 건축사사무소 단
대표건축가 최성길
대지면적 13,250.00㎡
연면적 12,329.85㎡ (증축연면적 2,388.30㎡)
건축면적 3,959.425㎡ (증축건축면적 704.645㎡)
건폐율 29.88 %
용적률 93.06%
최고높이 19.5m
층수 지상 4층
구조 철근콘크리트구조
대표건축가 최성길
디자인팀 승희진, 양은정
조경면적 2,184.87㎡
주차대수 57대 (장애인주차2대, 일반28대, 전기차3대, 확장형18대)
발주처 울산광역시 강남교육지원청
'Plans' 카테고리의 다른 글
| 충청남도 동물위생시험소 부여지소 신축사업 설계공모(일반공모)_ 5등작 / (주)파랑건축사사무소 (0) | 2025.09.15 |
|---|---|
| 동강 영월 더 웰타운 커뮤니티 및 스포츠센터_ 5등작 / (주)에이라우드 건축사사무소 (0) | 2025.09.15 |
| 구미시 가족센터 증축공사 간이공모_ 당선작 / 케이아키텍건축사사무소 (0) | 2025.09.15 |
| 예산군 광시면 기초생활거점조성사업 광시 어울림센터 설계공모_ 2등작 / OURSTUDIO + 종합건축사사무소 시담 (0) | 2025.09.12 |
| 예산군 광시면 기초생활거점조성사업 광시 어울림센터 설계공모_ 5등작 / 은초아키텍텐 건축사사무소 (0) | 2025.09.12 |
마실와이드 | 등록번호 : 서울, 아03630 | 등록일자 : 2015년 03월 11일 | 마실와이드 | 발행ㆍ편집인 : 김명규 | 청소년보호책임자 : 최지희 | 발행소 : 서울시 마포구 월드컵로8길 45-8 1층 | 발행일자 : 매일



