
Lebom cafe / 일상이 한 장면이 되는 순간
‘가상(Virtual)’은 사전에 따르면, 존재하지 않지만 실제처럼 보이는 현상을 뜻한다. 하지만 이제는 상상 속에 머물던 기술들이 일상에 스며들어 함께 살아가는 시대가 되었고, 다양한 가상성(Virtuality)을 현실로 받아들일 수밖에 없는 시대에 진입했다. AI에게 일을 맡기는 행위, 아바타 가수와 실제 가수 사이에 팬덤의 경계가 사라진 현상, AR 기반 게임의 대중화 등은 우리가 인식하는 ‘가상’의 범위가 근본적으로 변화했음을 보여준다. 그렇다면, 만화를 좋아하는 사람들은 일상 속에서 만화를 어떻게 인식할까? 그들은 이 대상을 얼마나 현실로 끌어들였을까? 분명히 말할 수 있는 것은, 그들에게 만화는 단순히 종이나 화면 속에 머무는 것이 아니라는 점이다.


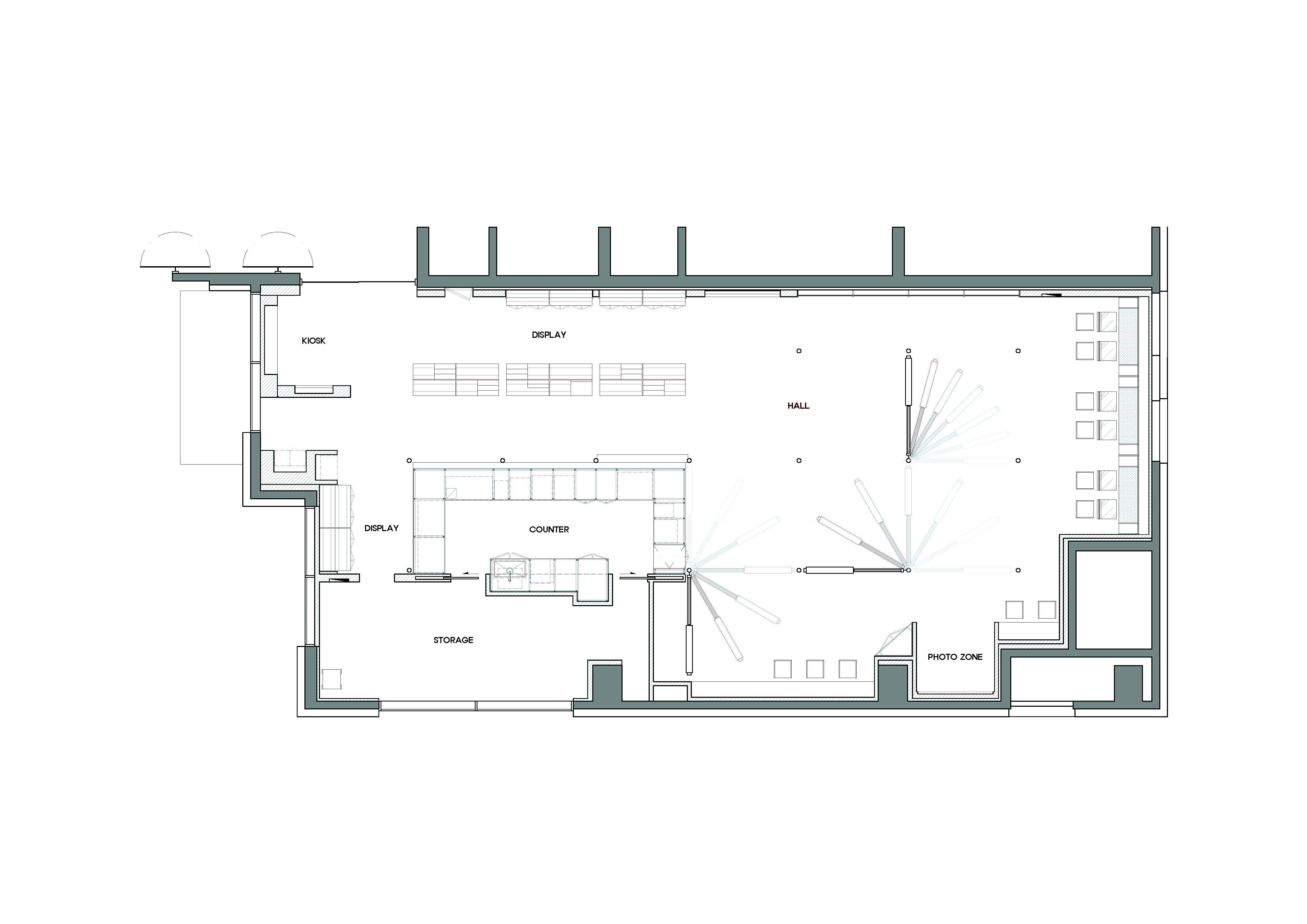
LEBOM 카페는 만화를 좋아하는 이들을 위한 전용 공간이다. 이곳은 주기적으로 팬들이 머무는 만화 팝업 공간으로 전환되며, 매번 다양한 만화 속 장면들을 구현해야 한다. 이를 위해, 공간 자체가 만화의 배경이 되기를 바랐고, 여기서 ‘만화 원고지’가 등장했다.


전체 공간은 하나의 거대한 만화 원고지가 된다. 이 안에서 캐릭터와 현실이 뒤섞이고, 일상의 순간은 한 장면이 된다. 만화책을 넘기듯 회전할 수 있도록 설계된 원고지는 빈 공간을 통해 만화와 현실을 함께 담아낸다. 팬 사인회 같은 목적에 따라 공간을 분할하는 파티션이 되기도 하고, 공간의 구성을 바꾸는 장치가 되기도 한다.


회전하는 만화 원고지 구조는 간판이나 배너를 결합할 수 있도록 십자 기둥과 상부 거치대 형태로 발전했고, 공간의 주요 요소가 되었다. 가구는 다양한 팝업마다 제작되는 굿즈들을 유연하게 진열할 수 있도록 모듈형으로 디자인되었다. 스탠드는 여러 형태로 제작되어 옷장과 진열대에 배치되며, 굿즈 전시에 도움을 준다. 개인의 취향이 점점 더 존중받는 사회 분위기 속에서, 만화에 특화된 이 팝업 공간이 의미 있는 결과를 만들어내길 기대한다.




건축가 언씬버드(unseenbird)
위치 대한민국, 서울, 성동구, 연무장로 11길 8
용도 카페
건축면적 225㎡ 
규모 지상 1층
준공 2025.04.
대표건축가  Bioh Seon
발주자 Lezhin Entertainment 
사진작가 Han Sunghoon
'Interior Project > Cafe&Restaurant' 카테고리의 다른 글
| 색과 공간의 경계를 넘어서, 헤이즈 커피 숍 / 브랜드 (0) | 2025.08.20 | 
|---|---|
| 벽돌의 따뜻함을 담은 레스토랑 / 네오제네시스+스투디오0261 (0) | 2025.08.06 | 
| 두 개의 캔버스 천장이 만드는 중첩된 도시의 카페 / 아틀리에 타오 + 씨 (0) | 2025.07.21 | 
| 힙셩 씨푸드 핫 팟 레스토랑 / 에이디 아키텍처 (0) | 2025.07.07 | 
| 일상의 여백을 경험할 수 있는 곳, 블루보틀 삼성점 / 원애프터 (0) | 2025.06.25 | 
마실와이드 | 등록번호 : 서울, 아03630 | 등록일자 : 2015년 03월 11일 | 마실와이드 | 발행ㆍ편집인 : 김명규 | 청소년보호책임자 : 최지희 | 발행소 : 서울시 마포구 월드컵로8길 45-8 1층 | 발행일자 : 매일


 
                                                         
                                                         
                                                         
                                                        
