
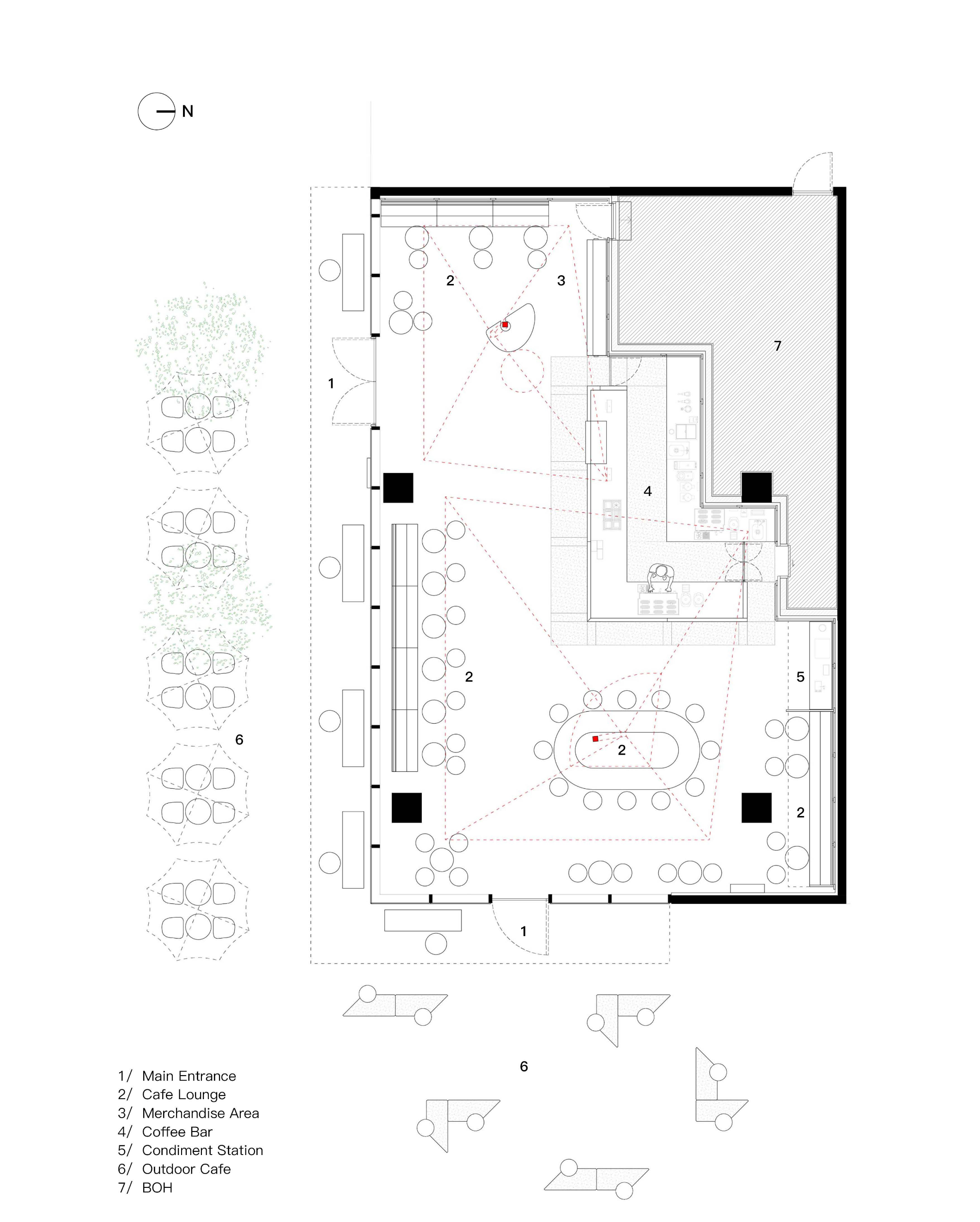
상하이의 웨스트번드(West Bund)는 과거 운송, 물류, 생산의 중심지로 기능했던 산업 지구였으며, 최근 수년간 황푸강(Huangpu River) 일대를 중심으로 대규모 도시 재생 프로젝트가 진행되며 활기찬 문화 공간으로 탈바꿈했다. 수변 공간은 다양한 야외 활동과 문화 행사가 이루어지는 장소로 변화하며 지역 주민과 방문객 모두에게 사랑받는 명소가 되었다. 이러한 변화의 흐름 속에서, 아틀리에 타오+씨(atelier tao+c)가 설계한 블루보틀 커피(Blue Bottle Coffee)는 웨스트번드의 한 지점에 위치한다. 이곳은 1920년부터 2009년까지 상하이 시멘트 공장이 있었던 부지로, 매장의 동쪽은 과거 조선소였던 공간과 맞닿아 있다. 설계는 이처럼 중첩된 장소의 기억과 현재 도시 환경에 대한 섬세한 반응으로 이루어졌다.



프로젝트의 핵심은 ‘두 개의 캔버스(canvas)’ 형태로 정의된 독특한 천장 구조이다. 비스듬히 세워진 목재 기둥이 이 캔버스를 지지하며, 공간을 두 개의 흐름 있는 영역으로 나누고, 마치 쉼터와 같은 따뜻한 분위기를 자아낸다. 캔버스의 네 모서리는 각기 다른 높이로 들어 올려져 있어 황푸강과 조선소의 풍경이 스며들 수 있는 틈을 만들어낸다. 이는 바람에 가볍게 들린 듯한 형상으로, 공간에 시각적 개방감을 부여한다.

이 천장 구조는 단지 조형적 요소를 넘어, 기계 및 전기 설비가 내장된 기능적 구조로 설계되었다. 일부 개구부를 통해 드러나는 목재 프레임은 에어컨의 리턴 공기 통로 역할을 하며, 테이블 위를 비추는 조명 설비 또한 이 구조 안에 통합되어 있다.



내부의 또 다른 특징은 더글러스 퍼 집성목으로 제작된 목재 패널 시스템이다. 이는 전시 선반이자 주방과 홀을 나누는 벽체로 기능하며, 따뜻한 목재의 색감이 공간 전체에 부드러운 분위기를 더한다. 메뉴판, 좌석, 바 뒤쪽의 카운터, 주방 출입구 등은 모두 동일한 재료 안에서 유기적으로 통합되어 있다.


커피 바는 프리패브 콘크리트 블록으로 제작되어, 이 장소가 지닌 산업 유산에 대한 오마주를 담고 있다. 벤치 역시 같은 콘크리트 블록 위에 소나무 판재를 교차시켜 좌판과 등받이를 구성했다. 이 모든 요소들은 공장에서 사전 제작된 뒤 현장에서 조립되었으며, 단순하지만 치밀한 방식으로 완성되었다. 도시의 일상 재료를 재해석한 이 구성은 도시에 사는 이들에게 친숙한 감각을 불러일으킨다. 외부 공간까지 연장된 디자인은 단일 모듈로 제작된 야외 스툴에서도 이어진다. 스툴은 조선소 방향으로 배치되어 있어, 방문객이 커피를 마시며 황푸강을 따라 움직이는 화물선의 풍경을 감상할 수 있도록 했다.


디자이너 아틀리에 타오 + 씨 (atelier tao+c)
위치 중국, 상하이
용도 카페
건축면적 180㎡
준공 2024.08
대표디자이너 Tao Liu, Chunyan Cai
디자인팀 Tao Liu, Chunyan Cai, Weilu Wang, Liyan Zhu, Yijun Ma
사진작가 Wen Studio
'Interior Project > Cafe&Restaurant' 카테고리의 다른 글
| 벽돌의 따뜻함을 담은 레스토랑 / 네오제네시스+스투디오0261 (0) | 2025.08.06 |
|---|---|
| 가상과 현실의 장면을 담는 카페 / 언씬버드 (0) | 2025.08.01 |
| 힙셩 씨푸드 핫 팟 레스토랑 / 에이디 아키텍처 (0) | 2025.07.07 |
| 일상의 여백을 경험할 수 있는 곳, 블루보틀 삼성점 / 원애프터 (0) | 2025.06.25 |
| 상하이 골목길을 들인 레스토랑 / 네리앤후 디자인 리서치 오피스 (0) | 2025.05.28 |
마실와이드 | 등록번호 : 서울, 아03630 | 등록일자 : 2015년 03월 11일 | 마실와이드 | 발행ㆍ편집인 : 김명규 | 청소년보호책임자 : 최지희 | 발행소 : 서울시 마포구 월드컵로8길 45-8 1층 | 발행일자 : 매일



