
Gros Bao 마르세유점은 마르세유 구항(Cours Saint Louis) 인근에 위치한 석재 외장 역사적 건물의 1~3층을 리모델링하여 조성된 중국식 캐주얼 레스토랑이다. 프로젝트는 공공성과 사적인 분위기가 공존하는 두 거리, 생루이 광장과 뤼 데 레콜레트 사이의 대비에서 출발한다.




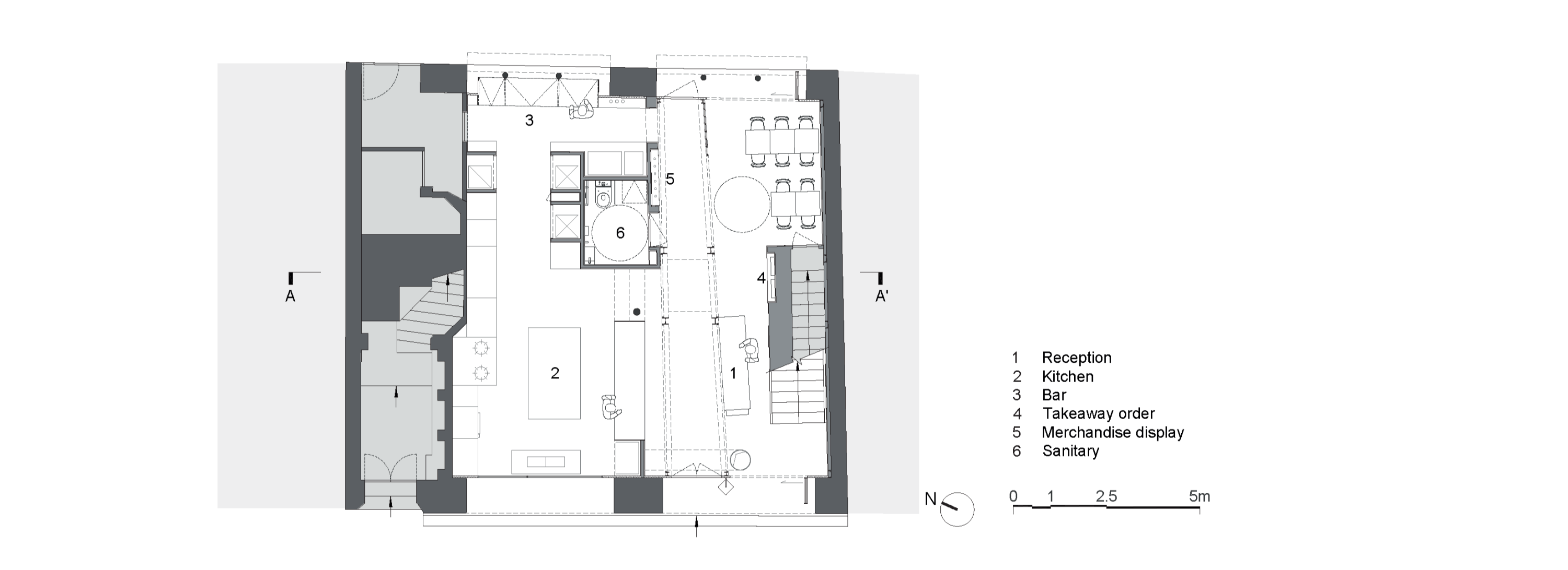
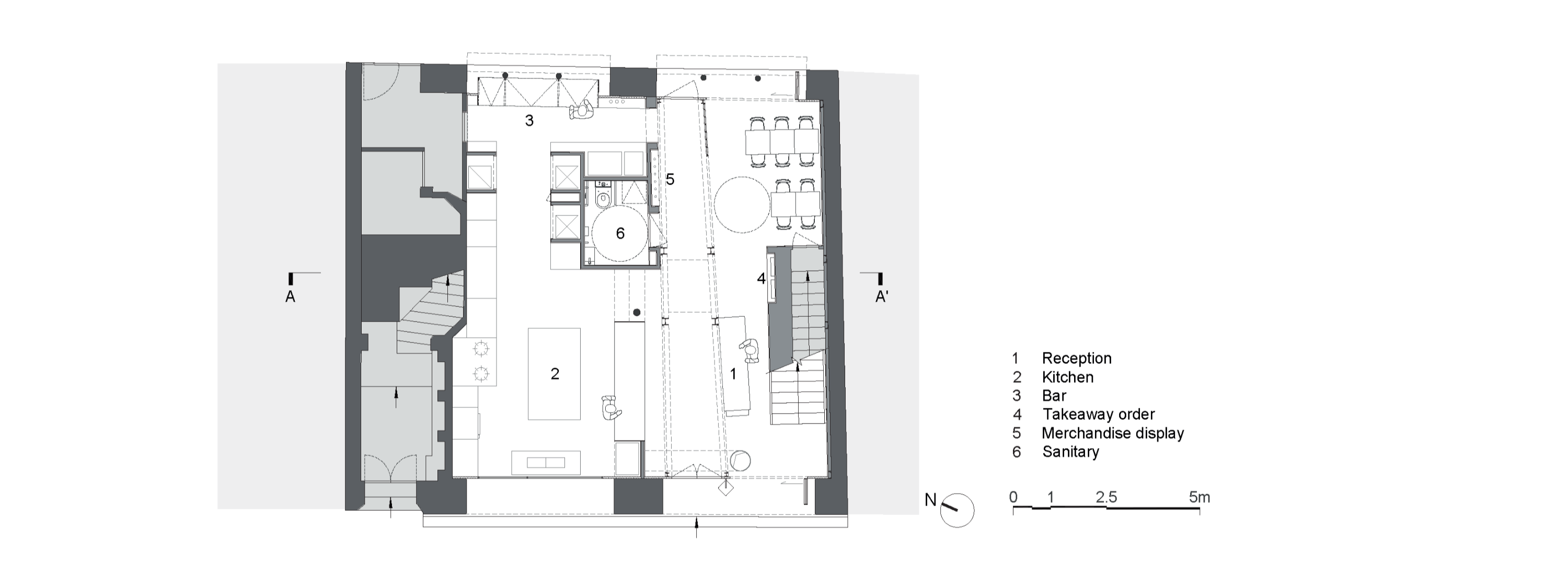
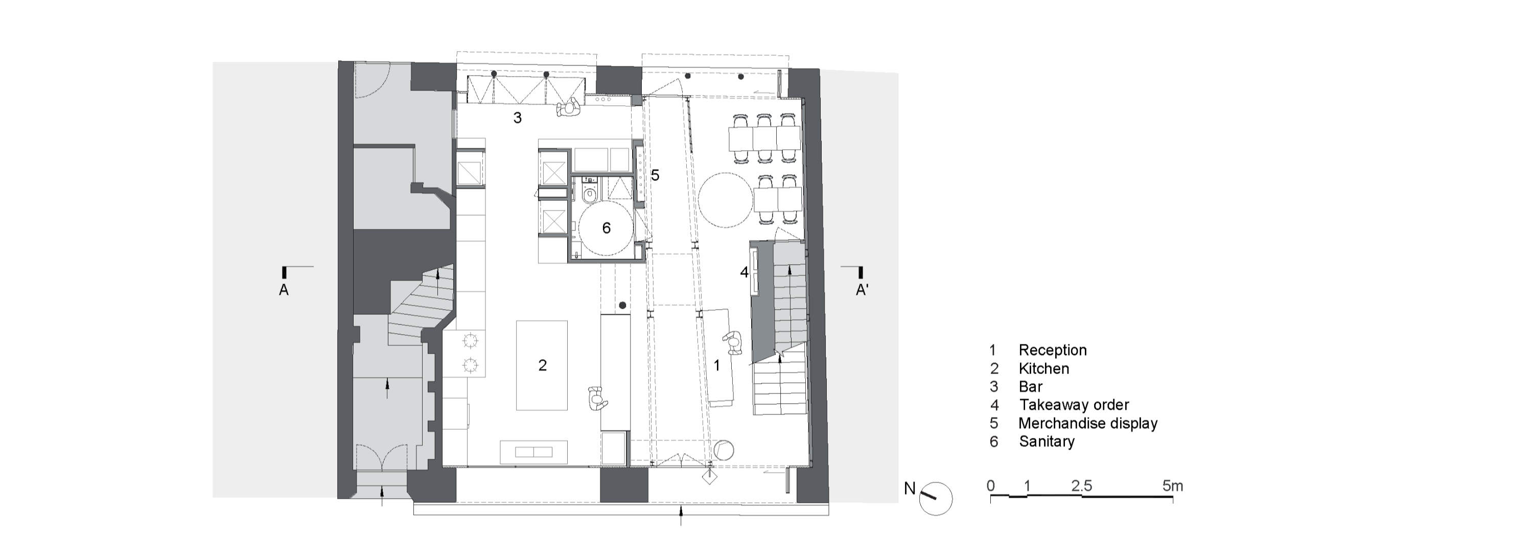
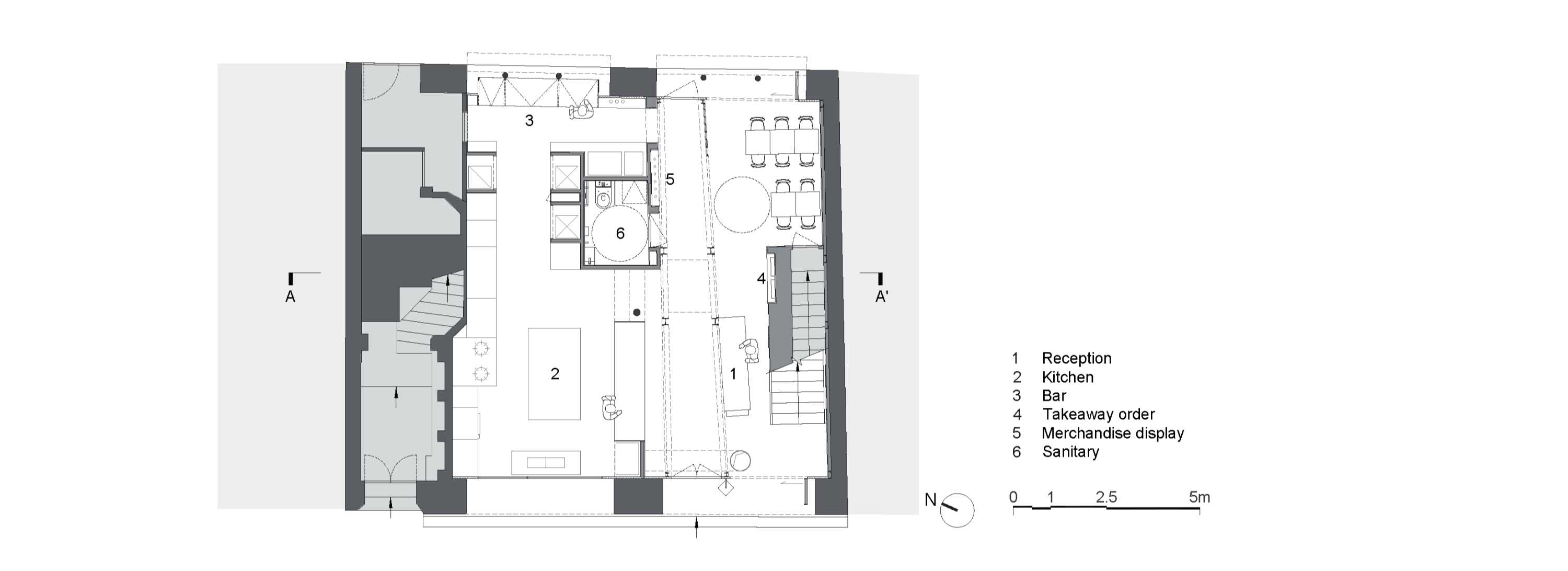
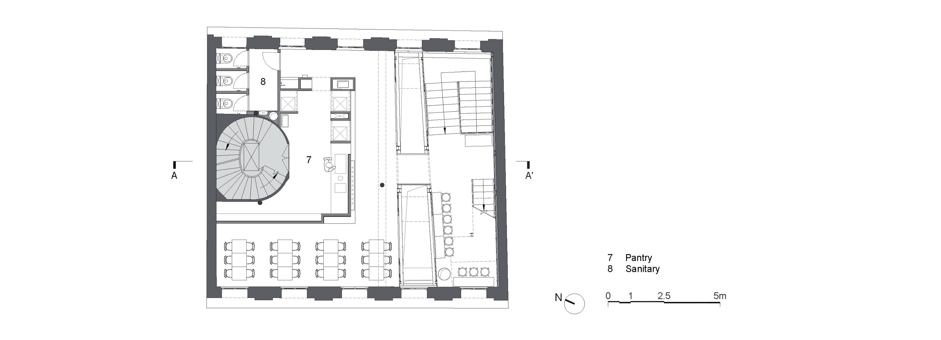
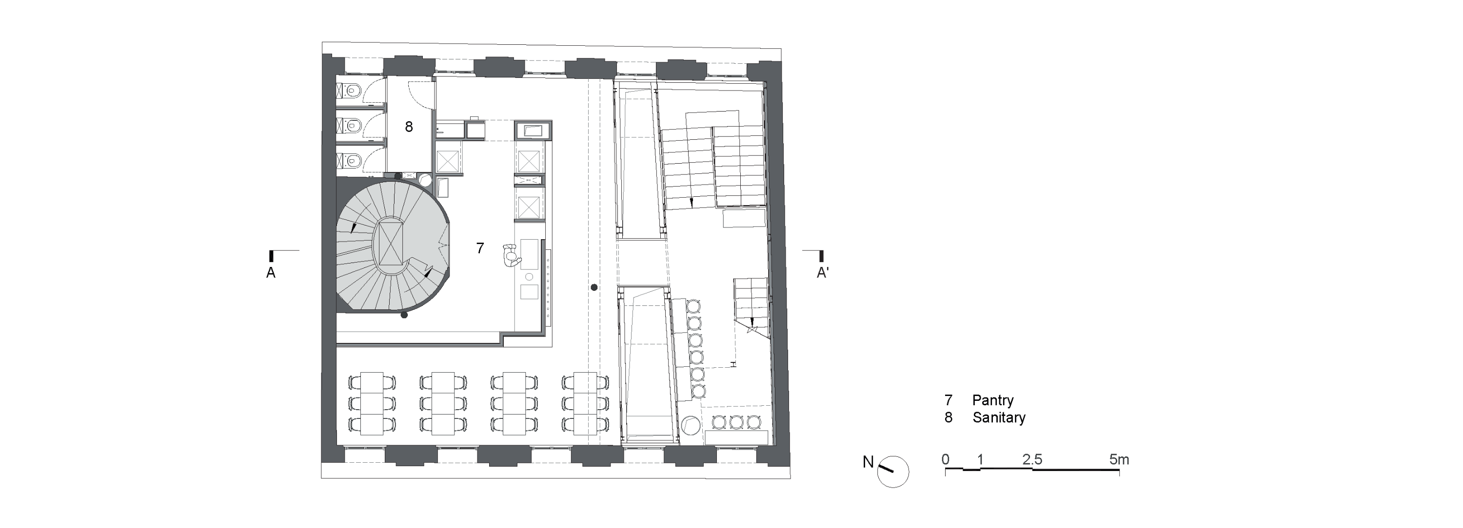
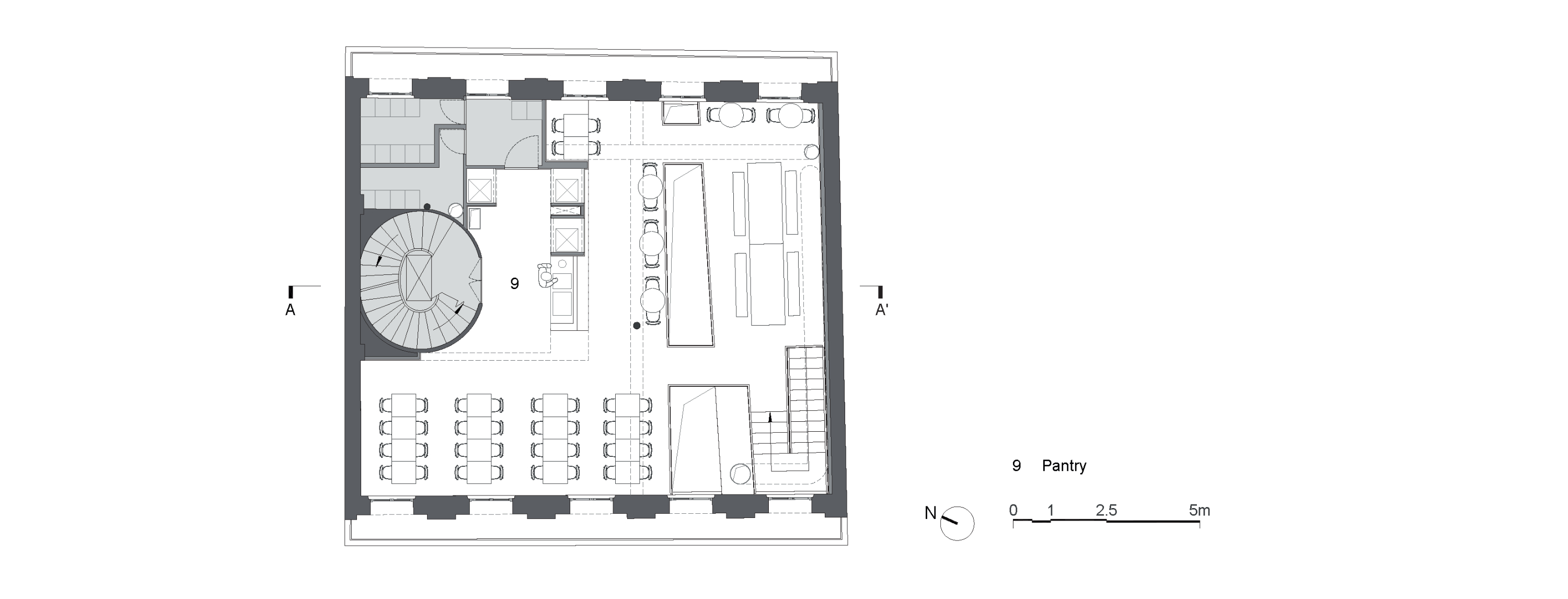
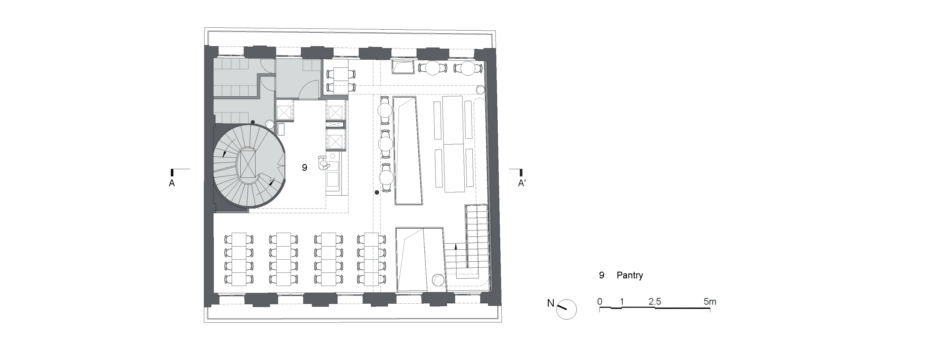
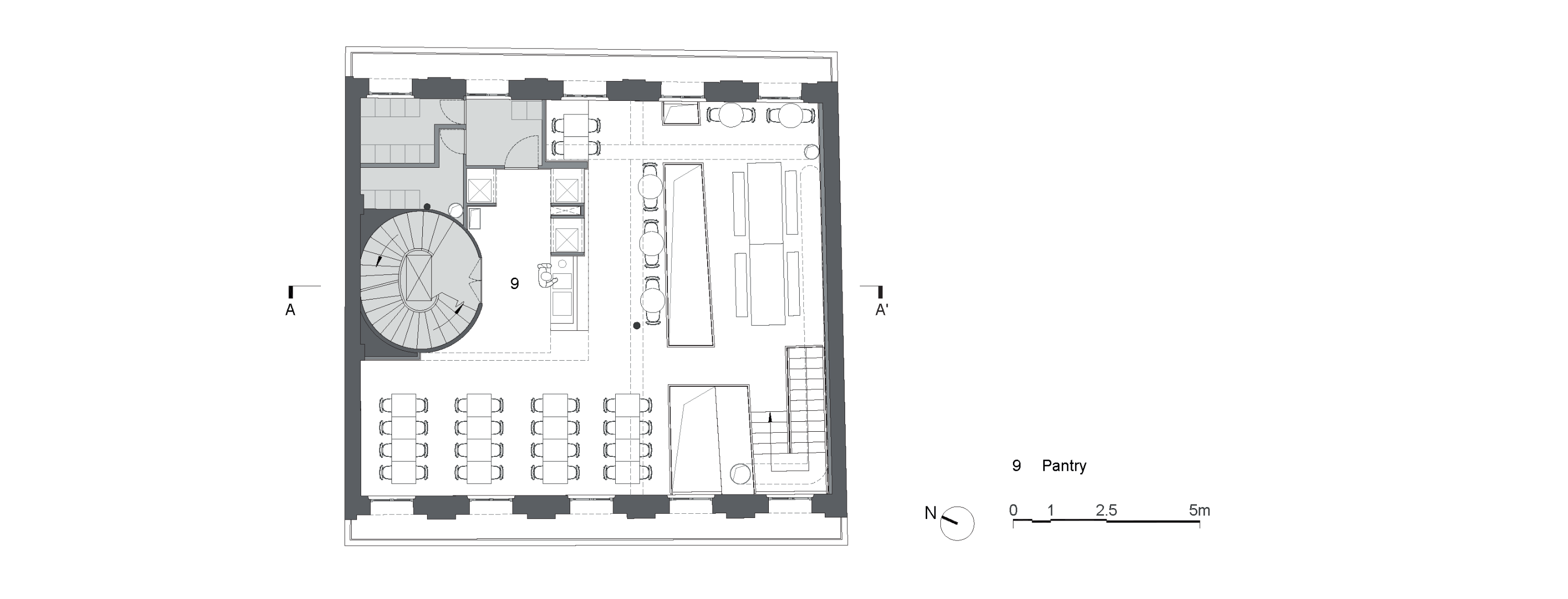
설계는 이 두 거리 사이에 수직으로 연결되는 새로운 내부 통로를 세 층 전체에 걸쳐 삽입함으로써, 건물의 중심에 하나의 골목길 같은 동선을 만들어냈다. 인테리어는 상하이의 전통 골목길인 롱탕(longtang)에서 영감을 받아, 도시의 골목 풍경을 연상시키는 구조로 설계되었다.



실내는 주방과 식당, 공적 공간과 사적 공간이 유기적으로 연결되며, 방문자가 공간을 따라 걸으며 지역성과 문화적 분위기를 체감할 수 있도록 구성되었다. 마감은 노출 철재, 흰색 사각 타일, 아연 도금 강판, 붉은 리놀륨, 기존 석재 벽 등 다양한 재료를 조합하여 조리 공간과 음식 콘셉트의 투박함과 진정성을 반영했다.


외관은 전통 석조 입면 위에 현대적인 금속 프레임과 패널을 삽입해 강한 대비를 이루며, 가구는 상하이 길거리 식당의 금속 프레임과 포미카 상판 디자인을 모티브로 맞춤 제작되었다.



건축가 네리앤후 디자인 리서치 오피스(Neri&Hu Design and Research Office)
위치 프랑스, 마르세유, 생루이 코르 3번지, 13001
용도 레스토랑
연면적 387㎡
규모 지상 3층
준공 2024
대표건축가 Lyndon Neri, Rossana Hu
디자인팀 Jiaxin Zhang, Xin Jin, Benyang Zhou, Xuan Zhang, Pinwen Zhang, Nicolas Fardet, Yin Sheng, Greg Wu
인테리어 Neri&Hu Design and Research Office
발주자 BAO FAMILY
사진작가 Pedro Pegenaute
'Interior Project > Cafe&Restaurant' 카테고리의 다른 글
| 힙셩 씨푸드 핫 팟 레스토랑 / 에이디 아키텍처 (0) | 2025.07.07 |
|---|---|
| 일상의 여백을 경험할 수 있는 곳, 블루보틀 삼성점 / 원애프터 (0) | 2025.06.25 |
| 사원의 전통건축 요소를 결합한 구이 사원 레스토랑/ 디에스씨·디자인 (0) | 2025.05.16 |
| 등대같은 벽이 길을 만드는 레스토랑 / 탄조 스페이스 디자인 (0) | 2025.05.09 |
| 재료와 색이 만드는 안정감, 이티에이치알 클럽하우스 / 쉘+코어 (0) | 2025.04.25 |
마실와이드 | 등록번호 : 서울, 아03630 | 등록일자 : 2015년 03월 11일 | 마실와이드 | 발행ㆍ편집인 : 김명규 | 청소년보호책임자 : 최지희 | 발행소 : 서울시 마포구 월드컵로8길 45-8 1층 | 발행일자 : 매일



