
ETHR Clubhaus
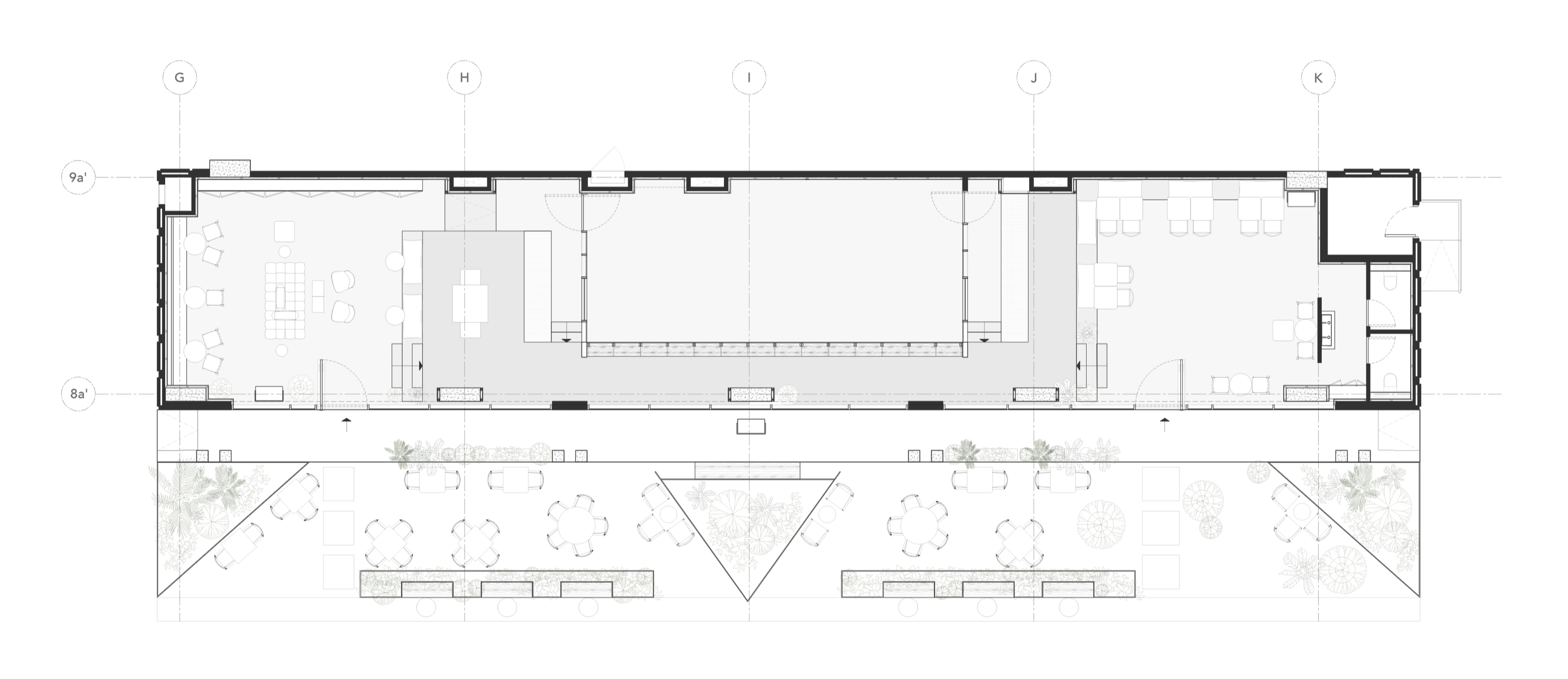
ETHR Clubhaus는 아랍에미리트 로컬 브랜드 ETHR이 샤르자에 새롭게 선보인 공간으로, 절제된 미니멀리즘 디자인에 지역 산악 지형의 맥락적 요소를 더해 완성됐다. 클럽하우스는 샤르자의 젊은 문화와 예술 생태계를 반영하며, 다양한 사람들이 자연스럽게 어우러질 수 있는 포용적 공간을 지향한다.



‘열림’과 ‘연결’이라는 두 키워드는 ETHR Clubhaus를 이해하는 데 중요한 단서가 된다. 방문객은 공간 곳곳에서 브랜드의 제작 철학과 과정을 직접 체험하며 소통할 수 있다. 특히 내부에 노출된 제빵 공간은 단순한 기능을 넘어, 방문자의 호기심을 자극하고 대화를 유도하는 설계 장치로 활용된다. 이처럼 공공성과 생산성이 공존하는 구성은 공간의 사용성을 더욱 풍부하게 만든다.



공간은 주간에는 생산적인 활동이, 야간에는 느긋한 휴식이 어울리는 방식으로 자연스럽게 전환된다. 시간대에 따라 조도를 달리하는 조명 설계와 유연하게 구성된 좌석 배치는 다양한 사용자의 니즈를 충족시킨다. 1인 학습 공간에서부터 그룹 활동을 위한 테이블까지, 누구나 자신에게 맞는 방식으로 머물 수 있도록 배려되어 있다.
실내와 실외는 유기적으로 연결되어 있으며, 현지에서 재배된 식물을 활용한 녹지 공간은 도시 안에서도 자연의 평온함을 느끼게 한다. 마감재 선택 역시 대비의 미학을 중심으로 이뤄졌다. 따뜻한 목재와 자연 소재는 차가운 콘크리트, 철재와 조화를 이루며 절제된 고급스러움을 완성한다. 곳곳에 배치된 그린 마블 같은 독특한 재료는 디자인에 깊이를 더하고, 시각적 리듬을 형성한다.

건축가 쉘+코어(shell+core)
위치 아랍에미리트, 샤라야
용도 카페
건축규모 지상 1층
프로젝트면적 250㎡
조명 PS LAB
사진작가 Bianca Studio
'Interior Project > Cafe&Restaurant' 카테고리의 다른 글
| 사원의 전통건축 요소를 결합한 구이 사원 레스토랑/ 디에스씨·디자인 (0) | 2025.05.16 |
|---|---|
| 등대 같은 벽이 길을 만드는 레스토랑 / 탄조 스페이스 디자인 (0) | 2025.05.09 |
| 생선 비늘 같은 대나무로 직조된 뭍의 레스토랑 / 테이스트 스페이스 (0) | 2025.04.14 |
| 자연의 풍경을 공간으로 만든 레스토랑 / 푸눈 랩 (0) | 2025.03.28 |
| 목재와 패브릭의 대비로 구성하는 레스토랑 / 이에프이이엠이 아키텍츠 (0) | 2025.03.27 |
마실와이드 | 등록번호 : 서울, 아03630 | 등록일자 : 2015년 03월 11일 | 마실와이드 | 발행ㆍ편집인 : 김명규 | 청소년보호책임자 : 최지희 | 발행소 : 서울시 마포구 월드컵로8길 45-8 1층 | 발행일자 : 매일



