
스페인관은 ‘쿠로시오 해류(The Kuroshio Current)’를 주제로, 스페인의 정체성과 해양을 통한 전 지구적 연대를 건축적으로 표현했다. 바스크 항해가 안드레스 데 우르다네타가 개척한 16세기 일본-신스페인 간의 해상 교류를 모티프로, 스페인과 일본의 역사적 연결성을 상기시킨다.


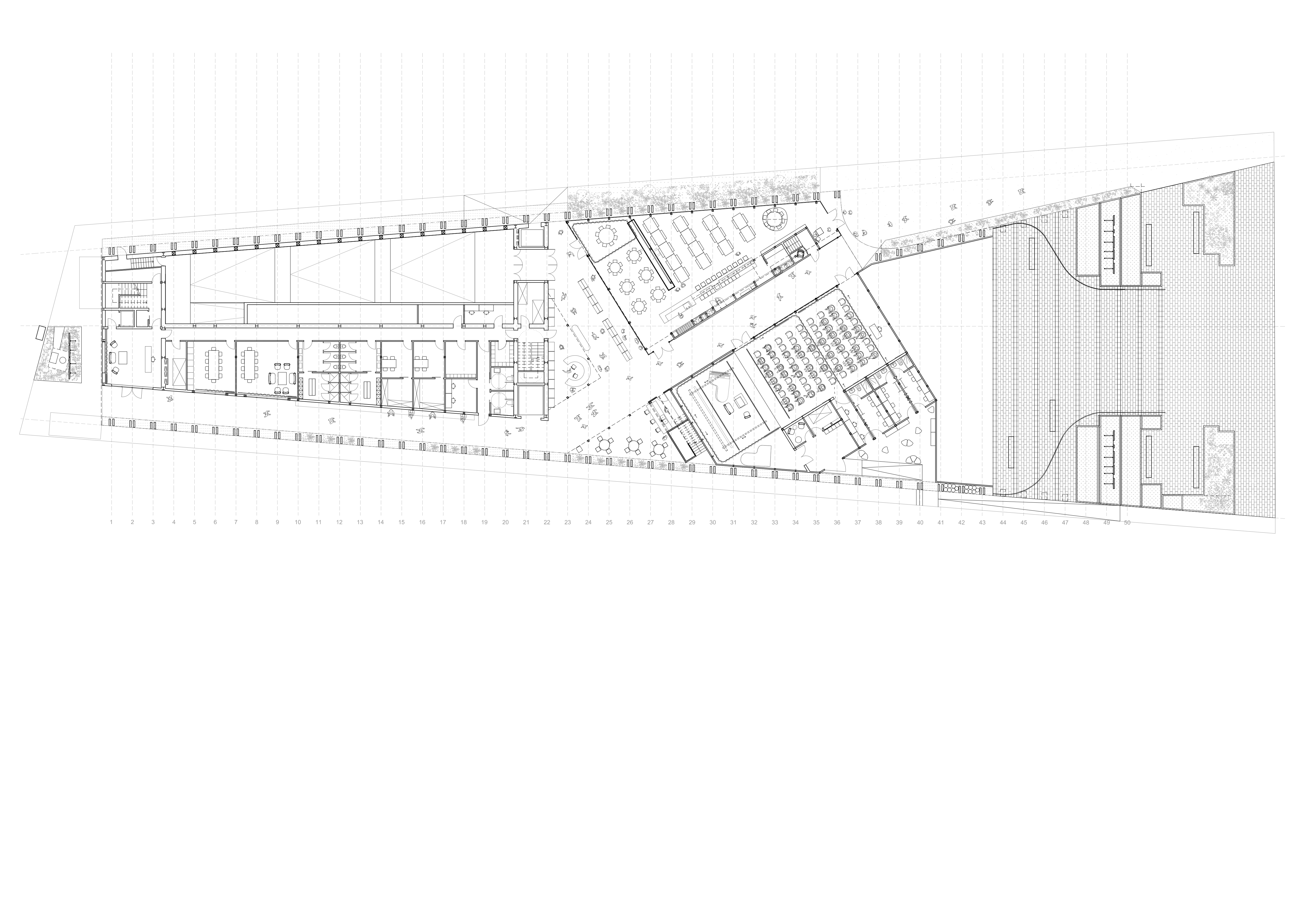
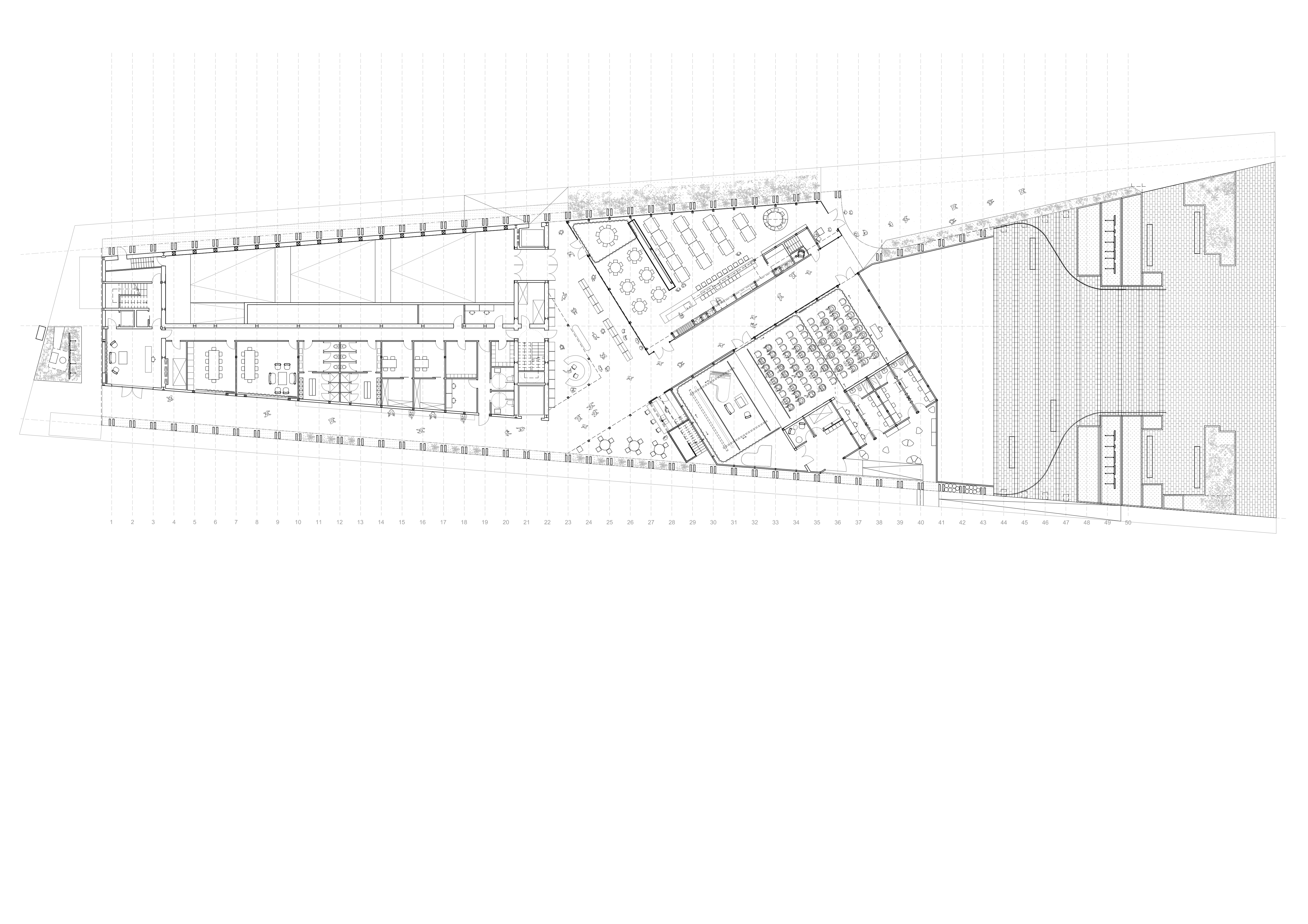
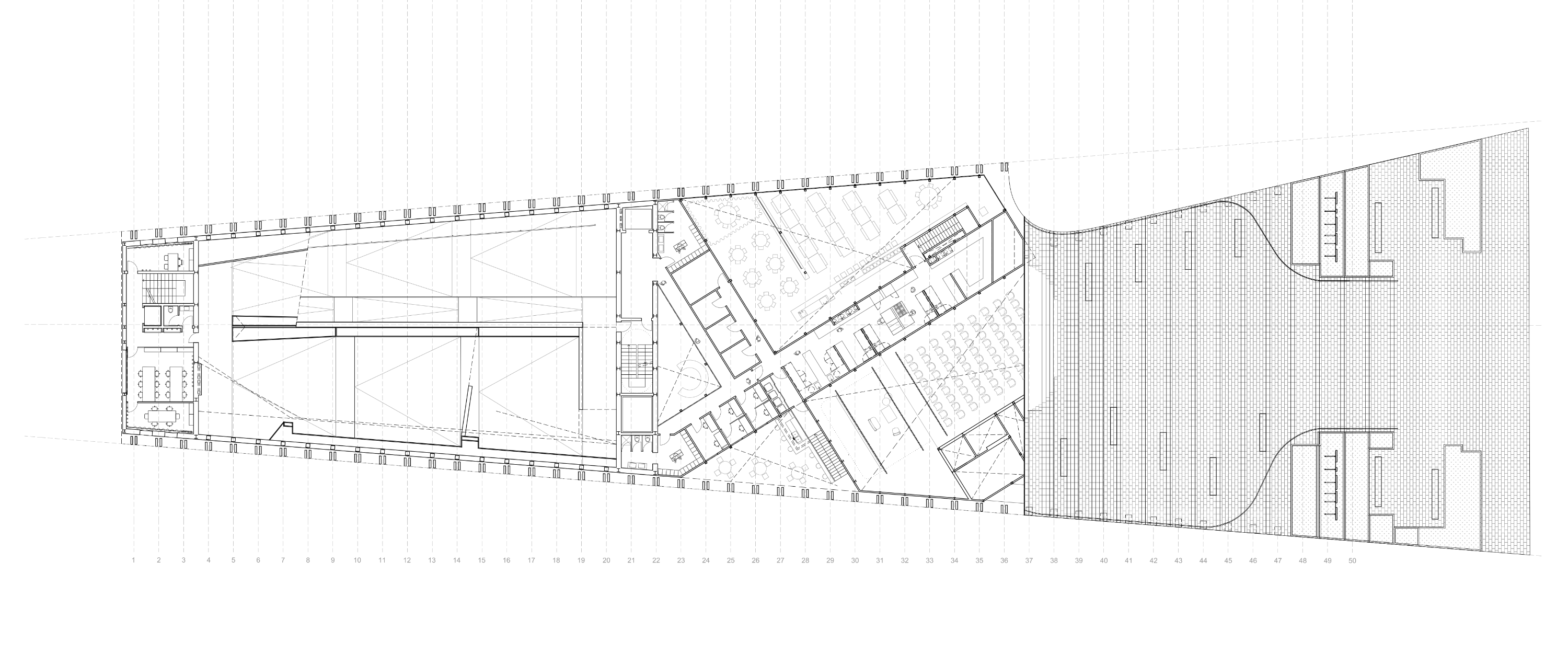
건축은 개방적인 광장을 중심으로 구성된다. 지중해 도시의 광장을 연상케 하는 ‘태양의 광장(Plaza del Sol)’은 전면에 위치한 디지털 파사드와 함께 관람객을 맞이하며, 해변에 앉아 쉬는 듯한 편안한 분위기를 유도한다. 이후 관람 동선은 바다 속으로 잠수하듯 경사로를 따라 이어지며, 스페인의 해양 기술, 지속가능성, 지역문화 등을 다양한 영상 설치와 체험형 콘텐츠로 소개한다. 여정의 끝에는 기념품숍, 해산물 레스토랑, 다목적실이 자리한다.



전체 구조는 일본산 삼나무를 주재료로 하며, 모든 부재는 건축 해체 및 재사용을 고려해 설계되었다. 조립식 목구조와 건식 접합 방식은 전시 종료 후 철거 및 순환을 용이하게 한다. 파사드 타일은 세라미카 쿠멜라(Ceràmica Cumella)가, 가구는 인증 목재 및 재생 섬유를 활용한 온다레타(Ondarreta)가 제작했다. 전시 기간 동안 스페인 각 지역 정부와 기업이 회의, 포럼, 발표 등을 위해 공간을 활용할 예정이다.




관람객 동선은 네 구간으로 구성된다.
- 태양의 광장(Plaza del Sol) – LED 영상과 공연이 어우러진 대기 공간.
- 미래를 향한 해류(Corrientes hacia el futuro) – 스페인과 바다, 블루 이코노미를 주제로 한 몰입형 체험 공간.
- 그리팅스 프롬 스페인(Greetings from Spain) – 엽서와 셀피를 매개로 한 스페인의 이미지 전시.
- 다양한 스페인(Una España diversa) – 17개 자치지역의 현실과 문화를 소개하며 관람을 마무리하는 공간.








건축가 이엑스투디오(EXTUDIO)
위치 일본, 오사카, 유메시마
용도 파빌리온
준공 2025. 02.
대표건축가 Néstor Montenegro
프로젝트건축가 Rocío Pina, Carmelo Rodríguez, Fernando Muñoz
디자인팀 Víctor Criado, Alba Fernández, Lucía García, Diego García, Alba Gómez, Aureliana Rizzo, Alexis Rodríguez, Paula Rodríguez, Marion Roth, Eva Stamatiou
발주자 Acción Cultural Española
사진작가 Arch-Exist
'Interior Project > Installation' 카테고리의 다른 글
| 주거단지의 커뮤니티를 모으는 파빌리온 / 아마사 에스투디오, 안드레아 로페스 + 아구스틴 페레이라 (0) | 2025.07.25 |
|---|---|
| 2025 오사카 간사이 엑스포 이탈리아관 / 마리오 쿠치넬라 아키텍츠 (0) | 2025.07.02 |
| 2025 오사카 간사이 엑스포 일본관 / 니켄 세케이 (0) | 2025.06.24 |
| 2025 오사카 간사이 엑스포 영국관 / 우 아키텍츠 (0) | 2025.06.05 |
| 2025 오사카 간사이 엑스포 사우디아라비아관 / 포스터 + 파트너스 (0) | 2025.05.27 |
마실와이드 | 등록번호 : 서울, 아03630 | 등록일자 : 2015년 03월 11일 | 마실와이드 | 발행ㆍ편집인 : 김명규 | 청소년보호책임자 : 최지희 | 발행소 : 서울시 마포구 월드컵로8길 45-8 1층 | 발행일자 : 매일



