
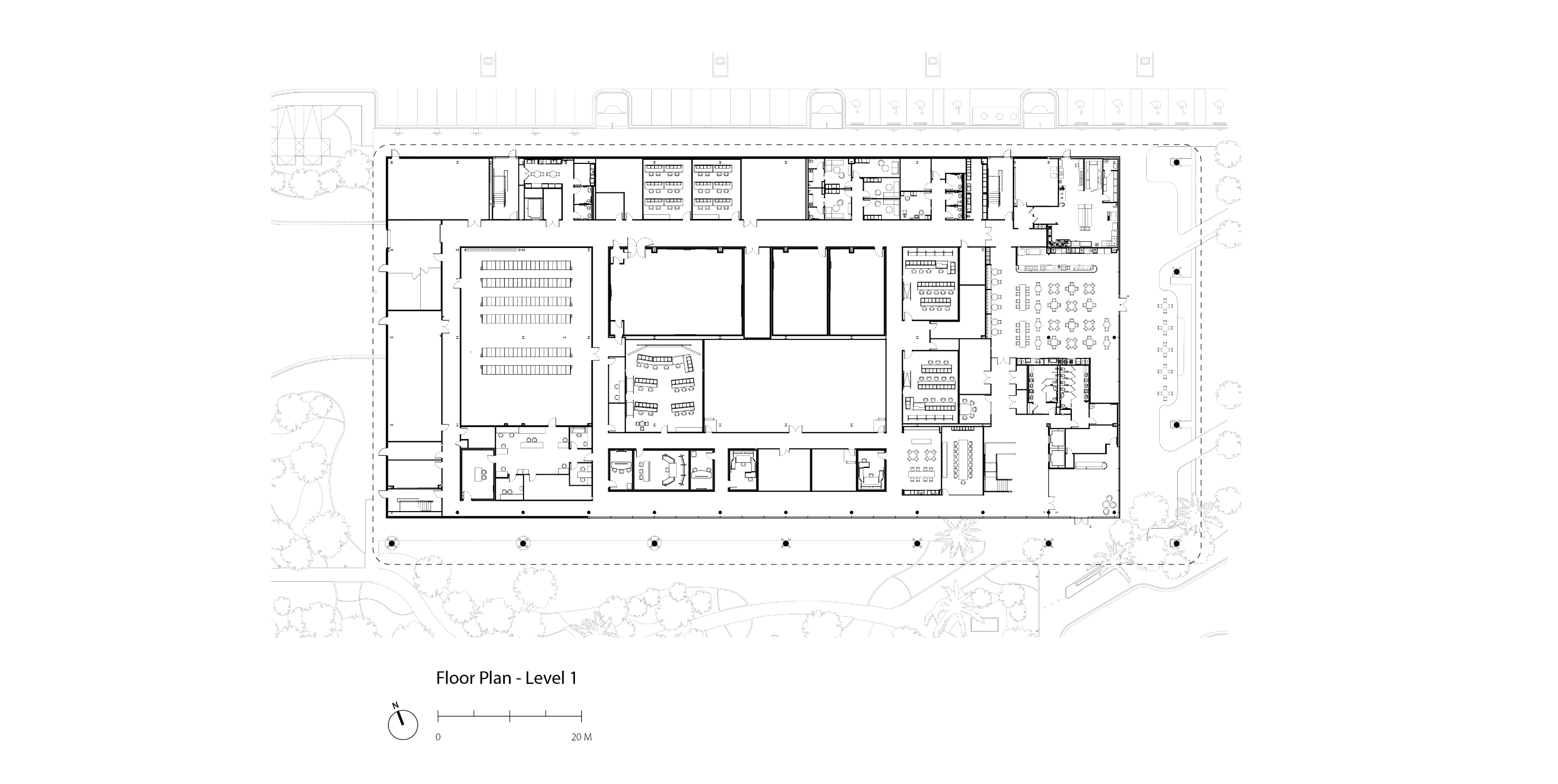
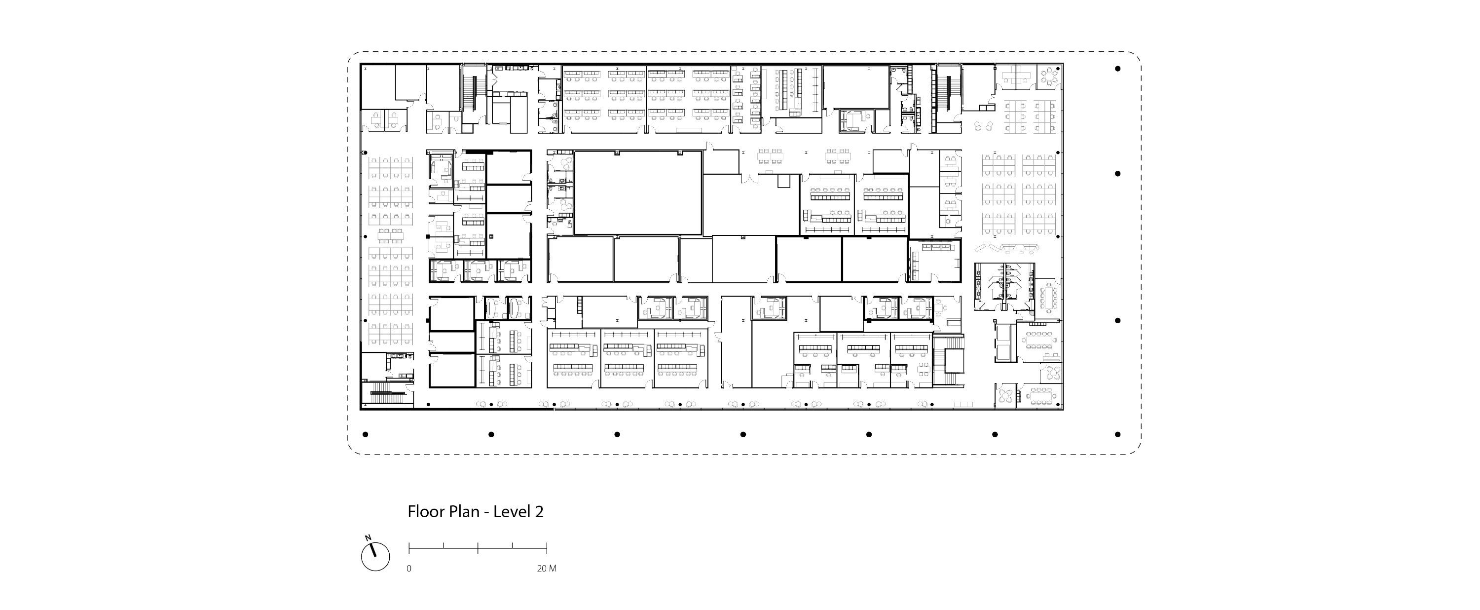
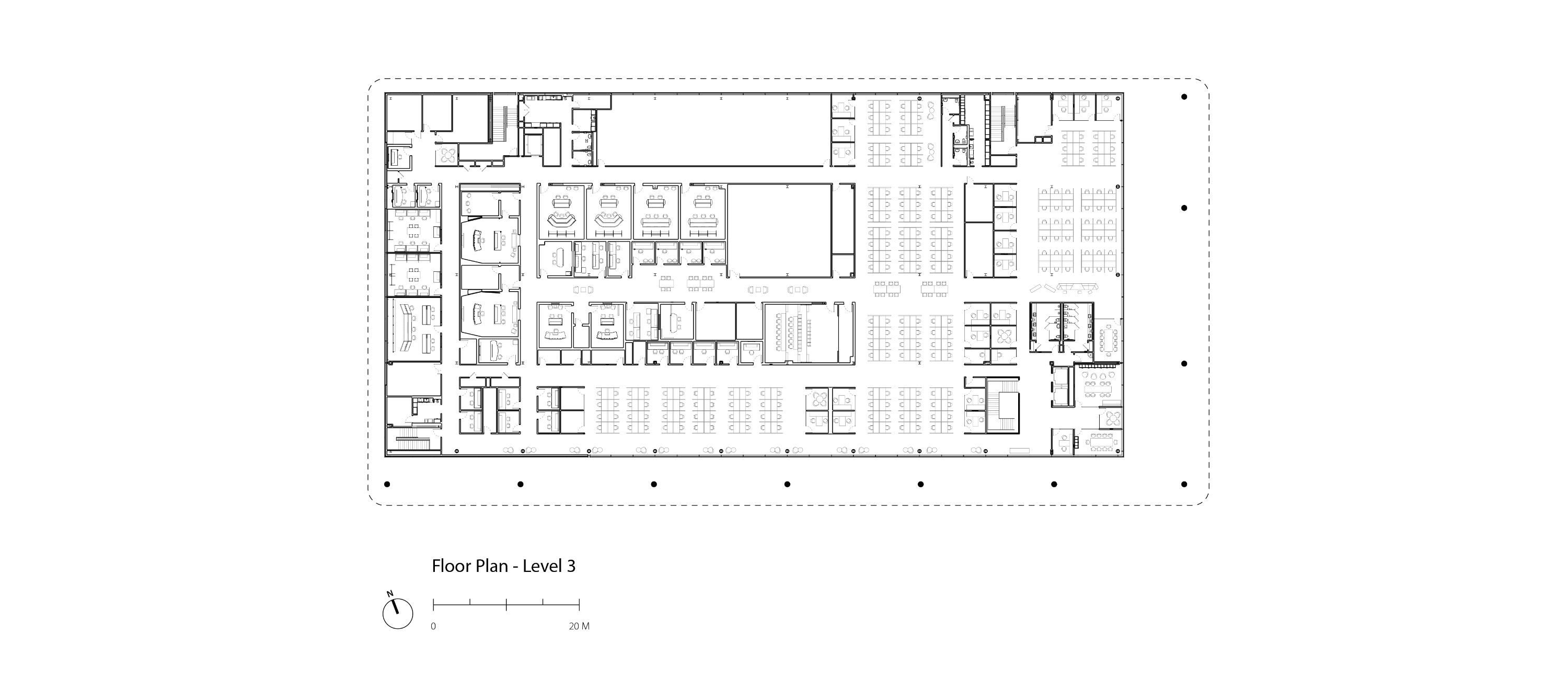
미국 플로리다 폰테베드라비치에 조성된 PGA 투어 스튜디오는 본사 캠퍼스를 확장하며 새롭게 구축된 영상 제작 시설로, TPC 소그래스 경기장과 기존 본사 건물 인근에 위치한다.



두 건물은 풍부한 조경과 인공 호수를 사이에 두고 시각적, 공간적으로 연결되어 있으며, 동일한 설계 언어로 구성되었다. 스튜디오 건물은 남측과 동측 입면에 깊은 주랑과 큰 지붕 돌출부를 두어 햇빛을 차단하고 실내를 보호하며, 유리 입면을 통해 주변 경관과 캠퍼스를 조망할 수 있도록 했다.


건물은 세 층으로 구성되며, 영상 제작실, 음향 제어실, LED 스튜디오, 골프 영상 아카이브, 카페와 야외 좌석 공간 등이 배치되었다. 본사와는 산책로로 직접 연결되어 있으며, 외부 재료는 흰색 금속, 콘크리트, 유리 등으로 통일감을 주도록 설계되었다. 유연한 내부 구성과 넓은 개방감을 바탕으로, PGA 투어의 콘텐츠 제작과 전달 기능을 수행하는 중심 공간으로 완성되었다.




건축가 포스터 + 파트너스 (Foster + Partners)
위치 미국, 플로리다
프로젝트기간 2021 - 2024
대표건축가 Norman Foster
디자인팀 Norman Foster, Nigel Dancey, Jim Barnes, Dave Freedman, Carlos Gamez, David Theisz, Kimberly Chew, Ya Gao
협력건축가 HLW International
기계엔지니어 AMA Group USA
구조컨설턴트 Keister Webb Structural Engineers LLC
조경컨설턴트 Prosser Inc
조명컨설턴트 Barbizon Lighting, Spark Studio Lighting Design LLC
발주자 PGA TOUR
사진작가 Nigel Young / Foster + Partners
'Architecture Project > Other' 카테고리의 다른 글
| 2025 오사카 간사이 엑스포 체코관 / 아프로포 아키텍츠 (0) | 2025.05.29 |
|---|---|
| 주민의 삶과 함께하는 샤파크 무덤 프로젝트 / 35-51 아키텍처 오피스 (0) | 2025.05.27 |
| 물 위에서 사색하는 공간 / 스튜디오 나크슈반디 (0) | 2025.05.19 |
| 차와 사람이 함께 쉬는 곳, 어치브 오토 / 피에이치티에이에이 (0) | 2025.04.29 |
| 모아 뮤지엄 오브 디스트랙션 / 아틀리에 지오엠 (0) | 2025.04.11 |
마실와이드 | 등록번호 : 서울, 아03630 | 등록일자 : 2015년 03월 11일 | 마실와이드 | 발행ㆍ편집인 : 김명규 | 청소년보호책임자 : 최지희 | 발행소 : 서울시 마포구 월드컵로8길 45-8 1층 | 발행일자 : 매일


