
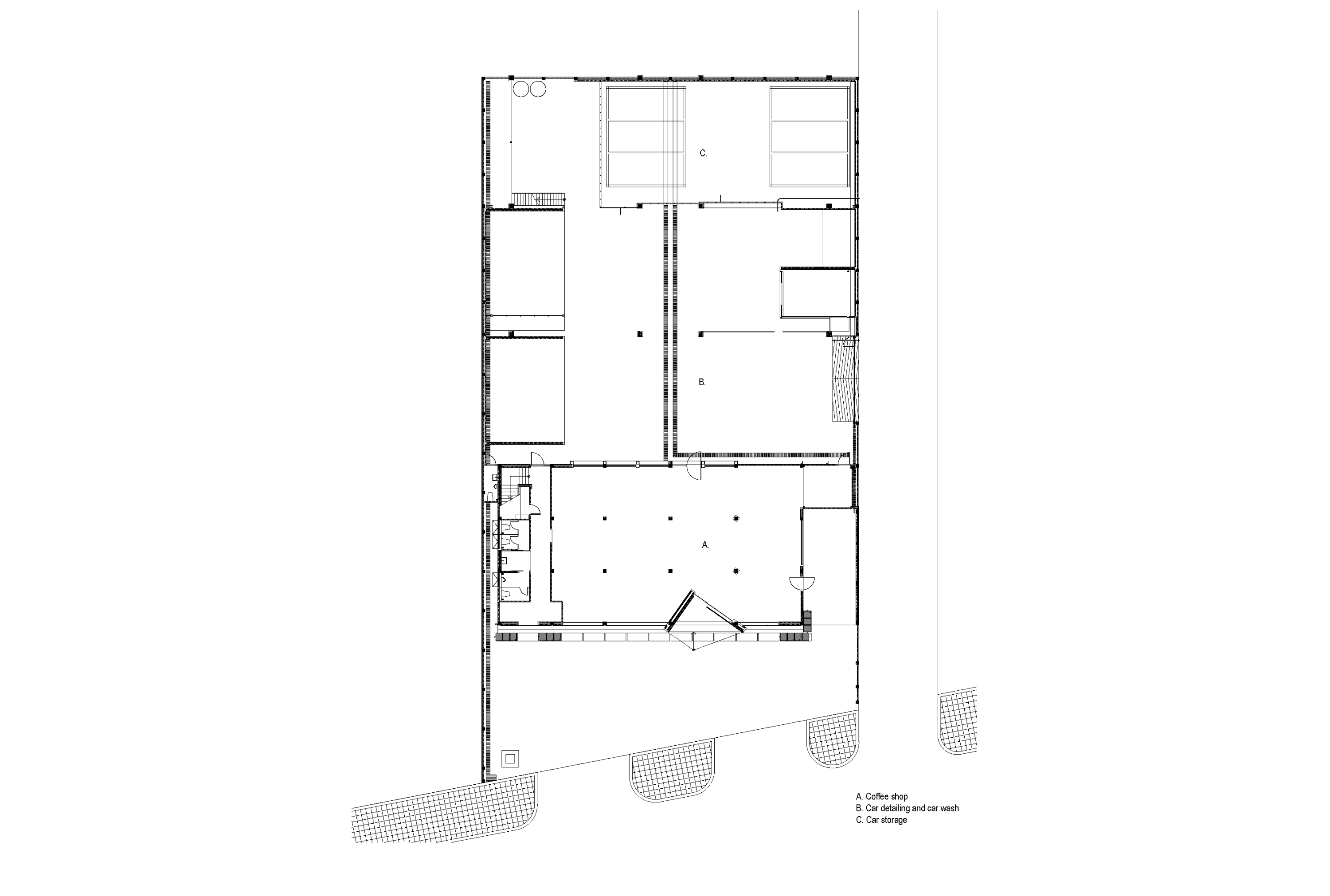
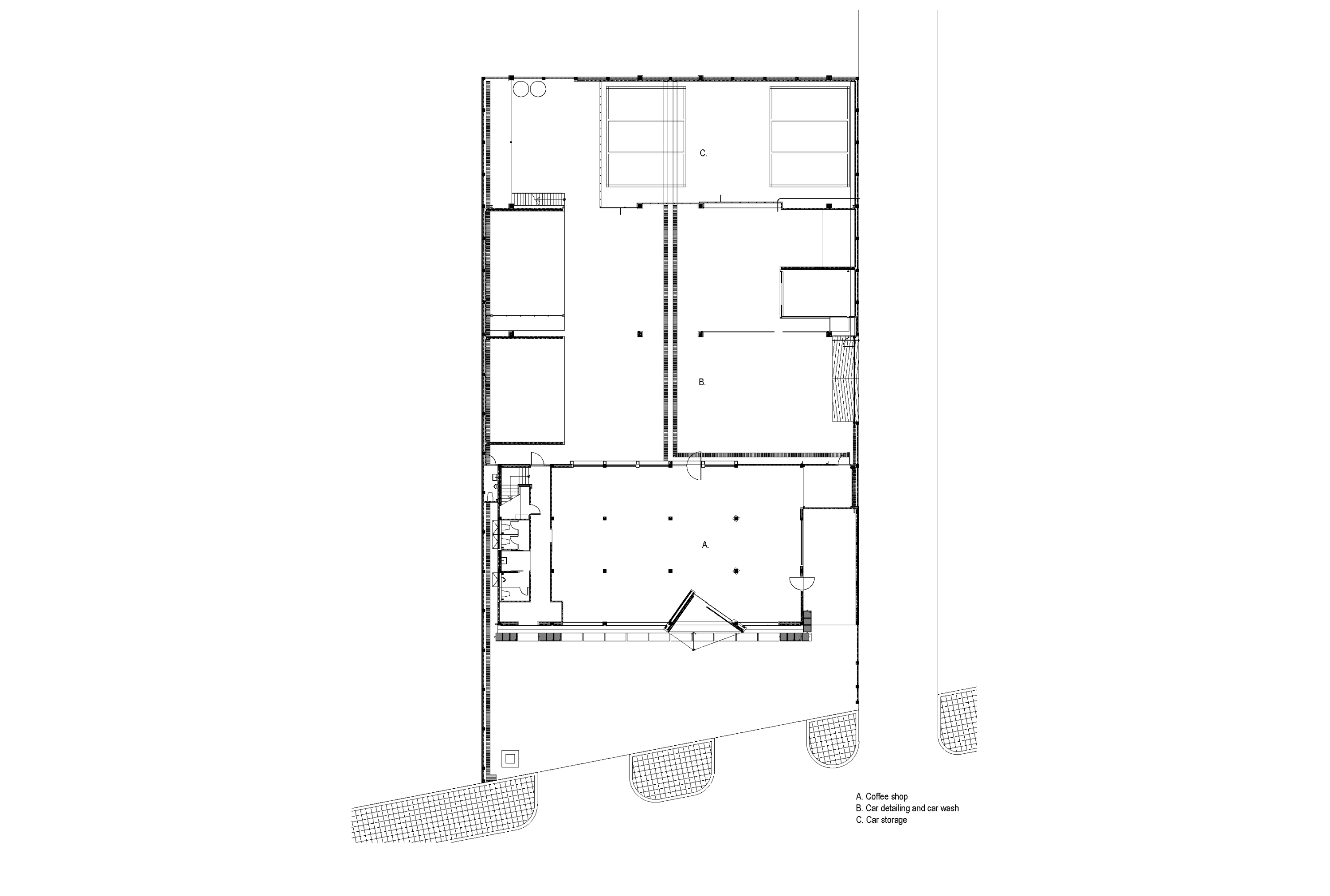
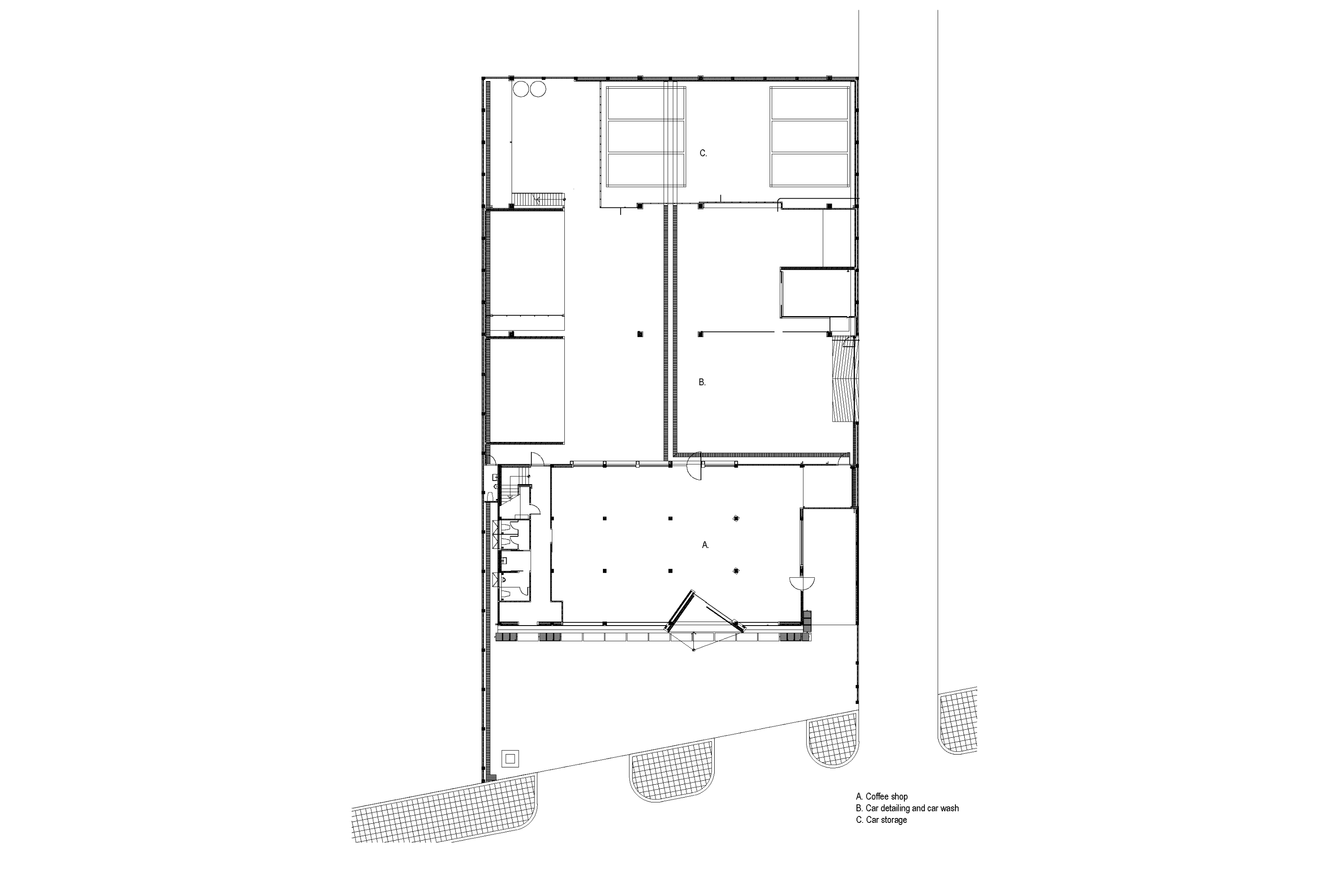
이 프로젝트는 방나 지역에 위치한 세차, 자동차 외장 관리, 차량 보관 호텔 등의 차량 복합 서비스 공간이다. 이러한 서비스는 일반적으로 긴 대기 시간을 수반하기 때문에, 고객 경험을 확장하기 위한 부가 프로그램으로 카페 공간이 함께 설계되었다. 이 카페는 도로변에서 잘 보이는 기존 건물의 전면부에 배치되었다. 후면의 자동차 서비스 공간과도 연결되어 있어, 고객은 커피를 마시며 차량 관리 과정을 직접 바라볼 수 있다.

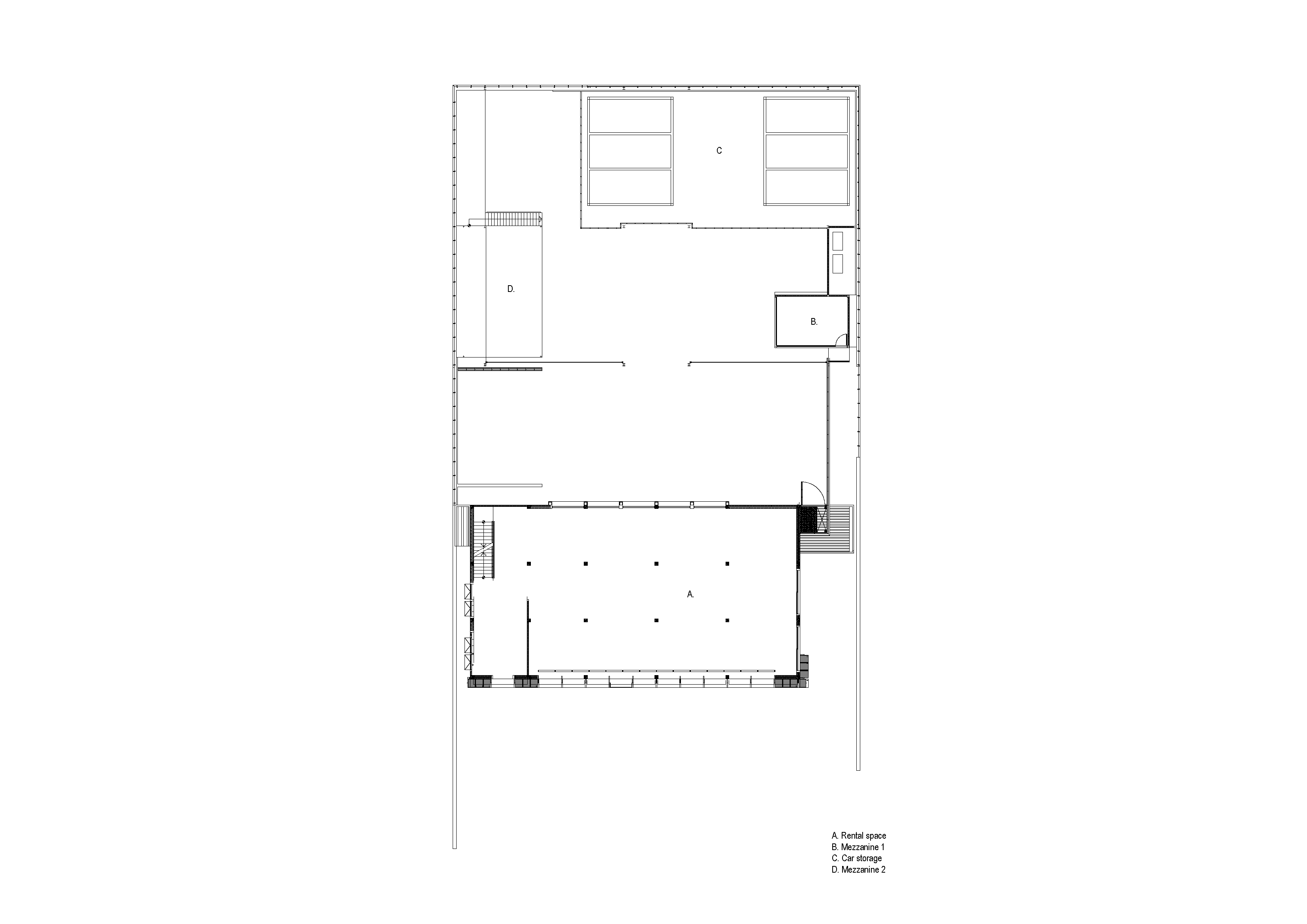
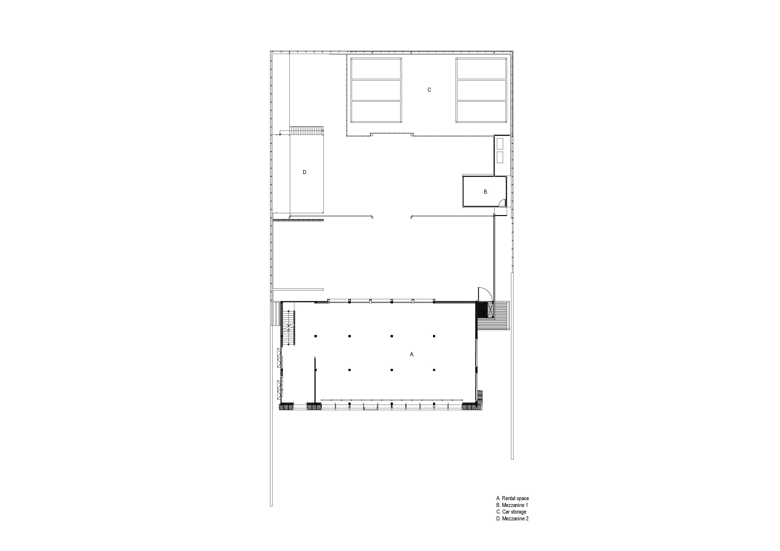
이번 프로젝트는 5개 유닛의 오래된 연립주택과 그 뒤편에 위치한 트러스 구조의 창고형 공간을 리노베이션한 프로젝트다. 기존의 창고는 원래 자동차 부품 보관이나 차량 정비 작업이 이루어지던 공간으로, 높은 층고와 여러 개의 중층을 갖추고 있다.

건축가는 많은 고정 계단 대신 이동 가능한 철제 계단을 도입하여, 층간 이동이 자유로우면서도 시공 비용과 공간을 절감할 수 있도록 했다. 이 계단을 통해 중층에 접근할 수 있으며 건물 상부 정비 작업에도 활용된다. 차량 호텔 공간은 반투명한 벽체가 적용되어 공간을 명확히 구분하면서도 폐쇄적인 인상을 주지 않는다.


지붕 구조는 전면 보수 및 도장을 거쳐 보강되었고, 일부 영역은 자연광 유입과 환기를 위한 개구부로 변형되었다. 전면부의 카페 공간은 재료의 재해석과 재사용을 콘셉트로 설계되었다. 기존 건물에 설치되어 있던 다수의 롤러 셔터 도어 중 일부는 양호한 상태였는데, 이들은 커피 바 뒤편의 디자인 포인트 벽체로 재활용되었다.

내부는 연립주택 특유의 구조적 인상을 줄이기 위해, 입구 도어와 메인 카운터를 사선 배치하여 건물 외곽선과 도로에서 유입되는 동선과 자연스럽게 연결되도록 계획했다. 도로를 마주한 전면 파사드는 건물의 이전 용도와 재료 사용 방식에서 영감을 받아 구성되었다. 차고에서 와이어 메시 패널에 부품을 걸어 보관하던 옛 방식에 따라 2중 적층 메시 레이어로 재해석되었다.


대각선과 수직 방향으로 조합된 메시 패널은 외부에서의 시각적 투명성을 확보하면서도, 자연 환기와 보안 기능을 동시에 충족하도록 설계되었다. 또한 메시를 비스듬히 배열해 차양 기능을 수행하는 돌출 처마를 형성함으로써, 태양을 효과적으로 차단하고 입면에 리듬감 있는 볼륨감을 부여했다. 이 구조는 별도의 높은 담장을 두지 않으면서도 공개성과 경계성 사이의 균형을 이루는 해법이기도 하다.



디자이너 피에이치티에이에이(PHTAA)
위치 태국, 방콕, 켓 방나
준공 2024. 9.
디자인팀 Ponwit Rattanatanatevilai , Harisadhi leelayuwapan , Thanawat patchimasiri
시공 Local contractor
발주자 Archive Auto
사진작가 kukkong thirathomrongkiat
'Architecture Project > Other' 카테고리의 다른 글
| 인공호수를 가로지르며 연결된 스튜디오 / 포스터 + 파트너스 (0) | 2025.05.21 |
|---|---|
| 물 위에서 사색하는 공간 / 스튜디오 나크슈반디 (0) | 2025.05.19 |
| 모아 뮤지엄 오브 디스트랙션 / 아틀리에 지오엠 (0) | 2025.04.11 |
| 루바브 설치물 / 아틀리에 단 (0) | 2025.04.11 |
| 퍼머넌틀리 템포러리 파빌리온 / 코스모스 아키텍츠 + 파라베이스 (0) | 2025.04.09 |
마실와이드 | 등록번호 : 서울, 아03630 | 등록일자 : 2015년 03월 11일 | 마실와이드 | 발행ㆍ편집인 : 김명규 | 청소년보호책임자 : 최지희 | 발행소 : 서울시 마포구 월드컵로8길 45-8 1층 | 발행일자 : 매일



