
Yangbei Village CCP Elderly Day-Care Center. A diverse rural community hub
양베이촌 노년 데이케어 센터는 광둥성 샤오관시 루위안 야오족 자치현에 위치한 다문화·산간 지역의 노인을 위한 복합 돌봄 시설이다. 이 지역은 농촌 재생의 일환으로 주민들의 이주가 진행되었으나, 일부 노년층은 전통 마을에 남아 생활하고 있다.




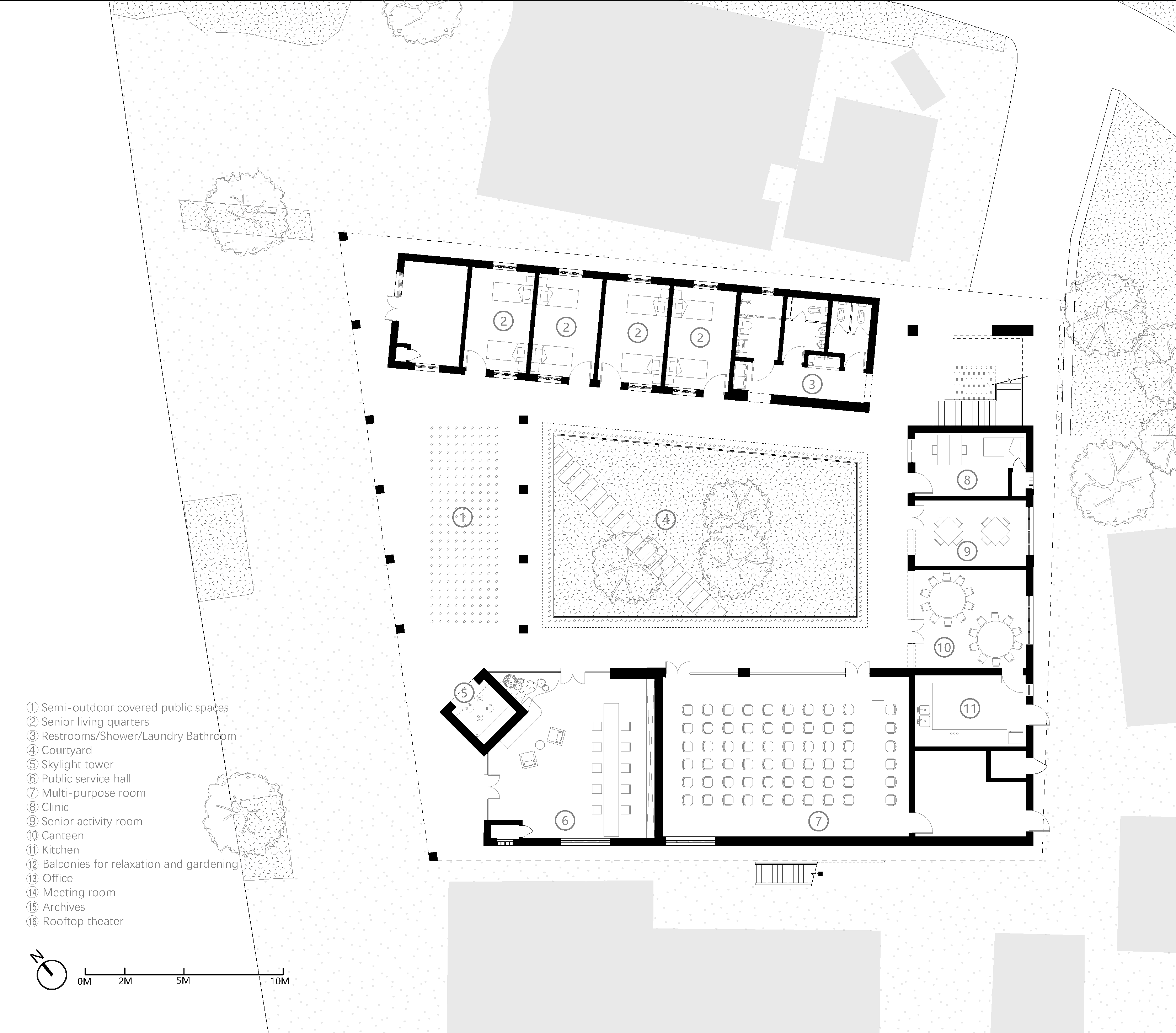
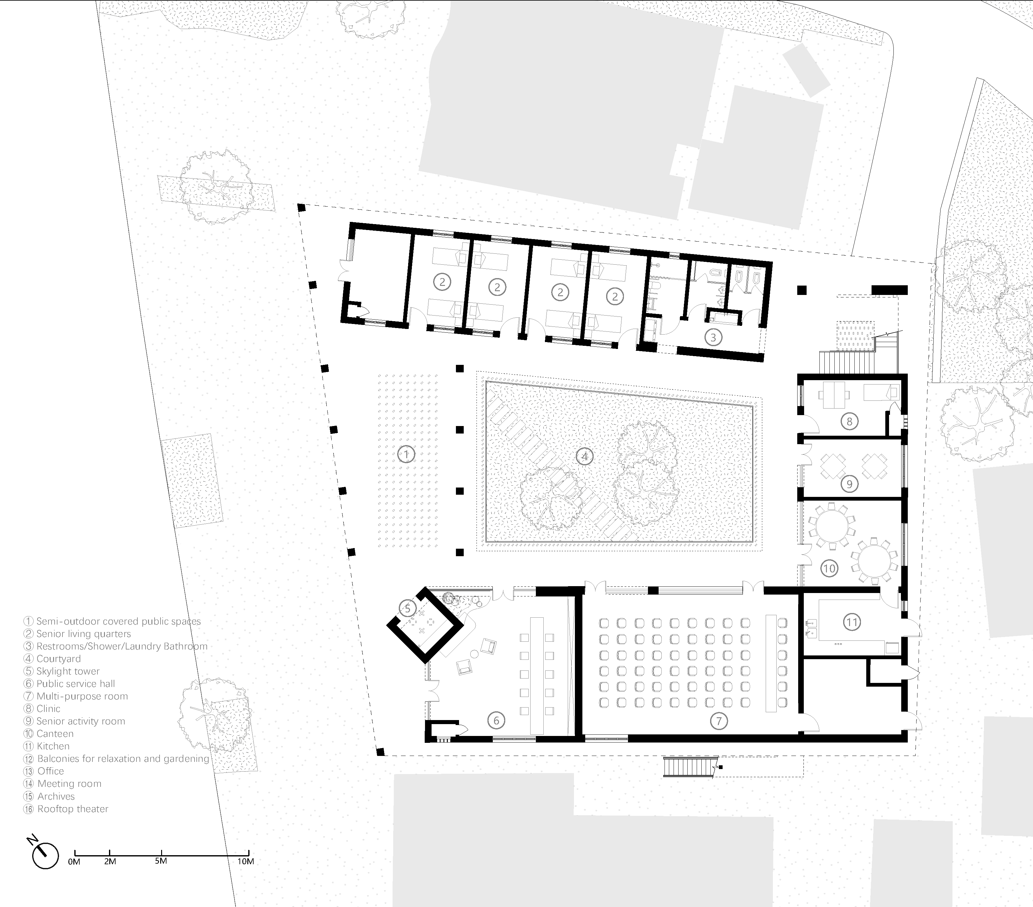
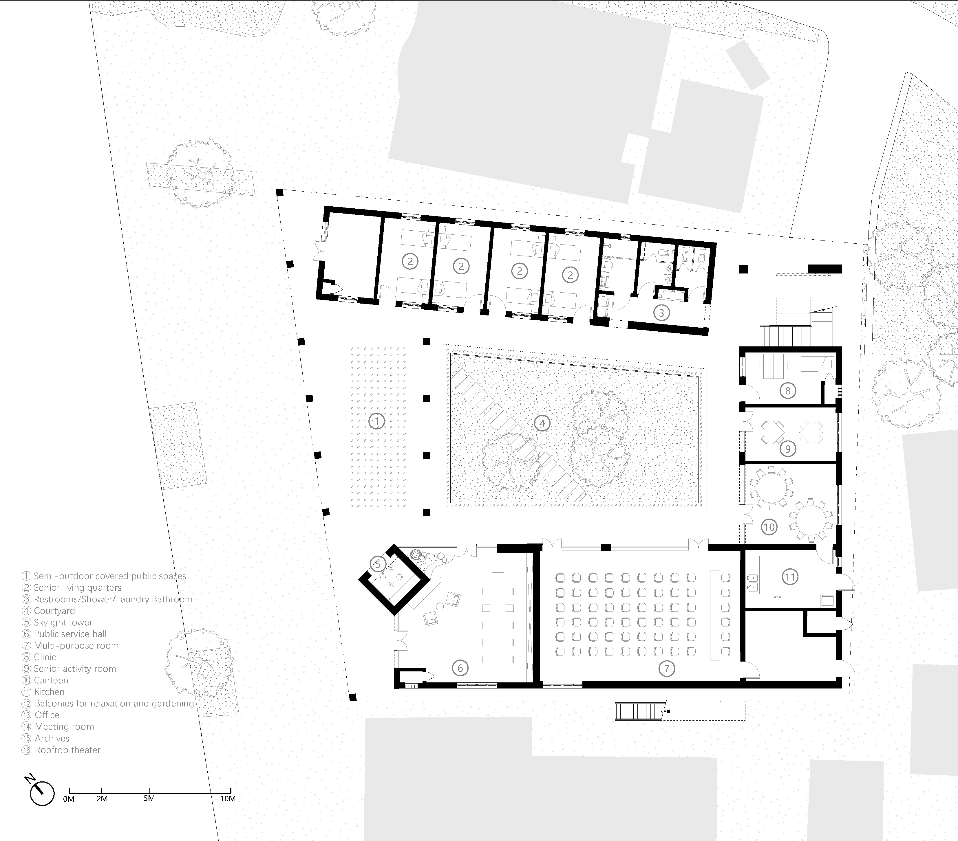
건축가는 기존 중정 형태를 유지하면서도 접근성과 개방성을 높이기 위해 반야외 회랑과 복수 진입로를 도입해 중정을 마을과 연결되는 공공 공간으로 재구성했다. 1층에는 진입 회랑을 따라 다양한 커뮤니티 기능이 배치되었으며, 북측에는 주거 공간, 남측에는 다목적실과 공공 서비스 홀, 동측에는 데이케어실이 배치되어 기능별 흐름을 유기적으로 연결했다.



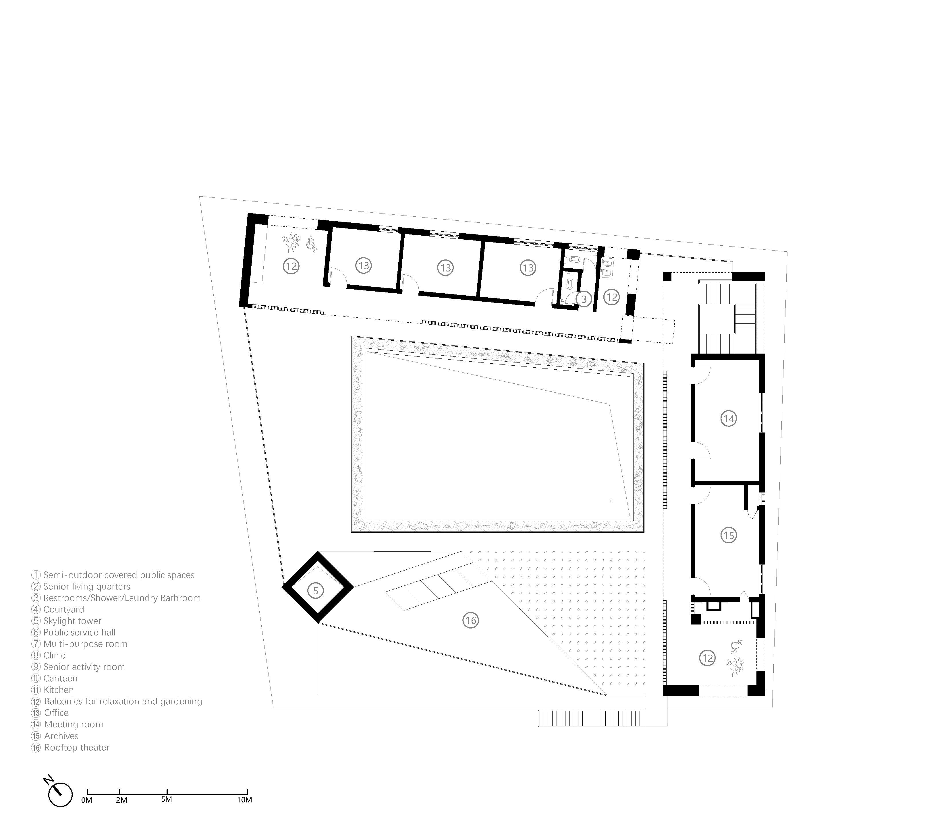
2층은 행정 공간과 테라스를 중심으로 구성되었으며, 남쪽 테라스에는 계단형 관람석이 마련되어 문화 활동 공간으로 활용된다. 건물은 흙다짐 벽과 목조 창호에서 착안한 디자인을 기반으로 중공 벽돌 스크린, 엠보 유리, 어스톤 마감 등을 사용해 지역 전통을 현대적으로 해석했다. 스카이라이트 타워는 야오족 문양을 통해 공간에 리듬감을 부여하며, 지역 주민에게는 시각적 랜드마크 역할을 한다. 이 프로젝트는 마을의 일상, 문화, 환경을 반영한 복합 커뮤니티 허브로 기능하며, 산촌 고령 인구를 위한 지속가능한 생활 기반을 제공한다.



건축가 스튜디오 10(Studio 10)
위치 중국, 광둥, 샤오관, 루위안 야오족 자치현, 구이터우, 양베이
연면적 843㎡
준공 2023. 12.
대표건축가 Shi Zhou
디자인팀 Chunhui Mo, Liuqing Liu, Jiaxiao Bao (Project Assistant), Mengqi Zhang, Hong Chen, Jinru Zhao, Yingxi Dong (Intern), Shengxiang Jin (Intern), Aijia Yu (Intern), Bin Tang (Intern), Zewei Feng (Intern), Feifei Chen (Project Assistant)
구조디자인 ZhonghangGuorun (Shenzhen) Construction Technology Development Co., Ltd.
조명 ADA lighting design consultants
발주자 Wancheng Urban Design Research(Shenzhen) Co., Ltd.
사진작가 Chao Zhang, Arch Nango, Studio 10
'Architecture Project > Infrastructure' 카테고리의 다른 글
| 토르기르의 지역 정체성을 연결하는 교량 / 프로스토르네 타크티케 (0) | 2025.08.08 |
|---|---|
| 가정2동 행정복지센터 / 건축사사무소 도시공작소 + (주)건축사사무소 아이피에이 (0) | 2025.06.13 |
| 트로스텐 사우나 / 에스투디오 에레로스 (0) | 2025.04.15 |
| 물과 빛의 정제와 순환을 돕는 건축 / 에스에이엘티 아키텍츠 (0) | 2025.04.14 |
| 방배숲환경도서관 / 인시추 건축사사무소 + (주)종합건축사사무소 가람건축 (0) | 2025.04.07 |
마실와이드 | 등록번호 : 서울, 아03630 | 등록일자 : 2015년 03월 11일 | 마실와이드 | 발행ㆍ편집인 : 김명규 | 청소년보호책임자 : 최지희 | 발행소 : 서울시 마포구 월드컵로8길 45-8 1층 | 발행일자 : 매일



