
Recharge Aquifer Plant - Cape Flats (MAR)
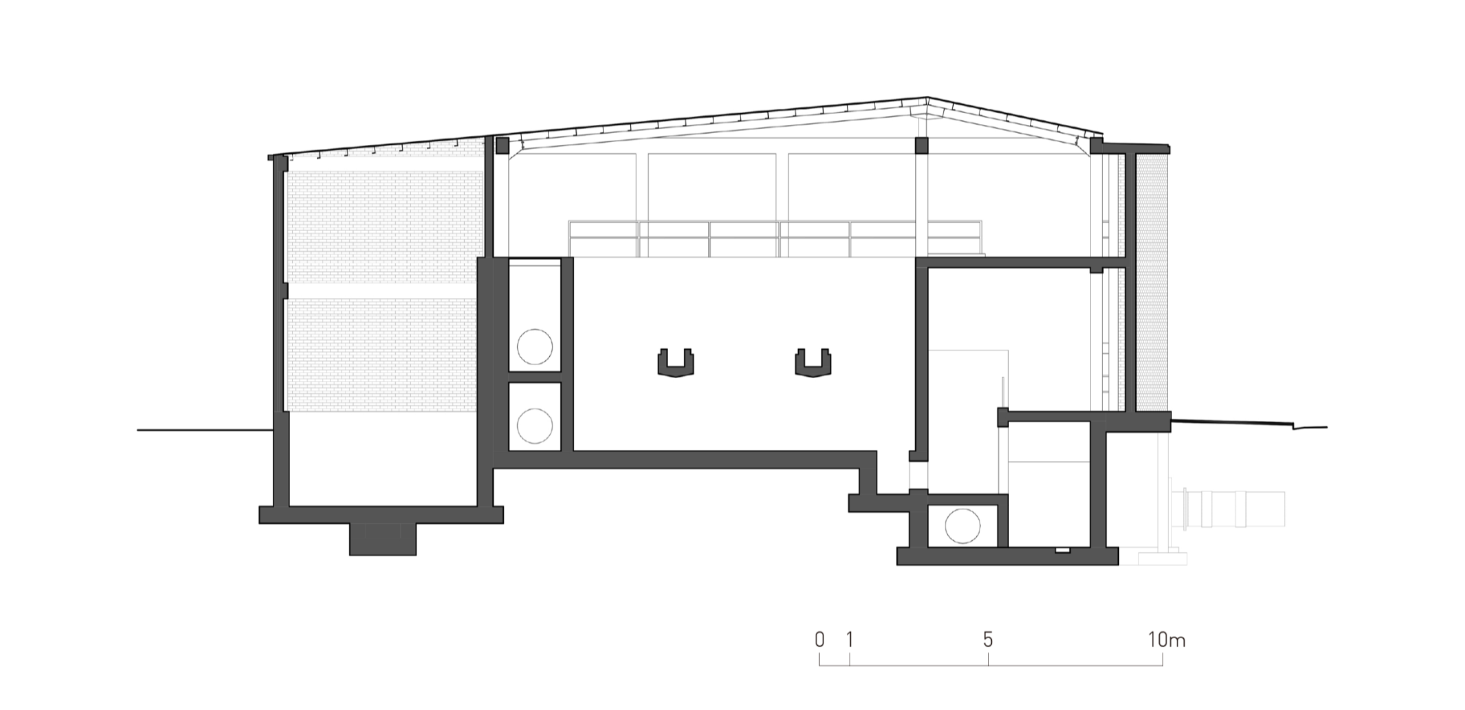
케이프 플랫츠 대수층 관리형 함양(MAR) 시설은 케이프타운의 물 위기에 대응하기 위한 선구적인 해결책으로, 도시의 미래 수자원을 보호하는 방안을 제시한다. 이 시설은 펠리칸 공원의 폴스 베이 자연 보호구역에 위치하며, 처리된 방류수를 식수 수준으로 정화한 후 케이프 플랫츠 대수층에 재주입하는 방식으로 운영된다. 이곳은 평탄한 모래 지형으로, 모래 언덕에 둘러싸여 있으며 강한 남동풍과 부식성이 높은 해안 환경의 영향을 받는다. 이러한 환경적 조건은 시설 설계에 중요한 요소로 작용한다. 이 프로젝트의 핵심은 케이프 플랫츠 대수층을 보존하고 보충하는 과정이다. 처리된 방류수를 정화하여 대수층에 재주입함으로써 수위를 안정적으로 유지한다. 이 과정은 4개의 직선형 정수 건물을 통해 이루어지며, 건물들은 인공 경사면을 따라 배치되어 중력의 흐름을 이용한 자연적인 정수 시스템을 형성한다. 가장 높은 곳에 있는 정수 건물에서 정화가 시작되며, 물은 차례로 낮은 곳으로 흘러가면서 정화 과정을 거친다. 마지막 정수 건물에서는 최종적으로 깨끗해진 물이 대수층으로 되돌아간다. 각 정수 건물의 동서 방향 정면은 각진 벽돌 핀과 남향의 좁은 창문으로 구성되어 있어 빛을 효과적으로 걸러내고 조류 발생을 방지하는 역할을 한다. 이 외벽은 단순한 필터 역할을 넘어, 정수 과정을 건축적 상징 요소로 승화시키는 디자인적 특징을 갖는다.





시설의 핵심인 관리동은 첫 번째 정수 건물과 통합된 형태로 설계되었으며, 외벽 패턴이 변화하는 디자인을 적용했다. 일부 벽돌 핀을 느슨하게 배열하여 차양 구조물을 형성하고, 이를 통해 빛과 공간을 조절하는 스크린 역할을 한다. 이는 단순한 기능적 공간을 넘어, 방문자들을 맞이하는 상징적 입구 역할을 수행한다. 건물 내부는 효율성과 편안함을 고려하여 설계되었으며, 1층에는 실용적인 공간, 2층에는 사무실, 회의실, 중앙 제어실이 배치되었다. 이 공간들은 운영자들이 원활하게 작업할 수 있도록 최적화되었다.


이 프로젝트는 물 저장을 위한 대규모 콘크리트 구조물이 필수적이기 때문에, 지속 가능성을 내구성과 자원 효율성의 관점에서 접근했다. 부식성이 강한 환경에서도 유지보수를 최소화할 수 있도록 견고한 벽돌을 외벽 마감재로 사용했다. 현장 굴착 과정에서 나온 모래를 다시 매립재로 활용하여 자원 순환을 실현하기도 했다. 이러한 요소들을 통해 환경 친화적인 인프라를 구축하는 동시에, 유지 비용을 줄이고 지속 가능한 운영이 가능하도록 했다. 이 시설은 일반인의 접근이 제한된 장소지만, 단순한 인프라를 넘어 운영자의 경험을 향상시키는 공간으로 설계되었다. 기능성과 미적 요소를 조화롭게 결합하여 작업 환경이 배려와 아름다움을 갖춘 공간이 되도록 했다. 이를 통해 시설 운영자들의 자부심을 고취하고, 인간 중심의 디자인 철학을 강조했다. 이 프로젝트는 지속 가능성을 실현하는 현대 건축의 역할을 강조하며, 도시의 회복력을 상징하는 메시지를 전달한다.





건축가 에스에이엘티 아키텍츠(SALT Architects)
위치 남아프리카공화국, 케이프타운
대지면적 53,000㎡
프로젝트면적 15,865㎡
준공 2024
구조엔지니어 WA Structural Design
전기엔지니어 Cyntech
사진작가 Karl Rogers
'Architecture Project > Infrastructure' 카테고리의 다른 글
| 지역 건물을 활용한 다문화 시니어 데이케어센터 / 스튜디오 10 (0) | 2025.05.14 |
|---|---|
| 트로스텐 사우나 / 에스투디오 에레로스 (0) | 2025.04.15 |
| 방배숲환경도서관 / 인시추 건축사사무소 + (주)종합건축사사무소 가람건축 (0) | 2025.04.07 |
| 단순함이 만드는 공공공간 / 베어 아키텍츠 (0) | 2025.03.06 |
| 은빛 물결이 넘실대는 곳 / 서큘러 스튜디오 (0) | 2025.01.31 |
마실와이드 | 등록번호 : 서울, 아03630 | 등록일자 : 2015년 03월 11일 | 마실와이드 | 발행ㆍ편집인 : 김명규 | 청소년보호책임자 : 최지희 | 발행소 : 서울시 마포구 월드컵로8길 45-8 1층 | 발행일자 : 매일



