
Mailiao Community Education Park
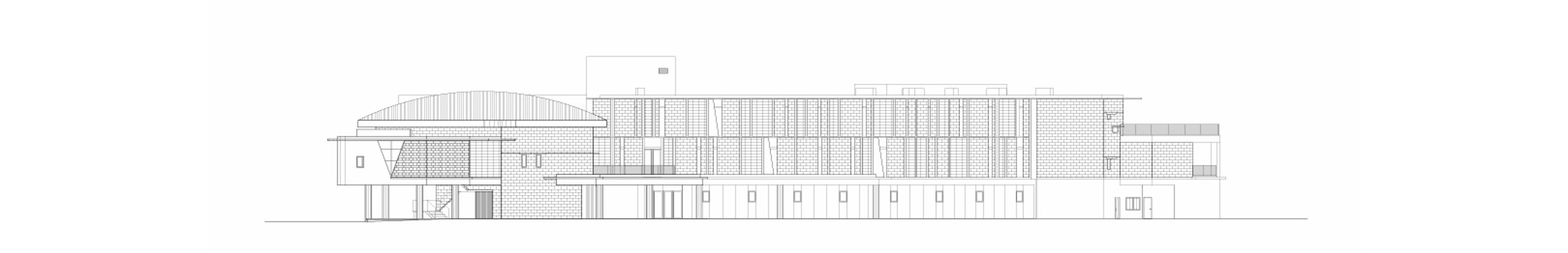
메일랴오 커뮤니티 교육공원은 대만 윈린현 해안 마을에 조성된 복합 문화 시설이다. 붉은 벽돌이라는 전통 재료를 현대적으로 해석하여, 지역의 건축적 기억과 자연 조건을 반영한 공간을 구현하였다. 프로젝트 1단계에는 생활예술센터와 도서관이 조성되었으며, 두 건물은 강한 북동계절풍을 차단할 수 있도록 배치되었다.


두 건물 사이에는 열린 광장이 마련되어 지역 주민들이 모이는 공간으로 활용되고 있다. 생활예술센터는 강의실 중심의 평생학습 공간으로, 내부 중정을 통해 빛과 그림자의 변화가 드러나는 구조로 설계되었다.

도서관은 노인과 어린이를 주요 대상으로 하며, 높낮이 차와 계단을 활용해 다양한 공간 경험을 제공한다.

독립된 독서 공간들은 모두 하나의 톱날같은 모양의 천장 아래 있으며, 우드 텍스처의 천장은 자연광을 부드럽게 유입시켜 쾌적한 환경을 조성하였다.

출입구 주변에는 상점과 카페가 있어 일상적 교류가 이루어지는 커뮤니티 공간으로 기능한다. 본 프로젝트는 붉은 벽돌이라는 전통적 재료를 바탕으로, 지역성과 현대성이 조화를 이루는 공공 건축의 사례라 할 수 있다.












건축가 옌치 쉬 건축사사무소 (Yen-Chi Hsu Architects)
위치 대만, 윈린, 메일랴오
용도 도서관
대지면적 23,474m²
건축면적 5,404㎡
연면적 11,156㎡
준공 2023
대표건축가 Yen-Chi Hsu, Chien-Ming Chao
사진작가 Jian Zhuo Lai, Feng Kuo Huang, Yen-Chi Hsu, Mu-Jou Hsu
'Architecture Project > Cultural' 카테고리의 다른 글
| 해가 뜨는 듯 넘실대는 베이징 케피탈 국제 전시 컨벤션 센터 / 자하 하디드 아키텍츠 (0) | 2025.05.16 |
|---|---|
| 땅 아래 동굴을 품은 문화관광시설 /산드위치 디자인, 허웨이 스튜디오 (0) | 2025.05.14 |
| 브루스 뮤지엄 / 에스큐 두메즈 리플 (0) | 2025.05.09 |
| 마을을 조명하는 문화 스테이션 / 엠유에프유 아키텍처럴 퍼포머스 스튜디오 (0) | 2025.04.22 |
| 베이징 퍼포밍 아츠 센터 / 퍼킨스 앤 윌 + 슈미트 해머 라센 (0) | 2025.04.16 |
마실와이드 | 등록번호 : 서울, 아03630 | 등록일자 : 2015년 03월 11일 | 마실와이드 | 발행ㆍ편집인 : 김명규 | 청소년보호책임자 : 최지희 | 발행소 : 서울시 마포구 월드컵로8길 45-8 1층 | 발행일자 : 매일



