
본 프로젝트의 대상지는 주거용으로 배정된 부지로, 그 북쪽에는 드래곤 랜턴 행사를 위한 넓은 광장과 독특한 지형을 지닌 암석 언덕인 ‘후옌타(后岩塔)’가 있다. 건축가는 단순히 하나의 건물을 짓는 것이 아닌, 마을의 문화를 다시 조명하고, 공동의 기억을 일깨우는 계기로 삼고자 했다. 주변의 획일적인 주택 양식을 반복하기보다는, 산샤 마을의 후옌타 언덕 기슭에 공공적인 목적을 지닌 문화 스테이션을 조성하고자 했다.

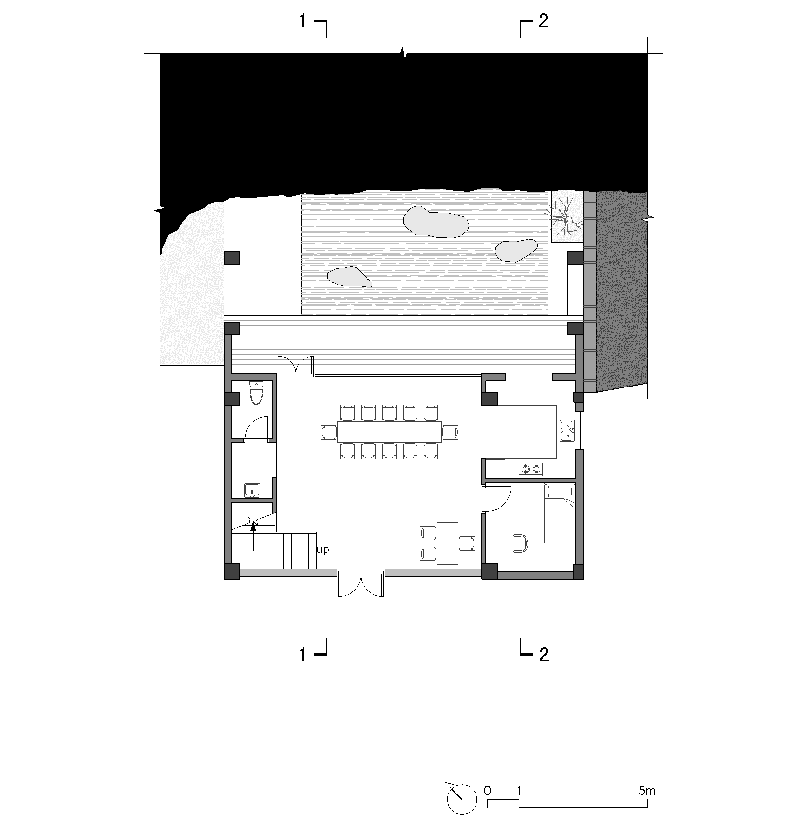
마을 전체에 지정된 부지 크기는 11m × 11.5m로 통일되어 있으며, 남쪽으로는 1.5m의 후퇴선을 두도록 규정되어 있다. 이러한 조건에 따라 문화 스테이션의 남측 외형은 마을 내 여타 현대식 주택과 유사해 보인다. 하지만 북측, 즉 후옌타 언덕과 마주한 면에서는 사선으로 잘린 단면 전략을 도입하여 건물과 언덕 사이에 ‘마주 보고 대화하는’ 관계를 형성했다. 일부 연면적은 포기해야 했지만, 자연 지형과 조화를 이루는 공간 경험을 만들어낼 수 있었다.




외부 마감은 마을 맥락과의 조화를 중심으로 구성되었다. 상층부는 테라코타 색 벽돌로 마감된 커다란 사다리꼴 매스로, 마을에 흔한 붉은 벽돌과 황토집의 색과 질감을 반영해 농촌의 소박한 삶을 드러내며, 12층은 농촌 주택에 흔히 쓰였던 모래 분말 마감재를 사용해 향수를 자아낸다.

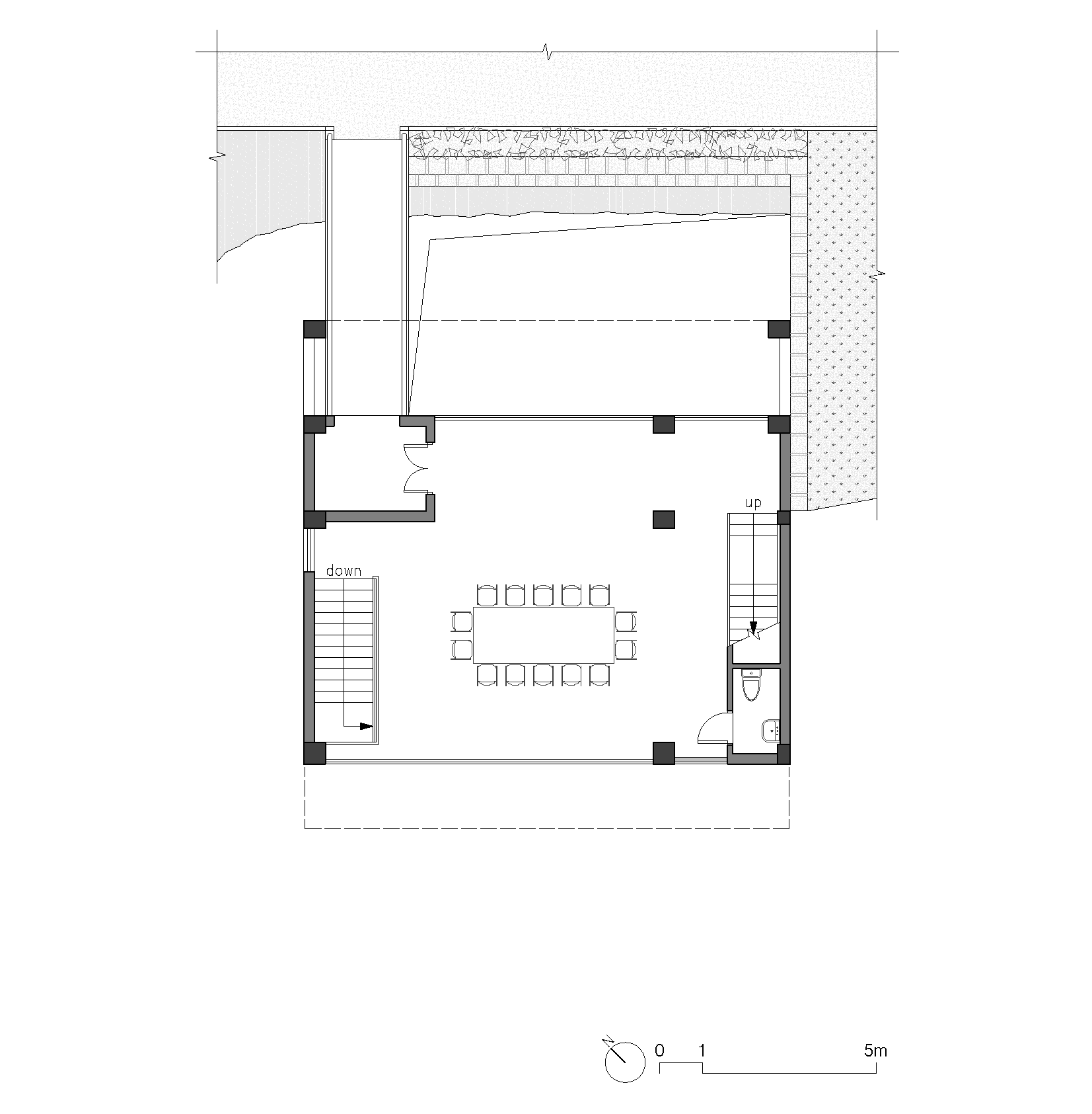
매년 정월 열이튿날 저녁이 되면 수많은 인파가 드래곤 랜턴 광장을 에워싼 다이옌타(大岩塔)와 후옌타 언덕 위로 몰려든다. 문화 스테이션이 완공되면서 축제의 새로운 관람 포인트가 생겼고, 기존 경관과 새로운 공간 질서가 형성되었다. 상층부는 관람대 및 휴게 공간으로 활용되고, 1층은 방문객에게 음식과 음료를 제공하며, 2층은 행사 준비 및 주민 모임 공간으로 사용되었다. 무엇보다 이 건물은 단순한 기능 이상의 의미를 지닌다. 산샤 마을 드래곤 랜턴 문화제를 처음으로 탄생시킨 장소로, 축제의 예술 전시, 민속 체험, 학술 교류, 주민 참여를 통합한 포괄적인 문화 행사로의 진화를 이끌었다. 이를 통해 예술, 경제, 공동체가 유기적으로 연결되는 지속 가능한 문화 발전의 가능성을 제시한다.







건축가 엠유에프유 아키텍처럴 퍼포머스 스튜디오(MUFU Architectural Performance Studio)
위치 중국
프로젝트면적 418㎡
준공 2024
대표건축가 Hu Zhenhang
디자인팀 Zhang Qili, Chen Sihan, Yin Jingwen, Pan Yichang, Sun Tian
사진작가 Chen Xi Studio
'Architecture Project > Cultural' 카테고리의 다른 글
| 해안 마을에 자리잡은 메일랴오 커뮤니티 교육공원 / 옌치 쉬 건축사사무소 (0) | 2025.05.12 |
|---|---|
| 브루스 뮤지엄 / 에스큐 두메즈 리플 (0) | 2025.05.09 |
| 베이징 퍼포밍 아츠 센터 / 퍼킨스 앤 윌 + 슈미트 해머 라센 (0) | 2025.04.16 |
| 자연을 품는 요람, 양저우 판다 퍼포먼스 센터 / 지엑스디 아키텍츠 (0) | 2025.04.15 |
| 차이 위안페이 광장과 제민 도서관 / 유에이디 (0) | 2025.01.14 |
마실와이드 | 등록번호 : 서울, 아03630 | 등록일자 : 2015년 03월 11일 | 마실와이드 | 발행ㆍ편집인 : 김명규 | 청소년보호책임자 : 최지희 | 발행소 : 서울시 마포구 월드컵로8길 45-8 1층 | 발행일자 : 매일



