
Maa Kauvery
팬데믹 한가운데에서 샨무감 어소시에이츠는 티루치라팔리에서 시작된 명망 높은 카우베리 병원 그룹을 위해 300병상 규모의 모자병원을 설계했다. 카우베리 병원 CEO가 제시한 초기 계획은 소아과, 산부인과 및 부인과 진료의 전체 스펙트럼을 하나의 건물 안에서 제공하는 것이었다. 이를 통해 티루치라팔리와 주변 지역에서 오는 여성과 어린이들에게 포괄적인 의료 서비스를 제공하고자 했다.

설계의 목표는 전통적인 병원 환경을 편안하고 친근한 공간으로 변화시키는 것이었다. 다학제적 의료팀이 환자 중심의 진료를 제공함으로써 병원에서 머무는 시간을 최소화할 수 있도록 했다.

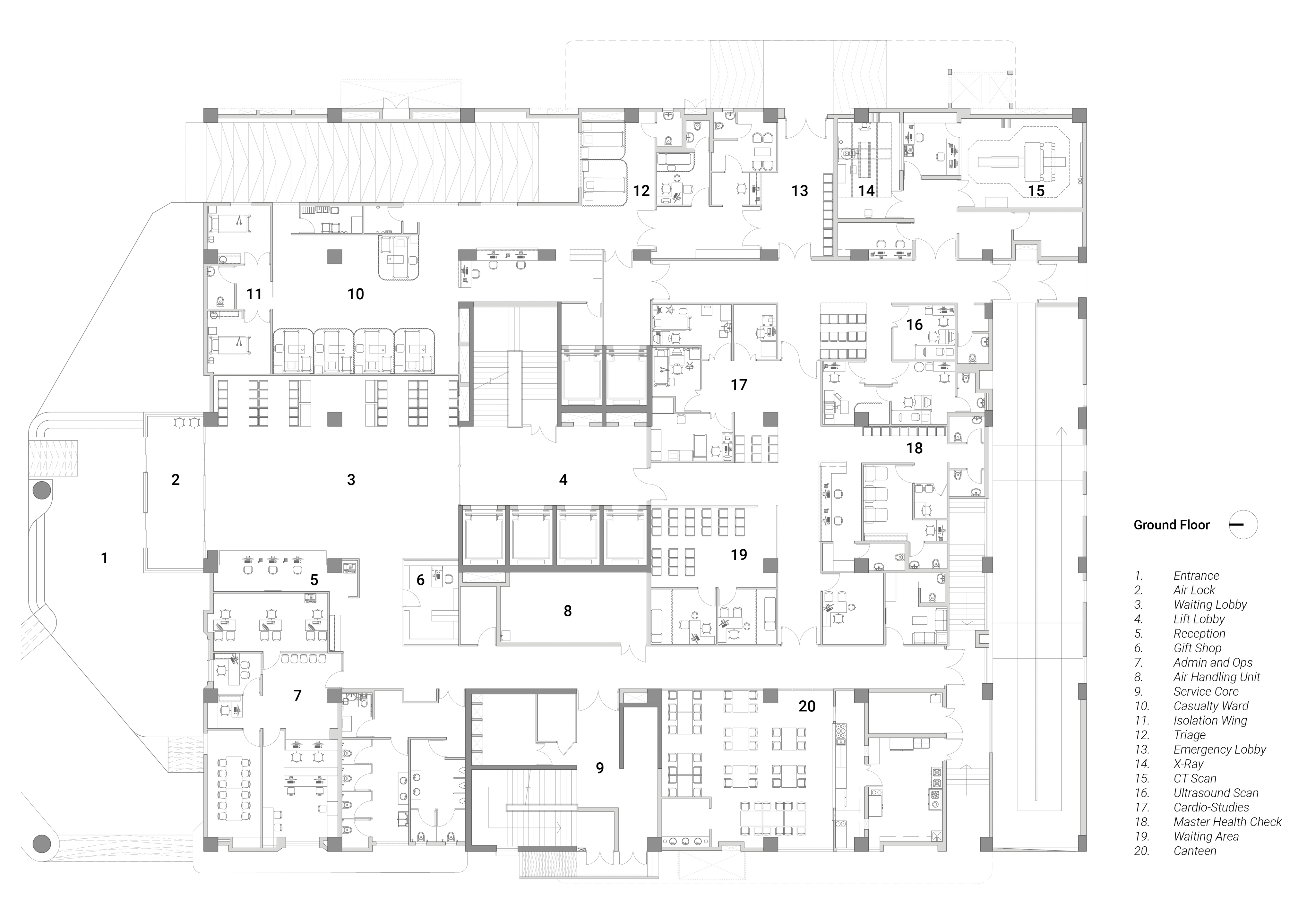
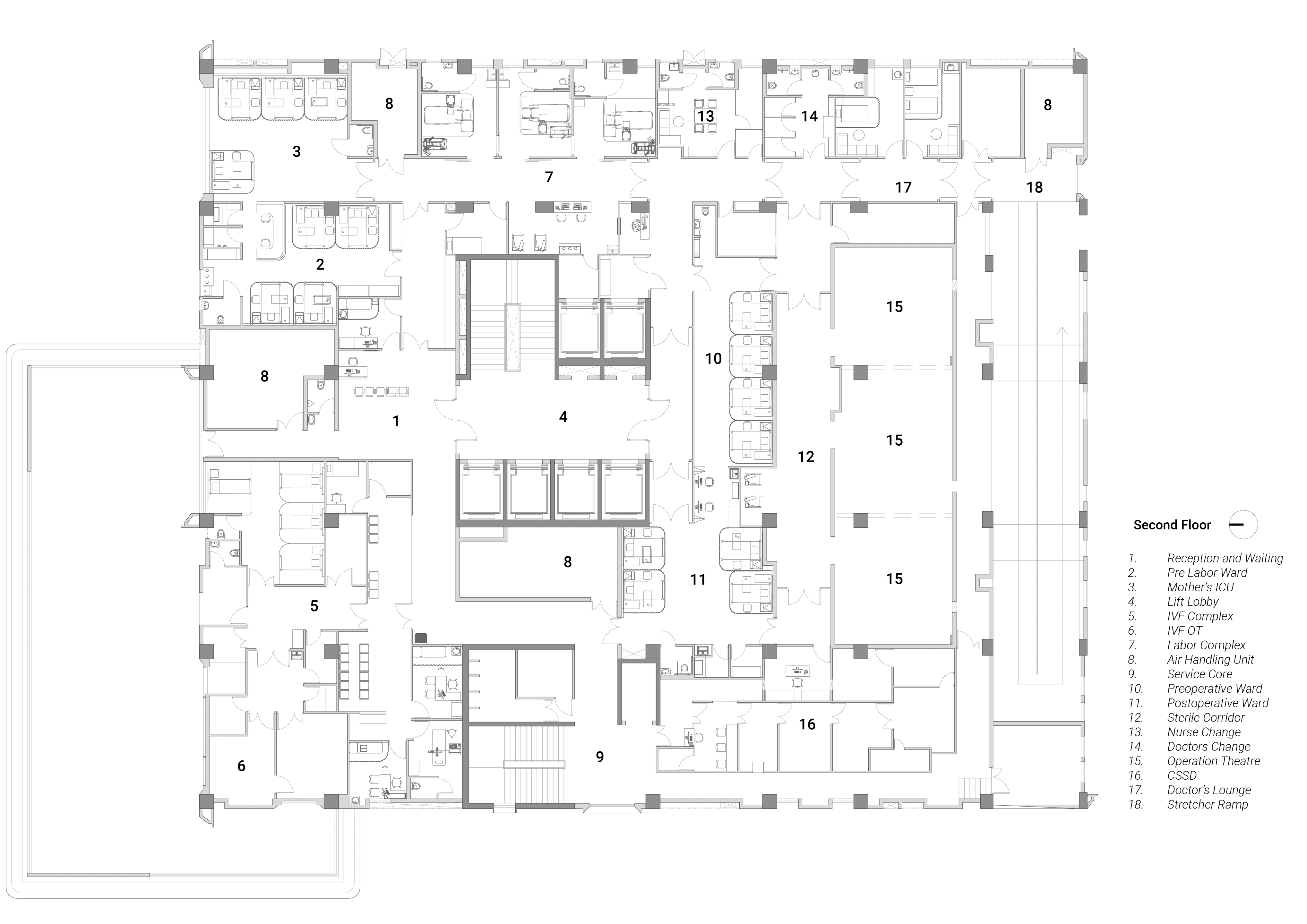
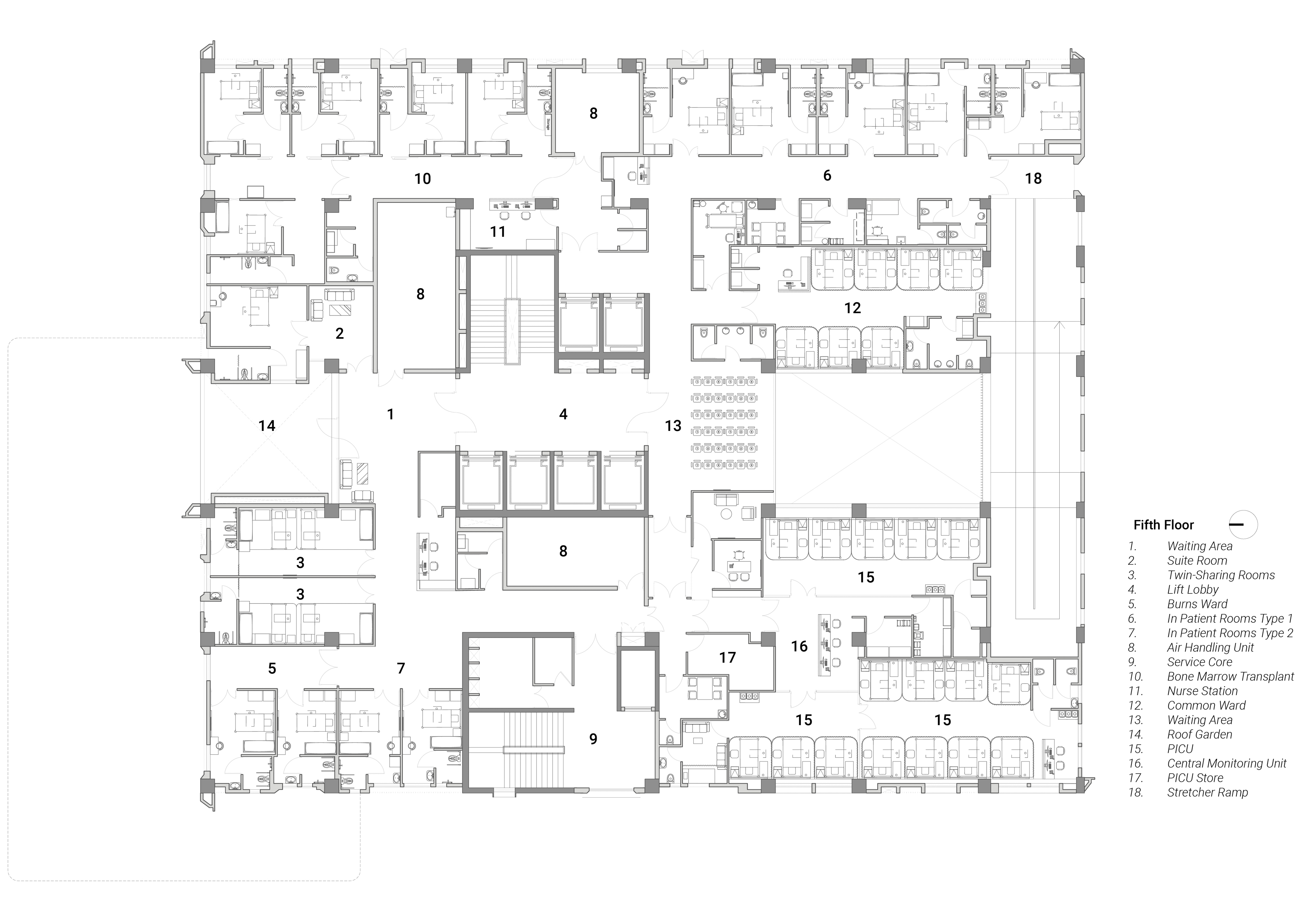
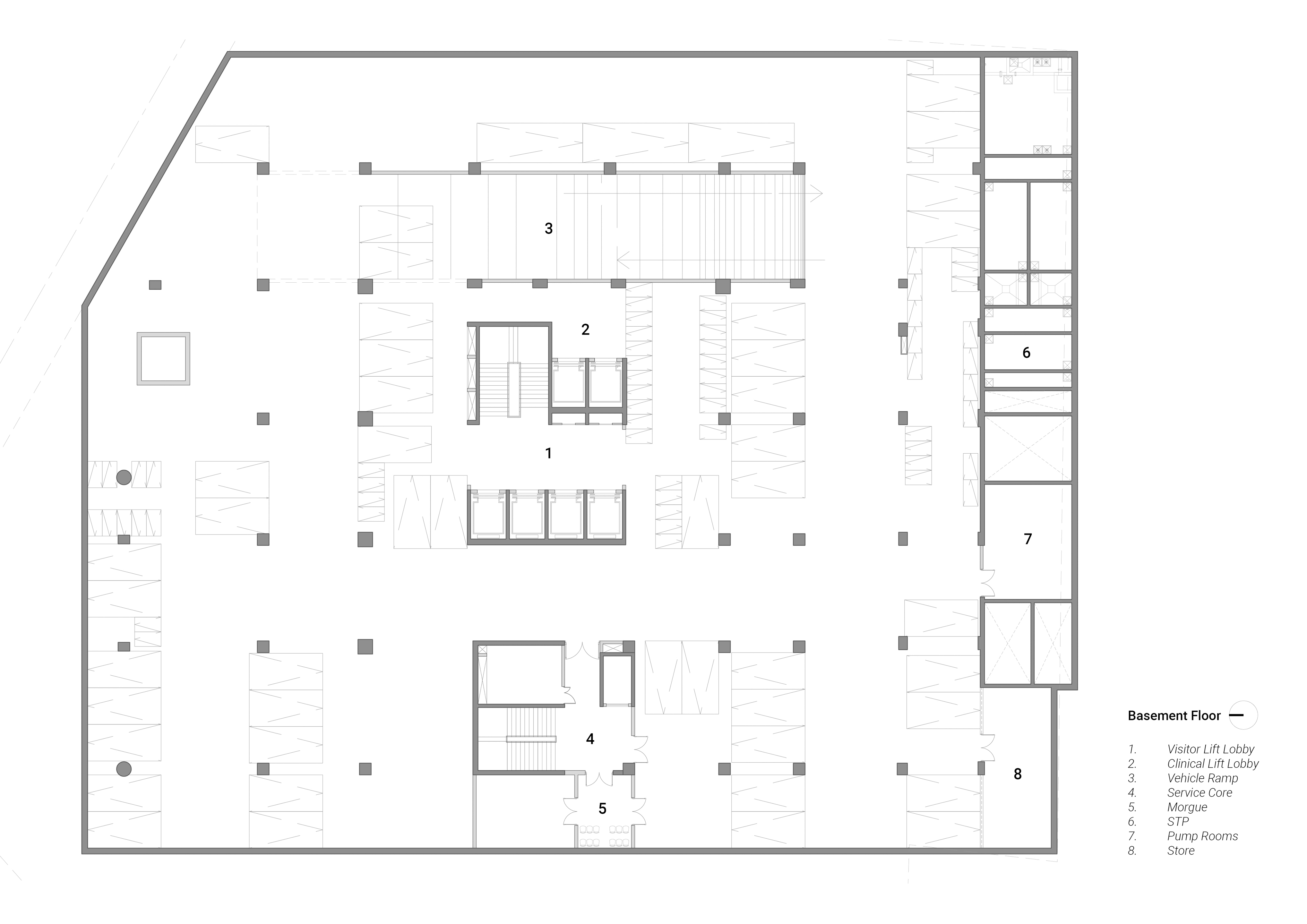
효율적인 출산 및 소아과 시설을 운영하기 위해 공간 배치를 최적화했다. 2층에는 수술실을 배치하여 무균 환경을 조성했으며, 3층에는 집중 치료실(ICU)을 인접하게 두어 응급 상황에 신속히 대응할 수 있도록 했다. 1층은 높은 유동 인구를 수용하기 위해 외래 진료 및 진단 시설을 배치했다. 지하 주차장은 IVF(체외 수정) 시술을 받는 부부의 프라이버시를 고려하여 엘리베이터를 통해 직접 이동할 수 있도록 설계했다. 5층에는 골수 이식(BMT) 병동을 배치하여 조용하고 무균 상태를 유지하도록 했다.

병원 환경은 환자와 보호자에게 압도적으로 느껴질 수 있다. 이를 해결하기 위해 마 카우베리 병원은 단순한 동선과 직관적인 길 찾기 시스템을 적용했다. 정글 테마의 그래픽 스토리보드를 층별로 연출하여 국제적인 감각을 유지하면서도 지역적 친근함을 더했다. 대기 공간에는 인터랙티브 패널을 설치하고, 환자실에는 파스텔 톤의 그래픽을 적용했으며, 소아과 병동에는 어린이 친화적인 가구를 배치했다. 대기 공간은 높은 층고와 넉넉한 면적을 확보하여 불편한 대기 경험을 최소화했다.

신생아의 탄생을 축하하고, 병원에 대한 불안을 줄이기 위해 건강한 실내 환경을 조성하는 데 중점을 두었다. 이러한 설계를 통해 병원의 환경적 영향을 줄이는 동시에 환자, 의료진, 방문객 모두에게 건강한 실내 환경을 제공한다.

효율적인 동선 설계를 통해 환자와 의료진의 이동을 최적화하고 혼잡을 최소화했다. 또한 외부 조경을 활용하여 방문객과 직원들이 휴식을 취할 수 있는 녹색 공간을 조성했다. 마 카우베리 병원은 건축 레이아웃, 인테리어 마감, 조경 디자인이 조화를 이루는 환자 중심 병원으로, 인도 내 소아과 병원의 새로운 기준을 제시한다.







건축가 샨무감 어소시에이츠(Shanmugam Associates)
위치 인도, 트리치
연면적 195,000㎡
준공 2024.07.
대표건축가 Shanmugam A, Raja Krishnan, Santhosh Shanmugam
디자인팀 Shanmugam A, Raja Krishnan, Santhosh Shanmugam, Ramya Raman, Ajith Kumar, Sabrinath, Devadharshini, Suriya Prakash and Sakthivel
구조엔지니어 BURO Engineers, Chennai
기계엔지니어 Shinryo Suvidha
전기엔지니어 Sivachi Engineers and Consultants
조경 Naveen Associates
발주자 KMC Group of Hospitals (India) Limited
사진작가 Denis Amritraj, Maniyarasan R
'Architecture Project > Healthcare' 카테고리의 다른 글
| 끝없는 녹지 위의 붉은 선, 노비 비드조프 시니어 홈 / 아르키텍투라 (0) | 2026.02.26 |
|---|---|
| 소리메디컬센터 / 프로젝트91건축사사무소 (0) | 2025.06.17 |
| 아이를 치료하기 위해 만들어진 작은 마을 / 헤르조그 앤 드뫼롱 (0) | 2025.01.10 |
| 펫포레스트 김포 (0) | 2024.12.11 |
| Centro de Sáude de Moreira de Cónegos (0) | 2024.10.30 |
마실와이드 | 등록번호 : 서울, 아03630 | 등록일자 : 2015년 03월 11일 | 마실와이드 | 발행ㆍ편집인 : 김명규 | 청소년보호책임자 : 최지희 | 발행소 : 서울시 마포구 월드컵로8길 45-8 1층 | 발행일자 : 매일



