
김포시의 외곽 지역에 지어진 펫포레스트 김포는 반려동물 장례식장으로 기존 건물을 리모델링하여 지어졌다. 기존 건물은 1999년부터 운영되었던 국내 최초의 반려동물 장례식장으로 반려동물 장례에 관한 법률적 체계가 갖추어지지 않은 상황에서도 반려동물 장례문화의 증진을 위해 힘쓴 곳이었다. 건축주는 화장시설에 대한 부정적 인식을 개선하기 위해 장례식장으로 운영되던 기존의 건물을 인수하여 새롭게 리모델링하고 현대적인 장례 공간을 만들고자 했다.
기존 건물은 인접 부지와 여유 공간 없이 밀접하게 붙어있었다. 이러한 제약된 상황에서 외장재를 밖으로 돌출시켜 덧대거나 안으로 집어넣어 입체감을 주는 등의 변화를 주기 어려웠다. 이러한 상황에서 입면을 재구성하여 나누는 방법을 고민했다. 작은 공간을 더 작게 나누어 공간의 연속성을 의도하고, 여러 개로 나뉜 공간에서 보호자들이 각자의 시간을 갖도록 만든다.



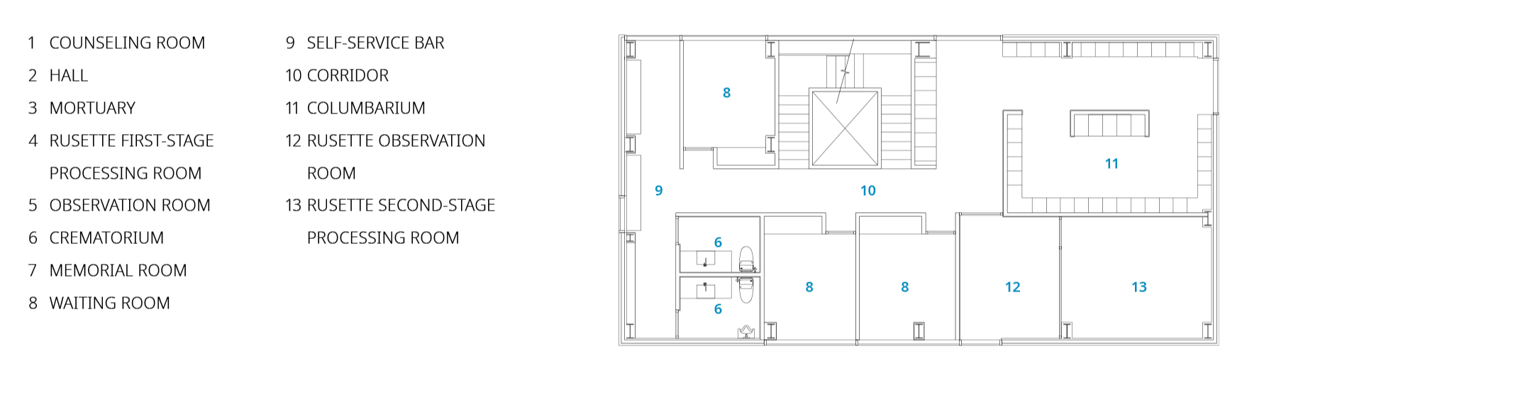
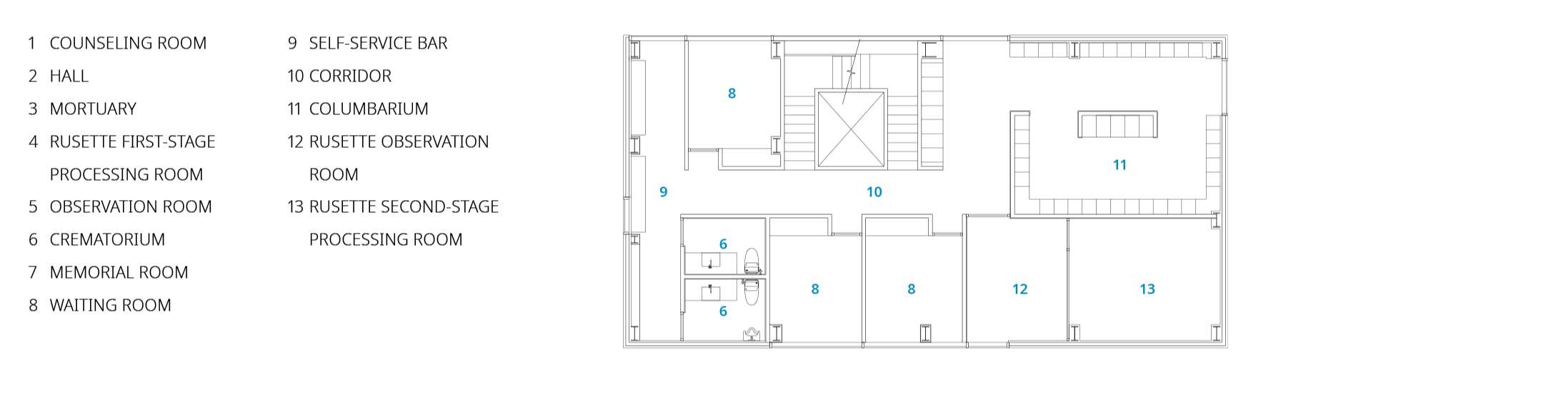
건물은 3개의 동으로 이루어진다. 기존 건물의 내부 계단을 공간의 가운데로 옮겼고 그 자리에는 출입구를 두었다. 계단을 축으로 조닝이 이루어졌다. 방문객들은 메인 홀을 지나 외부의 정원을 거쳐 상담실로 접근할 수 있다. 내부의 각 실로 출입하는 동선은 출입문이 노출되지 않으며, 개별 실들이 사적인 공간의 성격을 가지고 있음을 보여준다.


건물을 받치고 있는 철골 기둥은 기존 건물의 구조체이다. 옛 건물의 모습을 감추는 대신 최소한의 면 처리와 투명 유리로 마감했다. 옥상의 휴게 공간인 정원은 가볍고, 기존 건물의 구조에 하중의 부담을 주지 않는 나무껍질로 바닥재가 깔려있다. 외피의 구성은 여러 면과 소재로 나누어져 의도된 비율로 나누었다. 높낮이를 달리하며 면과 면을 가르는 창호와 주변 자연이 투영된 타일의 얽혀 상자를 포개 놓은 형태가 되었다. 이렇게 정제된 선과 면의 공간에서 슬픔을 이해하고 위로하며, 서로에게 의미 있는 마지막 인사를 할 수 있는 장소가 되었다.



건축가 아키리에
위치 경기도 김포시 통진읍
용도 반려동물 장례식장
대지면적 585.00㎡
연면적 320.20㎡
건폐율 30.03%
용적률 57.73%
설계기간 2023. 2. - 7.
시공기간 2023. 8. - 2024. 2.
준공 2024. 3.
대표건축가 아키리에(정윤채)
프로젝트건축가 아키리에(정윤채)
협업 에프비엘건축사사무소(윤창식)
구조엔지니어 지안엔지니어링
기계엔지니어 은성이엔지
전기엔지니어 대양이엔씨
시공 하우스컬처
발주자 펫포레스트
사진작가 몽상
해당 프로젝트는 건축문화 2024년 12월호(Vol. 523)에 게재되었습니다.
The project was published in the November, 2024 recent projects of the magazine(Vol. 523).
December 2024 : vol. 523
Contents : COMPETITION : RECENT PROJECTUrban Lining - KN GLOBAL Headquarter / ZAIRA Architects & Engineers(주)케이엔글로벌 사옥 / (주)자이라 건축사사무소 yeon.ju.je.sun / SEOGA ARCHITECTS연주제선 / (주)서가건축
anc.masilwide.com
'Architecture Project > Healthcare' 카테고리의 다른 글
| 아이들을 위한 펜데믹 속 메디컬 / 샨무감 어소시에이츠 (0) | 2025.04.18 |
|---|---|
| 아이를 치료하기 위해 만들어진 작은 마을 / 헤르조그 앤 드뫼롱 (0) | 2025.01.10 |
| Centro de Sáude de Moreira de Cónegos (0) | 2024.10.30 |
| Villa B (0) | 2024.10.18 |
| Silver for Rest (0) | 2024.10.11 |
마실와이드 | 등록번호 : 서울, 아03630 | 등록일자 : 2015년 03월 11일 | 마실와이드 | 발행ㆍ편집인 : 김명규 | 청소년보호책임자 : 최지희 | 발행소 : 서울시 마포구 월드컵로8길 45-8 1층 | 발행일자 : 매일



